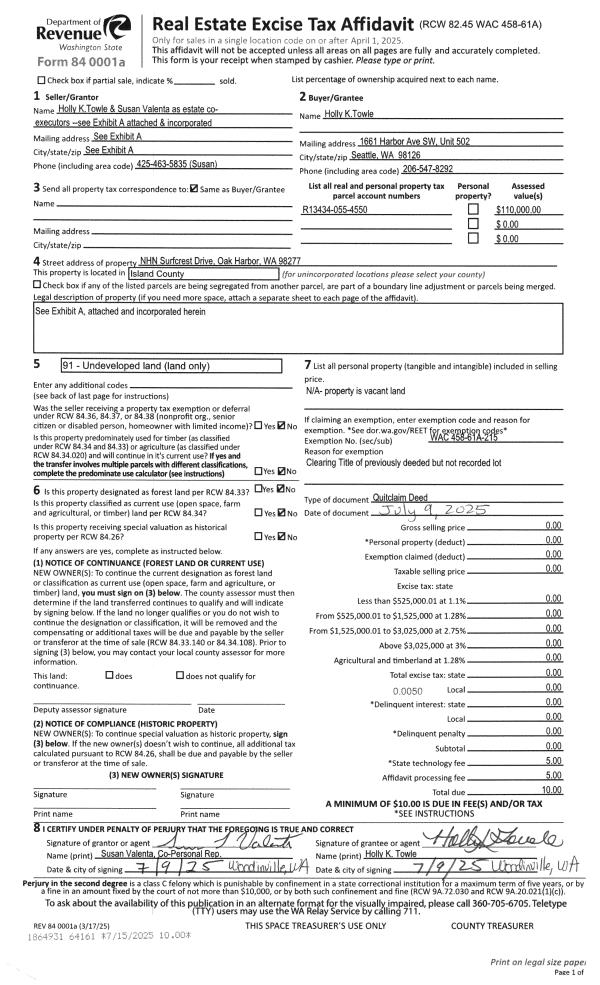
Property
Account |
| Property ID: | 404360 | Abbreviated Legal Description: | SUNSET TERR LOT 6 BLK D |
| Geographic ID: | S8270-00-0D006-0 | Agent Code: | |
| Type: | Real | | |
| Tax Area: | 300 - APPRAISER-Cpvl Schl Dist, in Cpvl | Land Use Code | 11 |
| Open Space: | N | DFL | N |
| Historic Property: | N | Remodel Property: | N |
| Multi-Family Redevelopment: | N | | |
| Township: | | Section: | |
| Range: | |
Location |
| Address: | NE FARIS ST COUPEVILLE, WA 98239 | Mapsco: | |
| Neighborhood: | Cycle 2 | Map ID: | 177 |
| Neighborhood CD: | 2 |
Owner |
| Name: | SCHMITZ, JENNIFER | Owner ID: | 297687 |
| Mailing Address: | BRANDON LOWERY 202 NE FARIS ST COUPEVILLE, WA 98239 | % Ownership: | 100.0000000000% |
| | | Exemptions: | |
Taxes and Assessment Details
Values
| (+) Improvement Homesite Value: | + | $0 | |
| (+) Improvement Non-Homesite Value: | + | $1,920 | |
| (+) Land Homesite Value: | + | $0 | |
| (+) Land Non-Homesite Value: | + | $95,000 | |
| (+) Curr Use (HS): | + | $0 | $0 |
| (+) Curr Use (NHS): | + | $0 | $0 |
| | | -------------------------- | |
| (=) Market Value: | = | $96,920 | |
| (–) Productivity Loss: | – | $0 | |
| | | -------------------------- | |
| (=) Subtotal: | = | $96,920 | |
| (+) Senior Appraised Value: | + | $0 | |
| (+) Non-Senior Appraised Value: | + | $96,920 | |
| | | -------------------------- | |
| (=) Total Appraised Value: | = | $96,920 | |
| (–) Senior Exemption Loss: | – | $0 | |
| (–) Exemption Loss: | – | $0 | |
| | | -------------------------- | |
| (=) Taxable Value: | = | $96,920 | |
Taxing Jurisdiction
| Owner: | SCHMITZ, JENNIFER | | |
| % Ownership: | 100.0000000000% | | |
| Total Value: | $96,920 | | |
| Tax Area: | 300 - APPRAISER-Cpvl Schl Dist, in Cpvl |
| CF | Conservation Futures | 0.0316035091 | $96,920 | $96,920 | $3.06 | | |
| CEM2 | Cemetery #2 | 0.0095056933 | $96,920 | $96,920 | $0.92 | | |
| COUP | City: Town of Coupeville | 0.8426414490 | $96,920 | $96,920 | $81.67 | | |
| FIRE5 | Fire & Rescue Dist #5 C Whidbey GEN | 1.2008080668 | $96,920 | $96,920 | $116.38 | | |
| FIRE5BOND | Fire & Rescue Dist #5 C Whidbey BOND | 0.1400090713 | $96,920 | $96,920 | $13.57 | | |
| HOBOND | Hospital BOND | 0.1910887512 | $96,920 | $96,920 | $18.52 | | |
| HOGEN | Hospital GEN | 0.3902502903 | $96,920 | $96,920 | $37.82 | | |
| CE | County Current Expense | 0.3708482477 | $96,920 | $96,920 | $35.94 | | |
| ISLANDEMS | Hospital GEN (EMS) | 0.5000000000 | $96,920 | $96,920 | $48.46 | | |
| LIB | Library Sno-Isle GEN | 0.3153421757 | $96,920 | $96,920 | $30.56 | | |
| LIBCAP | Library Sno-Isle BOND (Cap Fac Imp Area) | 0.0543427938 | $96,920 | $96,920 | $5.27 | | |
| POCOUP | Port of Coupeville GEN | 0.1093371703 | $96,920 | $96,920 | $10.60 | | |
| POCOUPIDD | Port of Coupeville IDD | 0.3409740022 | $96,920 | $96,920 | $33.05 | | |
| COUPSDTECH | School 204 CP (TECH) | 0.7545480007 | $96,920 | $96,920 | $73.13 | | |
| SCH204MO | School 204 Enrichment | 0.6716186034 | $96,920 | $96,920 | $65.09 | | |
| ST | State School | 1.3035497053 | $96,920 | $96,920 | $126.34 | | |
| ST2 | State School Part 2 | 0.8169543533 | $96,920 | $96,920 | $79.18 | | |
| | Total Tax Rate: | 8.0434218834 | | | | | |
| | | | | Taxes w/Current Exemptions: | $779.56 | | |
| | | | | Taxes w/o Exemptions: | $779.56 | | |
Improvement / Building
| Improvement #1: | RESIDENTIAL | State Code: | Y | 0.0 sqft | Value: | $1,920 |
Sketch
Property Image
Land
| 1 | 15 | SQ (12001-21780) | 0.3000 | 13068.00 | 0.00 | 0.00 | 1.00 | $95,000 | $0 |
Roll Value History
| 2026 | N/A | N/A | N/A | N/A | N/A |
| 2025 | $1,920 | $95,000 | $0 | $96,920 | $96,920 |
| 2024 | $1,920 | $95,000 | $0 | $96,920 | $96,920 |
| 2023 | $1,920 | $95,000 | $0 | $96,920 | $96,920 |
| 2022 | $1,920 | $95,000 | $0 | $96,920 | $96,920 |
| 2021 | $1,920 | $75,000 | $0 | $76,920 | $76,920 |
| 2020 | $1,920 | $75,000 | $0 | $76,920 | $76,920 |
| 2019 | $1,920 | $60,000 | $0 | $61,920 | $61,920 |
| 2018 | $900 | $60,000 | $0 | $60,900 | $60,900 |
| 2017 | $900 | $55,000 | $0 | $55,900 | $55,900 |
| 2016 | $900 | $55,000 | $0 | $55,900 | $55,900 |
| 2015 | $900 | $55,000 | $0 | $55,900 | $55,900 |
| 2014 | $900 | $55,000 | $0 | $55,900 | $55,900 |
| 2013 | $900 | $55,000 | $0 | $55,900 | $55,900 |
| 2012 | $1,488 | $60,937 | $0 | $62,425 | $62,425 |
| 2011 | $1,488 | $71,690 | $0 | $73,178 | $73,178 |
| 2010 | $1,488 | $71,690 | $0 | $73,178 | $73,178 |
| 2009 | $1,488 | $83,750 | $0 | $85,238 | $85,238 |
| 2008 | $1,488 | $39,195 | $0 | $40,683 | $40,683 |
| 2007 | $1,488 | $39,239 | $0 | $40,727 | $40,727 |
Deed and Sales History
| 1 | 01/07/2021 | WD | Warranty Deed | STRAHLE, DAVID B | SCHMITZ, JENNIFER | | | $445,000.00 | 46521 | 4507645 |
|   | |
| 2 | 05/27/1998 | WD | Warranty Deed | ALLEN, WESLEY G | STRAHLE, DAVID B | | | $18,000.00 | 82053 | 98010759 |
| 3 | 04/01/1987 | QCD | Quit Claim Deed | ALLEN, WESLEY G | ALLEN, WESLEY G | | | $0.00 | 70827 | 87004367 |
| 4 | 01/01/1900 | OTHER | Other - Misc. Documents | Unknown | ALLEN, WESLEY G | | | $0.00 | 0 | 0 |
Payout Agreement
| No payout information available.. |