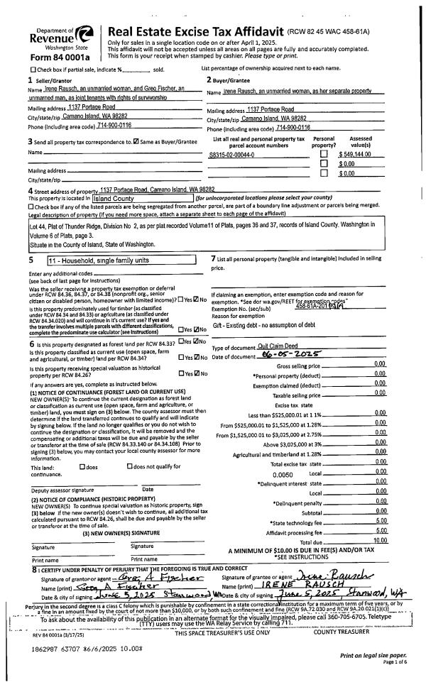
Property
Account |
| Property ID: | 404477 | Abbreviated Legal Description: | SUNSET TERR PT LOT 7 BLK E: BG MST ELY CR LOT 7 S44*W ALG SELY LN LOT 7 70' N45*W167.92' TP ON NLN LOT 7 E92.77' TO LOT CR S48*E ALG NELY LN LOT 7 101.96' TPB |
| Geographic ID: | S8270-00-0E007-0 | Agent Code: | |
| Type: | Real | | |
| Tax Area: | 300 - APPRAISER-Cpvl Schl Dist, in Cpvl | Land Use Code | 11 |
| Open Space: | N | DFL | N |
| Historic Property: | N | Remodel Property: | N |
| Multi-Family Redevelopment: | N | | |
| Township: | | Section: | |
| Range: | |
Location |
| Address: | 408 NE FARIS ST COUPEVILLE, WA 98239 | Mapsco: | |
| Neighborhood: | Cycle 2 | Map ID: | 177 |
| Neighborhood CD: | 2 |
Owner |
| Name: | RIVERA, JAKE | Owner ID: | 292396 |
| Mailing Address: | 408 NE FARIS ST COUPEVILLE, WA 98239 | % Ownership: | 100.0000000000% |
| | | Exemptions: | |
Taxes and Assessment Details
Values
| (+) Improvement Homesite Value: | + | $0 | |
| (+) Improvement Non-Homesite Value: | + | $174,573 | |
| (+) Land Homesite Value: | + | $0 | |
| (+) Land Non-Homesite Value: | + | $270,000 | |
| (+) Curr Use (HS): | + | $0 | $0 |
| (+) Curr Use (NHS): | + | $0 | $0 |
| | | -------------------------- | |
| (=) Market Value: | = | $444,573 | |
| (–) Productivity Loss: | – | $0 | |
| | | -------------------------- | |
| (=) Subtotal: | = | $444,573 | |
| (+) Senior Appraised Value: | + | $0 | |
| (+) Non-Senior Appraised Value: | + | $444,573 | |
| | | -------------------------- | |
| (=) Total Appraised Value: | = | $444,573 | |
| (–) Senior Exemption Loss: | – | $0 | |
| (–) Exemption Loss: | – | $0 | |
| | | -------------------------- | |
| (=) Taxable Value: | = | $444,573 | |
Taxing Jurisdiction
| Owner: | RIVERA, JAKE | | |
| % Ownership: | 100.0000000000% | | |
| Total Value: | $444,573 | | |
| Tax Area: | 300 - APPRAISER-Cpvl Schl Dist, in Cpvl |
| CF | Conservation Futures | 0.0316035091 | $444,573 | $444,573 | $14.05 | | |
| CEM2 | Cemetery #2 | 0.0095056933 | $444,573 | $444,573 | $4.23 | | |
| COUP | City: Town of Coupeville | 0.8426414490 | $444,573 | $444,573 | $374.62 | | |
| FIRE5 | Fire & Rescue Dist #5 C Whidbey GEN | 1.2008080668 | $444,573 | $444,573 | $533.85 | | |
| FIRE5BOND | Fire & Rescue Dist #5 C Whidbey BOND | 0.1400090713 | $444,573 | $444,573 | $62.24 | | |
| HOBOND | Hospital BOND | 0.1910887512 | $444,573 | $444,573 | $84.95 | | |
| HOGEN | Hospital GEN | 0.3902502903 | $444,573 | $444,573 | $173.49 | | |
| CE | County Current Expense | 0.3708482477 | $444,573 | $444,573 | $164.87 | | |
| ISLANDEMS | Hospital GEN (EMS) | 0.5000000000 | $444,573 | $444,573 | $222.29 | | |
| LIB | Library Sno-Isle GEN | 0.3153421757 | $444,573 | $444,573 | $140.19 | | |
| LIBCAP | Library Sno-Isle BOND (Cap Fac Imp Area) | 0.0543427938 | $444,573 | $444,573 | $24.16 | | |
| POCOUP | Port of Coupeville GEN | 0.1093371703 | $444,573 | $444,573 | $48.61 | | |
| POCOUPIDD | Port of Coupeville IDD | 0.3409740022 | $444,573 | $444,573 | $151.59 | | |
| COUPSDTECH | School 204 CP (TECH) | 0.7545480007 | $444,573 | $444,573 | $335.45 | | |
| SCH204MO | School 204 Enrichment | 0.6716186034 | $444,573 | $444,573 | $298.58 | | |
| ST | State School | 1.3035497053 | $444,573 | $444,573 | $579.52 | | |
| ST2 | State School Part 2 | 0.8169543533 | $444,573 | $444,573 | $363.20 | | |
| | Total Tax Rate: | 8.0434218834 | | | | | |
| | | | | Taxes w/Current Exemptions: | $3,575.89 | | |
| | | | | Taxes w/o Exemptions: | $3,575.89 | | |
Improvement / Building
| Improvement #1: | RESIDENTIAL | State Code: | Y | 1020.0 sqft | Value: | $174,573 |
| Bathrooms: | 1 | Bedrooms: | 3 | | Ceiling: | DRYWALL PAINTED | Exterior Wall/Cover: | WOOD SIDING | | Floor Covering: | HARDWOOD/CARP 80-20 | Floor Structure: | WOOD W/SUBFLOOR | | Foundation: | CONCRETE | Heating: | FHA GAS | | Interior Finish: | DRYWALL PAINT | Plumbing Fixture Cnt: | 6 | | Roof Slope: | 4" IN 12" | Roof Structure/Cover: | CJ ASPHALT |
|
| | Type | Description | Class CD | Sub Class CD | Year Built | Area |
| | BAS | BASE/MAIN FLOOR | 3 | 0 | 1959 | 1020.0 |
| | AGR | ATTACHED GARAGE | 3 | 0 | 1959 | 322.0 |
| | OWP | OPEN WOOD PORCH W/STEPS | 3 | 0 | 1959 | 227.5 |
Sketch
Property Image
Land
| 1 | 14 | SQ (08001-12000) | 0.2000 | 8712.00 | 0.00 | 0.00 | 1.00 | $270,000 | $0 |
Roll Value History
| 2026 | N/A | N/A | N/A | N/A | N/A |
| 2025 | $174,573 | $270,000 | $0 | $444,573 | $444,573 |
| 2024 | $167,423 | $260,000 | $0 | $427,423 | $427,423 |
| 2023 | $169,805 | $240,000 | $0 | $409,805 | $409,805 |
| 2022 | $155,923 | $230,000 | $0 | $385,923 | $385,923 |
| 2021 | $137,460 | $180,000 | $0 | $317,460 | $317,460 |
| 2020 | $134,226 | $160,000 | $0 | $294,226 | $294,226 |
| 2019 | $95,986 | $200,000 | $0 | $295,986 | $295,986 |
| 2018 | $95,189 | $180,000 | $0 | $275,189 | $275,189 |
| 2017 | $94,778 | $155,000 | $0 | $249,778 | $249,778 |
| 2016 | $96,059 | $135,000 | $0 | $231,059 | $231,059 |
| 2015 | $77,076 | $90,000 | $0 | $167,076 | $108,599 |
| 2014 | $78,382 | $85,000 | $0 | $163,382 | $163,382 |
| 2013 | $79,688 | $85,000 | $0 | $164,688 | $164,688 |
| 2012 | $77,650 | $90,950 | $0 | $168,600 | $168,600 |
| 2011 | $78,891 | $107,000 | $0 | $185,891 | $185,891 |
| 2010 | $84,683 | $107,000 | $0 | $191,683 | $191,683 |
| 2009 | $87,302 | $125,000 | $0 | $212,302 | $142,302 |
| 2008 | $87,572 | $126,019 | $0 | $213,591 | $143,591 |
| 2007 | $89,881 | $125,000 | $0 | $214,881 | $214,881 |
Deed and Sales History
| 1 | 10/29/2019 | WD | Warranty Deed | MOUW, NATHANIEL | RIVERA, JAKE | | | $315,000.00 | 40892 | 4474420 |
| 2 | 03/02/2016 | WD | Warranty Deed | DEMOOR, MARGUERITE FAY | MOUW, NATHANIEL | | | $225,000.00 | 23380 | 4395178 |
| 3 | 10/16/2008 | OTHER | Other - Misc. Documents | SCALF, MARGUERITE FAY | DEMOOR, MARGUERITE FAY | | | $0.00 | 80966 | 0 |
| 4 | 05/11/2007 | DECREE | Divorce Decree/Legal Separation | SCALF, DONALD R | SCALF, MARGUERITE FAY | | | $0.00 | 71556 | 4201724 |
| 5 | 03/29/1999 | WD | Warranty Deed | KIEFER, TODD A | SCALF, DONALD R | | | $87,500.00 | 91228 | 99008081 |
| 6 | 02/01/1991 | WD | Warranty Deed | ROGERS, EUGENE | KIEFER, TODD A | | | $81,000.00 | 10641 | 91002916 |
| 7 | 08/01/1985 | REC | Real Estate Contract | VETERANS, ADMINISTRATION | ROGERS, EUGENE | | | $45,000.00 | 52303 | 85009048 |
| 8 | 05/01/1982 | TRUSTEED | Trustee's Deed | BONEY, GORDON C | VETERANS, ADMINISTRATION | | | $0.00 | 21326 | 397011 |
| 9 | 03/01/1980 | TRUSTEED | Trustee's Deed | SILVERS, DAN M | BONEY, GORDON C | | | $52,000.00 | 979 | 366681 |
| 10 | 09/01/1979 | EZ | Easement | HARPHAM, ERNEST C | SILVERS, DAN M | | | $44,500.00 | 94656 | 359085 |
| 11 | 07/01/1979 | CD | DNU - Correction Deed | ALPETER, WILLIAM C | HARPHAM, ERNEST C | | | $0.00 | 938100 | 3566850 |
| 12 | 07/01/1979 | EXECUTORD | Executor Deed | LEWIS, A W | ALPETER, WILLIAM C | | | $37,000.00 | 938110 | 3566860 |
| 13 | 01/01/1900 | OTHER | Other - Misc. Documents | Unknown | LEWIS, A W | | | $0.00 | 0 | 0 |
Payout Agreement
| No payout information available.. |