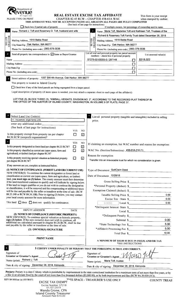
Property
Account |
| Property ID: | 404627 | Abbreviated Legal Description: | SUNSET TERR E100' OF W130' LOT 4 BLK F |
| Geographic ID: | S8270-00-0F004-2 | Agent Code: | |
| Type: | Real | | |
| Tax Area: | 300 - APPRAISER-Cpvl Schl Dist, in Cpvl | Land Use Code | 11 |
| Open Space: | N | DFL | N |
| Historic Property: | N | Remodel Property: | N |
| Multi-Family Redevelopment: | N | | |
| Township: | | Section: | |
| Range: | |
Location |
| Address: | 639 NE OTIS ST COUPEVILLE, WA 98239 | Mapsco: | |
| Neighborhood: | Cycle 2 | Map ID: | 179 |
| Neighborhood CD: | 2 |
Owner |
| Name: | AMERINE, DENVER | Owner ID: | 291233 |
| Mailing Address: | MARGEAUX AMERINE 639 NE OTIS ST COUPEVILLE, WA 98239 | % Ownership: | 100.0000000000% |
| | | Exemptions: | |
Taxes and Assessment Details
Values
| (+) Improvement Homesite Value: | + | $0 | |
| (+) Improvement Non-Homesite Value: | + | $290,617 | |
| (+) Land Homesite Value: | + | $0 | |
| (+) Land Non-Homesite Value: | + | $270,000 | |
| (+) Curr Use (HS): | + | $0 | $0 |
| (+) Curr Use (NHS): | + | $0 | $0 |
| | | -------------------------- | |
| (=) Market Value: | = | $560,617 | |
| (–) Productivity Loss: | – | $0 | |
| | | -------------------------- | |
| (=) Subtotal: | = | $560,617 | |
| (+) Senior Appraised Value: | + | $0 | |
| (+) Non-Senior Appraised Value: | + | $560,617 | |
| | | -------------------------- | |
| (=) Total Appraised Value: | = | $560,617 | |
| (–) Senior Exemption Loss: | – | $0 | |
| (–) Exemption Loss: | – | $0 | |
| | | -------------------------- | |
| (=) Taxable Value: | = | $560,617 | |
Taxing Jurisdiction
| Owner: | AMERINE, DENVER | | |
| % Ownership: | 100.0000000000% | | |
| Total Value: | $560,617 | | |
| Tax Area: | 300 - APPRAISER-Cpvl Schl Dist, in Cpvl |
| CF | Conservation Futures | 0.0316035091 | $560,617 | $560,617 | $17.72 | | |
| CEM2 | Cemetery #2 | 0.0095056933 | $560,617 | $560,617 | $5.33 | | |
| COUP | City: Town of Coupeville | 0.8426414490 | $560,617 | $560,617 | $472.40 | | |
| FIRE5 | Fire & Rescue Dist #5 C Whidbey GEN | 1.2008080668 | $560,617 | $560,617 | $673.19 | | |
| FIRE5BOND | Fire & Rescue Dist #5 C Whidbey BOND | 0.1400090713 | $560,617 | $560,617 | $78.49 | | |
| HOBOND | Hospital BOND | 0.1910887512 | $560,617 | $560,617 | $107.13 | | |
| HOGEN | Hospital GEN | 0.3902502903 | $560,617 | $560,617 | $218.78 | | |
| CE | County Current Expense | 0.3708482477 | $560,617 | $560,617 | $207.90 | | |
| ISLANDEMS | Hospital GEN (EMS) | 0.5000000000 | $560,617 | $560,617 | $280.31 | | |
| LIB | Library Sno-Isle GEN | 0.3153421757 | $560,617 | $560,617 | $176.79 | | |
| LIBCAP | Library Sno-Isle BOND (Cap Fac Imp Area) | 0.0543427938 | $560,617 | $560,617 | $30.47 | | |
| POCOUP | Port of Coupeville GEN | 0.1093371703 | $560,617 | $560,617 | $61.30 | | |
| POCOUPIDD | Port of Coupeville IDD | 0.3409740022 | $560,617 | $560,617 | $191.16 | | |
| COUPSDTECH | School 204 CP (TECH) | 0.7545480007 | $560,617 | $560,617 | $423.01 | | |
| SCH204MO | School 204 Enrichment | 0.6716186034 | $560,617 | $560,617 | $376.52 | | |
| ST | State School | 1.3035497053 | $560,617 | $560,617 | $730.79 | | |
| ST2 | State School Part 2 | 0.8169543533 | $560,617 | $560,617 | $458.00 | | |
| | Total Tax Rate: | 8.0434218834 | | | | | |
| | | | | Taxes w/Current Exemptions: | $4,509.29 | | |
| | | | | Taxes w/o Exemptions: | $4,509.29 | | |
Improvement / Building
| Improvement #1: | RESIDENTIAL | State Code: | Y | 1377.0 sqft | Value: | $290,617 |
| Bathrooms: | 2 | Bedrooms: | 3 | | Ceiling: | DRYWALL PAINTED | Cooling: | HEAT PUMP/CONV/V | | Exterior Wall/Cover: | WOOD SIDING | Floor Covering: | HARDWOOD 100% | | Floor Structure: | WOOD W/SUBFLOOR | Foundation: | CONCRETE | | Interior Finish: | DRYWALL PAINT | Plumbing Fixture Cnt: | 10 | | Roof Slope: | 4" IN 12" | Roof Structure/Cover: | CJ ASPHALT |
|
| | Type | Description | Class CD | Sub Class CD | Year Built | Area |
| | BAS | BASE/MAIN FLOOR | 3 | 0 | 1957 | 1377.0 |
| | AGR | ATTACHED GARAGE | 3 | 0 | 1957 | 336.0 |
| | OWR | OPEN WOOD PORCH W/STEPS/ROOF | 3 | 0 | 1957 | 126.0 |
| | OP3 | OPEN PORCH W/ROOF | 3 | 0 | 1957 | 108.0 |
| | OWP | OPEN WOOD PORCH W/STEPS | 3 | 0 | 1957 | 90.0 |
| | UTY | STORAGE/UTILITY | 3 | 0 | 1957 | 128.0 |
Sketch
| No sketches available for this property. |
Property Image
Land
| 1 | 13 | SQ (06001-08000) | 0.1837 | 8001.97 | 0.00 | 0.00 | 1.00 | $270,000 | $0 |
Roll Value History
| 2026 | N/A | N/A | N/A | N/A | N/A |
| 2025 | $290,617 | $270,000 | $0 | $560,617 | $560,617 |
| 2024 | $283,754 | $260,000 | $0 | $543,754 | $543,754 |
| 2023 | $287,379 | $240,000 | $0 | $527,379 | $527,379 |
| 2022 | $263,513 | $230,000 | $0 | $493,513 | $493,513 |
| 2021 | $231,992 | $180,000 | $0 | $411,992 | $411,992 |
| 2020 | $225,926 | $160,000 | $0 | $385,926 | $385,926 |
| 2019 | $162,766 | $200,000 | $0 | $362,766 | $362,766 |
| 2018 | $151,948 | $180,000 | $0 | $331,948 | $331,948 |
| 2017 | $152,879 | $155,000 | $0 | $307,879 | $307,879 |
| 2016 | $112,630 | $115,000 | $0 | $227,630 | $227,630 |
| 2015 | $114,418 | $90,000 | $0 | $204,418 | $204,418 |
| 2014 | $116,207 | $85,000 | $0 | $201,207 | $201,207 |
| 2013 | $117,994 | $85,000 | $0 | $202,994 | $202,994 |
| 2012 | $112,242 | $90,950 | $0 | $203,192 | $203,192 |
| 2011 | $114,052 | $107,000 | $0 | $221,052 | $221,052 |
| 2010 | $129,063 | $107,000 | $0 | $236,063 | $236,063 |
| 2009 | $134,167 | $123,846 | $0 | $258,013 | $258,013 |
| 2008 | $134,973 | $145,000 | $0 | $279,973 | $279,973 |
| 2007 | $132,569 | $133,000 | $0 | $265,569 | $265,569 |
Deed and Sales History
| 1 | 08/05/2019 | QCD | Quit Claim Deed | AMERINE, DENVER | AMERINE, DENVER | | | $0.00 | 39729 | 4468769 |
| 2 | 04/23/2019 | QCD | Quit Claim Deed | AMERINE, MARGEAUX | AMERINE, DENVER | | | $0.00 | 38417 | 4462995 |
| 3 | 04/23/2019 | WD | Warranty Deed | LEPKOWSKI, ROLAND F | AMERINE, DENVER | | | $385,000.00 | 38415 | 4462994 |
| 4 | 02/28/2017 | WD | Warranty Deed | EDMUNDS, SCOTT R | LEPKOWSKI, ROLAND F | | | $320,000.00 | 28290 | 4418154 |
| 5 | 01/02/2015 | WD | Warranty Deed | BANOG JTWROS, THOMAS | EDMUNDS, SCOTT R | | | $205,000.00 | 18145 | 4371420 |
| 6 | 07/26/2010 | QCD | Quit Claim Deed | JEANNERET, CLARENCA R | BANOG JTWROS, THOMAS | | | | 2029 | 4278914 |
| 7 | 07/13/2006 | WD | Warranty Deed | HAYES, RONALD L | JEANNERET, CLARENCA R | | | $240,000.00 | 63085 | 4176073 |
| 8 | 07/01/1996 | WD | Warranty Deed | RHYNE, WILLIAM J | HAYES, RONALD L | | | $130,000.00 | 62695 | 96013237 |
| 9 | 11/01/1987 | QCD | Quit Claim Deed | RHYNE, MICHAEL X | RHYNE, WILLIAM J | | | $0.00 | 73533 | 87015401 |
| 10 | 07/01/1987 | DECREE | Divorce Decree/Legal Separation | RHYNE, MICHAEL X | RHYNE, MICHAEL X | | | $0.00 | 72165 | 87009775 |
| 11 | 06/01/1986 | WD | Warranty Deed | JOHNSON, MELVIN L | RHYNE, MICHAEL X | | | $47,500.00 | 61605 | 86007590 |
Payout Agreement
| No payout information available.. |