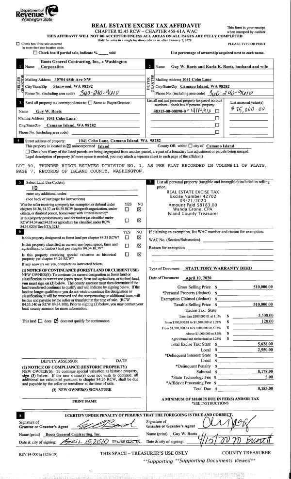
Property
Account |
| Property ID: | 404912 | Abbreviated Legal Description: | SUNSET VW LOT 6 TGW: A STRIP OF LAND IN GL 1 31-30-2E LY IN FRONT OF LOT 6 SUNSET VW TR N & SLN SAME AS N & SLN OF SD LOT 6 EXT WLY WLN TOP OF BANK |
| Geographic ID: | S8275-00-00006-0 | Agent Code: | |
| Type: | Real | | |
| Tax Area: | 340 - APPRAISER-Cpvl Schl Dist, Special Dist, improved & less than 1 acre | Land Use Code | 11 |
| Open Space: | N | DFL | N |
| Historic Property: | N | Remodel Property: | N |
| Multi-Family Redevelopment: | N | | |
| Township: | | Section: | |
| Range: | |
Location |
| Address: | 4650 RHODIE LN FREELAND, WA 98249 | Mapsco: | |
| Neighborhood: | Cycle 3 | Map ID: | 431 |
| Neighborhood CD: | 3 |
Owner |
| Name: | NUNN, REMMEL T | Owner ID: | 298729 |
| Mailing Address: | CATHERINE B NUNN 4650 RHODIE LN FREELAND, WA 98249 | % Ownership: | 100.0000000000% |
| | | Exemptions: | |
Taxes and Assessment Details
Values
| (+) Improvement Homesite Value: | + | $0 | |
| (+) Improvement Non-Homesite Value: | + | $467,536 | |
| (+) Land Homesite Value: | + | $0 | |
| (+) Land Non-Homesite Value: | + | $462,000 | |
| (+) Curr Use (HS): | + | $0 | $0 |
| (+) Curr Use (NHS): | + | $0 | $0 |
| | | -------------------------- | |
| (=) Market Value: | = | $929,536 | |
| (–) Productivity Loss: | – | $0 | |
| | | -------------------------- | |
| (=) Subtotal: | = | $929,536 | |
| (+) Senior Appraised Value: | + | $0 | |
| (+) Non-Senior Appraised Value: | + | $929,536 | |
| | | -------------------------- | |
| (=) Total Appraised Value: | = | $929,536 | |
| (–) Senior Exemption Loss: | – | $0 | |
| (–) Exemption Loss: | – | $0 | |
| | | -------------------------- | |
| (=) Taxable Value: | = | $929,536 | |
Taxing Jurisdiction
| Owner: | NUNN, REMMEL T | | |
| % Ownership: | 100.0000000000% | | |
| Total Value: | $929,536 | | |
| Tax Area: | 340 - APPRAISER-Cpvl Schl Dist, Special Dist, improved & less than 1 acre |
| CF | Conservation Futures | 0.0316035091 | $929,536 | $929,536 | $29.38 | | |
| CEM2 | Cemetery #2 | 0.0095056933 | $929,536 | $929,536 | $8.84 | | |
| FIRE5 | Fire & Rescue Dist #5 C Whidbey GEN | 1.2008080668 | $929,536 | $929,536 | $1,116.19 | | |
| FIRE5BOND | Fire & Rescue Dist #5 C Whidbey BOND | 0.1400090713 | $929,536 | $929,536 | $130.14 | | |
| HOBOND | Hospital BOND | 0.1910887512 | $929,536 | $929,536 | $177.62 | | |
| HOGEN | Hospital GEN | 0.3902502903 | $929,536 | $929,536 | $362.75 | | |
| CE | County Current Expense | 0.3708482477 | $929,536 | $929,536 | $344.72 | | |
| CR | County Roads | 0.4584763726 | $929,536 | $929,536 | $426.17 | | |
| ISLANDEMS | Hospital GEN (EMS) | 0.5000000000 | $929,536 | $929,536 | $464.77 | | |
| LIB | Library Sno-Isle GEN | 0.3153421757 | $929,536 | $929,536 | $293.12 | | |
| LIBCAP | Library Sno-Isle BOND (Cap Fac Imp Area) | 0.0543427938 | $929,536 | $929,536 | $50.51 | | |
| POCOUP | Port of Coupeville GEN | 0.1093371703 | $929,536 | $929,536 | $101.63 | | |
| POCOUPIDD | Port of Coupeville IDD | 0.3409740022 | $929,536 | $929,536 | $316.95 | | |
| COUPSDTECH | School 204 CP (TECH) | 0.7545480007 | $929,536 | $929,536 | $701.38 | | |
| SCH204MO | School 204 Enrichment | 0.6716186034 | $929,536 | $929,536 | $624.29 | | |
| ST | State School | 1.3035497053 | $929,536 | $929,536 | $1,211.70 | | |
| ST2 | State School Part 2 | 0.8169543533 | $929,536 | $929,536 | $759.39 | | |
| | Total Tax Rate: | 7.6592568070 | | | | | |
| | | | | Taxes w/Current Exemptions: | $7,119.55 | | |
| | | | | Taxes w/o Exemptions: | $7,119.55 | | |
Improvement / Building
| Improvement #1: | RESIDENTIAL | State Code: | Y | 2844.8 sqft | Value: | $467,536 |
| Bathrooms: | 2 | Bedrooms: | 2 | | Ceiling: | DRYWALL PAINTED | Exterior Wall/Cover: | WOOD SIDING | | Floor Covering: | HARDWOOD/CARP 60-40 | Floor Structure: | WOOD W/SUBFLOOR | | Foundation: | CONCRETE | Heating: | FHA ELECTRIC | | Interior Finish: | DRYWALL PAINT | Plumbing Fixture Cnt: | 12 | | Roof Slope: | 6" IN 12" | Roof Structure/Cover: | BEAM ALUMINUM HEAVY |
|
| | Type | Description | Class CD | Sub Class CD | Year Built | Area |
| | BAS | BASE/MAIN FLOOR | 4 | 0 | 1986 | 1646.8 |
| | AGR | ATTACHED GARAGE | 4 | 0 | 1986 | 744.0 |
| | UPS | UPPER STORY | 4 | 0 | 1986 | 720.0 |
| | OWP | OPEN WOOD PORCH W/STEPS | 4 | 0 | 1986 | 336.0 |
| | OWC | OPEN WOOD PORCH W/STEPS/ROOF/C | 4 | 0 | 1986 | 84.5 |
| | LOF | LOFT | 4 | 0 | 1986 | 478.0 |
Sketch
Property Image
Land
| 1 | HB | HIGH BLUFF | 0.7000 | 30492.00 | 100.00 | 0.00 | 1.00 | $462,000 | $0 |
Roll Value History
| 2026 | N/A | N/A | N/A | N/A | N/A |
| 2025 | $467,536 | $462,000 | $0 | $929,536 | $929,536 |
| 2024 | $473,750 | $462,000 | $0 | $935,750 | $935,750 |
| 2023 | $479,963 | $440,000 | $0 | $919,963 | $919,963 |
| 2022 | $440,354 | $420,000 | $0 | $860,354 | $860,354 |
| 2021 | $387,814 | $350,000 | $0 | $737,814 | $737,814 |
| 2020 | $378,964 | $350,000 | $0 | $728,964 | $728,964 |
| 2019 | $296,217 | $500,000 | $0 | $796,217 | $796,217 |
| 2018 | $297,128 | $350,000 | $0 | $647,128 | $647,128 |
| 2017 | $231,363 | $250,000 | $0 | $481,363 | $481,363 |
| 2016 | $234,767 | $200,000 | $0 | $434,767 | $434,767 |
| 2015 | $238,169 | $350,000 | $0 | $588,169 | $588,169 |
| 2014 | $241,569 | $350,000 | $0 | $591,569 | $591,569 |
| 2013 | $244,973 | $293,078 | $0 | $538,051 | $538,051 |
| 2012 | $248,375 | $293,078 | $0 | $541,453 | $541,453 |
| 2011 | $251,778 | $293,078 | $0 | $544,856 | $544,856 |
| 2010 | $293,203 | $293,078 | $0 | $586,281 | $586,281 |
| 2009 | $306,215 | $390,771 | $0 | $696,986 | $696,986 |
| 2008 | $310,303 | $390,771 | $0 | $701,074 | $701,074 |
| 2007 | $314,387 | $247,324 | $0 | $561,711 | $561,711 |
Deed and Sales History
| 1 | 03/25/2021 | QCD | Quit Claim Deed | NUNN, REMMEL T | NUNN, REMMEL T | | | $0.00 | 47580 | 4515170 |
| 2 | 05/27/2017 | WD | Warranty Deed | BOWERS, BRET A / CONNIE W | NUNN, REMMEL T | | | $769,000.00 | 29510 | 4423383 |
| 3 | 04/03/1998 | WD | Warranty Deed | ANDERSON, D E | BOWERS, BRET A/CONNIE M | | | $230,000.00 | 81296 | 98007035 |
| 4 | 03/01/1985 | QCD | Quit Claim Deed | JOHNSON, LARRY A | ANDERSON, D E | | | $0.00 | 50739 | 85003110 |
| 5 | 03/01/1985 | PACD | Purchaser's Assignment | JOHNSON, LARRY A | JOHNSON, LARRY A | | | $30,500.00 | 50740 | 85003111 |
| 6 | 03/01/1985 | PACD | Purchaser's Assignment | ANDERSON, D E | JOHNSON, LARRY A | | | $0.00 | 50981 | 85004114 |
| 7 | 01/01/1900 | OTHER | Other - Misc. Documents | Unknown | BOWERS, BRET A | | | $0.00 | 81296 | 98007035 |
| 8 | 01/01/1900 | OTHER | Other - Misc. Documents | BOWERS, BRET A | ANDERSON, D E | | | $0.00 | 0 | 0 |
Payout Agreement
| No payout information available.. |