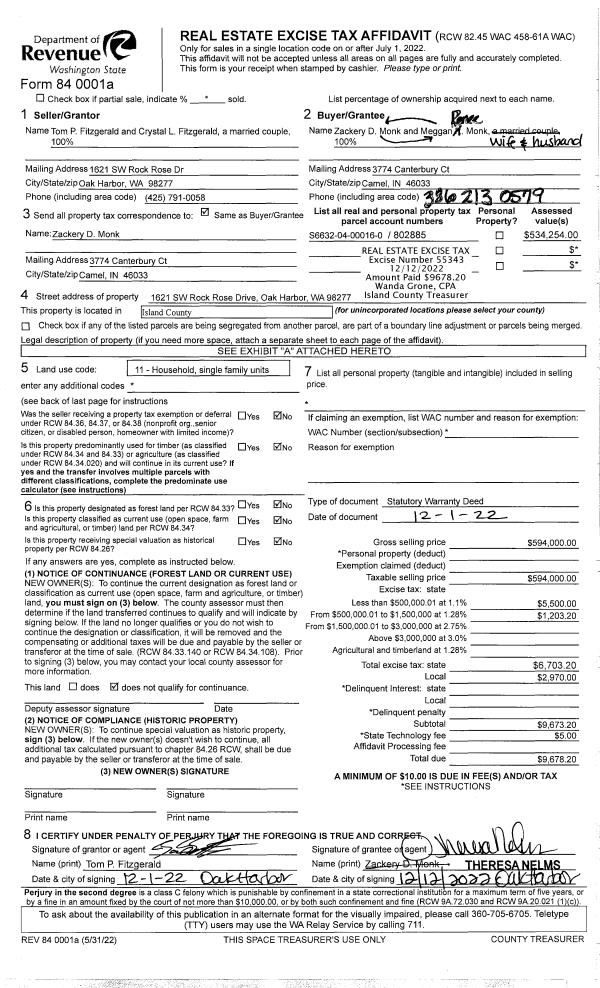
Property
Account |
| Property ID: | 405412 | Abbreviated Legal Description: | SUN VISTA LOT 20 BLK 3 |
| Geographic ID: | S8280-00-03020-0 | Agent Code: | |
| Type: | Real | | |
| Tax Area: | 710 - APPRAISER-S Whid Schl Dist, outside Langley, improved & 1 acre or less | Land Use Code | 11 |
| Open Space: | N | DFL | N |
| Historic Property: | N | Remodel Property: | N |
| Multi-Family Redevelopment: | N | | |
| Township: | | Section: | |
| Range: | |
Location |
| Address: | 2761 SUN VISTA CIR CLINTON, WA 98236 | Mapsco: | |
| Neighborhood: | Cycle 4 | Map ID: | 790 |
| Neighborhood CD: | 4 |
Owner |
| Name: | BOATMAN-GUILLAN, MARIA | Owner ID: | 305366 |
| Mailing Address: | 2761 SUN VISTA CIRCLE CLINTON, WA 98236 | % Ownership: | 100.0000000000% |
| | | Exemptions: | |
Taxes and Assessment Details
Values
| (+) Improvement Homesite Value: | + | $0 | |
| (+) Improvement Non-Homesite Value: | + | $245,046 | |
| (+) Land Homesite Value: | + | $0 | |
| (+) Land Non-Homesite Value: | + | $300,000 | |
| (+) Curr Use (HS): | + | $0 | $0 |
| (+) Curr Use (NHS): | + | $0 | $0 |
| | | -------------------------- | |
| (=) Market Value: | = | $545,046 | |
| (–) Productivity Loss: | – | $0 | |
| | | -------------------------- | |
| (=) Subtotal: | = | $545,046 | |
| (+) Senior Appraised Value: | + | $0 | |
| (+) Non-Senior Appraised Value: | + | $545,046 | |
| | | -------------------------- | |
| (=) Total Appraised Value: | = | $545,046 | |
| (–) Senior Exemption Loss: | – | $0 | |
| (–) Exemption Loss: | – | $0 | |
| | | -------------------------- | |
| (=) Taxable Value: | = | $545,046 | |
Taxing Jurisdiction
| Owner: | BOATMAN-GUILLAN, MARIA | | |
| % Ownership: | 100.0000000000% | | |
| Total Value: | $545,046 | | |
| Tax Area: | 710 - APPRAISER-S Whid Schl Dist, outside Langley, improved & 1 acre or less |
| CF | Conservation Futures | 0.0316035091 | $545,046 | $545,046 | $17.23 | | |
| FIRE3 | Fire & Rescue Dist #3 S Whidbey GEN | 1.2004855531 | $545,046 | $545,046 | $654.32 | | |
| HOBOND | Hospital BOND | 0.1910887512 | $545,046 | $545,046 | $104.15 | | |
| HOGEN | Hospital GEN | 0.3902502903 | $545,046 | $545,046 | $212.70 | | |
| CE | County Current Expense | 0.3708482477 | $545,046 | $545,046 | $202.13 | | |
| CR | County Roads | 0.4584763726 | $545,046 | $545,046 | $249.89 | | |
| ISLANDEMS | Hospital GEN (EMS) | 0.5000000000 | $545,046 | $545,046 | $272.52 | | |
| LIB | Library Sno-Isle GEN | 0.3153421757 | $545,046 | $545,046 | $171.88 | | |
| PORTWHID | Port of S Whidbey GEN | 0.1094540357 | $545,046 | $545,046 | $59.66 | | |
| SCH206BOND | School 206 BOND | 0.3161759235 | $545,046 | $545,046 | $172.33 | | |
| SCH206MO | School 206 Enrichment | 0.4547169547 | $545,046 | $545,046 | $247.84 | | |
| ST | State School | 1.3035497053 | $545,046 | $545,046 | $710.49 | | |
| ST2 | State School Part 2 | 0.8169543533 | $545,046 | $545,046 | $445.28 | | |
| SWHIDPRBD | P & R S Whidbey BOND | 0.0152817568 | $545,046 | $545,046 | $8.33 | | |
| SWHIDPRBD2 | P & R S Whidbey BOND2 | 0.0138911264 | $545,046 | $545,046 | $7.57 | | |
| SWHIDPRMT | P & R S Whidbey GEN | 0.2053334452 | $545,046 | $545,046 | $111.92 | | |
| | Total Tax Rate: | 6.6934522006 | | | | | |
| | | | | Taxes w/Current Exemptions: | $3,648.24 | | |
| | | | | Taxes w/o Exemptions: | $3,648.24 | | |
Improvement / Building
| Improvement #1: | RESIDENTIAL | State Code: | Y | 1375.0 sqft | Value: | $245,046 |
| Bathrooms: | 2 | Bedrooms: | 3 | | Ceiling: | DRYWALL PAINTED | Cooling: | HEAT PUMP/CONV/V | | Exterior Wall/Cover: | PLY/HARDBOARD T-111 | Floor Covering: | HARDWOOD 100% | | Floor Structure: | WOOD W/SUBFLOOR | Foundation: | CONCRETE | | Interior Finish: | DRYWALL PAINT | Plumbing Fixture Cnt: | 9 | | Roof Slope: | 4" IN 12" | Roof Structure/Cover: | CJ ASPHALT |
|
| | Type | Description | Class CD | Sub Class CD | Year Built | Area |
| | BAS | BASE/MAIN FLOOR | 3 | 0 | 1980 | 1375.0 |
| | OP4 | OPEN PORCH W/CEILING-ROOF | 3 | 0 | 1980 | 25.0 |
| | AGR | ATTACHED GARAGE | 3 | 0 | 1980 | 440.0 |
Sketch
Property Image
Land
| 1 | 14 | SQ (08001-12000) | 0.0000 | 0.00 | 0.00 | 0.00 | 1.00 | $300,000 | $0 |
Roll Value History
| 2026 | N/A | N/A | N/A | N/A | N/A |
| 2025 | $245,046 | $300,000 | $0 | $545,046 | $545,046 |
| 2024 | $248,138 | $300,000 | $0 | $548,138 | $548,138 |
| 2023 | $251,230 | $280,000 | $0 | $531,230 | $531,230 |
| 2022 | $201,732 | $240,000 | $0 | $441,732 | $441,732 |
| 2021 | $177,653 | $140,000 | $0 | $317,653 | $317,653 |
| 2020 | $151,495 | $140,000 | $0 | $291,495 | $291,495 |
| 2019 | $108,180 | $180,000 | $0 | $288,180 | $288,180 |
| 2018 | $108,559 | $140,000 | $0 | $248,559 | $248,559 |
| 2017 | $109,319 | $110,000 | $0 | $219,319 | $219,319 |
| 2016 | $110,837 | $100,000 | $0 | $210,837 | $210,837 |
| 2015 | $112,355 | $100,000 | $0 | $212,355 | $212,355 |
| 2014 | $104,339 | $97,750 | $0 | $202,089 | $202,089 |
| 2013 | $105,896 | $97,750 | $0 | $203,646 | $203,646 |
| 2012 | $107,454 | $97,750 | $0 | $205,204 | $205,204 |
| 2011 | $109,012 | $115,000 | $0 | $224,012 | $224,012 |
| 2010 | $112,175 | $115,000 | $0 | $227,175 | $227,175 |
| 2009 | $117,184 | $125,000 | $0 | $242,184 | $242,184 |
| 2008 | $123,538 | $139,500 | $0 | $263,038 | $263,038 |
| 2007 | $125,126 | $106,750 | $0 | $231,876 | $231,876 |
Deed and Sales History
| 1 | 08/04/2022 | WD | Warranty Deed | MACDONALD, NANCY A | BOATMAN-GUILLAN, MARIA | | | $546,000.00 | 54060 | 4549276 |
| 2 | 11/01/1994 | QCD | Quit Claim Deed | MACDONALD, NANCY A | MACDONALD, NANCY A | | | $0.00 | 45113 | 94026069 |
| 3 | 08/01/1994 | DECREE | Divorce Decree/Legal Separation | MACDONALD, EDWIN R | MACDONALD, NANCY A | | | $0.00 | 43457 | 94018360 |
| 4 | 07/01/1992 | QCD | Quit Claim Deed | HUGHART, VERNON K | MACDONALD, EDWIN R | | | $0.00 | 23029 | 92014707 |
| 5 | 05/01/1981 | TRUSTEED | Trustee's Deed | COLLINS, JOSEPH | HUGHART, VERNON K | | | $59,900.00 | 11578 | 383363 |
| 6 | 01/01/1900 | OTHER | Other - Misc. Documents | Unknown | COLLINS, JOSEPH | | | $0.00 | 0 | 0 |
Payout Agreement
| No payout information available.. |