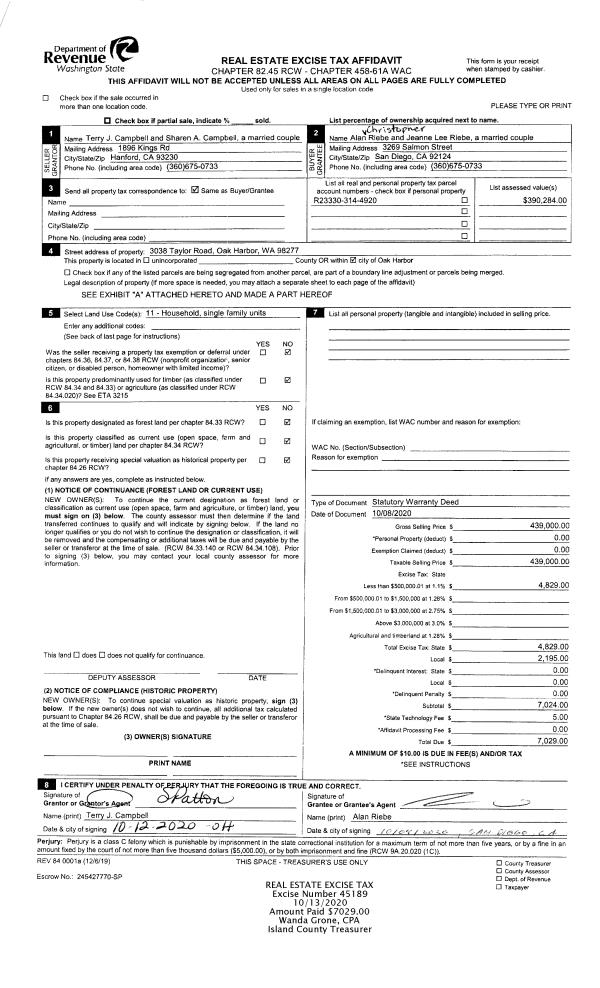
Property
Account |
| Property ID: | 405430 | Abbreviated Legal Description: | SUN VISTA LOT 22 BLK 3 |
| Geographic ID: | S8280-00-03022-0 | Agent Code: | |
| Type: | Real | | |
| Tax Area: | 710 - APPRAISER-S Whid Schl Dist, outside Langley, improved & 1 acre or less | Land Use Code | 11 |
| Open Space: | N | DFL | N |
| Historic Property: | N | Remodel Property: | N |
| Multi-Family Redevelopment: | N | | |
| Township: | | Section: | |
| Range: | |
Location |
| Address: | 2757 SUN VISTA CIR CLINTON, WA 98236 | Mapsco: | |
| Neighborhood: | Cycle 4 | Map ID: | 790 |
| Neighborhood CD: | 4 |
Owner |
| Name: | ELLIOTT, ALICIA | Owner ID: | 275614 |
| Mailing Address: | 2757 SUN VISTA CIRCLE CLINTON, WA 98236 | % Ownership: | 100.0000000000% |
| | | Exemptions: | |
Taxes and Assessment Details
Values
| (+) Improvement Homesite Value: | + | $0 | |
| (+) Improvement Non-Homesite Value: | + | $244,014 | |
| (+) Land Homesite Value: | + | $0 | |
| (+) Land Non-Homesite Value: | + | $300,000 | |
| (+) Curr Use (HS): | + | $0 | $0 |
| (+) Curr Use (NHS): | + | $0 | $0 |
| | | -------------------------- | |
| (=) Market Value: | = | $544,014 | |
| (–) Productivity Loss: | – | $0 | |
| | | -------------------------- | |
| (=) Subtotal: | = | $544,014 | |
| (+) Senior Appraised Value: | + | $0 | |
| (+) Non-Senior Appraised Value: | + | $544,014 | |
| | | -------------------------- | |
| (=) Total Appraised Value: | = | $544,014 | |
| (–) Senior Exemption Loss: | – | $0 | |
| (–) Exemption Loss: | – | $0 | |
| | | -------------------------- | |
| (=) Taxable Value: | = | $544,014 | |
Taxing Jurisdiction
| Owner: | ELLIOTT, ALICIA | | |
| % Ownership: | 100.0000000000% | | |
| Total Value: | $544,014 | | |
| Tax Area: | 710 - APPRAISER-S Whid Schl Dist, outside Langley, improved & 1 acre or less |
| CF | Conservation Futures | 0.0316035091 | $544,014 | $544,014 | $17.19 | | |
| FIRE3 | Fire & Rescue Dist #3 S Whidbey GEN | 1.2004855531 | $544,014 | $544,014 | $653.08 | | |
| HOBOND | Hospital BOND | 0.1910887512 | $544,014 | $544,014 | $103.95 | | |
| HOGEN | Hospital GEN | 0.3902502903 | $544,014 | $544,014 | $212.30 | | |
| CE | County Current Expense | 0.3708482477 | $544,014 | $544,014 | $201.75 | | |
| CR | County Roads | 0.4584763726 | $544,014 | $544,014 | $249.42 | | |
| ISLANDEMS | Hospital GEN (EMS) | 0.5000000000 | $544,014 | $544,014 | $272.01 | | |
| LIB | Library Sno-Isle GEN | 0.3153421757 | $544,014 | $544,014 | $171.55 | | |
| PORTWHID | Port of S Whidbey GEN | 0.1094540357 | $544,014 | $544,014 | $59.54 | | |
| SCH206BOND | School 206 BOND | 0.3161759235 | $544,014 | $544,014 | $172.00 | | |
| SCH206MO | School 206 Enrichment | 0.4547169547 | $544,014 | $544,014 | $247.37 | | |
| ST | State School | 1.3035497053 | $544,014 | $544,014 | $709.15 | | |
| ST2 | State School Part 2 | 0.8169543533 | $544,014 | $544,014 | $444.43 | | |
| SWHIDPRBD | P & R S Whidbey BOND | 0.0152817568 | $544,014 | $544,014 | $8.31 | | |
| SWHIDPRBD2 | P & R S Whidbey BOND2 | 0.0138911264 | $544,014 | $544,014 | $7.56 | | |
| SWHIDPRMT | P & R S Whidbey GEN | 0.2053334452 | $544,014 | $544,014 | $111.70 | | |
| | Total Tax Rate: | 6.6934522006 | | | | | |
| | | | | Taxes w/Current Exemptions: | $3,641.31 | | |
| | | | | Taxes w/o Exemptions: | $3,641.31 | | |
Improvement / Building
| Improvement #1: | RESIDENTIAL | State Code: | Y | 1092.0 sqft | Value: | $244,014 |
| Bathrooms: | 2 | Bedrooms: | 2 | | Ceiling: | DRYWALL PAINTED | Cooling: | HEAT PUMP/CONV/V | | Exterior Wall/Cover: | PLY/HARDBOARD T-111 | Floor Covering: | HARDWOOD/CARP 60-40 | | Floor Structure: | WOOD W/SUBFLOOR | Foundation: | CONCRETE | | Interior Finish: | DRYWALL PAINT | Plumbing Fixture Cnt: | 9 | | Roof Slope: | 4" IN 12" | Roof Structure/Cover: | CJ ALUMINIUM HEAVY |
|
| | Type | Description | Class CD | Sub Class CD | Year Built | Area |
| | BAS | BASE/MAIN FLOOR | 3 | 0 | 1972 | 1092.0 |
| | AGR | ATTACHED GARAGE | 3 | 0 | 1972 | 275.0 |
| | OWP | OPEN WOOD PORCH W/STEPS | 3 | 0 | 1972 | 691.4 |
| | ENP | ENCLOSED PORCH | 3 | 0 | 1972 | 84.0 |
Sketch
Property Image
Land
| 1 | 14 | SQ (08001-12000) | 0.0000 | 0.00 | 0.00 | 0.00 | 1.00 | $300,000 | $0 |
Roll Value History
| 2026 | N/A | N/A | N/A | N/A | N/A |
| 2025 | $244,014 | $300,000 | $0 | $544,014 | $544,014 |
| 2024 | $247,172 | $300,000 | $0 | $547,172 | $547,172 |
| 2023 | $250,331 | $280,000 | $0 | $530,331 | $530,331 |
| 2022 | $229,530 | $240,000 | $0 | $469,530 | $469,530 |
| 2021 | $202,078 | $140,000 | $0 | $342,078 | $342,078 |
| 2020 | $163,659 | $140,000 | $0 | $303,659 | $303,659 |
| 2019 | $115,988 | $180,000 | $0 | $295,988 | $295,988 |
| 2018 | $116,383 | $140,000 | $0 | $256,383 | $256,383 |
| 2017 | $117,172 | $110,000 | $0 | $227,172 | $227,172 |
| 2016 | $118,755 | $100,000 | $0 | $218,755 | $218,755 |
| 2015 | $120,339 | $100,000 | $0 | $220,339 | $220,339 |
| 2014 | $112,288 | $97,750 | $0 | $210,038 | $210,038 |
| 2013 | $113,872 | $97,750 | $0 | $211,622 | $211,622 |
| 2012 | $115,456 | $97,750 | $0 | $213,206 | $213,206 |
| 2011 | $117,039 | $115,000 | $0 | $232,039 | $232,039 |
| 2010 | $123,150 | $115,000 | $0 | $238,150 | $238,150 |
| 2009 | $127,017 | $125,000 | $0 | $252,017 | $252,017 |
| 2008 | $128,749 | $139,500 | $0 | $268,249 | $268,249 |
| 2007 | $130,502 | $106,750 | $0 | $237,252 | $237,252 |
Deed and Sales History
| 1 | 05/31/2016 | BARGSLD | Bargain And Sale Deed | FEDERAL HOME LOAN MORTGAGE CORPORATION | ELLIOTT, ALICIA | | | $0.00 | 24757 | 4401198 |
| 2 | 12/21/2015 | TRUSTEED | Trustee's Deed | LANCE, KATHY A | FEDERAL HOME LOAN MORTGAGE CORPORATION | | | $0.00 | 22631 | 4391622 |
| 3 | 04/26/2007 | WD | Warranty Deed | MESSAROS, DENNIS C | LANCE, KATHY A | | | $285,000.00 | 71404 | 4200805 |
| 4 | 10/26/1999 | WD | Warranty Deed | FOLEY, THOMAS S | MESSAROS, DENNIS C | | | $140,500.00 | 94516 | 99024915 |
| 5 | 10/01/1996 | WD | Warranty Deed | DEMPSTER, JAMES D | FOLEY, THOMAS S | | | $119,000.00 | 63919 | 96018952 |
| 6 | 03/01/1990 | QCD | Quit Claim Deed | DEMPSTER, JAMES D | DEMPSTER, JAMES D | | | $0.00 | 1680 | 90005430 |
| 7 | 07/01/1989 | WD | Warranty Deed | NOVITSKI, FRANCIS J | DEMPSTER, JAMES D | | | $80,000.00 | 92781 | 89009364 |
| 8 | 02/01/1989 | EXECUTORD | Executor Deed | NOVITSKI, MARY | NOVITSKI, FRANCIS J | | | $0.00 | 90689 | 89002411 |
| 9 | 12/01/1982 | WD | Warranty Deed | DEMPSTER, JAMES D | NOVITSKI, MARY | | | $68,000.00 | 22940 | 403497 |
| 10 | 01/01/1900 | OTHER | Other - Misc. Documents | Unknown | DEMPSTER, JAMES D | | | $0.00 | 0 | 0 |
Payout Agreement
| No payout information available.. |