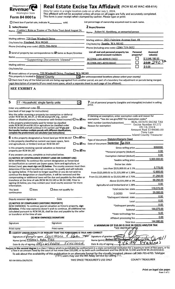
Property
Account |
| Property ID: | 405485 | Abbreviated Legal Description: | SUN VISTA LOT 3 BLK 4 |
| Geographic ID: | S8280-00-04003-0 | Agent Code: | |
| Type: | Real | | |
| Tax Area: | 710 - APPRAISER-S Whid Schl Dist, outside Langley, improved & 1 acre or less | Land Use Code | 11 |
| Open Space: | N | DFL | N |
| Historic Property: | N | Remodel Property: | N |
| Multi-Family Redevelopment: | N | | |
| Township: | | Section: | |
| Range: | |
Location |
| Address: | 2758 SUN VISTA CIR CLINTON, WA 98236 | Mapsco: | |
| Neighborhood: | Cycle 4 | Map ID: | 790 |
| Neighborhood CD: | 4 |
Owner |
| Name: | ANDERSON, DAWN MARIE | Owner ID: | 310673 |
| Mailing Address: | 2758 SUN VISTA CIR CLINTON, WA 98236 | % Ownership: | 100.0000000000% |
| | | Exemptions: | |
Taxes and Assessment Details
Values
| (+) Improvement Homesite Value: | + | $0 | |
| (+) Improvement Non-Homesite Value: | + | $216,422 | |
| (+) Land Homesite Value: | + | $0 | |
| (+) Land Non-Homesite Value: | + | $340,000 | |
| (+) Curr Use (HS): | + | $0 | $0 |
| (+) Curr Use (NHS): | + | $0 | $0 |
| | | -------------------------- | |
| (=) Market Value: | = | $556,422 | |
| (–) Productivity Loss: | – | $0 | |
| | | -------------------------- | |
| (=) Subtotal: | = | $556,422 | |
| (+) Senior Appraised Value: | + | $0 | |
| (+) Non-Senior Appraised Value: | + | $556,422 | |
| | | -------------------------- | |
| (=) Total Appraised Value: | = | $556,422 | |
| (–) Senior Exemption Loss: | – | $0 | |
| (–) Exemption Loss: | – | $0 | |
| | | -------------------------- | |
| (=) Taxable Value: | = | $556,422 | |
Taxing Jurisdiction
| Owner: | ANDERSON, DAWN MARIE | | |
| % Ownership: | 100.0000000000% | | |
| Total Value: | $556,422 | | |
| Tax Area: | 710 - APPRAISER-S Whid Schl Dist, outside Langley, improved & 1 acre or less |
| CF | Conservation Futures | 0.0316035091 | $556,422 | $556,422 | $17.58 | | |
| FIRE3 | Fire & Rescue Dist #3 S Whidbey GEN | 1.2004855531 | $556,422 | $556,422 | $667.98 | | |
| HOBOND | Hospital BOND | 0.1910887512 | $556,422 | $556,422 | $106.33 | | |
| HOGEN | Hospital GEN | 0.3902502903 | $556,422 | $556,422 | $217.14 | | |
| CE | County Current Expense | 0.3708482477 | $556,422 | $556,422 | $206.35 | | |
| CR | County Roads | 0.4584763726 | $556,422 | $556,422 | $255.11 | | |
| ISLANDEMS | Hospital GEN (EMS) | 0.5000000000 | $556,422 | $556,422 | $278.21 | | |
| LIB | Library Sno-Isle GEN | 0.3153421757 | $556,422 | $556,422 | $175.46 | | |
| PORTWHID | Port of S Whidbey GEN | 0.1094540357 | $556,422 | $556,422 | $60.90 | | |
| SCH206BOND | School 206 BOND | 0.3161759235 | $556,422 | $556,422 | $175.93 | | |
| SCH206MO | School 206 Enrichment | 0.4547169547 | $556,422 | $556,422 | $253.01 | | |
| ST | State School | 1.3035497053 | $556,422 | $556,422 | $725.32 | | |
| ST2 | State School Part 2 | 0.8169543533 | $556,422 | $556,422 | $454.57 | | |
| SWHIDPRBD | P & R S Whidbey BOND | 0.0152817568 | $556,422 | $556,422 | $8.50 | | |
| SWHIDPRBD2 | P & R S Whidbey BOND2 | 0.0138911264 | $556,422 | $556,422 | $7.73 | | |
| SWHIDPRMT | P & R S Whidbey GEN | 0.2053334452 | $556,422 | $556,422 | $114.25 | | |
| | Total Tax Rate: | 6.6934522006 | | | | | |
| | | | | Taxes w/Current Exemptions: | $3,724.37 | | |
| | | | | Taxes w/o Exemptions: | $3,724.37 | | |
Improvement / Building
| Improvement #1: | RESIDENTIAL | State Code: | Y | 2013.0 sqft | Value: | $216,422 |
| Bathrooms: | 3 | Bedrooms: | 3 | | Ceiling: | DRYWALL PAINTED | Exterior Wall/Cover: | PLY/HARDBOARD T-111 | | Floor Covering: | CARPET/VINYL 80-20 | Floor Structure: | WOOD W/SUBFLOOR | | Foundation: | CONCRETE | Heating: | FHA ELECTRIC | | Interior Finish: | DRYWALL PAINT | Plumbing Fixture Cnt: | 12 | | Roof Slope: | 4" IN 12" | Roof Structure/Cover: | CJ ASPHALT |
|
| | Type | Description | Class CD | Sub Class CD | Year Built | Area |
| | BAS | BASE/MAIN FLOOR | 3 | 0 | 1972 | 1311.0 |
| | OP4 | OPEN PORCH W/CEILING-ROOF | 3 | 0 | 1972 | 15.0 |
| | BGR | BASEMENT GARAGE | 3 | 0 | 1972 | 624.0 |
| | OWC | OPEN WOOD PORCH W/STEPS/ROOF/C | 3 | 0 | 1972 | 408.0 |
| | DWN | DOWNSTAIRS LIVING AREA | 3 | 0 | 1972 | 702.0 |
Sketch
| No sketches available for this property. |
Property Image
Land
| 1 | 14 | SQ (08001-12000) | 0.0000 | 0.00 | 0.00 | 0.00 | 1.00 | $340,000 | $0 |
Roll Value History
| 2026 | N/A | N/A | N/A | N/A | N/A |
| 2025 | $216,422 | $340,000 | $0 | $556,422 | $556,422 |
| 2024 | $220,076 | $340,000 | $0 | $560,076 | $560,076 |
| 2023 | $225,985 | $330,000 | $0 | $555,985 | $555,985 |
| 2022 | $207,984 | $280,000 | $0 | $487,984 | $487,984 |
| 2021 | $183,754 | $180,000 | $0 | $363,754 | $363,754 |
| 2020 | $152,621 | $180,000 | $0 | $332,621 | $332,621 |
| 2019 | $115,047 | $220,000 | $0 | $335,047 | $335,047 |
| 2018 | $115,542 | $200,000 | $0 | $315,542 | $315,542 |
| 2017 | $116,529 | $150,000 | $0 | $266,529 | $266,529 |
| 2016 | $118,504 | $150,000 | $0 | $268,504 | $268,504 |
| 2015 | $120,480 | $150,000 | $0 | $270,480 | $270,480 |
| 2014 | $125,294 | $140,250 | $0 | $265,544 | $265,544 |
| 2013 | $127,272 | $140,250 | $0 | $267,522 | $267,522 |
| 2012 | $129,252 | $140,250 | $0 | $269,502 | $269,502 |
| 2011 | $131,231 | $165,000 | $0 | $296,231 | $296,231 |
| 2010 | $142,859 | $165,000 | $0 | $307,859 | $307,859 |
| 2009 | $149,369 | $200,000 | $0 | $349,369 | $349,369 |
| 2008 | $151,396 | $232,500 | $0 | $383,896 | $383,896 |
| 2007 | $153,499 | $199,750 | $0 | $353,249 | $353,249 |
Deed and Sales History
| 1 | 11/14/2023 | WD | Warranty Deed | WOODLAND, PATRICIA A | ANDERSON, DAWN MARIE | | | $485,000.00 | 58517 | 4566762 |
| 2 | 06/22/2010 | ESTSEPPROP | Establish Separate Property | WOODLAND, PATRICIA A | WOODLAND, PATRICIA A | | | $0.00 | 1513 | 4275873 |
| 3 | 07/01/1987 | QCD | Quit Claim Deed | WOODLAND, WILLIAM S | WOODLAND, PATRICIA A | | | $0.00 | 72005 | 87009178 |
| 4 | 07/01/1987 | QCD | Quit Claim Deed | MCGIRR, RICHARD G | WOODLAND, WILLIAM S | | | $0.00 | 72008 | 87009179 |
| 5 | 07/01/1984 | QCD | Quit Claim Deed | MCGIRR, FRANCES S | MCGIRR, RICHARD G | | | $0.00 | 42142 | 84001041 |
| 6 | 07/01/1976 | PACD | Purchaser's Assignment | MCGIRR, RICHARD G | MCGIRR, FRANCES S | | | $0.00 | 59041 | 0 |
| 7 | 01/01/1900 | OTHER | Other - Misc. Documents | Unknown | MCGIRR, RICHARD G | | | $0.00 | 0 | 0 |
Payout Agreement
| No payout information available.. |