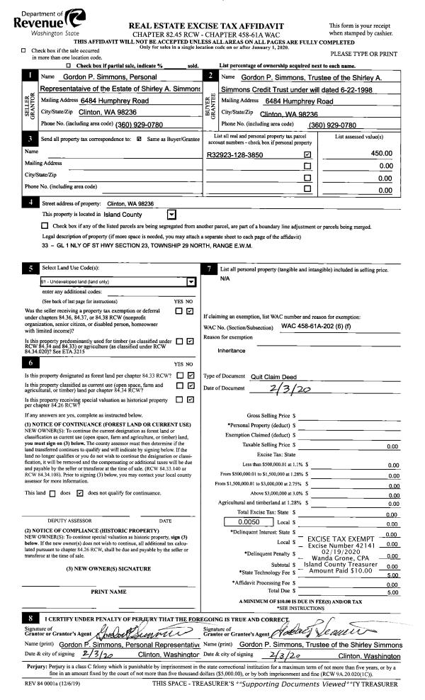
Property
Account |
| Property ID: | 405724 | Abbreviated Legal Description: | SURF PARADISE LOTS 12, 13 & 14 |
| Geographic ID: | S8285-00-00012-0 | Agent Code: | |
| Type: | Real | | |
| Tax Area: | 310 - APPRAISER-Cpvl Schl Dist, outside Cpvl, improved & 1 acre or less | Land Use Code | 11 |
| Open Space: | N | DFL | N |
| Historic Property: | N | Remodel Property: | N |
| Multi-Family Redevelopment: | N | | |
| Township: | | Section: | |
| Range: | |
Location |
| Address: | 2419 SURF PARADISE DR GREENBANK, WA 98253 | Mapsco: | |
| Neighborhood: | Cycle 3 | Map ID: | 354 |
| Neighborhood CD: | 3 |
Owner |
| Name: | CAMPBELL, GORDON D | Owner ID: | 188264 |
| Mailing Address: | JEANNETTE K CAMPBELL CO TRUSTEES 2419 SURF PARADISE DR GREENBANK, WA 98253-6004 | % Ownership: | 100.0000000000% |
| | | Exemptions: | |
Taxes and Assessment Details
Values
| (+) Improvement Homesite Value: | + | $0 | |
| (+) Improvement Non-Homesite Value: | + | $561,785 | |
| (+) Land Homesite Value: | + | $0 | |
| (+) Land Non-Homesite Value: | + | $450,000 | |
| (+) Curr Use (HS): | + | $0 | $0 |
| (+) Curr Use (NHS): | + | $0 | $0 |
| | | -------------------------- | |
| (=) Market Value: | = | $1,011,785 | |
| (–) Productivity Loss: | – | $0 | |
| | | -------------------------- | |
| (=) Subtotal: | = | $1,011,785 | |
| (+) Senior Appraised Value: | + | $0 | |
| (+) Non-Senior Appraised Value: | + | $1,011,785 | |
| | | -------------------------- | |
| (=) Total Appraised Value: | = | $1,011,785 | |
| (–) Senior Exemption Loss: | – | $0 | |
| (–) Exemption Loss: | – | $0 | |
| | | -------------------------- | |
| (=) Taxable Value: | = | $1,011,785 | |
Taxing Jurisdiction
| Owner: | CAMPBELL, GORDON D | | |
| % Ownership: | 100.0000000000% | | |
| Total Value: | $1,011,785 | | |
| Tax Area: | 310 - APPRAISER-Cpvl Schl Dist, outside Cpvl, improved & 1 acre or less |
| CF | Conservation Futures | 0.0316035091 | $1,011,785 | $1,011,785 | $31.98 | | |
| CEM2 | Cemetery #2 | 0.0095056933 | $1,011,785 | $1,011,785 | $9.62 | | |
| FIRE5 | Fire & Rescue Dist #5 C Whidbey GEN | 1.2008080668 | $1,011,785 | $1,011,785 | $1,214.96 | | |
| FIRE5BOND | Fire & Rescue Dist #5 C Whidbey BOND | 0.1400090713 | $1,011,785 | $1,011,785 | $141.66 | | |
| HOBOND | Hospital BOND | 0.1910887512 | $1,011,785 | $1,011,785 | $193.34 | | |
| HOGEN | Hospital GEN | 0.3902502903 | $1,011,785 | $1,011,785 | $394.85 | | |
| CE | County Current Expense | 0.3708482477 | $1,011,785 | $1,011,785 | $375.22 | | |
| CR | County Roads | 0.4584763726 | $1,011,785 | $1,011,785 | $463.88 | | |
| ISLANDEMS | Hospital GEN (EMS) | 0.5000000000 | $1,011,785 | $1,011,785 | $505.89 | | |
| LIB | Library Sno-Isle GEN | 0.3153421757 | $1,011,785 | $1,011,785 | $319.06 | | |
| LIBCAP | Library Sno-Isle BOND (Cap Fac Imp Area) | 0.0543427938 | $1,011,785 | $1,011,785 | $54.98 | | |
| POCOUP | Port of Coupeville GEN | 0.1093371703 | $1,011,785 | $1,011,785 | $110.63 | | |
| POCOUPIDD | Port of Coupeville IDD | 0.3409740022 | $1,011,785 | $1,011,785 | $344.99 | | |
| COUPSDTECH | School 204 CP (TECH) | 0.7545480007 | $1,011,785 | $1,011,785 | $763.44 | | |
| SCH204MO | School 204 Enrichment | 0.6716186034 | $1,011,785 | $1,011,785 | $679.53 | | |
| ST | State School | 1.3035497053 | $1,011,785 | $1,011,785 | $1,318.91 | | |
| ST2 | State School Part 2 | 0.8169543533 | $1,011,785 | $1,011,785 | $826.58 | | |
| | Total Tax Rate: | 7.6592568070 | | | | | |
| | | | | Taxes w/Current Exemptions: | $7,749.52 | | |
| | | | | Taxes w/o Exemptions: | $7,749.52 | | |
Improvement / Building
| Improvement #1: | MISC | State Code: | Y | 3170.6 sqft | Value: | $561,785 |
| Bathrooms: | 4 | Bedrooms: | 2 | | Ceiling: | DRYWALL PAINTED | Exterior Wall/Cover: | WOOD SIDING | | Floor Covering: | HARDWOOD/CARP 60-40 | Floor Structure: | WOOD W/SUBFLOOR | | Foundation: | CONCRETE | Heating: | FHA GAS | | Interior Finish: | DRYWALL PAINT | Plumbing Fixture Cnt: | 16 | | Roof Slope: | 5" IN 12" | Roof Structure/Cover: | CJ CLAY TILE |
|
| | Type | Description | Class CD | Sub Class CD | Year Built | Area |
| | BAS | BASE/MAIN FLOOR | 4 | 0 | 1992 | 1507.1 |
| | OP1 | OPEN PORCH SLAB | 4 | 0 | 1992 | 863.4 |
| | OP4 | OPEN PORCH W/CEILING-ROOF | 4 | 0 | 1992 | 47.9 |
| | BIG | BUILT IN GARAGE | 4 | 0 | 1992 | 549.5 |
| | UPS | UPPER STORY | 4 | 0 | 1992 | 1663.5 |
| | BAW | BALCONY WOOD RAIL | 4 | 0 | 1992 | 21.0 |
| | BAW | BALCONY WOOD RAIL | 4 | 0 | 1992 | 27.0 |
| | BAW | BALCONY WOOD RAIL | 4 | 0 | 1992 | 36.0 |
| | ENP | ENCLOSED PORCH | 4 | 0 | 1992 | 229.4 |
Sketch
Property Image
Land
| 1 | HB | HIGH BLUFF | 0.7800 | 33976.80 | 195.00 | 0.00 | 1.00 | $450,000 | $0 |
Roll Value History
| 2026 | N/A | N/A | N/A | N/A | N/A |
| 2025 | $561,785 | $450,000 | $0 | $1,011,785 | $1,011,785 |
| 2024 | $569,056 | $450,000 | $0 | $1,019,056 | $1,019,056 |
| 2023 | $582,565 | $425,000 | $0 | $1,007,565 | $1,007,565 |
| 2022 | $534,149 | $375,000 | $0 | $909,149 | $909,149 |
| 2021 | $470,281 | $325,000 | $0 | $795,281 | $795,281 |
| 2020 | $459,004 | $275,000 | $0 | $734,004 | $734,004 |
| 2019 | $244,486 | $325,000 | $0 | $569,486 | $569,486 |
| 2018 | $245,305 | $275,000 | $0 | $520,305 | $520,305 |
| 2017 | $246,942 | $275,000 | $0 | $521,942 | $521,942 |
| 2016 | $250,222 | $275,000 | $0 | $525,222 | $525,222 |
| 2015 | $253,501 | $250,000 | $0 | $503,501 | $503,501 |
| 2014 | $256,781 | $250,000 | $0 | $506,781 | $506,781 |
| 2013 | $261,879 | $250,000 | $0 | $511,879 | $511,879 |
| 2012 | $265,178 | $308,035 | $0 | $573,213 | $573,213 |
| 2011 | $268,474 | $308,035 | $0 | $576,509 | $576,509 |
| 2010 | $281,940 | $308,035 | $0 | $589,975 | $589,975 |
| 2009 | $294,000 | $381,453 | $0 | $675,453 | $675,453 |
| 2008 | $297,739 | $381,461 | $0 | $679,200 | $679,200 |
| 2007 | $291,326 | $276,399 | $0 | $567,725 | $567,725 |
Deed and Sales History
| 1 | 07/19/2002 | QCD | Quit Claim Deed | CAMPBELL, GORDON D | CAMPBELL, GORDON D | | | $0.00 | 22793 | 4025964 |
| 2 | 06/21/2000 | WD | Warranty Deed | HILL, RONALD R | CAMPBELL, GORDON D | | | $356,200.00 | 2464 | 20011647 |
| 3 | 03/01/1991 | OTHER | Other - Misc. Documents | , | HILL, RONALD R | | | $0.00 | 64096 | 91002489 |
| 4 | 01/01/1900 | OTHER | Other - Misc. Documents | Unknown | , | | | $0.00 | 0 | 0 |
Payout Agreement
| No payout information available.. |