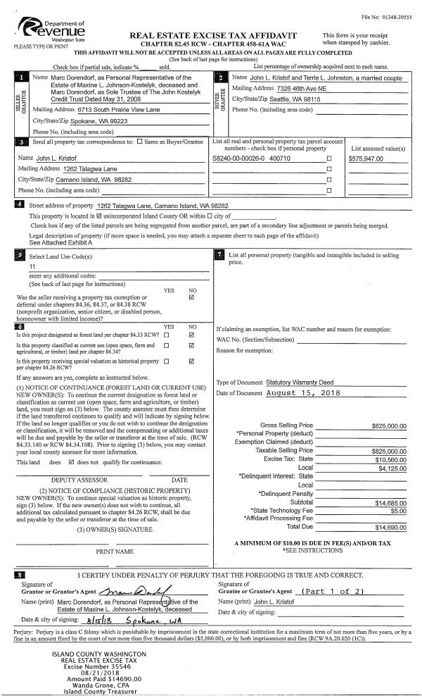
Property
Account |
| Property ID: | 406340 | Abbreviated Legal Description: | SYNDICATE ADD E300' OF N/2 OF LOT 28 TGW W50' OF E300' OF S/2 OF LOT 28 MEAS ALG SLN |
| Geographic ID: | S8290-00-00028-1 | Agent Code: | |
| Type: | Real | | |
| Tax Area: | 760 - APPRAISER-S Whid Schl Dist, Special District, improved & less than 1 acre | Land Use Code | 11 |
| Open Space: | N | DFL | N |
| Historic Property: | N | Remodel Property: | N |
| Multi-Family Redevelopment: | N | | |
| Township: | | Section: | |
| Range: | |
Location |
| Address: | 5234 BERCOT RD FREELAND, WA 98249 | Mapsco: | |
| Neighborhood: | Cycle 3 | Map ID: | 311 |
| Neighborhood CD: | 3 |
Owner |
| Name: | LAMB, STEPHEN | Owner ID: | 286214 |
| Mailing Address: | KRISTIN DEBUIGNE 5234 BERCOT RD FREELAND, WA 98249 | % Ownership: | 100.0000000000% |
| | | Exemptions: | |
Taxes and Assessment Details
Values
| (+) Improvement Homesite Value: | + | $0 | |
| (+) Improvement Non-Homesite Value: | + | $71,471 | |
| (+) Land Homesite Value: | + | $0 | |
| (+) Land Non-Homesite Value: | + | $280,000 | |
| (+) Curr Use (HS): | + | $0 | $0 |
| (+) Curr Use (NHS): | + | $0 | $0 |
| | | -------------------------- | |
| (=) Market Value: | = | $351,471 | |
| (–) Productivity Loss: | – | $0 | |
| | | -------------------------- | |
| (=) Subtotal: | = | $351,471 | |
| (+) Senior Appraised Value: | + | $0 | |
| (+) Non-Senior Appraised Value: | + | $351,471 | |
| | | -------------------------- | |
| (=) Total Appraised Value: | = | $351,471 | |
| (–) Senior Exemption Loss: | – | $0 | |
| (–) Exemption Loss: | – | $0 | |
| | | -------------------------- | |
| (=) Taxable Value: | = | $351,471 | |
Taxing Jurisdiction
| Owner: | LAMB, STEPHEN | | |
| % Ownership: | 100.0000000000% | | |
| Total Value: | $351,471 | | |
| Tax Area: | 760 - APPRAISER-S Whid Schl Dist, Special District, improved & less than 1 acre |
| CF | Conservation Futures | 0.0316035091 | $351,471 | $351,471 | $11.11 | | |
| FIRE3 | Fire & Rescue Dist #3 S Whidbey GEN | 1.2004855531 | $351,471 | $351,471 | $421.94 | | |
| HOBOND | Hospital BOND | 0.1910887512 | $351,471 | $351,471 | $67.16 | | |
| HOGEN | Hospital GEN | 0.3902502903 | $351,471 | $351,471 | $137.16 | | |
| CE | County Current Expense | 0.3708482477 | $351,471 | $351,471 | $130.34 | | |
| CR | County Roads | 0.4584763726 | $351,471 | $351,471 | $161.14 | | |
| ISLANDEMS | Hospital GEN (EMS) | 0.5000000000 | $351,471 | $351,471 | $175.74 | | |
| LIB | Library Sno-Isle GEN | 0.3153421757 | $351,471 | $351,471 | $110.83 | | |
| PORTWHID | Port of S Whidbey GEN | 0.1094540357 | $351,471 | $351,471 | $38.47 | | |
| SCH206BOND | School 206 BOND | 0.3161759235 | $351,471 | $351,471 | $111.13 | | |
| SCH206MO | School 206 Enrichment | 0.4547169547 | $351,471 | $351,471 | $159.82 | | |
| ST | State School | 1.3035497053 | $351,471 | $351,471 | $458.16 | | |
| ST2 | State School Part 2 | 0.8169543533 | $351,471 | $351,471 | $287.14 | | |
| SWHIDPRBD | P & R S Whidbey BOND | 0.0152817568 | $351,471 | $351,471 | $5.37 | | |
| SWHIDPRBD2 | P & R S Whidbey BOND2 | 0.0138911264 | $351,471 | $351,471 | $4.88 | | |
| SWHIDPRMT | P & R S Whidbey GEN | 0.2053334452 | $351,471 | $351,471 | $72.17 | | |
| | Total Tax Rate: | 6.6934522006 | | | | | |
| | | | | Taxes w/Current Exemptions: | $2,352.56 | | |
| | | | | Taxes w/o Exemptions: | $2,352.56 | | |
Improvement / Building
| Improvement #1: | MANUFACTURED HOME | State Code: | Y | 1344.0 sqft | Value: | $71,471 |
| Bathrooms: | 0 | Bedrooms: | 0 | | Ceiling: | PLASTER PAINTED | Cooling: | EVAP NO DUCT | | Exterior Wall/Cover: | VINYL | Floor Covering: | CARPET 100% | | Floor Structure: | SLAB ON GRADE | Foundation: | SLAB | | Heating: | FHA ELECTRIC | Interior Finish: | PLASTER | | Plumbing Fixture Cnt: | 1 | Roof Slope: | FLAT | | Roof Structure/Cover: | CJ ALUMINIUM HEAVY |   |   |
|
| | Type | Description | Class CD | Sub Class CD | Year Built | Area |
| | BAS | BASE/MAIN FLOOR | 3 | 0 | 1979 | 1344.0 |
| | OWR | OPEN WOOD PORCH W/STEPS/ROOF | 3 | 0 | 1979 | 216.0 |
Sketch
Property Image
Land
| 1 | 16 | AC (00.51-01.00) | 0.0000 | 0.00 | 0.00 | 0.00 | 1.00 | $280,000 | $0 |
Roll Value History
| 2026 | N/A | N/A | N/A | N/A | N/A |
| 2025 | $71,471 | $280,000 | $0 | $351,471 | $351,471 |
| 2024 | $74,071 | $260,000 | $0 | $334,071 | $334,071 |
| 2023 | $77,969 | $260,000 | $0 | $337,969 | $337,969 |
| 2022 | $72,955 | $240,000 | $0 | $312,955 | $312,955 |
| 2021 | $65,477 | $190,000 | $0 | $255,477 | $255,477 |
| 2020 | $65,555 | $170,000 | $0 | $235,555 | $235,555 |
| 2019 | $35,991 | $210,000 | $0 | $245,991 | $245,991 |
| 2018 | $37,556 | $180,000 | $0 | $217,556 | $217,556 |
| 2017 | $39,903 | $100,000 | $0 | $139,903 | $139,903 |
| 2016 | $41,468 | $100,000 | $0 | $141,468 | $141,468 |
| 2015 | $43,033 | $100,000 | $0 | $143,033 | $143,033 |
| 2014 | $44,598 | $100,000 | $0 | $144,598 | $144,598 |
| 2013 | $26,950 | $85,000 | $0 | $111,950 | $111,950 |
| 2012 | $43,459 | $87,975 | $0 | $131,434 | $131,434 |
| 2011 | $44,806 | $103,500 | $0 | $148,306 | $148,306 |
| 2010 | $47,431 | $103,500 | $0 | $150,931 | $150,931 |
| 2009 | $50,794 | $162,000 | $0 | $212,794 | $212,794 |
| 2008 | $53,623 | $162,000 | $0 | $215,623 | $215,623 |
| 2007 | $56,150 | $162,000 | $0 | $218,150 | $218,150 |
Deed and Sales History
| 1 | 07/13/2018 | WD | Warranty Deed | MARSON, TRACEY | LAMB, STEPHEN | | | $252,000.00 | 35222 | 4448966 |
| 2 | 05/10/2013 | QCD | Quit Claim Deed | HOOVER TRUSTEE, BARBARA J | MARSON, TRACEY | | | $0.00 | 11347 | 4340010 |
| 3 | 07/22/2004 | WD | Warranty Deed | FULLER, DANNY E | HOOVER TRUSTEE, BARBARA J | | | $187,000.00 | 43391 | 4108103 |
| 4 | 10/05/2001 | WD | Warranty Deed | GROSSER, URSULA | FULLER, DANNY E | | | $122,000.00 | 13973 | 4000000 |
| 5 | 07/01/1992 | OTHER | Other - Misc. Documents | GROSSER, URSULA | GROSSER, URSULA | | | $30,000.00 | 22730 | 0 |
| 6 | 06/01/1992 | WD | Warranty Deed | WARD, BRIAN S | GROSSER, URSULA | | | $40,000.00 | 22729 | 92015274 |
| 7 | 12/01/1989 | OTHER | Other - Misc. Documents | MAHONEY, ROY J | WARD, BRIAN S | | | $26,000.00 | 96077 | 0 |
| 8 | 12/01/1989 | WD | Warranty Deed | WARD, BRIAN S | WARD, BRIAN S | | | $33,000.00 | 96074 | 89019570 |
| 9 | 03/01/1988 | WD | Warranty Deed | MAHONEY, ROY J | MAHONEY, ROY J | | | $0.00 | 80621 | 88002524 |
| 10 | 08/01/1979 | TRUSTEED | Trustee's Deed | MAHONEY, ROY J | MAHONEY, ROY J | | | $0.00 | 0 | 358461 |
| 11 | 06/01/1979 | OTHER | Other - Misc. Documents | MAHONEY, ROY J | MAHONEY, ROY J | | | $28,970.00 | 0 | 0 |
| 12 | 08/01/1968 | TRUSTEED | Trustee's Deed | BERCOT, HENRY F | MAHONEY, ROY J | | | $200.00 | 32523 | 0 |
| 13 | 01/01/1900 | OTHER | Other - Misc. Documents | Unknown | BERCOT, HENRY F | | | $0.00 | 0 | 0 |
Payout Agreement
| No payout information available.. |