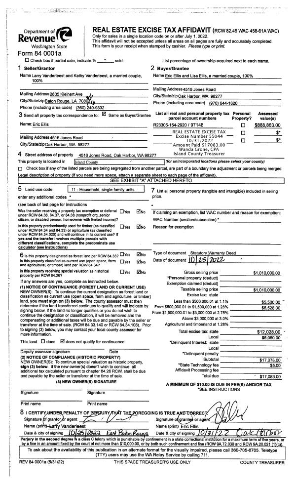
Property
Account |
| Property ID: | 40636 | Abbreviated Legal Description: | 77 FREUND DLC - BG NE CR SD DLC N88*W310' S1*W30' TPB S1*W315.5' S88*E112' N1* E180' N9*E55.58' N1*E80.5' N88*W120' TPB SUB EZ |
| Geographic ID: | R13334-044-5230 | Agent Code: | |
| Type: | Real | | |
| Tax Area: | 100 - APPRAISER-OH Schl Dist, in OH | Land Use Code | 13 |
| Open Space: | N | DFL | N |
| Historic Property: | N | Remodel Property: | N |
| Multi-Family Redevelopment: | N | | |
| Township: | 33 | Section: | 34 |
| Range: | R1 |
Location |
| Address: | 75 W WHIDBEY AVE OAK HARBOR, WA 98277 | Mapsco: | |
| Neighborhood: | 4BcOH-whidbey ave | Map ID: | 253 |
| Neighborhood CD: | 4BcOHwhdby |
Owner |
| Name: | KNIGHT INLET, LLC | Owner ID: | 300815 |
| Mailing Address: | 689 AIRPORT CENTER #189 FRIDAY HARBOR, WA 98250 | % Ownership: | 100.0000000000% |
| | | Exemptions: | |
Taxes and Assessment Details
Values
| (+) Improvement Homesite Value: | + | $0 | |
| (+) Improvement Non-Homesite Value: | + | $1,274,218 | |
| (+) Land Homesite Value: | + | $0 | |
| (+) Land Non-Homesite Value: | + | $1,084,644 | |
| (+) Curr Use (HS): | + | $0 | $0 |
| (+) Curr Use (NHS): | + | $0 | $0 |
| | | -------------------------- | |
| (=) Market Value: | = | $2,358,862 | |
| (–) Productivity Loss: | – | $0 | |
| | | -------------------------- | |
| (=) Subtotal: | = | $2,358,862 | |
| (+) Senior Appraised Value: | + | $0 | |
| (+) Non-Senior Appraised Value: | + | $2,358,862 | |
| | | -------------------------- | |
| (=) Total Appraised Value: | = | $2,358,862 | |
| (–) Senior Exemption Loss: | – | $0 | |
| (–) Exemption Loss: | – | $0 | |
| | | -------------------------- | |
| (=) Taxable Value: | = | $2,358,862 | |
Taxing Jurisdiction
| Owner: | KNIGHT INLET, LLC | | |
| % Ownership: | 100.0000000000% | | |
| Total Value: | $2,358,862 | | |
| Tax Area: | 100 - APPRAISER-OH Schl Dist, in OH |
| CF | Conservation Futures | 0.0316035091 | $2,358,862 | $2,358,862 | $74.55 | | |
| CEM1 | Cemetery #1 | 0.0040320932 | $2,358,862 | $2,358,862 | $9.51 | | |
| COH | City of Oak Harbor | 2.3001546061 | $2,358,862 | $2,358,862 | $5,425.75 | | |
| OAKBOND | City of Oak Harbor BOND | 0.1926904192 | $2,358,862 | $2,358,862 | $454.53 | | |
| HOBOND | Hospital BOND | 0.1910887512 | $2,358,862 | $2,358,862 | $450.75 | | |
| HOGEN | Hospital GEN | 0.3902502903 | $2,358,862 | $2,358,862 | $920.55 | | |
| CE | County Current Expense | 0.3708482477 | $2,358,862 | $2,358,862 | $874.78 | | |
| ISLANDEMS | Hospital GEN (EMS) | 0.5000000000 | $2,358,862 | $2,358,862 | $1,179.43 | | |
| LIB | Library Sno-Isle GEN | 0.3153421757 | $2,358,862 | $2,358,862 | $743.85 | | |
| NWHIDPRMT | P & R N Whidbey GEN | 0.2004466701 | $2,358,862 | $2,358,862 | $472.83 | | |
| SCH201MO | School 201 Enrichment | 1.8559231640 | $2,358,862 | $2,358,862 | $4,377.87 | | |
| ST | State School | 1.3035497053 | $2,358,862 | $2,358,862 | $3,074.89 | | |
| ST2 | State School Part 2 | 0.8169543533 | $2,358,862 | $2,358,862 | $1,927.08 | | |
| | Total Tax Rate: | 8.4728839852 | | | | | |
| | | | | Taxes w/Current Exemptions: | $19,986.37 | | |
| | | | | Taxes w/o Exemptions: | $19,986.37 | | |
Improvement / Building
| Improvement #1: | COMMERCIAL | State Code: | A1 | 4932.4 sqft | Value: | $484,000 |
| Bathrooms: | 8 | Bedrooms: | 14 | | Ceiling: | DRY WALL SPRAYED | Exterior Wall/Cover: | PLY/HARDBOARD T-111 | | Floor Covering: | CARPET/VINYL 80-20 | Floor Structure: | WOOD W/SUBFLOOR | | Foundation: | CONCRETE | Heating: | BASEBOARD ELECTRIC | | Interior Finish: | DRYWALL PAINT | Plumbing Fixture Cnt: | 42 | | Roof Slope: | 4" IN 12" | Roof Structure/Cover: | CJ ASPHALT |
|
| | Type | Description | Class CD | Sub Class CD | Year Built | Area |
| | BAS | BASE/MAIN FLOOR | 3 | 0 | 1975 | 2394.8 |
| | OP1 | OPEN PORCH SLAB | 3 | 0 | 1975 | 35.2 |
| | OWC | OPEN WOOD PORCH W/STEPS/ROOF/C | 3 | 0 | 1975 | 54.4 |
| | UPS | UPPER STORY | 3 | 0 | 1975 | 2537.6 |
| | OP2 | OPEN PORCH W/STEPS | 3 | 0 | 1975 | 108.0 |
| Improvement #2: | COMMERCIAL | State Code: | A1 | 3456.4 sqft | Value: | $388,609 |
| Bathrooms: | 6 | Bedrooms: | 12 | | Ceiling: | DRY WALL SPRAYED | Exterior Wall/Cover: | PLY/HARDBOARD T-111 | | Floor Covering: | CARPET/VINYL 80-20 | Floor Structure: | WOOD W/SUBFLOOR | | Foundation: | CONCRETE | Heating: | BASEBOARD ELECTRIC | | Interior Finish: | DRYWALL PAINT | Plumbing Fixture Cnt: | 36 | | Roof Slope: | 4" IN 12" | Roof Structure/Cover: | CJ ASPHALT |
|
| | Type | Description | Class CD | Sub Class CD | Year Built | Area |
| | BAS | BASE/MAIN FLOOR | 3 | 0 | 1975 | 1654.8 |
| | OP1 | OPEN PORCH SLAB | 3 | 0 | 1975 | 35.2 |
| | UTY | STORAGE/UTILITY | 3 | 0 | 1975 | 45.0 |
| | BAW | BALCONY WOOD RAIL | 3 | 0 | 1975 | 54.0 |
| | OWC | OPEN WOOD PORCH W/STEPS/ROOF/C | 3 | 0 | 1975 | 54.4 |
| | OP2 | OPEN PORCH W/STEPS | 3 | 0 | 1975 | 48.0 |
| | UPS | UPPER STORY | 3 | 0 | 1975 | 1801.6 |
| Improvement #3: | COMMERCIAL | State Code: | A1 | 3456.4 sqft | Value: | $401,609 |
| Bathrooms: | 6 | Bedrooms: | 12 | | Ceiling: | DRY WALL SPRAYED | Exterior Wall/Cover: | PLY/HARDBOARD T-111 | | Floor Covering: | CARPET/VINYL 80-20 | Floor Structure: | WOOD W/SUBFLOOR | | Foundation: | CONCRETE | Heating: | BASEBOARD ELECTRIC | | Interior Finish: | DRYWALL PAINT | Plumbing Fixture Cnt: | 36 | | Roof Slope: | 4" IN 12" | Roof Structure/Cover: | CJ ASPHALT |
|
| | Type | Description | Class CD | Sub Class CD | Year Built | Area |
| | BAS | BASE/MAIN FLOOR | 3 | 0 | 1975 | 1654.8 |
| | OP1 | OPEN PORCH SLAB | 3 | 0 | 1975 | 35.2 |
| | UTY | STORAGE/UTILITY | 3 | 0 | 1975 | 45.0 |
| | BAW | BALCONY WOOD RAIL | 3 | 0 | 1975 | 54.0 |
| | OWC | OPEN WOOD PORCH W/STEPS/ROOF/C | 3 | 0 | 1975 | 54.4 |
| | UPS | UPPER STORY | 3 | 0 | 1975 | 1801.6 |
| | OP2 | OPEN PORCH W/STEPS | 3 | 0 | 1975 | 48.0 |
| | oPV1 | PV/ASPH 2" | 3 | 0 | 1975 | 13000.0 |
Sketch
Property Image
Land
| 1 | 61 | MULTIPLE RESIDENCES | 0.8300 | 36154.80 | 0.00 | 0.00 | 1.00 | $1,084,644 | $0 |
Roll Value History
| 2026 | N/A | N/A | N/A | N/A | N/A |
| 2025 | $1,274,218 | $1,084,644 | $0 | $2,358,862 | $2,358,862 |
| 2024 | $1,300,173 | $1,084,644 | $0 | $2,384,817 | $2,384,817 |
| 2023 | $1,322,535 | $1,084,644 | $0 | $2,407,179 | $2,407,179 |
| 2022 | $1,017,623 | $1,084,644 | $0 | $2,102,267 | $2,102,267 |
| 2021 | $962,955 | $1,084,644 | $0 | $2,047,599 | $2,047,599 |
| 2020 | $427,820 | $1,084,644 | $0 | $1,512,464 | $1,512,464 |
| 2019 | $484,380 | $1,084,644 | $0 | $1,569,024 | $1,569,024 |
| 2018 | $484,413 | $940,025 | $0 | $1,424,438 | $1,424,438 |
| 2017 | $484,446 | $99,426 | $0 | $583,872 | $583,872 |
| 2016 | $484,566 | $99,426 | $0 | $583,992 | $583,992 |
| 2015 | $504,443 | $99,426 | $0 | $603,869 | $603,869 |
| 2014 | $715,431 | $99,426 | $0 | $814,857 | $814,857 |
| 2013 | $715,431 | $99,426 | $0 | $814,857 | $814,857 |
| 2012 | $715,431 | $99,426 | $0 | $814,857 | $814,857 |
| 2011 | $715,431 | $99,426 | $0 | $814,857 | $814,857 |
| 2010 | $706,678 | $99,426 | $0 | $806,104 | $806,104 |
| 2009 | $716,387 | $122,565 | $0 | $838,952 | $838,952 |
Deed and Sales History
| 1 | 08/18/2021 | WD | Warranty Deed | EVERBACH, LLC | KNIGHT INLET, LLC | | | $2,825,000.00 | 49720 | 4527318 |
| 2 | 10/14/2008 | 5 | DNU - Marriage License/Name Change | DERNBACH, BRIAN K | EVERBACH, LLC, | | | $0.00 | 82675 | 4238253 |
| 3 | 12/21/2006 | WD | Warranty Deed | TOWNVIEW WEST LLC, | DERNBACH, BRIAN K | | | $950,000.00 | 70003 | 4190553 |
| 4 | 07/06/2005 | QCD | Quit Claim Deed | BREM, FRANK J | TOWNVIEW WEST LLC, | | | $0.00 | 53367 | 4140619 |
| 5 | 03/01/1979 | OTHER | Other - Misc. Documents | Unknown | BREM, FRANK J | | | $364,500.00 | 90886 | 348232 |
Payout Agreement
| No payout information available.. |