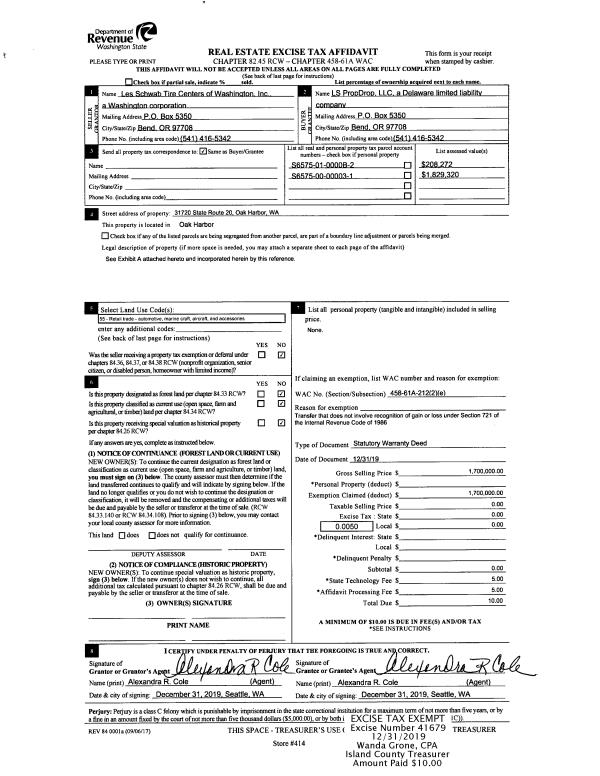
Property
Account |
| Property ID: | 406457 | Abbreviated Legal Description: | Syndicate Addition,s Lot 36,s Blk 00;s BLA 018/22 AF4551141s |
| Geographic ID: | S8290-00-00036-0 | Agent Code: | |
| Type: | Real | | |
| Tax Area: | 760 - APPRAISER-S Whid Schl Dist, Special District, improved & less than 1 acre | Land Use Code | 11 |
| Open Space: | N | DFL | N |
| Historic Property: | N | Remodel Property: | N |
| Multi-Family Redevelopment: | N | | |
| Township: | | Section: | |
| Range: | |
Location |
| Address: | 5304 BERCOT RD FREELAND, WA 98249 | Mapsco: | |
| Neighborhood: | Cycle 3 | Map ID: | 311 |
| Neighborhood CD: | 3 |
Owner |
| Name: | DEGIVE, ANA K | Owner ID: | 293846 |
| Mailing Address: | BRIDGET G BLAIR 5320 BERCOT RD FREELAND, WA 98249 | % Ownership: | 100.0000000000% |
| | | Exemptions: | |
Taxes and Assessment Details
Values
| (+) Improvement Homesite Value: | + | $0 | |
| (+) Improvement Non-Homesite Value: | + | $545,088 | |
| (+) Land Homesite Value: | + | $0 | |
| (+) Land Non-Homesite Value: | + | $280,000 | |
| (+) Curr Use (HS): | + | $0 | $0 |
| (+) Curr Use (NHS): | + | $0 | $0 |
| | | -------------------------- | |
| (=) Market Value: | = | $825,088 | |
| (–) Productivity Loss: | – | $0 | |
| | | -------------------------- | |
| (=) Subtotal: | = | $825,088 | |
| (+) Senior Appraised Value: | + | $0 | |
| (+) Non-Senior Appraised Value: | + | $825,088 | |
| | | -------------------------- | |
| (=) Total Appraised Value: | = | $825,088 | |
| (–) Senior Exemption Loss: | – | $0 | |
| (–) Exemption Loss: | – | $0 | |
| | | -------------------------- | |
| (=) Taxable Value: | = | $825,088 | |
Taxing Jurisdiction
| Owner: | DEGIVE, ANA K | | |
| % Ownership: | 100.0000000000% | | |
| Total Value: | $825,088 | | |
| Tax Area: | 760 - APPRAISER-S Whid Schl Dist, Special District, improved & less than 1 acre |
| CF | Conservation Futures | 0.0316035091 | $825,088 | $825,088 | $26.08 | | |
| FIRE3 | Fire & Rescue Dist #3 S Whidbey GEN | 1.2004855531 | $825,088 | $825,088 | $990.51 | | |
| HOBOND | Hospital BOND | 0.1910887512 | $825,088 | $825,088 | $157.67 | | |
| HOGEN | Hospital GEN | 0.3902502903 | $825,088 | $825,088 | $321.99 | | |
| CE | County Current Expense | 0.3708482477 | $825,088 | $825,088 | $305.98 | | |
| CR | County Roads | 0.4584763726 | $825,088 | $825,088 | $378.28 | | |
| ISLANDEMS | Hospital GEN (EMS) | 0.5000000000 | $825,088 | $825,088 | $412.54 | | |
| LIB | Library Sno-Isle GEN | 0.3153421757 | $825,088 | $825,088 | $260.19 | | |
| PORTWHID | Port of S Whidbey GEN | 0.1094540357 | $825,088 | $825,088 | $90.31 | | |
| SCH206BOND | School 206 BOND | 0.3161759235 | $825,088 | $825,088 | $260.87 | | |
| SCH206MO | School 206 Enrichment | 0.4547169547 | $825,088 | $825,088 | $375.18 | | |
| ST | State School | 1.3035497053 | $825,088 | $825,088 | $1,075.54 | | |
| ST2 | State School Part 2 | 0.8169543533 | $825,088 | $825,088 | $674.06 | | |
| SWHIDPRBD | P & R S Whidbey BOND | 0.0152817568 | $825,088 | $825,088 | $12.61 | | |
| SWHIDPRBD2 | P & R S Whidbey BOND2 | 0.0138911264 | $825,088 | $825,088 | $11.46 | | |
| SWHIDPRMT | P & R S Whidbey GEN | 0.2053334452 | $825,088 | $825,088 | $169.42 | | |
| | Total Tax Rate: | 6.6934522006 | | | | | |
| | | | | Taxes w/Current Exemptions: | $5,522.69 | | |
| | | | | Taxes w/o Exemptions: | $5,522.69 | | |
Improvement / Building
| Improvement #1: | RESIDENTIAL | State Code: | Y | 2008.0 sqft | Value: | $384,698 |
| Bathrooms: | 1.5 | Bedrooms: | 3 | | Ceiling: | PLASTER PAINTED | Cooling: | HEAT PUMP/CONV/V | | Exterior Wall/Cover: | WOOD SIDING | Floor Covering: | SOFTWOOD 100% | | Floor Structure: | WOOD W/SUBFLOOR | Foundation: | CONCRETE | | Interior Finish: | DRYWALL PAINT | Plumbing Fixture Cnt: | 9 | | Roof Slope: | 8" IN 12" | Roof Structure/Cover: | CJ ASPHALT |
|
| | Type | Description | Class CD | Sub Class CD | Year Built | Area |
| | BAS | BASE/MAIN FLOOR | 4 | 0 | 1929 | 1256.0 |
| | OWC | OPEN WOOD PORCH W/STEPS/ROOF/C | 4 | 0 | 1929 | 184.0 |
| | UPH | HALF STORY | 4 | 0 | 1929 | 752.0 |
| | OCP | OPEN CARPORT | 4 | 0 | 1929 | 240.0 |
| Improvement #2: | RESIDENTIAL | State Code: | Y | 1040.0 sqft | Value: | $160,390 |
| Bathrooms: | 1 | Bedrooms: | 1 | | Ceiling: | DRYWALL PAINTED | Exterior Wall/Cover: | WOOD SIDING | | Floor Covering: | HARDWOOD 100% | Floor Structure: | SLAB ON GRADE | | Foundation: | CONCRETE | Heating: | RADIANT FLOOR | | Interior Finish: | DRYWALL PAINT | Plumbing Fixture Cnt: | 6 | | Roof Slope: | 5" IN 12" | Roof Structure/Cover: | CJ ASPHALT |
|
| | Type | Description | Class CD | Sub Class CD | Year Built | Area |
| | BAS | BASE/MAIN FLOOR | 3 | 0 | 1995 | 1040.0 |
| | OP2 | OPEN PORCH W/STEPS | 3 | 0 | 1995 | 240.0 |
Sketch
Property Image
Land
| 1 | 16 | AC (00.51-01.00) | 0.8600 | 37461.60 | 0.00 | 0.00 | 1.00 | $280,000 | $0 |
Roll Value History
| 2026 | N/A | N/A | N/A | N/A | N/A |
| 2025 | $545,088 | $280,000 | $0 | $825,088 | $825,088 |
| 2024 | $552,133 | $260,000 | $0 | $812,133 | $812,133 |
| 2023 | $559,177 | $260,000 | $0 | $819,177 | $819,177 |
| 2022 | $361,532 | $240,000 | $0 | $601,532 | $601,532 |
| 2021 | $318,204 | $190,000 | $0 | $508,204 | $508,204 |
| 2020 | $310,636 | $170,000 | $0 | $480,636 | $192,254 |
| 2019 | $235,558 | $250,000 | $0 | $485,558 | $194,223 |
| 2018 | $236,248 | $220,000 | $0 | $456,248 | $182,499 |
| 2017 | $198,451 | $150,000 | $0 | $348,451 | $348,451 |
| 2016 | $230,538 | $150,000 | $0 | $380,538 | $380,538 |
| 2015 | $184,193 | $77,500 | $0 | $261,693 | $261,693 |
| 2014 | $186,751 | $77,500 | $0 | $264,251 | $264,251 |
| 2013 | $159,626 | $77,500 | $0 | $237,126 | $237,126 |
| 2012 | $255,125 | $119,000 | $0 | $374,125 | $374,125 |
| 2011 | $258,579 | $140,000 | $0 | $398,579 | $398,579 |
| 2010 | $269,585 | $140,000 | $0 | $409,585 | $409,585 |
| 2009 | $281,058 | $225,000 | $0 | $506,058 | $506,058 |
| 2008 | $284,745 | $205,000 | $0 | $489,745 | $489,745 |
| 2007 | $203,422 | $185,000 | $0 | $388,422 | $388,422 |
Deed and Sales History
| 1 | 11/19/2021 | WD | Warranty Deed | WORSLEY, CHRISTOPHER J | DEGIVE, ANA K | | | $580,000.00 | 51151 | 4534988 |
| 2 | 08/02/2017 | WD | Warranty Deed | KNICKERBOCKER, NOLEN A | WORSLEY, CHRISTOPHER J | | | $660,000.00 | 30502 | 4427625 |
|   | |
| 3 | 12/01/1988 | OTHER | Other - Misc. Documents | KNICKERBOCKER, NOLEN A | KNICKERBOCKER, NOLEN A | | | $0.00 | 62971 | 88016001 |
| 4 | 10/01/1988 | WD | Warranty Deed | MEAD, GENEVEEN G | KNICKERBOCKER, NOLEN A | | | $105,000.00 | 83601 | 88013442 |
| 5 | 12/01/1983 | WD | Warranty Deed | ANDERSON, RAYMOND H | MEAD, GENEVEEN G | | | $0.00 | 40030 | 419539 |
| 6 | 04/01/1975 | TRUSTEED | Trustee's Deed | Unknown | ANDERSON, RAYMOND H | | | $0.00 | 54628 | 0 |
Payout Agreement
| No payout information available.. |