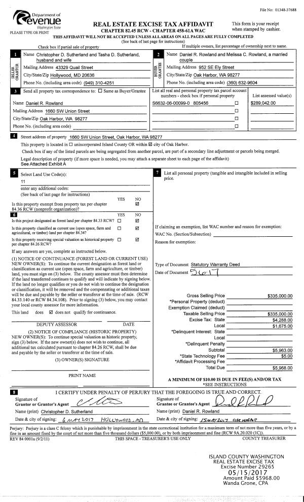
Property
Account |
| Property ID: | 406849 | Abbreviated Legal Description: | SYNDICATE ADD PT LOT 61: BG SWCR LOT 61 E250' N250' W250' TO WLN LOT 61 S250' TPB EX PT TO ST HWY |
| Geographic ID: | S8290-00-00061-1 | Agent Code: | |
| Type: | Real | | |
| Tax Area: | 712 - APPRAISER-S Whid Schl Dist, outside Langley, improved, greater than 1 acre | Land Use Code | 11 |
| Open Space: | N | DFL | N |
| Historic Property: | N | Remodel Property: | N |
| Multi-Family Redevelopment: | N | | |
| Township: | | Section: | |
| Range: | |
Location |
| Address: | 1257 BUSH POINT RD FREELAND, WA 98249 | Mapsco: | |
| Neighborhood: | Cycle 3 | Map ID: | 311 |
| Neighborhood CD: | 3 |
Owner |
| Name: | NEIL, SUZANNE MARIA | Owner ID: | 282125 |
| Mailing Address: | 1257 BUSH POINT RD FREELAND, WA 98249 | % Ownership: | 100.0000000000% |
| | | Exemptions: | |
Taxes and Assessment Details
Values
| (+) Improvement Homesite Value: | + | $0 | |
| (+) Improvement Non-Homesite Value: | + | $135,990 | |
| (+) Land Homesite Value: | + | $0 | |
| (+) Land Non-Homesite Value: | + | $250,000 | |
| (+) Curr Use (HS): | + | $0 | $0 |
| (+) Curr Use (NHS): | + | $0 | $0 |
| | | -------------------------- | |
| (=) Market Value: | = | $385,990 | |
| (–) Productivity Loss: | – | $0 | |
| | | -------------------------- | |
| (=) Subtotal: | = | $385,990 | |
| (+) Senior Appraised Value: | + | $0 | |
| (+) Non-Senior Appraised Value: | + | $385,990 | |
| | | -------------------------- | |
| (=) Total Appraised Value: | = | $385,990 | |
| (–) Senior Exemption Loss: | – | $0 | |
| (–) Exemption Loss: | – | $0 | |
| | | -------------------------- | |
| (=) Taxable Value: | = | $385,990 | |
Taxing Jurisdiction
| Owner: | NEIL, SUZANNE MARIA | | |
| % Ownership: | 100.0000000000% | | |
| Total Value: | $385,990 | | |
| Tax Area: | 712 - APPRAISER-S Whid Schl Dist, outside Langley, improved, greater than 1 acre |
| CF | Conservation Futures | 0.0316035091 | $385,990 | $385,990 | $12.20 | | |
| FIRE3 | Fire & Rescue Dist #3 S Whidbey GEN | 1.2004855531 | $385,990 | $385,990 | $463.38 | | |
| HOBOND | Hospital BOND | 0.1910887512 | $385,990 | $385,990 | $73.76 | | |
| HOGEN | Hospital GEN | 0.3902502903 | $385,990 | $385,990 | $150.63 | | |
| CE | County Current Expense | 0.3708482477 | $385,990 | $385,990 | $143.14 | | |
| CR | County Roads | 0.4584763726 | $385,990 | $385,990 | $176.97 | | |
| ISLANDEMS | Hospital GEN (EMS) | 0.5000000000 | $385,990 | $385,990 | $193.00 | | |
| LIB | Library Sno-Isle GEN | 0.3153421757 | $385,990 | $385,990 | $121.72 | | |
| PORTWHID | Port of S Whidbey GEN | 0.1094540357 | $385,990 | $385,990 | $42.25 | | |
| SCH206BOND | School 206 BOND | 0.3161759235 | $385,990 | $385,990 | $122.04 | | |
| SCH206MO | School 206 Enrichment | 0.4547169547 | $385,990 | $385,990 | $175.52 | | |
| ST | State School | 1.3035497053 | $385,990 | $385,990 | $503.16 | | |
| ST2 | State School Part 2 | 0.8169543533 | $385,990 | $385,990 | $315.34 | | |
| SWHIDPRBD | P & R S Whidbey BOND | 0.0152817568 | $385,990 | $385,990 | $5.90 | | |
| SWHIDPRBD2 | P & R S Whidbey BOND2 | 0.0138911264 | $385,990 | $385,990 | $5.36 | | |
| SWHIDPRMT | P & R S Whidbey GEN | 0.2053334452 | $385,990 | $385,990 | $79.26 | | |
| | Total Tax Rate: | 6.6934522006 | | | | | |
| | | | | Taxes w/Current Exemptions: | $2,583.63 | | |
| | | | | Taxes w/o Exemptions: | $2,583.63 | | |
Improvement / Building
| Improvement #1: | MANUFACTURED HOME | State Code: | Y | 1139.4 sqft | Value: | $135,990 |
| Bathrooms: | 0 | Bedrooms: | 0 | | Ceiling: | PLASTER PAINTED | Cooling: | EVAP NO DUCT | | Exterior Wall/Cover: | VINYL | Floor Covering: | CARPET 100% | | Floor Structure: | SLAB ON GRADE | Foundation: | SLAB | | Heating: | FHA ELECTRIC | Interior Finish: | PLASTER | | Plumbing Fixture Cnt: | 1 | Roof Slope: | FLAT | | Roof Structure/Cover: | CJ ALUMINIUM HEAVY |   |   |
|
| | Type | Description | Class CD | Sub Class CD | Year Built | Area |
| | BAS | BASE/MAIN FLOOR | 3 | 0 | 2007 | 1139.4 |
| | OWC | OPEN WOOD PORCH W/STEPS/ROOF/C | 3 | 0 | 2007 | 216.0 |
| | DGR | DETACHED GARAGE | 3 | 0 | 2007 | 700.0 |
Sketch
Property Image
Land
| 1 | 17 | AC (01.01-02.00) | 0.0000 | 0.00 | 0.00 | 0.00 | 1.00 | $250,000 | $0 |
Roll Value History
| 2026 | N/A | N/A | N/A | N/A | N/A |
| 2025 | $135,990 | $250,000 | $0 | $385,990 | $385,990 |
| 2024 | $139,433 | $230,000 | $0 | $369,433 | $369,433 |
| 2023 | $142,875 | $230,000 | $0 | $372,875 | $372,875 |
| 2022 | $132,506 | $200,000 | $0 | $332,506 | $332,506 |
| 2021 | $116,581 | $150,000 | $0 | $266,581 | $266,581 |
| 2020 | $114,486 | $135,000 | $0 | $249,486 | $249,486 |
| 2019 | $92,254 | $170,000 | $0 | $262,254 | $262,254 |
| 2018 | $93,291 | $140,000 | $0 | $233,291 | $233,291 |
| 2017 | $76,178 | $115,000 | $0 | $191,178 | $191,178 |
| 2016 | $77,929 | $100,000 | $0 | $177,929 | $177,929 |
| 2015 | $78,806 | $100,000 | $0 | $178,806 | $178,806 |
| 2014 | $80,556 | $100,000 | $0 | $180,556 | $180,556 |
| 2013 | $92,543 | $100,000 | $0 | $192,543 | $192,543 |
| 2012 | $93,236 | $97,750 | $0 | $190,986 | $190,986 |
| 2011 | $94,620 | $115,000 | $0 | $209,620 | $209,620 |
| 2010 | $82,489 | $115,000 | $0 | $197,489 | $197,489 |
| 2009 | $83,478 | $155,000 | $0 | $238,478 | $238,478 |
| 2008 | $84,304 | $165,000 | $0 | $249,304 | $249,304 |
| 2007 | $14,115 | $185,000 | $0 | $199,115 | $199,115 |
Deed and Sales History
| 1 | 09/19/2017 | WD | Warranty Deed | CAMPBELL, DAVID H | NEIL, SUZANNE MARIA | | | $255,000.00 | 31238 | 4430881 |
| 2 | 08/11/1999 | WD | Warranty Deed | J & J INVESTMENTS, | CAMPBELL, DAVID H | | | $45,000.00 | 93517 | 99020057 |
| 3 | 10/30/1998 | TRUSTEED | Trustee's Deed | VAN, SPRONSEN, L | J & J INVESTMENTS, | | | $0.00 | 84529 | 98024665 |
| 4 | 07/01/1990 | WD | Warranty Deed | VAN, SPRONSEN, L | VAN, SPRONSEN, L | | | $11,442.00 | 4317 | 90014256 |
| 5 | 05/01/1990 | WD | Warranty Deed | RUTHERFORD, CHARLES E | VAN, SPRONSEN, L | | | $3,800.00 | 4371 | 90014466 |
| 6 | 03/01/1989 | OTHER | Other - Misc. Documents | VAN, SPRONSEN, L | RUTHERFORD, CHARLES E | | | $0.00 | 63232 | 89003212 |
| 7 | 08/01/1978 | OTHER | Other - Misc. Documents | Unknown | VAN, SPRONSEN, L | | | $33,950.00 | 84387 | 339389 |
Payout Agreement
| No payout information available.. |