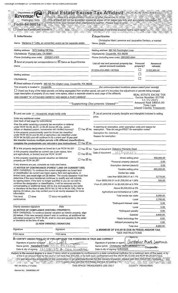
Property
Account |
| Property ID: | 406965 | Abbreviated Legal Description: | SYNDICATE ADD LOT 66 E OF HWY |
| Geographic ID: | S8290-00-00066-2 | Agent Code: | |
| Type: | Real | | |
| Tax Area: | 719 - APPRAISER-S Whid Schl Dist, outside Langley, vacant & 50 acres or less | Land Use Code | 99 |
| Open Space: | N | DFL | N |
| Historic Property: | N | Remodel Property: | N |
| Multi-Family Redevelopment: | N | | |
| Township: | | Section: | |
| Range: | |
Location |
| Address: | | Mapsco: | |
| Neighborhood: | Cycle 3 | Map ID: | 311 |
| Neighborhood CD: | 3 |
Owner |
| Name: | PALMER, RALPH A | Owner ID: | 259424 |
| Mailing Address: | 19284 STATE ROUTE 525 FREELAND, WA 98249 | % Ownership: | 100.0000000000% |
| | | Exemptions: | |
Taxes and Assessment Details
Values
| (+) Improvement Homesite Value: | + | $0 | |
| (+) Improvement Non-Homesite Value: | + | $0 | |
| (+) Land Homesite Value: | + | $0 | |
| (+) Land Non-Homesite Value: | + | $150,000 | |
| (+) Curr Use (HS): | + | $0 | $0 |
| (+) Curr Use (NHS): | + | $0 | $0 |
| | | -------------------------- | |
| (=) Market Value: | = | $150,000 | |
| (–) Productivity Loss: | – | $0 | |
| | | -------------------------- | |
| (=) Subtotal: | = | $150,000 | |
| (+) Senior Appraised Value: | + | $0 | |
| (+) Non-Senior Appraised Value: | + | $150,000 | |
| | | -------------------------- | |
| (=) Total Appraised Value: | = | $150,000 | |
| (–) Senior Exemption Loss: | – | $0 | |
| (–) Exemption Loss: | – | $0 | |
| | | -------------------------- | |
| (=) Taxable Value: | = | $150,000 | |
Taxing Jurisdiction
| Owner: | PALMER, RALPH A | | |
| % Ownership: | 100.0000000000% | | |
| Total Value: | $150,000 | | |
| Tax Area: | 719 - APPRAISER-S Whid Schl Dist, outside Langley, vacant & 50 acres or less |
| CF | Conservation Futures | 0.0316035091 | $150,000 | $150,000 | $4.74 | | |
| HOBOND | Hospital BOND | 0.1910887512 | $150,000 | $150,000 | $28.66 | | |
| HOGEN | Hospital GEN | 0.3902502903 | $150,000 | $150,000 | $58.54 | | |
| CE | County Current Expense | 0.3708482477 | $150,000 | $150,000 | $55.63 | | |
| CR | County Roads | 0.4584763726 | $150,000 | $150,000 | $68.77 | | |
| ISLANDEMS | Hospital GEN (EMS) | 0.5000000000 | $150,000 | $150,000 | $75.00 | | |
| LIB | Library Sno-Isle GEN | 0.3153421757 | $150,000 | $150,000 | $47.30 | | |
| PORTWHID | Port of S Whidbey GEN | 0.1094540357 | $150,000 | $150,000 | $16.42 | | |
| SCH206BOND | School 206 BOND | 0.3161759235 | $150,000 | $150,000 | $47.43 | | |
| SCH206MO | School 206 Enrichment | 0.4547169547 | $150,000 | $150,000 | $68.21 | | |
| ST | State School | 1.3035497053 | $150,000 | $150,000 | $195.53 | | |
| ST2 | State School Part 2 | 0.8169543533 | $150,000 | $150,000 | $122.54 | | |
| SWHIDPRBD | P & R S Whidbey BOND | 0.0152817568 | $150,000 | $150,000 | $2.29 | | |
| SWHIDPRBD2 | P & R S Whidbey BOND2 | 0.0138911264 | $150,000 | $150,000 | $2.08 | | |
| SWHIDPRMT | P & R S Whidbey GEN | 0.2053334452 | $150,000 | $150,000 | $30.80 | | |
| | Total Tax Rate: | 5.4929666475 | | | | | |
| | | | | Taxes w/Current Exemptions: | $823.94 | | |
| | | | | Taxes w/o Exemptions: | $823.94 | | |
Improvement / Building
Sketch
| No sketches available for this property. |
Property Image
Land
| 1 | 18 | AC (02.01-03.00) | 0.0000 | 0.00 | 0.00 | 0.00 | 1.00 | $150,000 | $0 |
Roll Value History
| 2026 | N/A | N/A | N/A | N/A | N/A |
| 2025 | $0 | $150,000 | $0 | $150,000 | $150,000 |
| 2024 | $0 | $150,000 | $0 | $150,000 | $150,000 |
| 2023 | $0 | $150,000 | $0 | $150,000 | $150,000 |
| 2022 | $0 | $150,000 | $0 | $150,000 | $150,000 |
| 2021 | $0 | $110,000 | $0 | $110,000 | $110,000 |
| 2020 | $0 | $90,000 | $0 | $90,000 | $90,000 |
| 2019 | $0 | $100,000 | $0 | $100,000 | $100,000 |
| 2018 | $0 | $85,000 | $0 | $85,000 | $85,000 |
| 2017 | $0 | $50,000 | $0 | $50,000 | $50,000 |
| 2016 | $0 | $50,000 | $0 | $50,000 | $50,000 |
| 2015 | $0 | $50,000 | $0 | $50,000 | $50,000 |
| 2014 | $0 | $50,000 | $0 | $50,000 | $50,000 |
| 2013 | $0 | $65,000 | $0 | $65,000 | $65,000 |
| 2012 | $0 | $17,000 | $0 | $17,000 | $17,000 |
| 2011 | $0 | $17,000 | $0 | $17,000 | $17,000 |
| 2010 | $0 | $17,000 | $0 | $17,000 | $17,000 |
| 2009 | $0 | $23,500 | $0 | $23,500 | $23,500 |
| 2008 | $0 | $24,400 | $0 | $24,400 | $24,400 |
| 2007 | $0 | $17,499 | $0 | $17,499 | $17,499 |
Deed and Sales History
| 1 | 09/13/2012 | WD | Warranty Deed | BROWN JR, VANVER N | PALMER, RALPH A | | | $45,000.00 | 8853 | 4323129 |
| 2 | 11/04/1998 | WD | Warranty Deed | BROOKS, HARLAND G | BROWN JR, VANVER N | | | $13,500.00 | 84597 | 98025146 |
| 3 | 12/01/1978 | OTHER | Other - Misc. Documents | Unknown | BROOKS, HARLAND G | | | $12,000.00 | 86287 | 345292 |
Payout Agreement
| No payout information available.. |