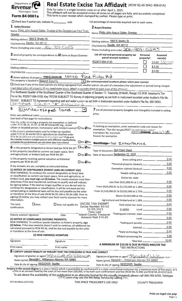
Property
Account |
| Property ID: | 407143 | Abbreviated Legal Description: | TARA TRACT A-6: BG SWCR B2 TARA 1 S310' E120' SELY ALG CUR/ L 33.35' S31*E210.08' TPB S31*E70.02' S57*W137.15' N31*W70.02' N57*E137.15'TPB TGW & SUB EZ (FORMERLY TR A-7) |
| Geographic ID: | S8295-00-00A06-0 | Agent Code: | |
| Type: | Real | | |
| Tax Area: | 710 - APPRAISER-S Whid Schl Dist, outside Langley, improved & 1 acre or less | Land Use Code | 11 |
| Open Space: | N | DFL | N |
| Historic Property: | N | Remodel Property: | N |
| Multi-Family Redevelopment: | N | | |
| Township: | | Section: | |
| Range: | |
Location |
| Address: | 5600 TARA DR FREELAND, WA 98249 | Mapsco: | |
| Neighborhood: | Cycle 3 | Map ID: | 333 |
| Neighborhood CD: | 3 |
Owner |
| Name: | LESLIE, LENARD L | Owner ID: | 101662 |
| Mailing Address: | SHARON LESLIE 5600 TARA DR FREELAND, WA 98249-9472 | % Ownership: | 100.0000000000% |
| | | Exemptions: | |
Taxes and Assessment Details
Values
| (+) Improvement Homesite Value: | + | $0 | |
| (+) Improvement Non-Homesite Value: | + | $344,808 | |
| (+) Land Homesite Value: | + | $0 | |
| (+) Land Non-Homesite Value: | + | $675,000 | |
| (+) Curr Use (HS): | + | $0 | $0 |
| (+) Curr Use (NHS): | + | $0 | $0 |
| | | -------------------------- | |
| (=) Market Value: | = | $1,019,808 | |
| (–) Productivity Loss: | – | $0 | |
| | | -------------------------- | |
| (=) Subtotal: | = | $1,019,808 | |
| (+) Senior Appraised Value: | + | $0 | |
| (+) Non-Senior Appraised Value: | + | $1,019,808 | |
| | | -------------------------- | |
| (=) Total Appraised Value: | = | $1,019,808 | |
| (–) Senior Exemption Loss: | – | $0 | |
| (–) Exemption Loss: | – | $0 | |
| | | -------------------------- | |
| (=) Taxable Value: | = | $1,019,808 | |
Taxing Jurisdiction
| Owner: | LESLIE, LENARD L | | |
| % Ownership: | 100.0000000000% | | |
| Total Value: | $1,019,808 | | |
| Tax Area: | 710 - APPRAISER-S Whid Schl Dist, outside Langley, improved & 1 acre or less |
| CF | Conservation Futures | 0.0316035091 | $1,019,808 | $1,019,808 | $32.23 | | |
| FIRE3 | Fire & Rescue Dist #3 S Whidbey GEN | 1.2004855531 | $1,019,808 | $1,019,808 | $1,224.26 | | |
| HOBOND | Hospital BOND | 0.1910887512 | $1,019,808 | $1,019,808 | $194.87 | | |
| HOGEN | Hospital GEN | 0.3902502903 | $1,019,808 | $1,019,808 | $397.98 | | |
| CE | County Current Expense | 0.3708482477 | $1,019,808 | $1,019,808 | $378.19 | | |
| CR | County Roads | 0.4584763726 | $1,019,808 | $1,019,808 | $467.56 | | |
| ISLANDEMS | Hospital GEN (EMS) | 0.5000000000 | $1,019,808 | $1,019,808 | $509.90 | | |
| LIB | Library Sno-Isle GEN | 0.3153421757 | $1,019,808 | $1,019,808 | $321.59 | | |
| PORTWHID | Port of S Whidbey GEN | 0.1094540357 | $1,019,808 | $1,019,808 | $111.62 | | |
| SCH206BOND | School 206 BOND | 0.3161759235 | $1,019,808 | $1,019,808 | $322.44 | | |
| SCH206MO | School 206 Enrichment | 0.4547169547 | $1,019,808 | $1,019,808 | $463.72 | | |
| ST | State School | 1.3035497053 | $1,019,808 | $1,019,808 | $1,329.37 | | |
| ST2 | State School Part 2 | 0.8169543533 | $1,019,808 | $1,019,808 | $833.14 | | |
| SWHIDPRBD | P & R S Whidbey BOND | 0.0152817568 | $1,019,808 | $1,019,808 | $15.58 | | |
| SWHIDPRBD2 | P & R S Whidbey BOND2 | 0.0138911264 | $1,019,808 | $1,019,808 | $14.17 | | |
| SWHIDPRMT | P & R S Whidbey GEN | 0.2053334452 | $1,019,808 | $1,019,808 | $209.40 | | |
| | Total Tax Rate: | 6.6934522006 | | | | | |
| | | | | Taxes w/Current Exemptions: | $6,826.02 | | |
| | | | | Taxes w/o Exemptions: | $6,826.02 | | |
Improvement / Building
| Improvement #1: | RESIDENTIAL | State Code: | Y | 1643.0 sqft | Value: | $344,808 |
| Bathrooms: | 2 | Bedrooms: | 3 | | Ceiling: | DRYWALL PAINTED | Exterior Wall/Cover: | WOOD SIDING | | Floor Covering: | CARPET/VINYL 80-20 | Floor Structure: | WOOD W/SUBFLOOR | | Foundation: | CONCRETE | Heating: | FHA ELECTRIC | | Interior Finish: | DRYWALL PAINT | Plumbing Fixture Cnt: | 10 | | Roof Slope: | 5" IN 12" | Roof Structure/Cover: | CJ ALUMINIUM HEAVY |
|
| | Type | Description | Class CD | Sub Class CD | Year Built | Area |
| | BAS | BASE/MAIN FLOOR | 4 | 0 | 1981 | 1643.0 |
| | OP4 | OPEN PORCH W/CEILING-ROOF | 4 | 0 | 1981 | 30.0 |
| | AGR | ATTACHED GARAGE | 4 | 0 | 1981 | 513.0 |
| | UTY | STORAGE/UTILITY | 4 | 0 | 1981 | 80.0 |
| | OWP | OPEN WOOD PORCH W/STEPS | 4 | 0 | 1981 | 394.6 |
Sketch
Property Image
Land
| 1 | HB | HIGH BLUFF | 0.0000 | 0.00 | 70.00 | 0.00 | 1.00 | $675,000 | $0 |
Roll Value History
| 2026 | N/A | N/A | N/A | N/A | N/A |
| 2025 | $344,808 | $675,000 | $0 | $1,019,808 | $1,019,808 |
| 2024 | $349,215 | $675,000 | $0 | $1,024,215 | $1,024,215 |
| 2023 | $353,578 | $675,000 | $0 | $1,028,578 | $1,028,578 |
| 2022 | $324,160 | $675,000 | $0 | $999,160 | $999,160 |
| 2021 | $285,346 | $425,000 | $0 | $710,346 | $710,346 |
| 2020 | $277,929 | $400,000 | $0 | $677,929 | $677,929 |
| 2019 | $200,202 | $400,000 | $0 | $600,202 | $600,202 |
| 2018 | $200,809 | $300,000 | $0 | $500,809 | $500,809 |
| 2017 | $202,027 | $300,000 | $0 | $502,027 | $502,027 |
| 2016 | $204,462 | $300,000 | $0 | $504,462 | $504,462 |
| 2015 | $206,895 | $300,000 | $0 | $506,895 | $506,895 |
| 2014 | $209,329 | $300,000 | $0 | $509,329 | $509,329 |
| 2013 | $182,128 | $287,691 | $0 | $469,819 | $469,819 |
| 2012 | $184,258 | $287,691 | $0 | $471,949 | $471,949 |
| 2011 | $186,389 | $287,691 | $0 | $474,080 | $474,080 |
| 2010 | $195,990 | $287,691 | $0 | $483,681 | $483,681 |
| 2009 | $204,321 | $345,783 | $0 | $550,104 | $550,104 |
| 2008 | $178,694 | $425,571 | $0 | $604,265 | $604,265 |
| 2007 | $186,454 | $425,571 | $0 | $612,025 | $612,025 |
Deed and Sales History
| 1 | 08/20/2000 | WD | Warranty Deed | LESLIE, LENARD L | LESLIE, LENARD L | | | $0.00 | 10720 | 20026763 |
| 2 | 07/20/2000 | WD | Warranty Deed | FREEHILL, MAURICE F | LESLIE, LENARD L | | | $310,000.00 | 3140 | 20014747 |
| 3 | 05/01/1977 | TRUSTEED | Trustee's Deed | FREEHILL, MAURICE F | FREEHILL, MAURICE F | | | $23,500.00 | 72063 | 0 |
| 4 | 01/01/1900 | OTHER | Other - Misc. Documents | Unknown | FREEHILL, MAURICE F | | | $0.00 | 0 | 0 |
Payout Agreement
| No payout information available.. |