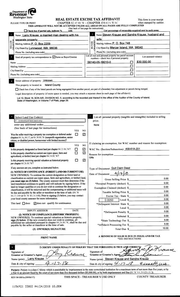
Property
Account |
| Property ID: | 407161 | Abbreviated Legal Description: | TARA TR A-8: BG SWCR BLK 2 S310' E180' N125.93'TPB N70.02' E138.93'TO ELN TR A S70' W137.23'TPB TGW EZ FORMERLY A-13 V4 SUR P392 |
| Geographic ID: | S8295-00-00A08-0 | Agent Code: | |
| Type: | Real | | |
| Tax Area: | 710 - APPRAISER-S Whid Schl Dist, outside Langley, improved & 1 acre or less | Land Use Code | 11 |
| Open Space: | N | DFL | N |
| Historic Property: | N | Remodel Property: | N |
| Multi-Family Redevelopment: | N | | |
| Township: | | Section: | |
| Range: | |
Location |
| Address: | 5581 TARA DR FREELAND, WA 98249 | Mapsco: | |
| Neighborhood: | Cycle 3 | Map ID: | 306 |
| Neighborhood CD: | 3 |
Owner |
| Name: | HEGGENES, DONALD R | Owner ID: | 285205 |
| Mailing Address: | NISA L HEGGENES 41 CASSAL RD WINTHROP, WA 98862 | % Ownership: | 100.0000000000% |
| | | Exemptions: | |
Taxes and Assessment Details
Values
| (+) Improvement Homesite Value: | + | $0 | |
| (+) Improvement Non-Homesite Value: | + | $493,114 | |
| (+) Land Homesite Value: | + | $0 | |
| (+) Land Non-Homesite Value: | + | $320,000 | |
| (+) Curr Use (HS): | + | $0 | $0 |
| (+) Curr Use (NHS): | + | $0 | $0 |
| | | -------------------------- | |
| (=) Market Value: | = | $813,114 | |
| (–) Productivity Loss: | – | $0 | |
| | | -------------------------- | |
| (=) Subtotal: | = | $813,114 | |
| (+) Senior Appraised Value: | + | $0 | |
| (+) Non-Senior Appraised Value: | + | $813,114 | |
| | | -------------------------- | |
| (=) Total Appraised Value: | = | $813,114 | |
| (–) Senior Exemption Loss: | – | $0 | |
| (–) Exemption Loss: | – | $0 | |
| | | -------------------------- | |
| (=) Taxable Value: | = | $813,114 | |
Taxing Jurisdiction
| Owner: | HEGGENES, DONALD R | | |
| % Ownership: | 100.0000000000% | | |
| Total Value: | $813,114 | | |
| Tax Area: | 710 - APPRAISER-S Whid Schl Dist, outside Langley, improved & 1 acre or less |
| CF | Conservation Futures | 0.0316035091 | $813,114 | $813,114 | $25.70 | | |
| FIRE3 | Fire & Rescue Dist #3 S Whidbey GEN | 1.2004855531 | $813,114 | $813,114 | $976.13 | | |
| HOBOND | Hospital BOND | 0.1910887512 | $813,114 | $813,114 | $155.38 | | |
| HOGEN | Hospital GEN | 0.3902502903 | $813,114 | $813,114 | $317.32 | | |
| CE | County Current Expense | 0.3708482477 | $813,114 | $813,114 | $301.54 | | |
| CR | County Roads | 0.4584763726 | $813,114 | $813,114 | $372.79 | | |
| ISLANDEMS | Hospital GEN (EMS) | 0.5000000000 | $813,114 | $813,114 | $406.56 | | |
| LIB | Library Sno-Isle GEN | 0.3153421757 | $813,114 | $813,114 | $256.41 | | |
| PORTWHID | Port of S Whidbey GEN | 0.1094540357 | $813,114 | $813,114 | $89.00 | | |
| SCH206BOND | School 206 BOND | 0.3161759235 | $813,114 | $813,114 | $257.09 | | |
| SCH206MO | School 206 Enrichment | 0.4547169547 | $813,114 | $813,114 | $369.74 | | |
| ST | State School | 1.3035497053 | $813,114 | $813,114 | $1,059.93 | | |
| ST2 | State School Part 2 | 0.8169543533 | $813,114 | $813,114 | $664.28 | | |
| SWHIDPRBD | P & R S Whidbey BOND | 0.0152817568 | $813,114 | $813,114 | $12.43 | | |
| SWHIDPRBD2 | P & R S Whidbey BOND2 | 0.0138911264 | $813,114 | $813,114 | $11.30 | | |
| SWHIDPRMT | P & R S Whidbey GEN | 0.2053334452 | $813,114 | $813,114 | $166.96 | | |
| | Total Tax Rate: | 6.6934522006 | | | | | |
| | | | | Taxes w/Current Exemptions: | $5,442.56 | | |
| | | | | Taxes w/o Exemptions: | $5,442.56 | | |
Improvement / Building
| Improvement #1: | RESIDENTIAL | State Code: | Y | 1334.3 sqft | Value: | $493,114 |
| Bathrooms: | 2.5 | Bedrooms: | 2 | | Ceiling: | TONGUE & GROOVE | Cooling: | HEAT PUMP/CONV/V | | Exterior Wall/Cover: | WOOD SIDING | Floor Covering: | HARDWOOD 100% | | Floor Structure: | WOOD W/SUBFLOOR | Foundation: | CONCRETE | | Interior Finish: | DRYWALL PAINT | Plumbing Fixture Cnt: | 13 | | Roof Slope: | 8" IN 12" | Roof Structure/Cover: | CJ ASPHALT |
|
| | Type | Description | Class CD | Sub Class CD | Year Built | Area |
| | BAS | BASE/MAIN FLOOR | 4 | 0 | 2022 | 1091.3 |
| | UPH | HALF STORY | 4 | 0 | 2022 | 243.0 |
| | AGR | ATTACHED GARAGE | 4 | 0 | 2022 | 467.9 |
| | OWC | OPEN WOOD PORCH W/STEPS/ROOF/C | 4 | 0 | 2022 | 315.4 |
| | OWP | OPEN WOOD PORCH W/STEPS | 4 | 0 | 2022 | 52.6 |
| | OWC | OPEN WOOD PORCH W/STEPS/ROOF/C | 4 | 0 | 2022 | 49.0 |
Sketch
Property Image
Land
| 1 | 14 | SQ (08001-12000) | 0.0000 | 0.00 | 0.00 | 0.00 | 1.00 | $320,000 | $0 |
Roll Value History
| 2026 | N/A | N/A | N/A | N/A | N/A |
| 2025 | $493,114 | $320,000 | $0 | $813,114 | $813,114 |
| 2024 | $498,291 | $310,000 | $0 | $808,291 | $808,291 |
| 2023 | $506,629 | $310,000 | $0 | $816,629 | $816,629 |
| 2022 | $191,295 | $130,000 | $0 | $321,295 | $321,295 |
| 2021 | $35,000 | $130,000 | $0 | $165,000 | $165,000 |
| 2020 | $0 | $120,000 | $0 | $120,000 | $120,000 |
| 2019 | $0 | $170,000 | $0 | $170,000 | $170,000 |
| 2018 | $0 | $150,000 | $0 | $150,000 | $150,000 |
| 2017 | $0 | $150,000 | $0 | $150,000 | $150,000 |
| 2016 | $0 | $150,000 | $0 | $150,000 | $150,000 |
| 2015 | $0 | $150,000 | $0 | $150,000 | $150,000 |
| 2014 | $0 | $195,000 | $0 | $195,000 | $195,000 |
| 2013 | $0 | $195,000 | $0 | $195,000 | $195,000 |
| 2012 | $0 | $195,000 | $0 | $195,000 | $195,000 |
| 2011 | $0 | $195,000 | $0 | $195,000 | $195,000 |
| 2010 | $0 | $195,000 | $0 | $195,000 | $195,000 |
| 2009 | $0 | $232,000 | $0 | $232,000 | $232,000 |
| 2008 | $0 | $232,000 | $0 | $232,000 | $232,000 |
| 2007 | $0 | $232,000 | $0 | $232,000 | $232,000 |
Deed and Sales History
| 1 | 05/29/2018 | WD | Warranty Deed | MILLER TRUSTEE, TRUDY A | HEGGENES, DONALD R | | | $225,000.00 | 34277 | 4445185 |
| 2 | 10/29/2013 | TRUSTEED | Trustee's Deed | MILLER, TRUDY A | MILLER TRUSTEE, TRUDY A | | | $0.00 | 14097 | 4354301 |
| 3 | 10/29/2013 | ESTSEPPROP | Establish Separate Property | MILLER, TRUDY A | MILLER, TRUDY A | | | $0.00 | 13767 | 4352805 |
| 4 | 06/06/2001 | WD | Warranty Deed | JOHNSON, R H | MILLER, TRUDY A | | | $74,000.00 | 12080 | 20034108 |
| 5 | 04/01/1985 | WD | Warranty Deed | GREVE, DOUGLAS A | JOHNSON, R H | | | $16,000.00 | 50907 | 85003747 |
| 6 | 03/01/1979 | OTHER | Other - Misc. Documents | Unknown | GREVE, DOUGLAS A | | | $0.00 | 91067 | 348820 |
Payout Agreement
| No payout information available.. |