Property
Account |
| Property ID: | 408106 | Abbreviated Legal Description: | TELAKER SH LOT 29 BLK 2 & PT GL3 SEC 24-31-1E LY BTWN NLY EXT OF ELY & WLY LNS OF SD LOT & LY SLY OF LN DESC: BG PT 426.5'S OF NWCR GL4 S78*E 2714.5' TO ELN GL3 |
| Geographic ID: | S8300-00-02029-0 | Agent Code: | |
| Type: | Real | | |
| Tax Area: | 310 - APPRAISER-Cpvl Schl Dist, outside Cpvl, improved & 1 acre or less | Land Use Code | 11 |
| Open Space: | N | DFL | N |
| Historic Property: | N | Remodel Property: | N |
| Multi-Family Redevelopment: | N | | |
| Township: | | Section: | |
| Range: | |
Location |
| Address: | 238 KEYSTONE AVE COUPEVILLE, WA 98239 | Mapsco: | |
| Neighborhood: | Cycle 2 | Map ID: | 80 |
| Neighborhood CD: | 2 |
Owner |
| Name: | SCELJEN LLC | Owner ID: | 286793 |
| Mailing Address: | 1380 BONNIE VIEW ACRES OAK HARBOR, WA 98277 | % Ownership: | 100.0000000000% |
| | | Exemptions: | |
Taxes and Assessment Details
Values
| (+) Improvement Homesite Value: | + | $0 | |
| (+) Improvement Non-Homesite Value: | + | $172,489 | |
| (+) Land Homesite Value: | + | $0 | |
| (+) Land Non-Homesite Value: | + | $275,000 | |
| (+) Curr Use (HS): | + | $0 | $0 |
| (+) Curr Use (NHS): | + | $0 | $0 |
| | | -------------------------- | |
| (=) Market Value: | = | $447,489 | |
| (–) Productivity Loss: | – | $0 | |
| | | -------------------------- | |
| (=) Subtotal: | = | $447,489 | |
| (+) Senior Appraised Value: | + | $0 | |
| (+) Non-Senior Appraised Value: | + | $447,489 | |
| | | -------------------------- | |
| (=) Total Appraised Value: | = | $447,489 | |
| (–) Senior Exemption Loss: | – | $0 | |
| (–) Exemption Loss: | – | $0 | |
| | | -------------------------- | |
| (=) Taxable Value: | = | $447,489 | |
Taxing Jurisdiction
| Owner: | SCELJEN LLC | | |
| % Ownership: | 100.0000000000% | | |
| Total Value: | $447,489 | | |
| Tax Area: | 310 - APPRAISER-Cpvl Schl Dist, outside Cpvl, improved & 1 acre or less |
| CF | Conservation Futures | 0.0316035091 | $447,489 | $447,489 | $14.14 | | |
| CEM2 | Cemetery #2 | 0.0095056933 | $447,489 | $447,489 | $4.25 | | |
| FIRE5 | Fire & Rescue Dist #5 C Whidbey GEN | 1.2008080668 | $447,489 | $447,489 | $537.35 | | |
| FIRE5BOND | Fire & Rescue Dist #5 C Whidbey BOND | 0.1400090713 | $447,489 | $447,489 | $62.65 | | |
| HOBOND | Hospital BOND | 0.1910887512 | $447,489 | $447,489 | $85.51 | | |
| HOGEN | Hospital GEN | 0.3902502903 | $447,489 | $447,489 | $174.63 | | |
| CE | County Current Expense | 0.3708482477 | $447,489 | $447,489 | $165.95 | | |
| CR | County Roads | 0.4584763726 | $447,489 | $447,489 | $205.16 | | |
| ISLANDEMS | Hospital GEN (EMS) | 0.5000000000 | $447,489 | $447,489 | $223.74 | | |
| LIB | Library Sno-Isle GEN | 0.3153421757 | $447,489 | $447,489 | $141.11 | | |
| LIBCAP | Library Sno-Isle BOND (Cap Fac Imp Area) | 0.0543427938 | $447,489 | $447,489 | $24.32 | | |
| POCOUP | Port of Coupeville GEN | 0.1093371703 | $447,489 | $447,489 | $48.93 | | |
| POCOUPIDD | Port of Coupeville IDD | 0.3409740022 | $447,489 | $447,489 | $152.58 | | |
| COUPSDTECH | School 204 CP (TECH) | 0.7545480007 | $447,489 | $447,489 | $337.65 | | |
| SCH204MO | School 204 Enrichment | 0.6716186034 | $447,489 | $447,489 | $300.54 | | |
| ST | State School | 1.3035497053 | $447,489 | $447,489 | $583.32 | | |
| ST2 | State School Part 2 | 0.8169543533 | $447,489 | $447,489 | $365.58 | | |
| | Total Tax Rate: | 7.6592568070 | | | | | |
| | | | | Taxes w/Current Exemptions: | $3,427.41 | | |
| | | | | Taxes w/o Exemptions: | $3,427.41 | | |
Improvement / Building
| Improvement #1: | RESIDENTIAL | State Code: | Y | 912.0 sqft | Value: | $172,489 |
| Bathrooms: | 1 | Bedrooms: | 2 | | Ceiling: | BEAM PAINTED | Exterior Wall/Cover: | WOOD SIDING | | Floor Covering: | CARPET/VINYL 80-20 | Floor Structure: | WOOD W/SUBFLOOR | | Foundation: | CONCRETE | Heating: | BASEBOARD ELECTRIC | | Interior Finish: | DRYWALL PAINT | Plumbing Fixture Cnt: | 6 | | Roof Slope: | 3" IN 12" | Roof Structure/Cover: | BEAM ASPHALT |
|
| | Type | Description | Class CD | Sub Class CD | Year Built | Area |
| | BAS | BASE/MAIN FLOOR | 3 | 0 | 1971 | 576.0 |
| | UPS | UPPER STORY | 3 | 0 | 1971 | 336.0 |
| | OWP | OPEN WOOD PORCH W/STEPS | 3 | 0 | 1971 | 84.0 |
| | OWP | OPEN WOOD PORCH W/STEPS | 3 | 0 | 1971 | 112.0 |
| | OWR | OPEN WOOD PORCH W/STEPS/ROOF | 3 | 0 | 1971 | 84.0 |
| | oUTI | UTILITY | 3 | 0 | 2018 | 160.0 |
Sketch
Property Image
Land
| 1 | 15 | SQ (12001-21780) | 0.4600 | 20037.60 | 0.00 | 0.00 | 1.00 | $275,000 | $0 |
Roll Value History
| 2026 | N/A | N/A | N/A | N/A | N/A |
| 2025 | $172,489 | $275,000 | $0 | $447,489 | $447,489 |
| 2024 | $168,639 | $250,000 | $0 | $418,639 | $418,639 |
| 2023 | $170,663 | $250,000 | $0 | $420,663 | $420,663 |
| 2022 | $156,372 | $240,000 | $0 | $396,372 | $396,372 |
| 2021 | $137,570 | $160,000 | $0 | $297,570 | $297,570 |
| 2020 | $133,909 | $160,000 | $0 | $293,909 | $293,909 |
| 2019 | $94,493 | $160,000 | $0 | $254,493 | $254,493 |
| 2018 | $59,020 | $160,000 | $0 | $219,020 | $219,020 |
| 2017 | $59,465 | $160,000 | $0 | $219,465 | $219,465 |
| 2016 | $60,352 | $65,000 | $0 | $125,352 | $125,352 |
| 2015 | $61,238 | $65,000 | $0 | $126,238 | $126,238 |
| 2014 | $62,127 | $65,000 | $0 | $127,127 | $127,127 |
| 2013 | $63,013 | $65,000 | $0 | $128,013 | $128,013 |
| 2012 | $56,670 | $47,430 | $0 | $104,100 | $104,100 |
| 2011 | $57,555 | $55,800 | $0 | $113,355 | $113,355 |
| 2010 | $64,259 | $55,800 | $0 | $120,059 | $120,059 |
| 2009 | $65,287 | $60,000 | $0 | $125,287 | $125,287 |
| 2008 | $65,287 | $60,000 | $0 | $125,287 | $125,287 |
| 2007 | $65,520 | $60,000 | $0 | $125,520 | $125,520 |
Deed and Sales History
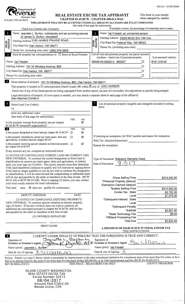
| 1 | 09/05/2018 | QCD | Quit Claim Deed | SCELZI, FRANK | SCELJEN LLC | | | $0.00 | 35791 | 4451271 |
| 2 | 08/24/2017 | WD | Warranty Deed | EDENHOLM, ROY | SCELZI, FRANK | | | $212,000.00 | 30789 | 4428872 |
|   | |
| 3 | 05/31/2011 | QCD | Quit Claim Deed | EDENHOLM, ROY | EDENHOLM, ROY | | | $0.00 | 4619 | 4296304 |
| 4 | 04/09/2001 | QCD | Quit Claim Deed | EDENHOLM, ROY | EDENHOLM, ROY | | | $0.00 | 11173 | 20029335 |
| 5 | 06/01/1994 | QCD | Quit Claim Deed | EDENHOLM, ROY | EDENHOLM, ROY | | | $0.00 | 42526 | 94014051 |
| 6 | 03/01/1985 | QCD | Quit Claim Deed | EDENHOLM, BARBARA | EDENHOLM, ROY | | | $0.00 | 52723 | 85010780 |
| 7 | 03/01/1984 | WD | Warranty Deed | EDENHOLM, BARBARA | EDENHOLM, BARBARA | | | $46,000.00 | 40629 | 421996 |
| 8 | 03/01/1984 | QCD | Quit Claim Deed | ENGEL, LLOYD S | EDENHOLM, BARBARA | | | $0.00 | 40630 | 421998 |
| 9 | 01/01/1900 | OTHER | Other - Misc. Documents | Unknown | ENGEL, LLOYD S | | | $3,000.00 | 0 | 0 |
Payout Agreement
| No payout information available.. |