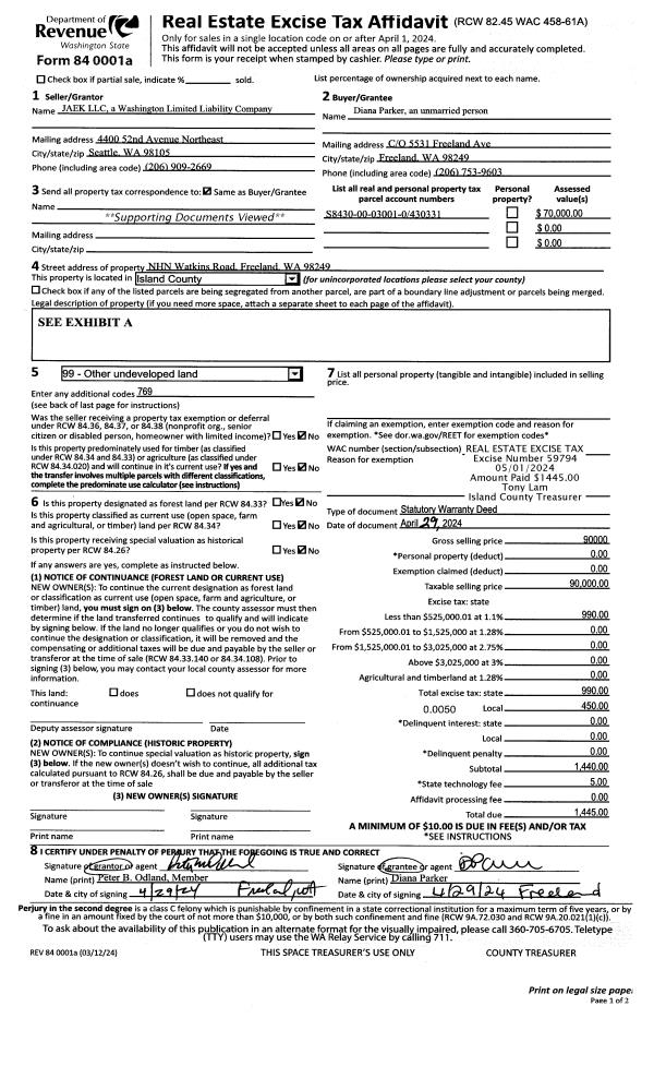
Property
Account |
| Property ID: | 40832 | Abbreviated Legal Description: | 19 - N150' OF E/2 OF GL1 EX W159' EX N30' EX TRIANGLE IN SE CR TGW TRIANGLE IN NW CR L41 SPRING HILL 2 |
| Geographic ID: | R13334-123-3100 | Agent Code: | |
| Type: | Real | | |
| Tax Area: | 100 - APPRAISER-OH Schl Dist, in OH | Land Use Code | 11 |
| Open Space: | N | DFL | N |
| Historic Property: | N | Remodel Property: | N |
| Multi-Family Redevelopment: | N | | |
| Township: | 33 | Section: | 34 |
| Range: | R1 |
Location |
| Address: | 839 NW 2ND AVE OAK HARBOR, WA 98277 | Mapsco: | |
| Neighborhood: | Cycle 1 | Map ID: | 253 |
| Neighborhood CD: | 1 |
Owner |
| Name: | SEIM, MOEKO | Owner ID: | 314620 |
| Mailing Address: | 839 NW 2ND AVE OAK HARBOR, WA 98277 | % Ownership: | 100.0000000000% |
| | | Exemptions: | |
Taxes and Assessment Details
Values
| (+) Improvement Homesite Value: | + | $0 | |
| (+) Improvement Non-Homesite Value: | + | $250,821 | |
| (+) Land Homesite Value: | + | $0 | |
| (+) Land Non-Homesite Value: | + | $200,000 | |
| (+) Curr Use (HS): | + | $0 | $0 |
| (+) Curr Use (NHS): | + | $0 | $0 |
| | | -------------------------- | |
| (=) Market Value: | = | $450,821 | |
| (–) Productivity Loss: | – | $0 | |
| | | -------------------------- | |
| (=) Subtotal: | = | $450,821 | |
| (+) Senior Appraised Value: | + | $0 | |
| (+) Non-Senior Appraised Value: | + | $450,821 | |
| | | -------------------------- | |
| (=) Total Appraised Value: | = | $450,821 | |
| (–) Senior Exemption Loss: | – | $0 | |
| (–) Exemption Loss: | – | $0 | |
| | | -------------------------- | |
| (=) Taxable Value: | = | $450,821 | |
Taxing Jurisdiction
| Owner: | SEIM, MOEKO | | |
| % Ownership: | 100.0000000000% | | |
| Total Value: | $450,821 | | |
| Tax Area: | 100 - APPRAISER-OH Schl Dist, in OH |
| CF | Conservation Futures | 0.0316035091 | $450,821 | $450,821 | $14.25 | | |
| CEM1 | Cemetery #1 | 0.0040320932 | $450,821 | $450,821 | $1.82 | | |
| COH | City of Oak Harbor | 2.3001546061 | $450,821 | $450,821 | $1,036.96 | | |
| OAKBOND | City of Oak Harbor BOND | 0.1926904192 | $450,821 | $450,821 | $86.87 | | |
| HOBOND | Hospital BOND | 0.1910887512 | $450,821 | $450,821 | $86.15 | | |
| HOGEN | Hospital GEN | 0.3902502903 | $450,821 | $450,821 | $175.93 | | |
| CE | County Current Expense | 0.3708482477 | $450,821 | $450,821 | $167.19 | | |
| ISLANDEMS | Hospital GEN (EMS) | 0.5000000000 | $450,821 | $450,821 | $225.41 | | |
| LIB | Library Sno-Isle GEN | 0.3153421757 | $450,821 | $450,821 | $142.16 | | |
| NWHIDPRMT | P & R N Whidbey GEN | 0.2004466701 | $450,821 | $450,821 | $90.37 | | |
| SCH201MO | School 201 Enrichment | 1.8559231640 | $450,821 | $450,821 | $836.69 | | |
| ST | State School | 1.3035497053 | $450,821 | $450,821 | $587.67 | | |
| ST2 | State School Part 2 | 0.8169543533 | $450,821 | $450,821 | $368.30 | | |
| | Total Tax Rate: | 8.4728839852 | | | | | |
| | | | | Taxes w/Current Exemptions: | $3,819.77 | | |
| | | | | Taxes w/o Exemptions: | $3,819.77 | | |
Improvement / Building
| Improvement #1: | RESIDENTIAL | State Code: | Y | 2588.2 sqft | Value: | $250,821 |
| Bathrooms: | 2 | Bedrooms: | 4 | | Ceiling: | DRY WALL SPRAYED | Exterior Wall/Cover: | WOOD SIDING | | Floor Covering: | CARPET/VINYL 80-20 | Floor Structure: | WOOD W/SUBFLOOR | | Foundation: | CONCRETE | Heating: | BASEBOARD ELECTRIC | | Interior Finish: | DRYWALL PAINT | Plumbing Fixture Cnt: | 9 | | Roof Slope: | 4" IN 12" | Roof Structure/Cover: | CJ WOOD SHAKES |
|
| | Type | Description | Class CD | Sub Class CD | Year Built | Area |
| | BAS | BASE/MAIN FLOOR | 3 | 0 | 1973 | 1401.0 |
| | DWN | DOWNSTAIRS LIVING AREA | 3 | 0 | 1973 | 1187.2 |
| | AGR | ATTACHED GARAGE | 3 | 0 | 1973 | 534.6 |
| | UTY | STORAGE/UTILITY | 3 | 0 | 1973 | 112.8 |
| | BAW | BALCONY WOOD RAIL | 3 | 0 | 1973 | 120.0 |
| | OWP | OPEN WOOD PORCH W/STEPS | 3 | 0 | 1973 | 28.0 |
Sketch
Property Image
Land
| 1 | 15 | SQ (12001-21780) | 0.3400 | 14810.40 | 0.00 | 0.00 | 1.00 | $200,000 | $0 |
Roll Value History
| 2026 | N/A | N/A | N/A | N/A | N/A |
| 2025 | $250,821 | $200,000 | $0 | $450,821 | $450,821 |
| 2024 | $260,435 | $190,000 | $0 | $450,435 | $450,435 |
| 2023 | $260,435 | $190,000 | $0 | $450,435 | $450,435 |
| 2022 | $239,435 | $180,000 | $0 | $419,435 | $419,435 |
| 2021 | $224,727 | $135,000 | $0 | $359,727 | $359,727 |
| 2020 | $219,486 | $100,000 | $0 | $319,486 | $319,486 |
| 2019 | $158,962 | $150,000 | $0 | $308,962 | $308,962 |
| 2018 | $159,536 | $130,000 | $0 | $289,536 | $289,536 |
| 2017 | $133,264 | $110,000 | $0 | $243,264 | $243,264 |
| 2016 | $135,522 | $90,000 | $0 | $225,522 | $225,522 |
| 2015 | $137,779 | $70,000 | $0 | $207,779 | $207,779 |
| 2014 | $140,038 | $55,000 | $0 | $195,038 | $195,038 |
| 2013 | $142,297 | $55,000 | $0 | $197,297 | $197,297 |
| 2012 | $144,558 | $65,000 | $0 | $209,558 | $209,558 |
| 2011 | $146,815 | $65,000 | $0 | $211,815 | $211,815 |
| 2010 | $160,128 | $65,000 | $0 | $225,128 | $225,128 |
| 2009 | $167,236 | $87,150 | $0 | $254,386 | $254,386 |
| 2008 | $169,548 | $105,000 | $0 | $274,548 | $274,548 |
| 2007 | $171,877 | $105,000 | $0 | $276,877 | $276,877 |
Deed and Sales History
| 1 | 11/15/2024 | LACPROBATE | Lack of Probate | SEIM, GERALD I | SEIM, MOEKO | | | $0.00 | 61889 | 4579661 |
Payout Agreement
| No payout information available.. |