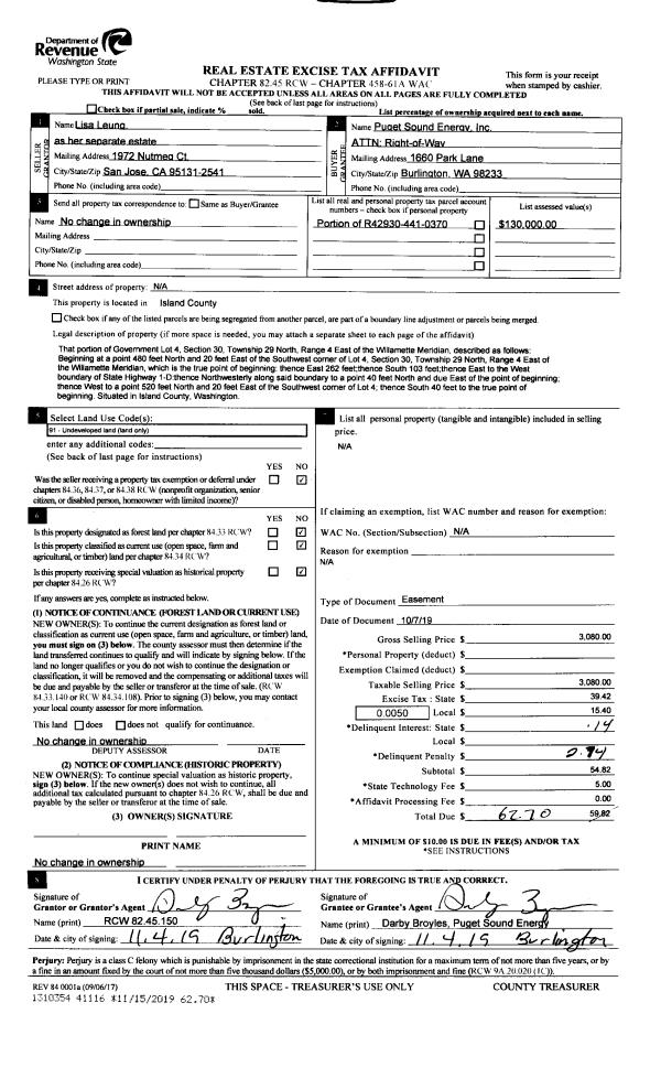
Property
Account |
| Property ID: | 408954 | Abbreviated Legal Description: | TER WEST 3 LOT 6 BLK 9 |
| Geographic ID: | S8305-03-09006-0 | Agent Code: | |
| Type: | Real | | |
| Tax Area: | 319 - APPRAISER-Cpvl Schl Dist, outside Cpvl, vacant & 50 acres or less | Land Use Code | 99 |
| Open Space: | N | DFL | N |
| Historic Property: | N | Remodel Property: | N |
| Multi-Family Redevelopment: | N | | |
| Township: | | Section: | |
| Range: | |
Location |
| Address: | | Mapsco: | |
| Neighborhood: | Cycle 2 | Map ID: | 524 |
| Neighborhood CD: | 2 |
Owner |
| Name: | RILEY, JULIA | Owner ID: | 292193 |
| Mailing Address: | PO BOX 240 CASTELLA, CA 96017 | % Ownership: | 100.0000000000% |
| | | Exemptions: | |
Taxes and Assessment Details
Values
| (+) Improvement Homesite Value: | + | $0 | |
| (+) Improvement Non-Homesite Value: | + | $0 | |
| (+) Land Homesite Value: | + | $0 | |
| (+) Land Non-Homesite Value: | + | $70,000 | |
| (+) Curr Use (HS): | + | $0 | $0 |
| (+) Curr Use (NHS): | + | $0 | $0 |
| | | -------------------------- | |
| (=) Market Value: | = | $70,000 | |
| (–) Productivity Loss: | – | $0 | |
| | | -------------------------- | |
| (=) Subtotal: | = | $70,000 | |
| (+) Senior Appraised Value: | + | $0 | |
| (+) Non-Senior Appraised Value: | + | $70,000 | |
| | | -------------------------- | |
| (=) Total Appraised Value: | = | $70,000 | |
| (–) Senior Exemption Loss: | – | $0 | |
| (–) Exemption Loss: | – | $0 | |
| | | -------------------------- | |
| (=) Taxable Value: | = | $70,000 | |
Taxing Jurisdiction
| Owner: | RILEY, JULIA | | |
| % Ownership: | 100.0000000000% | | |
| Total Value: | $70,000 | | |
| Tax Area: | 319 - APPRAISER-Cpvl Schl Dist, outside Cpvl, vacant & 50 acres or less |
| CF | Conservation Futures | 0.0316035091 | $70,000 | $70,000 | $2.21 | | |
| CEM2 | Cemetery #2 | 0.0095056933 | $70,000 | $70,000 | $0.67 | | |
| HOBOND | Hospital BOND | 0.1910887512 | $70,000 | $70,000 | $13.38 | | |
| HOGEN | Hospital GEN | 0.3902502903 | $70,000 | $70,000 | $27.32 | | |
| CE | County Current Expense | 0.3708482477 | $70,000 | $70,000 | $25.96 | | |
| CR | County Roads | 0.4584763726 | $70,000 | $70,000 | $32.09 | | |
| ISLANDEMS | Hospital GEN (EMS) | 0.5000000000 | $70,000 | $70,000 | $35.00 | | |
| LIB | Library Sno-Isle GEN | 0.3153421757 | $70,000 | $70,000 | $22.07 | | |
| LIBCAP | Library Sno-Isle BOND (Cap Fac Imp Area) | 0.0543427938 | $70,000 | $70,000 | $3.80 | | |
| POCOUP | Port of Coupeville GEN | 0.1093371703 | $70,000 | $70,000 | $7.65 | | |
| POCOUPIDD | Port of Coupeville IDD | 0.3409740022 | $70,000 | $70,000 | $23.87 | | |
| COUPSDTECH | School 204 CP (TECH) | 0.7545480007 | $70,000 | $70,000 | $52.82 | | |
| SCH204MO | School 204 Enrichment | 0.6716186034 | $70,000 | $70,000 | $47.01 | | |
| ST | State School | 1.3035497053 | $70,000 | $70,000 | $91.25 | | |
| ST2 | State School Part 2 | 0.8169543533 | $70,000 | $70,000 | $57.19 | | |
| | Total Tax Rate: | 6.3184396689 | | | | | |
| | | | | Taxes w/Current Exemptions: | $442.29 | | |
| | | | | Taxes w/o Exemptions: | $442.29 | | |
Improvement / Building
Sketch
| No sketches available for this property. |
Property Image
Land
| 1 | 13 | SQ (06001-08000) | 0.1300 | 5662.80 | 0.00 | 0.00 | 1.00 | $70,000 | $0 |
Roll Value History
| 2026 | N/A | N/A | N/A | N/A | N/A |
| 2025 | $0 | $70,000 | $0 | $70,000 | $70,000 |
| 2024 | $0 | $60,000 | $0 | $60,000 | $60,000 |
| 2023 | $0 | $60,000 | $0 | $60,000 | $60,000 |
| 2022 | $0 | $40,000 | $0 | $40,000 | $40,000 |
| 2021 | $0 | $30,000 | $0 | $30,000 | $30,000 |
| 2020 | $0 | $30,000 | $0 | $30,000 | $30,000 |
| 2019 | $0 | $30,000 | $0 | $30,000 | $30,000 |
| 2018 | $0 | $30,000 | $0 | $30,000 | $30,000 |
| 2017 | $0 | $30,000 | $0 | $30,000 | $30,000 |
| 2016 | $0 | $30,000 | $0 | $30,000 | $30,000 |
| 2015 | $0 | $30,000 | $0 | $30,000 | $30,000 |
| 2014 | $0 | $30,000 | $0 | $30,000 | $30,000 |
| 2013 | $0 | $30,000 | $0 | $30,000 | $30,000 |
| 2012 | $0 | $30,000 | $0 | $30,000 | $30,000 |
| 2011 | $0 | $30,000 | $0 | $30,000 | $30,000 |
| 2010 | $0 | $30,000 | $0 | $30,000 | $30,000 |
| 2009 | $0 | $45,000 | $0 | $45,000 | $45,000 |
| 2008 | $0 | $45,100 | $0 | $45,100 | $45,100 |
| 2007 | $0 | $41,250 | $0 | $41,250 | $41,250 |
Deed and Sales History
| 1 | 10/03/2019 | QCD | Quit Claim Deed | RILEY, NATALIE E | RILEY, JULIA | | | $0.00 | 40672 | 4473244 |
| 2 | 12/15/2016 | TTAXD | Treasurer's Tax Deed | ISLAND COUNTY TREASURER | RILEY, NATALIE E. | | | $3,593.00 | 27360 | 4413398 |
| 3 | 12/31/2009 | QCD | Quit Claim Deed | RENAS, MELVINO L | HINDS, MITCHELL | | | $0.00 | 93227 | 4266350 |
| 4 | 12/01/1991 | WD | Warranty Deed | OUELLETTE, CHARLES A | RENAS, MELVINO L | | | $25,600.00 | 14293 | 91018704 |
| 5 | 11/01/1988 | REC | Real Estate Contract | MCKEW, INC | OUELLETTE, CHARLES A | | | $25,600.00 | 83865 | 88014433 |
| 6 | 10/01/1984 | QCD | Quit Claim Deed | EDVALDS, L O | MCKEW, INC | | | $0.00 | 42999 | 84004372 |
| 7 | 10/01/1979 | REC | Real Estate Contract | KANGAS, JOSEPH W | EDVALDS, L O | | | $500.00 | 21018 | 395815 |
| 8 | 01/01/1900 | OTHER | Other - Misc. Documents | Unknown | KANGAS, JOSEPH W | | | $0.00 | 0 | 0 |
Payout Agreement
| No payout information available.. |