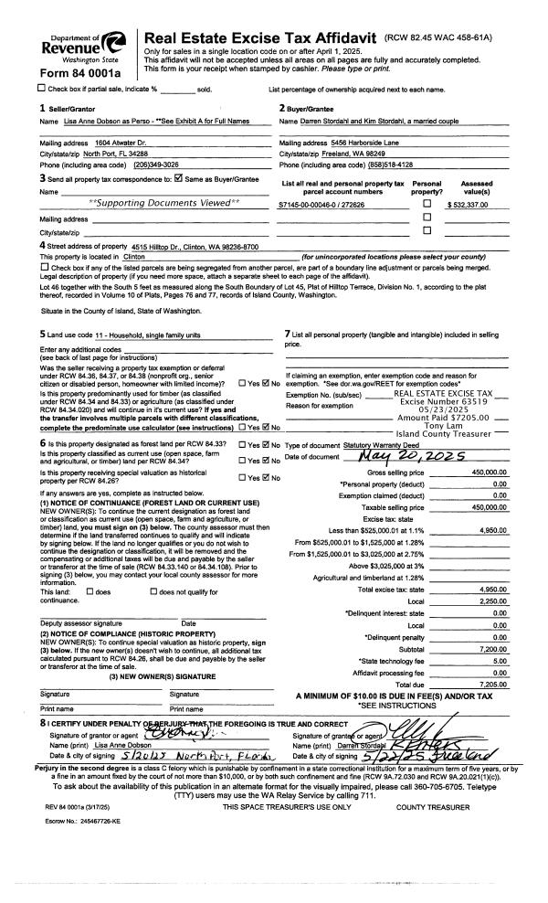
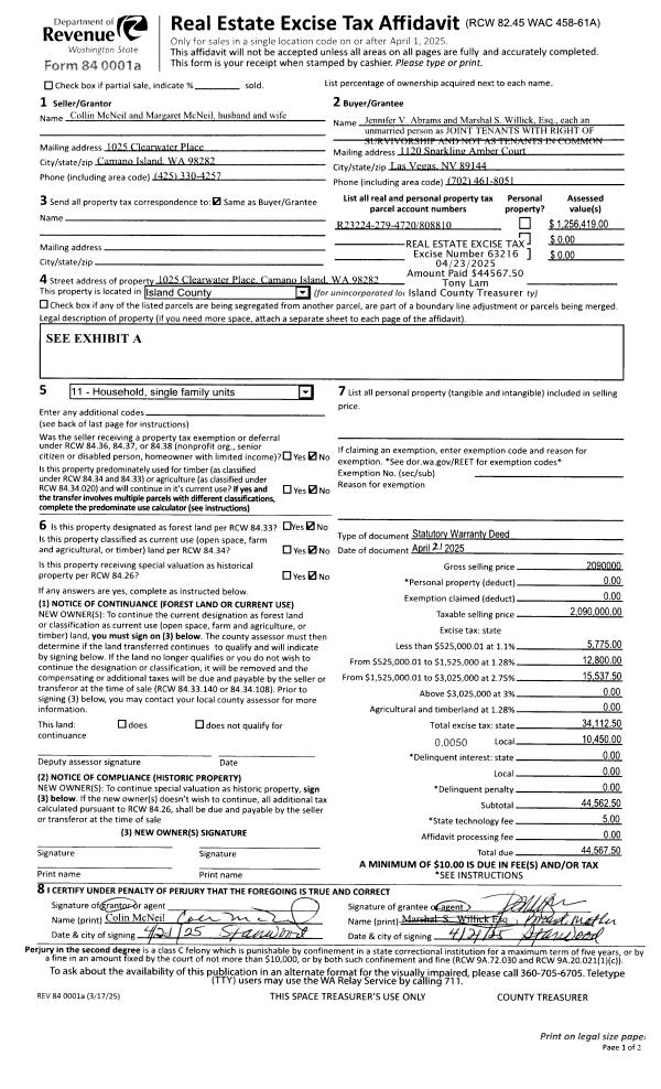
Property
Account |
| Property ID: | 409105 | Abbreviated Legal Description: | TER WEST 3 LOT 15 BLK 10 |
| Geographic ID: | S8305-03-10015-0 | Agent Code: | |
| Type: | Real | | |
| Tax Area: | 310 - APPRAISER-Cpvl Schl Dist, outside Cpvl, improved & 1 acre or less | Land Use Code | 11 |
| Open Space: | N | DFL | N |
| Historic Property: | N | Remodel Property: | N |
| Multi-Family Redevelopment: | N | | |
| Township: | | Section: | |
| Range: | |
Location |
| Address: | 2282 TERONDA BEACH RD COUPEVILLE, WA 98239 | Mapsco: | |
| Neighborhood: | Cycle 2 | Map ID: | 524 |
| Neighborhood CD: | 2 |
Owner |
| Name: | YOUNG, WESLY | Owner ID: | 314706 |
| Mailing Address: | ANDREA YOUNG 2282 TERONDA BEACH RD COUPEVILLE, WA 98239 | % Ownership: | 100.0000000000% |
| | | Exemptions: | |
Taxes and Assessment Details
Values
| (+) Improvement Homesite Value: | + | $0 | |
| (+) Improvement Non-Homesite Value: | + | $287,178 | |
| (+) Land Homesite Value: | + | $0 | |
| (+) Land Non-Homesite Value: | + | $425,000 | |
| (+) Curr Use (HS): | + | $0 | $0 |
| (+) Curr Use (NHS): | + | $0 | $0 |
| | | -------------------------- | |
| (=) Market Value: | = | $712,178 | |
| (–) Productivity Loss: | – | $0 | |
| | | -------------------------- | |
| (=) Subtotal: | = | $712,178 | |
| (+) Senior Appraised Value: | + | $0 | |
| (+) Non-Senior Appraised Value: | + | $712,178 | |
| | | -------------------------- | |
| (=) Total Appraised Value: | = | $712,178 | |
| (–) Senior Exemption Loss: | – | $0 | |
| (–) Exemption Loss: | – | $0 | |
| | | -------------------------- | |
| (=) Taxable Value: | = | $712,178 | |
Taxing Jurisdiction
| Owner: | YOUNG, WESLY | | |
| % Ownership: | 100.0000000000% | | |
| Total Value: | $712,178 | | |
| Tax Area: | 310 - APPRAISER-Cpvl Schl Dist, outside Cpvl, improved & 1 acre or less |
| CF | Conservation Futures | 0.0316035091 | $712,178 | $712,178 | $22.51 | | |
| CEM2 | Cemetery #2 | 0.0095056933 | $712,178 | $712,178 | $6.77 | | |
| FIRE5 | Fire & Rescue Dist #5 C Whidbey GEN | 1.2008080668 | $712,178 | $712,178 | $855.19 | | |
| FIRE5BOND | Fire & Rescue Dist #5 C Whidbey BOND | 0.1400090713 | $712,178 | $712,178 | $99.71 | | |
| HOBOND | Hospital BOND | 0.1910887512 | $712,178 | $712,178 | $136.09 | | |
| HOGEN | Hospital GEN | 0.3902502903 | $712,178 | $712,178 | $277.93 | | |
| CE | County Current Expense | 0.3708482477 | $712,178 | $712,178 | $264.11 | | |
| CR | County Roads | 0.4584763726 | $712,178 | $712,178 | $326.52 | | |
| ISLANDEMS | Hospital GEN (EMS) | 0.5000000000 | $712,178 | $712,178 | $356.09 | | |
| LIB | Library Sno-Isle GEN | 0.3153421757 | $712,178 | $712,178 | $224.58 | | |
| LIBCAP | Library Sno-Isle BOND (Cap Fac Imp Area) | 0.0543427938 | $712,178 | $712,178 | $38.70 | | |
| POCOUP | Port of Coupeville GEN | 0.1093371703 | $712,178 | $712,178 | $77.87 | | |
| POCOUPIDD | Port of Coupeville IDD | 0.3409740022 | $712,178 | $712,178 | $242.83 | | |
| COUPSDTECH | School 204 CP (TECH) | 0.7545480007 | $712,178 | $712,178 | $537.37 | | |
| SCH204MO | School 204 Enrichment | 0.6716186034 | $712,178 | $712,178 | $478.31 | | |
| ST | State School | 1.3035497053 | $712,178 | $712,178 | $928.36 | | |
| ST2 | State School Part 2 | 0.8169543533 | $712,178 | $712,178 | $581.82 | | |
| | Total Tax Rate: | 7.6592568070 | | | | | |
| | | | | Taxes w/Current Exemptions: | $5,454.76 | | |
| | | | | Taxes w/o Exemptions: | $5,454.76 | | |
Improvement / Building
| Improvement #1: | RESIDENTIAL | State Code: | Y | 1095.9 sqft | Value: | $287,178 |
| Bathrooms: | 1.5 | Bedrooms: | 1 | | Ceiling: | TONGUE & GROOVE | Exterior Wall/Cover: | WOOD SIDING | | Floor Covering: | HARDWOOD/CARP 60-40 | Floor Structure: | WOOD W/SUBFLOOR | | Foundation: | CONCRETE | Heating: | FHA ELECTRIC | | Interior Finish: | DRYWALL PAINT | Plumbing Fixture Cnt: | 9 | | Roof Slope: | 5" IN 12" | Roof Structure/Cover: | CJ ALUMINIUM HEAVY |
|
| | Type | Description | Class CD | Sub Class CD | Year Built | Area |
| | BAS | BASE/MAIN FLOOR | 4 | 0 | 1993 | 547.2 |
| | BIG | BUILT IN GARAGE | 4 | 0 | 1993 | 355.0 |
| | UPS | UPPER STORY | 4 | 0 | 1993 | 392.5 |
| | OWP | OPEN WOOD PORCH W/STEPS | 4 | 0 | 1993 | 595.2 |
| | LOF | LOFT | 4 | 0 | 1993 | 156.2 |
Sketch
Property Image
Land
| 1 | HB | HIGH BLUFF | 0.3484 | 15176.30 | 104.00 | 0.00 | 1.00 | $425,000 | $0 |
Roll Value History
| 2026 | N/A | N/A | N/A | N/A | N/A |
| 2025 | $287,178 | $425,000 | $0 | $712,178 | $712,178 |
| 2024 | $284,207 | $425,000 | $0 | $709,207 | $709,207 |
| 2023 | $287,579 | $425,000 | $0 | $712,579 | $712,579 |
| 2022 | $263,453 | $350,000 | $0 | $613,453 | $613,453 |
| 2021 | $231,751 | $325,000 | $0 | $556,751 | $556,751 |
| 2020 | $225,320 | $300,000 | $0 | $525,320 | $525,320 |
| 2019 | $161,737 | $350,000 | $0 | $511,737 | $511,737 |
| 2018 | $143,609 | $250,000 | $0 | $393,609 | $393,609 |
| 2017 | $144,397 | $200,000 | $0 | $344,397 | $344,397 |
| 2016 | $146,038 | $200,000 | $0 | $346,038 | $346,038 |
| 2015 | $147,679 | $200,000 | $0 | $347,679 | $347,679 |
| 2014 | $149,321 | $200,000 | $0 | $349,321 | $349,321 |
| 2013 | $150,961 | $200,000 | $0 | $350,961 | $350,961 |
| 2012 | $146,112 | $264,206 | $0 | $410,318 | $410,318 |
| 2011 | $147,939 | $264,206 | $0 | $412,145 | $412,145 |
| 2010 | $151,000 | $264,206 | $0 | $415,206 | $415,206 |
| 2009 | $157,469 | $318,306 | $0 | $475,775 | $475,775 |
| 2008 | $159,334 | $356,049 | $0 | $515,383 | $515,383 |
| 2007 | $161,197 | $356,049 | $0 | $517,246 | $517,246 |
Deed and Sales History
| 1 | 11/25/2024 | WD | Warranty Deed | STARLING TTEE, J CHRISTOPHER | YOUNG, WESLY | | | $630,000.00 | 61955 | 4579888 |
|   | |
| 2 | 08/23/2022 | WD | Warranty Deed | STARLING, J CHRISTOPHER | STARLING TTEE, J CHRISTOPHER | | | $0.00 | 54330 | 4550387 |
| 3 | 09/01/1997 | WD | Warranty Deed | HARPER, WILLIAM H | STARLING, J C | | | $235,000.00 | 73285 | 97015484 |
| 4 | 02/01/1992 | WD | Warranty Deed | PARK, DAVID K | HARPER, WILLIAM H | | | $45,000.00 | 20845 | 92004266 |
| 5 | 07/01/1978 | OTHER | Other - Misc. Documents | Unknown | PARK, DAVID K | | | $20,000.00 | 83580 | 337018 |
Payout Agreement
| No payout information available.. |