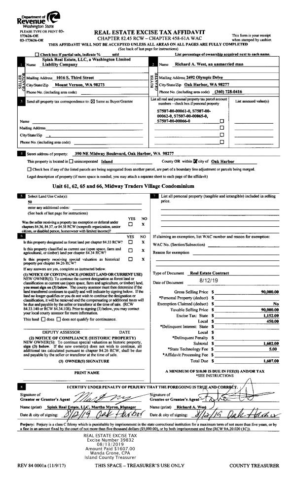
Property
Account |
| Property ID: | 409221 | Abbreviated Legal Description: | TER WEST 4 LOT 1 BLK 12 |
| Geographic ID: | S8305-04-12001-0 | Agent Code: | |
| Type: | Real | | |
| Tax Area: | 310 - APPRAISER-Cpvl Schl Dist, outside Cpvl, improved & 1 acre or less | Land Use Code | 11 |
| Open Space: | N | DFL | N |
| Historic Property: | N | Remodel Property: | N |
| Multi-Family Redevelopment: | N | | |
| Township: | | Section: | |
| Range: | |
Location |
| Address: | 2208 INVERNESS WAY COUPEVILLE, WA 98239 | Mapsco: | |
| Neighborhood: | Cycle 2 | Map ID: | 525 |
| Neighborhood CD: | 2 |
Owner |
| Name: | WILLIAMS, RANDALL W | Owner ID: | 55864 |
| Mailing Address: | MARY L RIEDERER 2208 INVERNESS WAY COUPEVILLE, WA 98239-9613 | % Ownership: | 100.0000000000% |
| | | Exemptions: | |
Taxes and Assessment Details
Values
| (+) Improvement Homesite Value: | + | $0 | |
| (+) Improvement Non-Homesite Value: | + | $510,532 | |
| (+) Land Homesite Value: | + | $0 | |
| (+) Land Non-Homesite Value: | + | $425,000 | |
| (+) Curr Use (HS): | + | $0 | $0 |
| (+) Curr Use (NHS): | + | $0 | $0 |
| | | -------------------------- | |
| (=) Market Value: | = | $935,532 | |
| (–) Productivity Loss: | – | $0 | |
| | | -------------------------- | |
| (=) Subtotal: | = | $935,532 | |
| (+) Senior Appraised Value: | + | $0 | |
| (+) Non-Senior Appraised Value: | + | $935,532 | |
| | | -------------------------- | |
| (=) Total Appraised Value: | = | $935,532 | |
| (–) Senior Exemption Loss: | – | $0 | |
| (–) Exemption Loss: | – | $0 | |
| | | -------------------------- | |
| (=) Taxable Value: | = | $935,532 | |
Taxing Jurisdiction
| Owner: | WILLIAMS, RANDALL W | | |
| % Ownership: | 100.0000000000% | | |
| Total Value: | $935,532 | | |
| Tax Area: | 310 - APPRAISER-Cpvl Schl Dist, outside Cpvl, improved & 1 acre or less |
| CF | Conservation Futures | 0.0316035091 | $935,532 | $935,532 | $29.57 | | |
| CEM2 | Cemetery #2 | 0.0095056933 | $935,532 | $935,532 | $8.89 | | |
| FIRE5 | Fire & Rescue Dist #5 C Whidbey GEN | 1.2008080668 | $935,532 | $935,532 | $1,123.39 | | |
| FIRE5BOND | Fire & Rescue Dist #5 C Whidbey BOND | 0.1400090713 | $935,532 | $935,532 | $130.98 | | |
| HOBOND | Hospital BOND | 0.1910887512 | $935,532 | $935,532 | $178.77 | | |
| HOGEN | Hospital GEN | 0.3902502903 | $935,532 | $935,532 | $365.09 | | |
| CE | County Current Expense | 0.3708482477 | $935,532 | $935,532 | $346.94 | | |
| CR | County Roads | 0.4584763726 | $935,532 | $935,532 | $428.92 | | |
| ISLANDEMS | Hospital GEN (EMS) | 0.5000000000 | $935,532 | $935,532 | $467.77 | | |
| LIB | Library Sno-Isle GEN | 0.3153421757 | $935,532 | $935,532 | $295.01 | | |
| LIBCAP | Library Sno-Isle BOND (Cap Fac Imp Area) | 0.0543427938 | $935,532 | $935,532 | $50.84 | | |
| POCOUP | Port of Coupeville GEN | 0.1093371703 | $935,532 | $935,532 | $102.29 | | |
| POCOUPIDD | Port of Coupeville IDD | 0.3409740022 | $935,532 | $935,532 | $318.99 | | |
| COUPSDTECH | School 204 CP (TECH) | 0.7545480007 | $935,532 | $935,532 | $705.90 | | |
| SCH204MO | School 204 Enrichment | 0.6716186034 | $935,532 | $935,532 | $628.32 | | |
| ST | State School | 1.3035497053 | $935,532 | $935,532 | $1,219.51 | | |
| ST2 | State School Part 2 | 0.8169543533 | $935,532 | $935,532 | $764.29 | | |
| | Total Tax Rate: | 7.6592568070 | | | | | |
| | | | | Taxes w/Current Exemptions: | $7,165.47 | | |
| | | | | Taxes w/o Exemptions: | $7,165.47 | | |
Improvement / Building
| Improvement #1: | RESIDENTIAL | State Code: | Y | 2099.6 sqft | Value: | $510,532 |
| Bathrooms: | 2.5 | Bedrooms: | 3 | | Ceiling: | TONGUE & GROOVE | Exterior Wall/Cover: | SHINGLE | | Floor Covering: | CERAMIC TILE/HWD 40/60 | Floor Structure: | WOOD W/SUBFLOOR | | Foundation: | CONCRETE | Heating: | FHA OIL | | Interior Finish: | DRYWALL PAINT | Plumbing Fixture Cnt: | 12 | | Roof Slope: | 5" IN 12" | Roof Structure/Cover: | BEAM ALUMINUM HEAVY |
|
| | Type | Description | Class CD | Sub Class CD | Year Built | Area |
| | BAS | BASE/MAIN FLOOR | 4 | 0 | 1967 | 1949.1 |
| | OP4 | OPEN PORCH W/CEILING-ROOF | 4 | 0 | 1967 | 150.0 |
| | AGR | ATTACHED GARAGE | 4 | 0 | 1967 | 896.0 |
| | OWP | OPEN WOOD PORCH W/STEPS | 4 | 0 | 1967 | 246.0 |
| | LOF | LOFT | 4 | 0 | 1967 | 150.5 |
| | OWP | OPEN WOOD PORCH W/STEPS | 4 | 0 | 1967 | 60.0 |
Sketch
| No sketches available for this property. |
Property Image
Land
| 1 | HB | HIGH BLUFF | 0.4265 | 18578.34 | 105.00 | 0.00 | 1.00 | $425,000 | $0 |
Roll Value History
| 2026 | N/A | N/A | N/A | N/A | N/A |
| 2025 | $510,532 | $425,000 | $0 | $935,532 | $935,532 |
| 2024 | $480,662 | $425,000 | $0 | $905,662 | $905,662 |
| 2023 | $486,652 | $425,000 | $0 | $911,652 | $911,652 |
| 2022 | $446,100 | $375,000 | $0 | $821,100 | $821,100 |
| 2021 | $392,640 | $325,000 | $0 | $717,640 | $717,640 |
| 2020 | $382,917 | $275,000 | $0 | $657,917 | $657,917 |
| 2019 | $285,651 | $325,000 | $0 | $610,651 | $610,651 |
| 2018 | $275,584 | $250,000 | $0 | $525,584 | $525,584 |
| 2017 | $277,326 | $200,000 | $0 | $477,326 | $477,326 |
| 2016 | $280,708 | $200,000 | $0 | $480,708 | $480,708 |
| 2015 | $284,090 | $250,000 | $0 | $534,090 | $534,090 |
| 2014 | $246,216 | $250,000 | $0 | $496,216 | $496,216 |
| 2013 | $249,294 | $250,000 | $0 | $499,294 | $499,294 |
| 2012 | $230,141 | $272,674 | $0 | $502,815 | $502,815 |
| 2011 | $233,337 | $272,674 | $0 | $506,011 | $506,011 |
| 2010 | $247,770 | $272,674 | $0 | $520,444 | $520,444 |
| 2009 | $255,345 | $328,507 | $0 | $583,852 | $583,852 |
| 2008 | $258,593 | $367,461 | $0 | $626,054 | $626,054 |
| 2007 | $261,841 | $367,461 | $0 | $629,302 | $629,302 |
Deed and Sales History
| 1 | 05/01/1990 | WD | Warranty Deed | SOUZA, MARGO & | WILLIAMS, RANDALL W | | | $198,125.00 | 2881 | 90009345 |
| 2 | 01/01/1989 | WD | Warranty Deed | DAVIDSON, WILLIAM A | SOUZA, MARGO & | | | $123,000.00 | 90418 | 89001438 |
| 3 | 09/01/1970 | TRUSTEED | Trustee's Deed | PRUEHER, JAMES A | DAVIDSON, WILLIAM A | | | $0.00 | 39831 | 0 |
| 4 | 01/01/1900 | OTHER | Other - Misc. Documents | Unknown | PRUEHER, JAMES A | | | $0.00 | 0 | 0 |
Payout Agreement
| No payout information available.. |