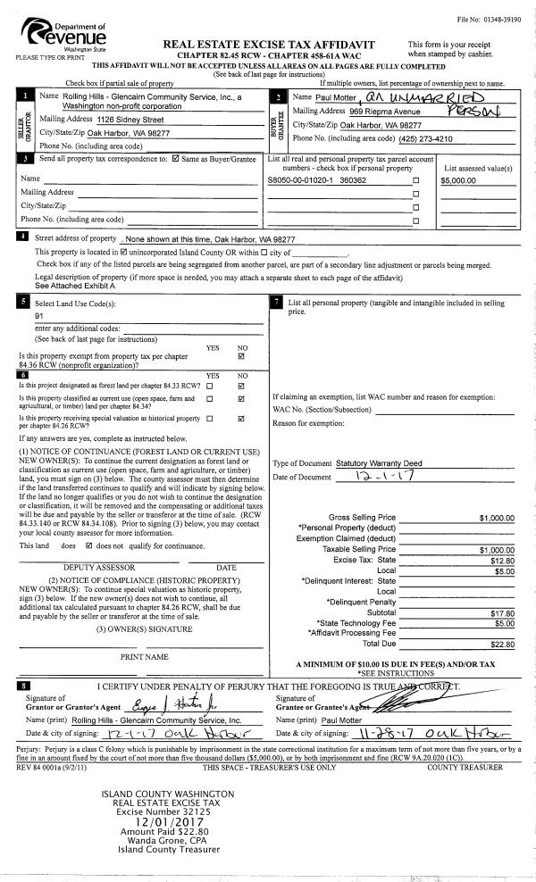
Property
Account |
| Property ID: | 409267 | Abbreviated Legal Description: | TER WEST 4 N1/2 LOT 4 & LOT 5 BLK 12 (COMB 3/83 A59483) |
| Geographic ID: | S8305-04-12004-1 | Agent Code: | |
| Type: | Real | | |
| Tax Area: | 310 - APPRAISER-Cpvl Schl Dist, outside Cpvl, improved & 1 acre or less | Land Use Code | 11 |
| Open Space: | N | DFL | N |
| Historic Property: | N | Remodel Property: | N |
| Multi-Family Redevelopment: | N | | |
| Township: | | Section: | |
| Range: | |
Location |
| Address: | 2186 INVERNESS WAY COUPEVILLE, WA 98239 | Mapsco: | |
| Neighborhood: | Cycle 2 | Map ID: | 525 |
| Neighborhood CD: | 2 |
Owner |
| Name: | SCHOLL, WARREN S | Owner ID: | 286001 |
| Mailing Address: | 2186 INVERNESS WAY COUPEVILLE, WA 98239 | % Ownership: | 100.0000000000% |
| | | Exemptions: | |
Taxes and Assessment Details
Values
| (+) Improvement Homesite Value: | + | $0 | |
| (+) Improvement Non-Homesite Value: | + | $525,538 | |
| (+) Land Homesite Value: | + | $0 | |
| (+) Land Non-Homesite Value: | + | $400,000 | |
| (+) Curr Use (HS): | + | $0 | $0 |
| (+) Curr Use (NHS): | + | $0 | $0 |
| | | -------------------------- | |
| (=) Market Value: | = | $925,538 | |
| (–) Productivity Loss: | – | $0 | |
| | | -------------------------- | |
| (=) Subtotal: | = | $925,538 | |
| (+) Senior Appraised Value: | + | $0 | |
| (+) Non-Senior Appraised Value: | + | $925,538 | |
| | | -------------------------- | |
| (=) Total Appraised Value: | = | $925,538 | |
| (–) Senior Exemption Loss: | – | $0 | |
| (–) Exemption Loss: | – | $0 | |
| | | -------------------------- | |
| (=) Taxable Value: | = | $925,538 | |
Taxing Jurisdiction
| Owner: | SCHOLL, WARREN S | | |
| % Ownership: | 100.0000000000% | | |
| Total Value: | $925,538 | | |
| Tax Area: | 310 - APPRAISER-Cpvl Schl Dist, outside Cpvl, improved & 1 acre or less |
| CF | Conservation Futures | 0.0316035091 | $925,538 | $925,538 | $29.25 | | |
| CEM2 | Cemetery #2 | 0.0095056933 | $925,538 | $925,538 | $8.80 | | |
| FIRE5 | Fire & Rescue Dist #5 C Whidbey GEN | 1.2008080668 | $925,538 | $925,538 | $1,111.39 | | |
| FIRE5BOND | Fire & Rescue Dist #5 C Whidbey BOND | 0.1400090713 | $925,538 | $925,538 | $129.58 | | |
| HOBOND | Hospital BOND | 0.1910887512 | $925,538 | $925,538 | $176.86 | | |
| HOGEN | Hospital GEN | 0.3902502903 | $925,538 | $925,538 | $361.19 | | |
| CE | County Current Expense | 0.3708482477 | $925,538 | $925,538 | $343.23 | | |
| CR | County Roads | 0.4584763726 | $925,538 | $925,538 | $424.34 | | |
| ISLANDEMS | Hospital GEN (EMS) | 0.5000000000 | $925,538 | $925,538 | $462.77 | | |
| LIB | Library Sno-Isle GEN | 0.3153421757 | $925,538 | $925,538 | $291.86 | | |
| LIBCAP | Library Sno-Isle BOND (Cap Fac Imp Area) | 0.0543427938 | $925,538 | $925,538 | $50.30 | | |
| POCOUP | Port of Coupeville GEN | 0.1093371703 | $925,538 | $925,538 | $101.20 | | |
| POCOUPIDD | Port of Coupeville IDD | 0.3409740022 | $925,538 | $925,538 | $315.58 | | |
| COUPSDTECH | School 204 CP (TECH) | 0.7545480007 | $925,538 | $925,538 | $698.36 | | |
| SCH204MO | School 204 Enrichment | 0.6716186034 | $925,538 | $925,538 | $621.61 | | |
| ST | State School | 1.3035497053 | $925,538 | $925,538 | $1,206.48 | | |
| ST2 | State School Part 2 | 0.8169543533 | $925,538 | $925,538 | $756.12 | | |
| | Total Tax Rate: | 7.6592568070 | | | | | |
| | | | | Taxes w/Current Exemptions: | $7,088.92 | | |
| | | | | Taxes w/o Exemptions: | $7,088.92 | | |
Improvement / Building
| Improvement #1: | RESIDENTIAL | State Code: | Y | 2761.8 sqft | Value: | $525,538 |
| Bathrooms: | 3 | Bedrooms: | 2 | | Ceiling: | DRYWALL PAINTED | Cooling: | HEAT PUMP/CONV/V | | Exterior Wall/Cover: | WOOD SIDING | Floor Covering: | VINYL TILE/CARP 20-80 | | Floor Structure: | WOOD W/SUBFLOOR | Foundation: | CONCRETE | | Interior Finish: | DRYWALL PAINT | Plumbing Fixture Cnt: | 14 | | Roof Slope: | 3" IN 12" | Roof Structure/Cover: | CJ ASPHALT |
|
| | Type | Description | Class CD | Sub Class CD | Year Built | Area |
| | BAS | BASE/MAIN FLOOR | 4 | 0 | 1982 | 1538.8 |
| | UB8 | BASEMENT UNFINISHED 8" | 4 | 0 | 1982 | 330.0 |
| | DWN | DOWNSTAIRS LIVING AREA | 4 | 0 | 1982 | 1223.0 |
| | AGR | ATTACHED GARAGE | 4 | 0 | 1982 | 484.0 |
| | OWP | OPEN WOOD PORCH W/STEPS | 4 | 0 | 1982 | 96.0 |
| | OWP | OPEN WOOD PORCH W/STEPS | 4 | 0 | 1982 | 424.2 |
| | OWP | OPEN WOOD PORCH W/STEPS | 4 | 0 | 1982 | 112.0 |
| | OWR | OPEN WOOD PORCH W/STEPS/ROOF | 4 | 0 | 1982 | 24.0 |
Sketch
| No sketches available for this property. |
Property Image
Land
| 1 | HB | HIGH BLUFF | 0.4011 | 17471.92 | 111.00 | 0.00 | 1.00 | $400,000 | $0 |
Roll Value History
| 2026 | N/A | N/A | N/A | N/A | N/A |
| 2025 | $525,538 | $400,000 | $0 | $925,538 | $925,538 |
| 2024 | $513,628 | $400,000 | $0 | $913,628 | $913,628 |
| 2023 | $519,582 | $400,000 | $0 | $919,582 | $919,582 |
| 2022 | $475,903 | $350,000 | $0 | $825,903 | $825,903 |
| 2021 | $418,512 | $300,000 | $0 | $718,512 | $718,512 |
| 2020 | $406,671 | $250,000 | $0 | $656,671 | $656,671 |
| 2019 | $313,021 | $300,000 | $0 | $613,021 | $613,021 |
| 2018 | $314,290 | $225,000 | $0 | $539,290 | $539,290 |
| 2017 | $245,424 | $200,000 | $0 | $445,424 | $445,424 |
| 2016 | $248,490 | $200,000 | $0 | $448,490 | $448,490 |
| 2015 | $251,561 | $250,000 | $0 | $501,561 | $501,561 |
| 2014 | $254,628 | $250,000 | $0 | $504,628 | $504,628 |
| 2013 | $257,695 | $250,000 | $0 | $507,695 | $507,695 |
| 2012 | $249,164 | $285,122 | $0 | $534,286 | $534,286 |
| 2011 | $252,226 | $285,122 | $0 | $537,348 | $537,348 |
| 2010 | $261,860 | $285,122 | $0 | $546,982 | $546,982 |
| 2009 | $273,037 | $343,505 | $0 | $616,542 | $616,542 |
| 2008 | $285,893 | $384,236 | $0 | $670,129 | $670,129 |
| 2007 | $289,306 | $384,236 | $0 | $673,542 | $673,542 |
Deed and Sales History
| 1 | 07/06/2018 | QCD | Quit Claim Deed | SCHOLL, WARREN S | SCHOLL, WARREN S | | | $0.00 | 34986 | 4447943 |
| 2 | 09/08/2017 | WD | Warranty Deed | SMITH, TIMOTHY A | SCHOLL, WARREN S | | | $590,000.00 | 31287 | 4431043 |
| 3 | 03/29/2005 | WD | Warranty Deed | ARNOLD, VERN L | SMITH, TIMOTHY A | | | $425,000.00 | 51278 | 4129827 |
| 4 | 03/01/1983 | PACD | Purchaser's Assignment | Unknown | ARNOLD, VERN L | | | $0.00 | 59483 | 0 |
Payout Agreement
| No payout information available.. |