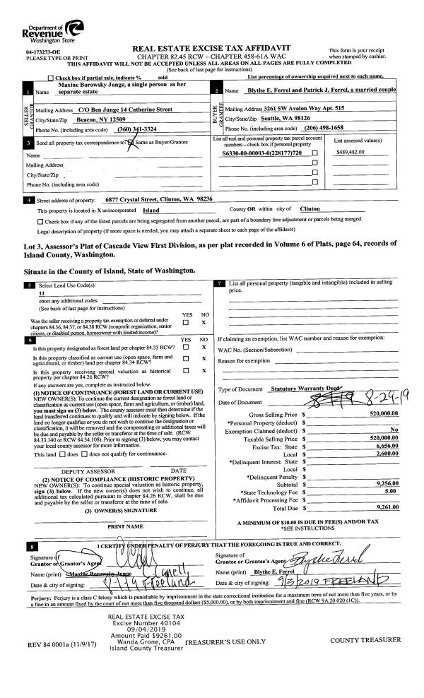
Property
Account |
| Property ID: | 409490 | Abbreviated Legal Description: | TERONDA WEST #6 - LOT 1 & SWLY 1/2 LOT 2 BLK 1 |
| Geographic ID: | S8305-06-01001-0 | Agent Code: | |
| Type: | Real | | |
| Tax Area: | 320 - APPRAISER-Cpvl Schl Dist, Special Dist, improved & less than 1 acre | Land Use Code | 11 |
| Open Space: | N | DFL | N |
| Historic Property: | N | Remodel Property: | N |
| Multi-Family Redevelopment: | N | | |
| Township: | | Section: | |
| Range: | |
Location |
| Address: | 2239 TERONDA DR COUPEVILLE, WA 98239 | Mapsco: | |
| Neighborhood: | Cycle 2 | Map ID: | 526 |
| Neighborhood CD: | 2 |
Owner |
| Name: | MORGAN, STEVEN D | Owner ID: | 280645 |
| Mailing Address: | MARY C MORGAN 2239 TERONDA DR COUPEVILLE, WA 98239 | % Ownership: | 100.0000000000% |
| | | Exemptions: | |
Taxes and Assessment Details
Values
| (+) Improvement Homesite Value: | + | $0 | |
| (+) Improvement Non-Homesite Value: | + | $292,956 | |
| (+) Land Homesite Value: | + | $0 | |
| (+) Land Non-Homesite Value: | + | $220,000 | |
| (+) Curr Use (HS): | + | $0 | $0 |
| (+) Curr Use (NHS): | + | $0 | $0 |
| | | -------------------------- | |
| (=) Market Value: | = | $512,956 | |
| (–) Productivity Loss: | – | $0 | |
| | | -------------------------- | |
| (=) Subtotal: | = | $512,956 | |
| (+) Senior Appraised Value: | + | $0 | |
| (+) Non-Senior Appraised Value: | + | $512,956 | |
| | | -------------------------- | |
| (=) Total Appraised Value: | = | $512,956 | |
| (–) Senior Exemption Loss: | – | $0 | |
| (–) Exemption Loss: | – | $0 | |
| | | -------------------------- | |
| (=) Taxable Value: | = | $512,956 | |
Taxing Jurisdiction
| Owner: | MORGAN, STEVEN D | | |
| % Ownership: | 100.0000000000% | | |
| Total Value: | $512,956 | | |
| Tax Area: | 320 - APPRAISER-Cpvl Schl Dist, Special Dist, improved & less than 1 acre |
| CF | Conservation Futures | 0.0316035091 | $512,956 | $512,956 | $16.21 | | |
| CEM2 | Cemetery #2 | 0.0095056933 | $512,956 | $512,956 | $4.88 | | |
| FIRE5 | Fire & Rescue Dist #5 C Whidbey GEN | 1.2008080668 | $512,956 | $512,956 | $615.96 | | |
| FIRE5BOND | Fire & Rescue Dist #5 C Whidbey BOND | 0.1400090713 | $512,956 | $512,956 | $71.82 | | |
| HOBOND | Hospital BOND | 0.1910887512 | $512,956 | $512,956 | $98.02 | | |
| HOGEN | Hospital GEN | 0.3902502903 | $512,956 | $512,956 | $200.18 | | |
| CE | County Current Expense | 0.3708482477 | $512,956 | $512,956 | $190.23 | | |
| CR | County Roads | 0.4584763726 | $512,956 | $512,956 | $235.18 | | |
| ISLANDEMS | Hospital GEN (EMS) | 0.5000000000 | $512,956 | $512,956 | $256.48 | | |
| LIB | Library Sno-Isle GEN | 0.3153421757 | $512,956 | $512,956 | $161.76 | | |
| LIBCAP | Library Sno-Isle BOND (Cap Fac Imp Area) | 0.0543427938 | $512,956 | $512,956 | $27.88 | | |
| POCOUP | Port of Coupeville GEN | 0.1093371703 | $512,956 | $512,956 | $56.09 | | |
| POCOUPIDD | Port of Coupeville IDD | 0.3409740022 | $512,956 | $512,956 | $174.90 | | |
| COUPSDTECH | School 204 CP (TECH) | 0.7545480007 | $512,956 | $512,956 | $387.05 | | |
| SCH204MO | School 204 Enrichment | 0.6716186034 | $512,956 | $512,956 | $344.51 | | |
| ST | State School | 1.3035497053 | $512,956 | $512,956 | $668.66 | | |
| ST2 | State School Part 2 | 0.8169543533 | $512,956 | $512,956 | $419.06 | | |
| | Total Tax Rate: | 7.6592568070 | | | | | |
| | | | | Taxes w/Current Exemptions: | $3,928.87 | | |
| | | | | Taxes w/o Exemptions: | $3,928.87 | | |
Improvement / Building
| Improvement #1: | RESIDENTIAL | State Code: | Y | 1222.0 sqft | Value: | $292,956 |
| Bathrooms: | 2 | Bedrooms: | 2 | | Ceiling: | DRYWALL PAINTED | Cooling: | HEAT PUMP/CONV/V | | Exterior Wall/Cover: | CEMENT FIBER | Floor Covering: | VINYL/HARDWOOD 60-40 | | Floor Structure: | WOOD W/SUBFLOOR | Foundation: | CONCRETE | | Interior Finish: | DRYWALL PAINT | Plumbing Fixture Cnt: | 9 | | Roof Slope: | 5" IN 12" | Roof Structure/Cover: | CJ ASPHALT |
|
| | Type | Description | Class CD | Sub Class CD | Year Built | Area |
| | BAS | BASE/MAIN FLOOR | 3 | 0 | 2018 | 1222.0 |
| | AGR | ATTACHED GARAGE | 3 | 0 | 2018 | 484.0 |
| | OWC | OPEN WOOD PORCH W/STEPS/ROOF/C | 3 | 0 | 2018 | 220.0 |
| | OWC | OPEN WOOD PORCH W/STEPS/ROOF/C | 3 | 0 | 2018 | 64.0 |
| | OP1 | OPEN PORCH SLAB | 3 | 0 | 2018 | 220.0 |
Sketch
| No sketches available for this property. |
Property Image
Land
| 1 | 15 | SQ (12001-21780) | 0.1500 | 6534.00 | 0.00 | 0.00 | 1.00 | $220,000 | $0 |
Roll Value History
| 2026 | N/A | N/A | N/A | N/A | N/A |
| 2025 | $292,956 | $220,000 | $0 | $512,956 | $512,956 |
| 2024 | $295,337 | $200,000 | $0 | $495,337 | $495,337 |
| 2023 | $297,719 | $190,000 | $0 | $487,719 | $487,719 |
| 2022 | $271,734 | $170,000 | $0 | $441,734 | $441,734 |
| 2021 | $238,163 | $140,000 | $0 | $378,163 | $378,163 |
| 2020 | $231,411 | $110,000 | $0 | $341,411 | $341,411 |
| 2019 | $168,054 | $140,000 | $0 | $308,054 | $308,054 |
| 2018 | $21,263 | $135,000 | $0 | $156,263 | $156,263 |
| 2017 | $0 | $30,000 | $0 | $30,000 | $30,000 |
| 2016 | $0 | $30,000 | $0 | $30,000 | $30,000 |
| 2015 | $0 | $30,000 | $0 | $30,000 | $30,000 |
| 2014 | $0 | $30,000 | $0 | $30,000 | $30,000 |
| 2013 | $0 | $30,000 | $0 | $30,000 | $30,000 |
| 2012 | $0 | $45,000 | $0 | $45,000 | $45,000 |
| 2011 | $0 | $45,000 | $0 | $45,000 | $45,000 |
| 2010 | $0 | $45,000 | $0 | $45,000 | $45,000 |
| 2009 | $0 | $65,000 | $0 | $65,000 | $65,000 |
| 2008 | $0 | $82,350 | $0 | $82,350 | $82,350 |
| 2007 | $0 | $82,000 | $0 | $82,000 | $82,000 |
Deed and Sales History
| 1 | 06/23/2017 | WD | Warranty Deed | LEONARD, STUART K | MORGAN, STEVEN D | | | $31,500.00 | 29987 | 4425298 |
| 2 | 10/06/2011 | WD | Warranty Deed | HINDS, MICHELL S | LEONARD, STUART K | | | $27,075.00 | 5839 | 4302831 |
| 3 | 09/18/2011 | QCD | Quit Claim Deed | MCKEW INC | HINDS, MICHELL S | | | $0.00 | 5635 | 4301767 |
| 4 | 11/18/2004 | WD | Warranty Deed | GREAT, NORTHWEST C | MCKEW INC, | | | $2,500.00 | 51844 | 4137461 |
| 5 | 10/01/1980 | TRUSTEED | Trustee's Deed | MCKEW, INC | GREAT, NORTHWEST C | | | $9,000.00 | 3619 | 375684 |
| 6 | 01/01/1900 | OTHER | Other - Misc. Documents | Unknown | MCKEW, INC | | | $0.00 | 0 | 0 |
Payout Agreement
| No payout information available.. |