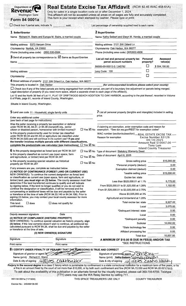
Property
Account |
| Property ID: | 409551 | Abbreviated Legal Description: | TER WEST 6 LOT 7 BLK 1 |
| Geographic ID: | S8305-06-01007-0 | Agent Code: | |
| Type: | Real | | |
| Tax Area: | 310 - APPRAISER-Cpvl Schl Dist, outside Cpvl, improved & 1 acre or less | Land Use Code | 11 |
| Open Space: | N | DFL | N |
| Historic Property: | N | Remodel Property: | N |
| Multi-Family Redevelopment: | N | | |
| Township: | | Section: | |
| Range: | |
Location |
| Address: | 2203 TERONDA DR COUPEVILLE, WA 98239 | Mapsco: | |
| Neighborhood: | Cycle 2 | Map ID: | 526 |
| Neighborhood CD: | 2 |
Owner |
| Name: | BEARD TTEE, JONATHAN R | Owner ID: | 314810 |
| Mailing Address: | LINDSEY STRAND-POLYAK TTEE 2203 TERONDA DR COUPEVILLE, WA 98239 | % Ownership: | 100.0000000000% |
| | | Exemptions: | |
Taxes and Assessment Details
Values
| (+) Improvement Homesite Value: | + | $0 | |
| (+) Improvement Non-Homesite Value: | + | $252,931 | |
| (+) Land Homesite Value: | + | $0 | |
| (+) Land Non-Homesite Value: | + | $210,000 | |
| (+) Curr Use (HS): | + | $0 | $0 |
| (+) Curr Use (NHS): | + | $0 | $0 |
| | | -------------------------- | |
| (=) Market Value: | = | $462,931 | |
| (–) Productivity Loss: | – | $0 | |
| | | -------------------------- | |
| (=) Subtotal: | = | $462,931 | |
| (+) Senior Appraised Value: | + | $0 | |
| (+) Non-Senior Appraised Value: | + | $462,931 | |
| | | -------------------------- | |
| (=) Total Appraised Value: | = | $462,931 | |
| (–) Senior Exemption Loss: | – | $0 | |
| (–) Exemption Loss: | – | $0 | |
| | | -------------------------- | |
| (=) Taxable Value: | = | $462,931 | |
Taxing Jurisdiction
| Owner: | BEARD TTEE, JONATHAN R | | |
| % Ownership: | 100.0000000000% | | |
| Total Value: | $462,931 | | |
| Tax Area: | 310 - APPRAISER-Cpvl Schl Dist, outside Cpvl, improved & 1 acre or less |
| CF | Conservation Futures | 0.0316035091 | $462,931 | $462,931 | $14.63 | | |
| CEM2 | Cemetery #2 | 0.0095056933 | $462,931 | $462,931 | $4.40 | | |
| FIRE5 | Fire & Rescue Dist #5 C Whidbey GEN | 1.2008080668 | $462,931 | $462,931 | $555.89 | | |
| FIRE5BOND | Fire & Rescue Dist #5 C Whidbey BOND | 0.1400090713 | $462,931 | $462,931 | $64.81 | | |
| HOBOND | Hospital BOND | 0.1910887512 | $462,931 | $462,931 | $88.46 | | |
| HOGEN | Hospital GEN | 0.3902502903 | $462,931 | $462,931 | $180.66 | | |
| CE | County Current Expense | 0.3708482477 | $462,931 | $462,931 | $171.68 | | |
| CR | County Roads | 0.4584763726 | $462,931 | $462,931 | $212.24 | | |
| ISLANDEMS | Hospital GEN (EMS) | 0.5000000000 | $462,931 | $462,931 | $231.47 | | |
| LIB | Library Sno-Isle GEN | 0.3153421757 | $462,931 | $462,931 | $145.98 | | |
| LIBCAP | Library Sno-Isle BOND (Cap Fac Imp Area) | 0.0543427938 | $462,931 | $462,931 | $25.16 | | |
| POCOUP | Port of Coupeville GEN | 0.1093371703 | $462,931 | $462,931 | $50.62 | | |
| POCOUPIDD | Port of Coupeville IDD | 0.3409740022 | $462,931 | $462,931 | $157.85 | | |
| COUPSDTECH | School 204 CP (TECH) | 0.7545480007 | $462,931 | $462,931 | $349.30 | | |
| SCH204MO | School 204 Enrichment | 0.6716186034 | $462,931 | $462,931 | $310.91 | | |
| ST | State School | 1.3035497053 | $462,931 | $462,931 | $603.45 | | |
| ST2 | State School Part 2 | 0.8169543533 | $462,931 | $462,931 | $378.19 | | |
| | Total Tax Rate: | 7.6592568070 | | | | | |
| | | | | Taxes w/Current Exemptions: | $3,545.70 | | |
| | | | | Taxes w/o Exemptions: | $3,545.70 | | |
Improvement / Building
| Improvement #1: | RESIDENTIAL | State Code: | Y | 1172.0 sqft | Value: | $252,931 |
| Bathrooms: | 1 | Bedrooms: | 2 | | Ceiling: | DRYWALL PAINTED | Exterior Wall/Cover: | CEMENT FIBER | | Floor Covering: | CERAMIC TILE/CPT 40-60 | Floor Structure: | WOOD W/SUBFLOOR | | Foundation: | CONCRETE | Heating: | FHA ELECTRIC | | Interior Finish: | DRYWALL PAINT | Plumbing Fixture Cnt: | 6 | | Roof Slope: | 8" IN 12" | Roof Structure/Cover: | CJ ASPHALT |
|
| | Type | Description | Class CD | Sub Class CD | Year Built | Area |
| | BAS | BASE/MAIN FLOOR | 3 | 0 | 2011 | 1172.0 |
| | AGR | ATTACHED GARAGE | 3 | 0 | 2011 | 468.0 |
| | OWP | OPEN WOOD PORCH W/STEPS | 3 | 0 | 2011 | 114.0 |
Sketch
Property Image
Land
| 1 | 13 | SQ (06001-08000) | 0.1300 | 5662.80 | 0.00 | 0.00 | 1.00 | $210,000 | $0 |
Roll Value History
| 2026 | N/A | N/A | N/A | N/A | N/A |
| 2025 | $252,931 | $210,000 | $0 | $462,931 | $462,931 |
| 2024 | $246,578 | $190,000 | $0 | $436,578 | $436,578 |
| 2023 | $248,650 | $180,000 | $0 | $428,650 | $428,650 |
| 2022 | $227,154 | $170,000 | $0 | $397,154 | $397,154 |
| 2021 | $199,041 | $140,000 | $0 | $339,041 | $339,041 |
| 2020 | $193,469 | $110,000 | $0 | $303,469 | $303,469 |
| 2019 | $141,509 | $140,000 | $0 | $281,509 | $281,509 |
| 2018 | $138,881 | $135,000 | $0 | $273,881 | $273,881 |
| 2017 | $139,633 | $100,000 | $0 | $239,633 | $239,633 |
| 2016 | $141,134 | $65,000 | $0 | $206,134 | $206,134 |
| 2015 | $136,497 | $50,000 | $0 | $186,497 | $186,497 |
| 2014 | $137,934 | $50,000 | $0 | $187,934 | $187,934 |
| 2013 | $139,370 | $50,000 | $0 | $189,370 | $189,370 |
| 2012 | $140,807 | $57,000 | $0 | $197,807 | $197,807 |
| 2011 | $70,866 | $60,000 | $0 | $130,866 | $130,866 |
| 2010 | $4,000 | $23,100 | $0 | $27,100 | $27,100 |
| 2009 | $4,000 | $42,900 | $0 | $46,900 | $46,900 |
| 2008 | $4,000 | $40,500 | $0 | $44,500 | $44,500 |
| 2007 | $1,800 | $34,200 | $0 | $36,000 | $36,000 |
Deed and Sales History
| 1 | 12/03/2024 | WD | Warranty Deed | BEARD, JONATHAN | BEARD TTEE, JONATHAN R | | | $0.00 | 62038 | 4580258 |
| 2 | 07/20/2020 | WD | Warranty Deed | MOREFIELD, DOUGLAS | BEARD, JONATHAN | | | $295,000.00 | 43905 | 4491908 |
| 3 | 02/10/2016 | WD | Warranty Deed | ELLIS JR, GARY R | MOREFIELD, DOUGLAS | | | $204,000.00 | 23110 | 4393935 |
| 4 | 10/24/2014 | WD | Warranty Deed | MOTTET, BRADLEY J | ELLIS JR, GARY R | | | $172,500.00 | 17370 | 4367746 |
| 5 | 12/22/2010 | WD | Warranty Deed | INFINITY REALTY LLC | MOTTET, BRADLEY J | | | $23,000.00 | 3222 | 4287470 |
| 6 | 09/27/2005 | WD | Warranty Deed | ECKARD, ROY | INFINITY REALTY LLC, | | | $10,000.00 | 54993 | 4149645 |
| 7 | 10/31/2001 | QCD | Quit Claim Deed | ECKARD, ROY | ECKARD, ROY | | | $0.00 | 14515 | 4004133 |
| 8 | 08/16/1999 | QCD | Quit Claim Deed | CLOUD, LINDA | ECKARD, ROY | | | $1.00 | 93363 | 99019274 |
| 9 | 01/01/1998 | TTAXD | Treasurer's Tax Deed | FOXRIDGE, CONSTRUCTION I | CLOUD, LINDA | | | $0.00 | 67738 | 97020413 |
| 10 | 08/01/1993 | WD | Warranty Deed | MCKEW, INC | FOXRIDGE, CONSTRUCTION I | | | $6,300.00 | 33173 | 93016420 |
| 11 | 01/01/1900 | OTHER | Other - Misc. Documents | Unknown | MCKEW, INC | | | $0.00 | 0 | 0 |
Payout Agreement
| No payout information available.. |