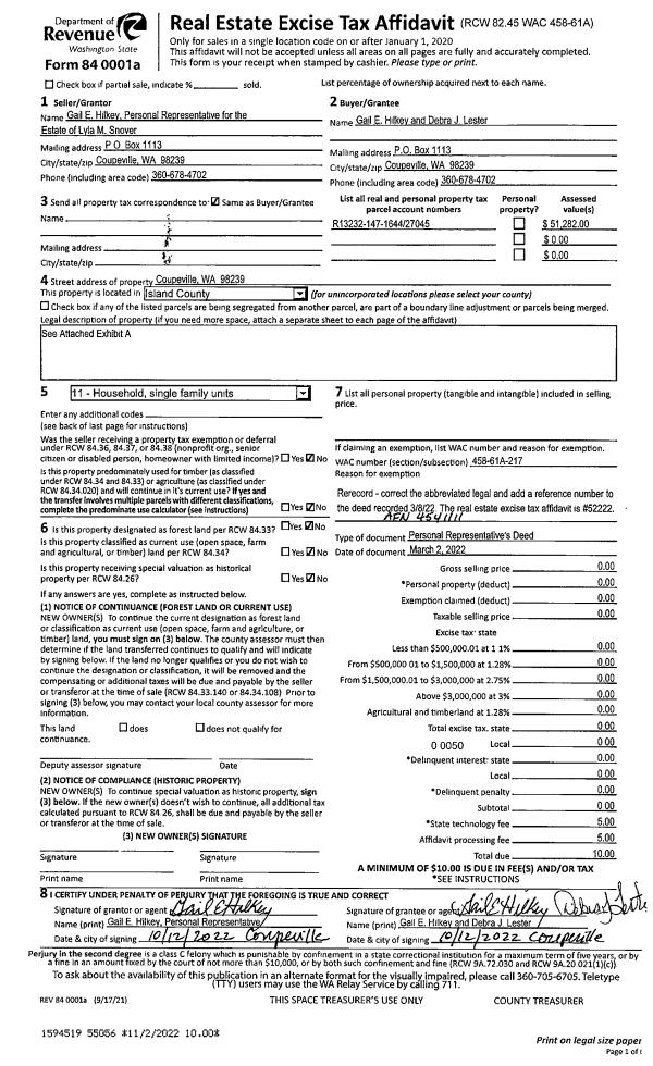
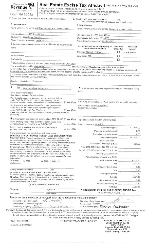
Property
Account |
| Property ID: | 409631 | Abbreviated Legal Description: | TER WEST 6 LOT 15 BLK 1 |
| Geographic ID: | S8305-06-01015-0 | Agent Code: | |
| Type: | Real | | |
| Tax Area: | 310 - APPRAISER-Cpvl Schl Dist, outside Cpvl, improved & 1 acre or less | Land Use Code | 11 |
| Open Space: | N | DFL | N |
| Historic Property: | N | Remodel Property: | N |
| Multi-Family Redevelopment: | N | | |
| Township: | | Section: | |
| Range: | |
Location |
| Address: | 2169 TERONDA DR COUPEVILLE, WA 98239 | Mapsco: | |
| Neighborhood: | Cycle 2 | Map ID: | 528 |
| Neighborhood CD: | 2 |
Owner |
| Name: | ROSS, JORDAN N | Owner ID: | 312535 |
| Mailing Address: | JOHANNA K ROSS 90 MELODIE LN DELAND, FL 32724 | % Ownership: | 100.0000000000% |
| | | Exemptions: | |
Taxes and Assessment Details
Values
| (+) Improvement Homesite Value: | + | $0 | |
| (+) Improvement Non-Homesite Value: | + | $137,587 | |
| (+) Land Homesite Value: | + | $0 | |
| (+) Land Non-Homesite Value: | + | $210,000 | |
| (+) Curr Use (HS): | + | $0 | $0 |
| (+) Curr Use (NHS): | + | $0 | $0 |
| | | -------------------------- | |
| (=) Market Value: | = | $347,587 | |
| (–) Productivity Loss: | – | $0 | |
| | | -------------------------- | |
| (=) Subtotal: | = | $347,587 | |
| (+) Senior Appraised Value: | + | $0 | |
| (+) Non-Senior Appraised Value: | + | $347,587 | |
| | | -------------------------- | |
| (=) Total Appraised Value: | = | $347,587 | |
| (–) Senior Exemption Loss: | – | $0 | |
| (–) Exemption Loss: | – | $0 | |
| | | -------------------------- | |
| (=) Taxable Value: | = | $347,587 | |
Taxing Jurisdiction
| Owner: | ROSS, JORDAN N | | |
| % Ownership: | 100.0000000000% | | |
| Total Value: | $347,587 | | |
| Tax Area: | 310 - APPRAISER-Cpvl Schl Dist, outside Cpvl, improved & 1 acre or less |
| CF | Conservation Futures | 0.0316035091 | $347,587 | $347,587 | $10.98 | | |
| CEM2 | Cemetery #2 | 0.0095056933 | $347,587 | $347,587 | $3.30 | | |
| FIRE5 | Fire & Rescue Dist #5 C Whidbey GEN | 1.2008080668 | $347,587 | $347,587 | $417.39 | | |
| FIRE5BOND | Fire & Rescue Dist #5 C Whidbey BOND | 0.1400090713 | $347,587 | $347,587 | $48.67 | | |
| HOBOND | Hospital BOND | 0.1910887512 | $347,587 | $347,587 | $66.42 | | |
| HOGEN | Hospital GEN | 0.3902502903 | $347,587 | $347,587 | $135.65 | | |
| CE | County Current Expense | 0.3708482477 | $347,587 | $347,587 | $128.90 | | |
| CR | County Roads | 0.4584763726 | $347,587 | $347,587 | $159.36 | | |
| ISLANDEMS | Hospital GEN (EMS) | 0.5000000000 | $347,587 | $347,587 | $173.79 | | |
| LIB | Library Sno-Isle GEN | 0.3153421757 | $347,587 | $347,587 | $109.61 | | |
| LIBCAP | Library Sno-Isle BOND (Cap Fac Imp Area) | 0.0543427938 | $347,587 | $347,587 | $18.89 | | |
| POCOUP | Port of Coupeville GEN | 0.1093371703 | $347,587 | $347,587 | $38.00 | | |
| POCOUPIDD | Port of Coupeville IDD | 0.3409740022 | $347,587 | $347,587 | $118.52 | | |
| COUPSDTECH | School 204 CP (TECH) | 0.7545480007 | $347,587 | $347,587 | $262.27 | | |
| SCH204MO | School 204 Enrichment | 0.6716186034 | $347,587 | $347,587 | $233.45 | | |
| ST | State School | 1.3035497053 | $347,587 | $347,587 | $453.10 | | |
| ST2 | State School Part 2 | 0.8169543533 | $347,587 | $347,587 | $283.96 | | |
| | Total Tax Rate: | 7.6592568070 | | | | | |
| | | | | Taxes w/Current Exemptions: | $2,662.26 | | |
| | | | | Taxes w/o Exemptions: | $2,662.26 | | |
Improvement / Building
| Improvement #1: | MANUFACTURED HOME | State Code: | Y | 1296.0 sqft | Value: | $137,587 |
| Bathrooms: | 1 | Bedrooms: | 2 | | Ceiling: | PLASTER PAINTED | Exterior Wall/Cover: | VINYL | | Floor Covering: | CARPET 100% | Floor Structure: | SLAB ON GRADE | | Foundation: | SLAB | Heating: | FHA ELECTRIC | | Interior Finish: | PLASTER | Plumbing Fixture Cnt: | 1 | | Roof Slope: | FLAT | Roof Structure/Cover: | CJ ALUMINIUM HEAVY |
|
| | Type | Description | Class CD | Sub Class CD | Year Built | Area |
| | BAS | BASE/MAIN FLOOR | 4 | 0 | 2023 | 1296.0 |
| | OWP | OPEN WOOD PORCH W/STEPS | 4 | 0 | 2023 | 28.0 |
| | OWP | OPEN WOOD PORCH W/STEPS | 4 | 0 | 2023 | 32.0 |
Sketch
| No sketches available for this property. |
Property Image
Land
| 1 | 13 | SQ (06001-08000) | 0.1300 | 5662.80 | 0.00 | 0.00 | 1.00 | $210,000 | $0 |
Roll Value History
| 2026 | N/A | N/A | N/A | N/A | N/A |
| 2025 | $137,587 | $210,000 | $0 | $347,587 | $347,587 |
| 2024 | $151,491 | $190,000 | $0 | $341,491 | $341,491 |
| 2023 | $0 | $60,000 | $0 | $60,000 | $60,000 |
| 2022 | $0 | $40,000 | $0 | $40,000 | $40,000 |
| 2021 | $0 | $30,000 | $0 | $30,000 | $30,000 |
| 2020 | $0 | $30,000 | $0 | $30,000 | $30,000 |
| 2019 | $0 | $30,000 | $0 | $30,000 | $30,000 |
| 2018 | $0 | $30,000 | $0 | $30,000 | $30,000 |
| 2017 | $0 | $30,000 | $0 | $30,000 | $30,000 |
| 2016 | $0 | $30,000 | $0 | $30,000 | $30,000 |
| 2015 | $0 | $30,000 | $0 | $30,000 | $30,000 |
| 2014 | $0 | $30,000 | $0 | $30,000 | $30,000 |
| 2013 | $0 | $30,000 | $0 | $30,000 | $30,000 |
| 2012 | $0 | $30,000 | $0 | $30,000 | $30,000 |
| 2011 | $0 | $30,000 | $0 | $30,000 | $30,000 |
| 2010 | $0 | $30,000 | $0 | $30,000 | $30,000 |
| 2009 | $0 | $45,000 | $0 | $45,000 | $45,000 |
| 2008 | $0 | $45,100 | $0 | $45,100 | $45,100 |
| 2007 | $0 | $41,250 | $0 | $41,250 | $41,250 |
Deed and Sales History
| 1 | 05/22/2024 | WD | Warranty Deed | HENLEY WA 14 LLC | ROSS, JORDAN N | | | $388,000.00 | 60113 | 4572844 |
| 2 | 04/27/2022 | WD | Warranty Deed | ARMSTRONG INNOVATIONS, INC | HENLEY WA 14 LLC | | | $75,000.00 | 52892 | 4544248 |
| 3 | 02/24/2021 | WD | Warranty Deed | RASMUSSEN, SETH | ARMSTRONG INNOVATIONS, INC | | | $20,000.00 | 47122 | 4512153 |
| 4 | 12/10/2013 | QCD | Quit Claim Deed | LEISKE, KEN | RASMUSSEN, SETH | | | $5,000.00 | 13725 | 4352685 |
| 5 | 02/27/2012 | TTAXD | Treasurer's Tax Deed | ISLAND COUNTY TREASURER | LEISKE, KEN | | | $0.00 | 6965 | 4310645 |
| 6 | 08/12/2003 | QCD | Quit Claim Deed | MYERS, RAY & NORMA | MCGEE, MARIA | | | $0.00 | 35589 | 4085925 |
| 7 | 06/08/1998 | DECREE | Divorce Decree/Legal Separation | BOWMAN, BEVERLY & | MYERS, RAY & NORMA | | | $0.00 | 92554 | 99015361 |
| 8 | 07/01/1997 | QCD | Quit Claim Deed | BOWMAN, ROBERT & | BOWMAN, BEVERLY & | | | $0.00 | 72693 | 97012745 |
| 9 | 08/01/1994 | QCD | Quit Claim Deed | BOWMAN, ROBERT | BOWMAN, ROBERT & | | | $0.00 | 43320 | 94017748 |
| 10 | 02/01/1994 | WD | Warranty Deed | MELAND, ALVIN & | BOWMAN, ROBERT | | | $3,000.00 | 40504 | 94003142 |
| 11 | 12/01/1991 | TTAXD | Treasurer's Tax Deed | KALMAN, STEVE | MELAND, ALVIN & | | | $0.00 | 64615 | 91018942 |
| 12 | 07/01/1986 | QCD | Quit Claim Deed | JOYNER, EVELYN M | KALMAN, STEVE | | | $3,000.00 | 61937 | 86009093 |
Payout Agreement
| No payout information available.. |