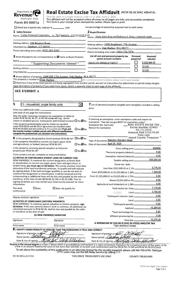
Property
Account |
| Property ID: | 409766 | Abbreviated Legal Description: | TER WEST 6 LOT 28 BLK 1 |
| Geographic ID: | S8305-06-01028-0 | Agent Code: | |
| Type: | Real | | |
| Tax Area: | 310 - APPRAISER-Cpvl Schl Dist, outside Cpvl, improved & 1 acre or less | Land Use Code | 11 |
| Open Space: | N | DFL | N |
| Historic Property: | N | Remodel Property: | N |
| Multi-Family Redevelopment: | N | | |
| Township: | | Section: | |
| Range: | |
Location |
| Address: | 2182 TERONDA DR COUPEVILLE, WA 98239 | Mapsco: | |
| Neighborhood: | Cycle 2 | Map ID: | 528 |
| Neighborhood CD: | 2 |
Owner |
| Name: | BIANCHINI, CHELSEA | Owner ID: | 304589 |
| Mailing Address: | STEVEN MANGINA 2182 TERONDA DRIVE COUPEVILLE, WA 98239 | % Ownership: | 100.0000000000% |
| | | Exemptions: | |
Taxes and Assessment Details
Values
| (+) Improvement Homesite Value: | + | $0 | |
| (+) Improvement Non-Homesite Value: | + | $325,237 | |
| (+) Land Homesite Value: | + | $0 | |
| (+) Land Non-Homesite Value: | + | $210,000 | |
| (+) Curr Use (HS): | + | $0 | $0 |
| (+) Curr Use (NHS): | + | $0 | $0 |
| | | -------------------------- | |
| (=) Market Value: | = | $535,237 | |
| (–) Productivity Loss: | – | $0 | |
| | | -------------------------- | |
| (=) Subtotal: | = | $535,237 | |
| (+) Senior Appraised Value: | + | $0 | |
| (+) Non-Senior Appraised Value: | + | $535,237 | |
| | | -------------------------- | |
| (=) Total Appraised Value: | = | $535,237 | |
| (–) Senior Exemption Loss: | – | $0 | |
| (–) Exemption Loss: | – | $0 | |
| | | -------------------------- | |
| (=) Taxable Value: | = | $535,237 | |
Taxing Jurisdiction
| Owner: | BIANCHINI, CHELSEA | | |
| % Ownership: | 100.0000000000% | | |
| Total Value: | $535,237 | | |
| Tax Area: | 310 - APPRAISER-Cpvl Schl Dist, outside Cpvl, improved & 1 acre or less |
| CF | Conservation Futures | 0.0316035091 | $535,237 | $535,237 | $16.92 | | |
| CEM2 | Cemetery #2 | 0.0095056933 | $535,237 | $535,237 | $5.09 | | |
| FIRE5 | Fire & Rescue Dist #5 C Whidbey GEN | 1.2008080668 | $535,237 | $535,237 | $642.72 | | |
| FIRE5BOND | Fire & Rescue Dist #5 C Whidbey BOND | 0.1400090713 | $535,237 | $535,237 | $74.94 | | |
| HOBOND | Hospital BOND | 0.1910887512 | $535,237 | $535,237 | $102.28 | | |
| HOGEN | Hospital GEN | 0.3902502903 | $535,237 | $535,237 | $208.88 | | |
| CE | County Current Expense | 0.3708482477 | $535,237 | $535,237 | $198.49 | | |
| CR | County Roads | 0.4584763726 | $535,237 | $535,237 | $245.39 | | |
| ISLANDEMS | Hospital GEN (EMS) | 0.5000000000 | $535,237 | $535,237 | $267.62 | | |
| LIB | Library Sno-Isle GEN | 0.3153421757 | $535,237 | $535,237 | $168.78 | | |
| LIBCAP | Library Sno-Isle BOND (Cap Fac Imp Area) | 0.0543427938 | $535,237 | $535,237 | $29.09 | | |
| POCOUP | Port of Coupeville GEN | 0.1093371703 | $535,237 | $535,237 | $58.52 | | |
| POCOUPIDD | Port of Coupeville IDD | 0.3409740022 | $535,237 | $535,237 | $182.50 | | |
| COUPSDTECH | School 204 CP (TECH) | 0.7545480007 | $535,237 | $535,237 | $403.86 | | |
| SCH204MO | School 204 Enrichment | 0.6716186034 | $535,237 | $535,237 | $359.48 | | |
| ST | State School | 1.3035497053 | $535,237 | $535,237 | $697.71 | | |
| ST2 | State School Part 2 | 0.8169543533 | $535,237 | $535,237 | $437.26 | | |
| | Total Tax Rate: | 7.6592568070 | | | | | |
| | | | | Taxes w/Current Exemptions: | $4,099.53 | | |
| | | | | Taxes w/o Exemptions: | $4,099.53 | | |
Improvement / Building
| Improvement #1: | RESIDENTIAL | State Code: | Y | 1770.3 sqft | Value: | $325,237 |
| Bathrooms: | 2 | Bedrooms: | 2 | | Ceiling: | DRYWALL PAINTED | Exterior Wall/Cover: | CEMENT FIBER | | Floor Covering: | CERAMIC TILE/CPT 40-60 | Floor Structure: | WOOD W/SUBFLOOR | | Foundation: | CONCRETE | Heating: | WALL HEAT ELECTRIC | | Interior Finish: | DRYWALL PAINT | Plumbing Fixture Cnt: | 10 | | Roof Slope: | 10" IN 12" | Roof Structure/Cover: | CJ ASPHALT |
|
| | Type | Description | Class CD | Sub Class CD | Year Built | Area |
| | BAS | BASE/MAIN FLOOR | 3 | 0 | 2006 | 1174.7 |
| | OP4 | OPEN PORCH W/CEILING-ROOF | 3 | 0 | 2006 | 59.8 |
| | AGR | ATTACHED GARAGE | 3 | 0 | 2006 | 325.6 |
| | UPH | HALF STORY | 3 | 0 | 2006 | 595.6 |
| | OWP | OPEN WOOD PORCH W/STEPS | 3 | 0 | 2006 | 160.0 |
Sketch
| No sketches available for this property. |
Property Image
Land
| 1 | 13 | SQ (06001-08000) | 0.1300 | 5662.80 | 0.00 | 0.00 | 1.00 | $210,000 | $0 |
Roll Value History
| 2026 | N/A | N/A | N/A | N/A | N/A |
| 2025 | $325,237 | $210,000 | $0 | $535,237 | $535,237 |
| 2024 | $321,593 | $190,000 | $0 | $511,593 | $511,593 |
| 2023 | $325,237 | $180,000 | $0 | $505,237 | $505,237 |
| 2022 | $260,002 | $170,000 | $0 | $430,002 | $430,002 |
| 2021 | $228,670 | $140,000 | $0 | $368,670 | $368,670 |
| 2020 | $222,867 | $110,000 | $0 | $332,867 | $332,867 |
| 2019 | $165,054 | $140,000 | $0 | $305,054 | $305,054 |
| 2018 | $162,062 | $135,000 | $0 | $297,062 | $297,062 |
| 2017 | $162,883 | $100,000 | $0 | $262,883 | $262,883 |
| 2016 | $164,716 | $65,000 | $0 | $229,716 | $229,716 |
| 2015 | $166,545 | $50,000 | $0 | $216,545 | $216,545 |
| 2014 | $168,374 | $50,000 | $0 | $218,374 | $218,374 |
| 2013 | $170,205 | $50,000 | $0 | $220,205 | $220,205 |
| 2012 | $175,565 | $57,000 | $0 | $232,565 | $232,565 |
| 2011 | $177,369 | $60,000 | $0 | $237,369 | $237,369 |
| 2010 | $179,752 | $35,000 | $0 | $214,752 | $214,752 |
| 2009 | $187,244 | $65,000 | $0 | $252,244 | $252,244 |
| 2008 | $189,378 | $75,000 | $0 | $264,378 | $264,378 |
| 2007 | $190,573 | $74,112 | $0 | $264,685 | $201,313 |
Deed and Sales History
| 1 | 05/24/2022 | WD | Warranty Deed | MERCADO TRUSTEE, URSULA E | BIANCHINI, CHELSEA | | | $520,000.00 | 53337 | 4546191 |
| 2 | 12/31/2015 | TRUSTEED | Trustee's Deed | MERCADO, URSULA E | MERCADO TRUSTEE, URSULA E | | | $0.00 | 22736 | 4392096 |
| 3 | 08/28/2006 | WD | Warranty Deed | SOCHA, RICHARD A | MERCADO, URSULA E | | | $259,000.00 | 63741 | 4180432 |
| 4 | 11/09/2005 | WD | Warranty Deed | BUCK, GARY L | SOCHA, RICHARD A | | | $14,000.00 | 55694 | 4153866 |
| 5 | 01/01/1900 | OTHER | Other - Misc. Documents | Unknown | BUCK, GARY L | | | $0.00 | 0 | 0 |
Payout Agreement
| No payout information available.. |