Property
Account |
| Property ID: | 409837 | Abbreviated Legal Description: | TER WEST 6 LOT 35 BLK 1 |
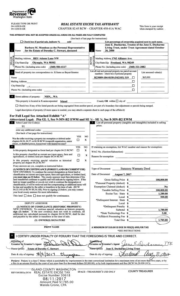
| Geographic ID: | S8305-06-01035-0 | Agent Code: | |
| Type: | Real | | |
| Tax Area: | 310 - APPRAISER-Cpvl Schl Dist, outside Cpvl, improved & 1 acre or less | Land Use Code | 11 |
| Open Space: | N | DFL | N |
| Historic Property: | N | Remodel Property: | N |
| Multi-Family Redevelopment: | N | | |
| Township: | | Section: | |
| Range: | |
Location |
| Address: | 2214 TERONDA DR DR COUPEVILLE, WA 98239 | Mapsco: | |
| Neighborhood: | Cycle 2 | Map ID: | 526 |
| Neighborhood CD: | 2 |
Owner |
| Name: | LAUGHLIN, JEFFREY C | Owner ID: | 311888 |
| Mailing Address: | VIBEKE A LAUGHLIN 2214 TERONDA DR COUPEVILLE, WA 98239 | % Ownership: | 100.0000000000% |
| | | Exemptions: | |
Taxes and Assessment Details
Values
| (+) Improvement Homesite Value: | + | $0 | |
| (+) Improvement Non-Homesite Value: | + | $324,890 | |
| (+) Land Homesite Value: | + | $0 | |
| (+) Land Non-Homesite Value: | + | $210,000 | |
| (+) Curr Use (HS): | + | $0 | $0 |
| (+) Curr Use (NHS): | + | $0 | $0 |
| | | -------------------------- | |
| (=) Market Value: | = | $534,890 | |
| (–) Productivity Loss: | – | $0 | |
| | | -------------------------- | |
| (=) Subtotal: | = | $534,890 | |
| (+) Senior Appraised Value: | + | $0 | |
| (+) Non-Senior Appraised Value: | + | $534,890 | |
| | | -------------------------- | |
| (=) Total Appraised Value: | = | $534,890 | |
| (–) Senior Exemption Loss: | – | $0 | |
| (–) Exemption Loss: | – | $0 | |
| | | -------------------------- | |
| (=) Taxable Value: | = | $534,890 | |
Taxing Jurisdiction
| Owner: | LAUGHLIN, JEFFREY C | | |
| % Ownership: | 100.0000000000% | | |
| Total Value: | $534,890 | | |
| Tax Area: | 310 - APPRAISER-Cpvl Schl Dist, outside Cpvl, improved & 1 acre or less |
| CF | Conservation Futures | 0.0316035091 | $534,890 | $534,890 | $16.90 | | |
| CEM2 | Cemetery #2 | 0.0095056933 | $534,890 | $534,890 | $5.08 | | |
| FIRE5 | Fire & Rescue Dist #5 C Whidbey GEN | 1.2008080668 | $534,890 | $534,890 | $642.30 | | |
| FIRE5BOND | Fire & Rescue Dist #5 C Whidbey BOND | 0.1400090713 | $534,890 | $534,890 | $74.89 | | |
| HOBOND | Hospital BOND | 0.1910887512 | $534,890 | $534,890 | $102.21 | | |
| HOGEN | Hospital GEN | 0.3902502903 | $534,890 | $534,890 | $208.74 | | |
| CE | County Current Expense | 0.3708482477 | $534,890 | $534,890 | $198.36 | | |
| CR | County Roads | 0.4584763726 | $534,890 | $534,890 | $245.23 | | |
| ISLANDEMS | Hospital GEN (EMS) | 0.5000000000 | $534,890 | $534,890 | $267.45 | | |
| LIB | Library Sno-Isle GEN | 0.3153421757 | $534,890 | $534,890 | $168.67 | | |
| LIBCAP | Library Sno-Isle BOND (Cap Fac Imp Area) | 0.0543427938 | $534,890 | $534,890 | $29.07 | | |
| POCOUP | Port of Coupeville GEN | 0.1093371703 | $534,890 | $534,890 | $58.48 | | |
| POCOUPIDD | Port of Coupeville IDD | 0.3409740022 | $534,890 | $534,890 | $182.38 | | |
| COUPSDTECH | School 204 CP (TECH) | 0.7545480007 | $534,890 | $534,890 | $403.60 | | |
| SCH204MO | School 204 Enrichment | 0.6716186034 | $534,890 | $534,890 | $359.24 | | |
| ST | State School | 1.3035497053 | $534,890 | $534,890 | $697.26 | | |
| ST2 | State School Part 2 | 0.8169543533 | $534,890 | $534,890 | $436.98 | | |
| | Total Tax Rate: | 7.6592568070 | | | | | |
| | | | | Taxes w/Current Exemptions: | $4,096.84 | | |
| | | | | Taxes w/o Exemptions: | $4,096.84 | | |
Improvement / Building
| Improvement #1: | RESIDENTIAL | State Code: | Y | 1384.8 sqft | Value: | $324,890 |
| Bathrooms: | 2 | Bedrooms: | 1 | | Ceiling: | DRYWALL PAINTED | Cooling: | HEAT PUMP/CONV/V | | Exterior Wall/Cover: | CEMENT FIBER | Floor Covering: | VINYL TILE | | Floor Structure: | WOOD W/SUBFLOOR | Foundation: | CONCRETE | | Interior Finish: | DRYWALL PAINT | Plumbing Fixture Cnt: | 10 | | Roof Slope: | 8" IN 12" | Roof Structure/Cover: | CJ ASPHALT |
|
| | Type | Description | Class CD | Sub Class CD | Year Built | Area |
| | BAS | BASE/MAIN FLOOR | 3 | 0 | 2024 | 1384.8 |
| | AGR | ATTACHED GARAGE | 3 | 0 | 2024 | 407.2 |
| | OP4 | OPEN PORCH W/CEILING-ROOF | 3 | 0 | 2024 | 56.0 |
| | OP4 | OPEN PORCH W/CEILING-ROOF | 3 | 0 | 2024 | 72.0 |
| | OP4 | OPEN PORCH W/CEILING-ROOF | 3 | 0 | 2024 | 176.0 |
Sketch
Property Image
Land
| 1 | 13 | SQ (06001-08000) | 0.1300 | 5662.80 | 0.00 | 0.00 | 1.00 | $210,000 | $0 |
Roll Value History
| 2026 | N/A | N/A | N/A | N/A | N/A |
| 2025 | $324,890 | $210,000 | $0 | $534,890 | $534,890 |
| 2024 | $331,521 | $190,000 | $0 | $521,521 | $521,521 |
| 2023 | $0 | $60,000 | $0 | $60,000 | $60,000 |
| 2022 | $0 | $40,000 | $0 | $40,000 | $40,000 |
| 2021 | $0 | $30,000 | $0 | $30,000 | $30,000 |
| 2020 | $0 | $30,000 | $0 | $30,000 | $30,000 |
| 2019 | $0 | $30,000 | $0 | $30,000 | $30,000 |
| 2018 | $0 | $30,000 | $0 | $30,000 | $30,000 |
| 2017 | $0 | $30,000 | $0 | $30,000 | $30,000 |
| 2016 | $0 | $30,000 | $0 | $30,000 | $30,000 |
| 2015 | $0 | $30,000 | $0 | $30,000 | $30,000 |
| 2014 | $0 | $30,000 | $0 | $30,000 | $30,000 |
| 2013 | $0 | $30,000 | $0 | $30,000 | $30,000 |
| 2012 | $0 | $30,000 | $0 | $30,000 | $30,000 |
| 2011 | $0 | $30,000 | $0 | $30,000 | $30,000 |
| 2010 | $0 | $30,000 | $0 | $30,000 | $30,000 |
| 2009 | $0 | $45,000 | $0 | $45,000 | $45,000 |
| 2008 | $0 | $45,100 | $0 | $45,100 | $45,100 |
| 2007 | $0 | $41,250 | $0 | $41,250 | $41,250 |
Deed and Sales History
| 1 | 03/22/2024 | WD | Warranty Deed | ENCINAS CONSTRUCTION INC | LAUGHLIN, JEFFREY C | | | $519,000.00 | 59576 | 4570922 |
| 2 | 11/09/2021 | WD | Warranty Deed | OMOTAYO, ISAAC AYOTUNDE | ENCINAS CONSTRUCTION INC | | | $64,000.00 | 51048 | 4534405 |
| 3 | 05/12/2021 | WD | Warranty Deed | FRAGALE INVESTMENTS, LLC | OMOTAYO, ISAAC AYOTUNDE | | | $25,000.00 | 48505 | 4520750 |
| 4 | 05/11/2021 | WD | Warranty Deed | SALDANA, PAT | FRAGALE INVESTMENTS, LLC | | | $10,000.00 | 48503 | 4520739 |
| 5 | 07/10/2017 | WD | Warranty Deed | ROSS, CAROL A | SALDANA, PAT | | | $4,500.00 | 30253 | 4426558 |
Payout Agreement
| No payout information available.. |