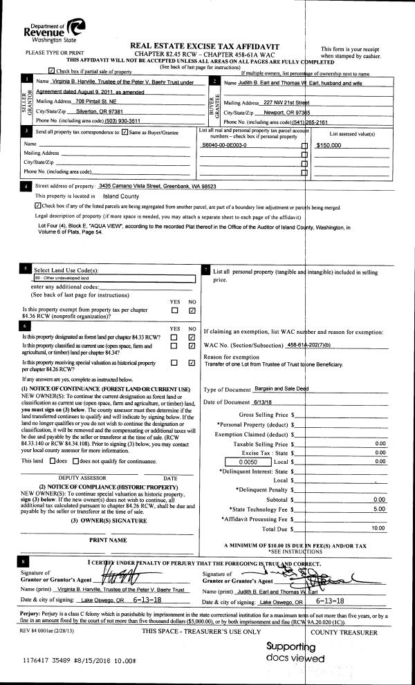
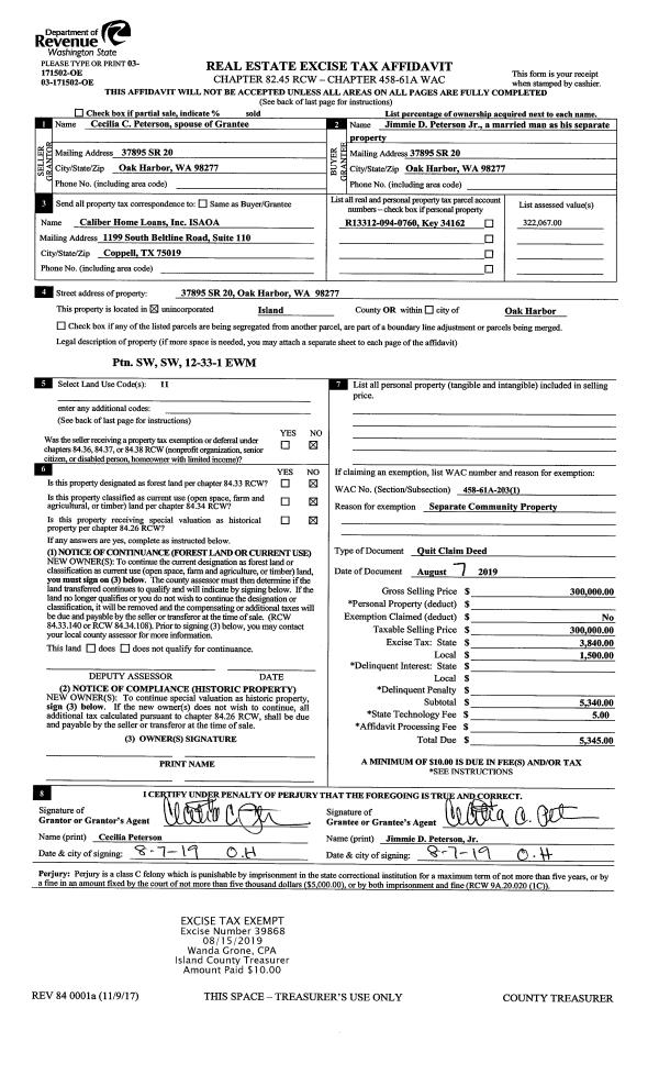
Property
Account |
| Property ID: | 40985 | Abbreviated Legal Description: | 51 - IN SE NW: BG ELN HELLER RD & SLN SE NW N200' TPB E200' S100' W200' TO RD N TPB |
| Geographic ID: | R13334-279-1460 | Agent Code: | |
| Type: | Real | | |
| Tax Area: | 100 - APPRAISER-OH Schl Dist, in OH | Land Use Code | 11 |
| Open Space: | N | DFL | N |
| Historic Property: | N | Remodel Property: | N |
| Multi-Family Redevelopment: | N | | |
| Township: | 33 | Section: | 34 |
| Range: | R1 |
Location |
| Address: | 720 NW HELLER ST OAK HARBOR, WA 98277 | Mapsco: | |
| Neighborhood: | Cycle 1 | Map ID: | 254 |
| Neighborhood CD: | 1 |
Owner |
| Name: | GOURNEAU, GABRIEL LOUIS | Owner ID: | 302380 |
| Mailing Address: | 2720 CREEKFRONT DRIVE GREEN COVE SPRINGS, FL 32043-6261 | % Ownership: | 100.0000000000% |
| | | Exemptions: | |
Taxes and Assessment Details
Values
| (+) Improvement Homesite Value: | + | $0 | |
| (+) Improvement Non-Homesite Value: | + | $254,113 | |
| (+) Land Homesite Value: | + | $0 | |
| (+) Land Non-Homesite Value: | + | $200,000 | |
| (+) Curr Use (HS): | + | $0 | $0 |
| (+) Curr Use (NHS): | + | $0 | $0 |
| | | -------------------------- | |
| (=) Market Value: | = | $454,113 | |
| (–) Productivity Loss: | – | $0 | |
| | | -------------------------- | |
| (=) Subtotal: | = | $454,113 | |
| (+) Senior Appraised Value: | + | $0 | |
| (+) Non-Senior Appraised Value: | + | $454,113 | |
| | | -------------------------- | |
| (=) Total Appraised Value: | = | $454,113 | |
| (–) Senior Exemption Loss: | – | $0 | |
| (–) Exemption Loss: | – | $0 | |
| | | -------------------------- | |
| (=) Taxable Value: | = | $454,113 | |
Taxing Jurisdiction
| Owner: | GOURNEAU, GABRIEL LOUIS | | |
| % Ownership: | 100.0000000000% | | |
| Total Value: | $454,113 | | |
| Tax Area: | 100 - APPRAISER-OH Schl Dist, in OH |
| CF | Conservation Futures | 0.0316035091 | $454,113 | $454,113 | $14.35 | | |
| CEM1 | Cemetery #1 | 0.0040320932 | $454,113 | $454,113 | $1.83 | | |
| COH | City of Oak Harbor | 2.3001546061 | $454,113 | $454,113 | $1,044.53 | | |
| OAKBOND | City of Oak Harbor BOND | 0.1926904192 | $454,113 | $454,113 | $87.50 | | |
| HOBOND | Hospital BOND | 0.1910887512 | $454,113 | $454,113 | $86.78 | | |
| HOGEN | Hospital GEN | 0.3902502903 | $454,113 | $454,113 | $177.22 | | |
| CE | County Current Expense | 0.3708482477 | $454,113 | $454,113 | $168.41 | | |
| ISLANDEMS | Hospital GEN (EMS) | 0.5000000000 | $454,113 | $454,113 | $227.06 | | |
| LIB | Library Sno-Isle GEN | 0.3153421757 | $454,113 | $454,113 | $143.20 | | |
| NWHIDPRMT | P & R N Whidbey GEN | 0.2004466701 | $454,113 | $454,113 | $91.03 | | |
| SCH201MO | School 201 Enrichment | 1.8559231640 | $454,113 | $454,113 | $842.80 | | |
| ST | State School | 1.3035497053 | $454,113 | $454,113 | $591.96 | | |
| ST2 | State School Part 2 | 0.8169543533 | $454,113 | $454,113 | $370.99 | | |
| | Total Tax Rate: | 8.4728839852 | | | | | |
| | | | | Taxes w/Current Exemptions: | $3,847.66 | | |
| | | | | Taxes w/o Exemptions: | $3,847.66 | | |
Improvement / Building
| Improvement #1: | RESIDENTIAL | State Code: | Y | 1549.0 sqft | Value: | $254,113 |
| Bathrooms: | 2 | Bedrooms: | 3 | | Ceiling: | DRYWALL PAINTED | Exterior Wall/Cover: | PLY/HARDBOARD T-111 | | Floor Covering: | CARPET/VINYL 80-20 | Floor Structure: | WOOD W/SUBFLOOR | | Foundation: | CONCRETE | Heating: | FHA GAS | | Interior Finish: | DRYWALL PAINT | Plumbing Fixture Cnt: | 9 | | Roof Slope: | 4" IN 12" | Roof Structure/Cover: | CJ ASPHALT |
|
| | Type | Description | Class CD | Sub Class CD | Year Built | Area |
| | BAS | BASE/MAIN FLOOR | 3 | 0 | 1972 | 1549.0 |
| | OP4 | OPEN PORCH W/CEILING-ROOF | 3 | 0 | 1972 | 60.0 |
| | AGR | ATTACHED GARAGE | 3 | 0 | 1972 | 441.0 |
Sketch
Property Image
Land
| 1 | 15 | SQ (12001-21780) | 0.4600 | 20037.60 | 0.00 | 0.00 | 1.00 | $200,000 | $0 |
Roll Value History
| 2026 | N/A | N/A | N/A | N/A | N/A |
| 2025 | $254,113 | $200,000 | $0 | $454,113 | $454,113 |
| 2024 | $257,166 | $190,000 | $0 | $447,166 | $447,166 |
| 2023 | $260,219 | $190,000 | $0 | $450,219 | $450,219 |
| 2022 | $238,394 | $180,000 | $0 | $418,394 | $418,394 |
| 2021 | $209,713 | $135,000 | $0 | $344,713 | $344,713 |
| 2020 | $204,219 | $100,000 | $0 | $304,219 | $304,219 |
| 2019 | $132,942 | $150,000 | $0 | $282,942 | $282,942 |
| 2018 | $133,363 | $130,000 | $0 | $263,363 | $263,363 |
| 2017 | $114,038 | $110,000 | $0 | $224,038 | $224,038 |
| 2016 | $115,765 | $90,000 | $0 | $205,765 | $205,765 |
| 2015 | $117,493 | $70,000 | $0 | $187,493 | $187,493 |
| 2014 | $119,220 | $55,000 | $0 | $174,220 | $174,220 |
| 2013 | $120,949 | $55,000 | $0 | $175,949 | $175,949 |
| 2012 | $122,677 | $65,000 | $0 | $187,677 | $187,677 |
| 2011 | $123,295 | $50,000 | $0 | $173,295 | $173,295 |
| 2010 | $132,548 | $50,000 | $0 | $182,548 | $182,548 |
| 2009 | $138,475 | $66,400 | $0 | $204,875 | $204,875 |
| 2008 | $140,500 | $80,000 | $0 | $220,500 | $220,500 |
| 2007 | $142,525 | $80,000 | $0 | $222,525 | $222,525 |
Deed and Sales History
| 1 | 12/07/2021 | WD | Warranty Deed | MORRISON, JOSHUA K | GOURNEAU, GABRIEL LOUIS | | | $475,780.00 | 51349 | 4536081 |
| 2 | 07/30/2019 | WD | Warranty Deed | MAURER, DARREN LEWIS | MORRISON, JOSHUA K | | | $326,000.00 | 39649 | 4468389 |
| 3 | 05/01/2014 | WD | Warranty Deed | SECRETARY OF HOUSING & URBAN DEVELOPMENT | MAURER, DARREN LEWIS | | | $160,200.00 | 15249 | 4359229 |
| 4 | 02/21/2013 | TRUSTEED | Trustee's Deed | GUILD MORTGAGE COMPANY | SECRETARY OF HOUSING & URBAN DEVELOPMENT | | | $189,173.00 | 12334 | 4346021 |
| 5 | 01/18/2013 | TRUSTEED | Trustee's Deed | CANTRELL, JASON | GUILD MORTGAGE COMPANY | | | $201,915.00 | 10197 | 4331864 |
| 6 | 02/09/2011 | WD | Warranty Deed | TUCKER, LESTER B | CANTRELL, JASON | | | $197,000.00 | 3638 | 4290815 |
| 7 | 05/01/1990 | WD | Warranty Deed | PEIN, DONALD W | TUCKER, LESTER B | | | $89,950.00 | 2945 | 90009623 |
| 8 | 03/01/1982 | WD | Warranty Deed | PEDERSEN, ARTHUR | PEIN, DONALD W | | | $69,000.00 | 20524 | 393769 |
| 9 | 01/01/1900 | OTHER | Other - Misc. Documents | Unknown | PEDERSEN, ARTHUR | | | $0.00 | 0 | 0 |
Payout Agreement
| No payout information available.. |