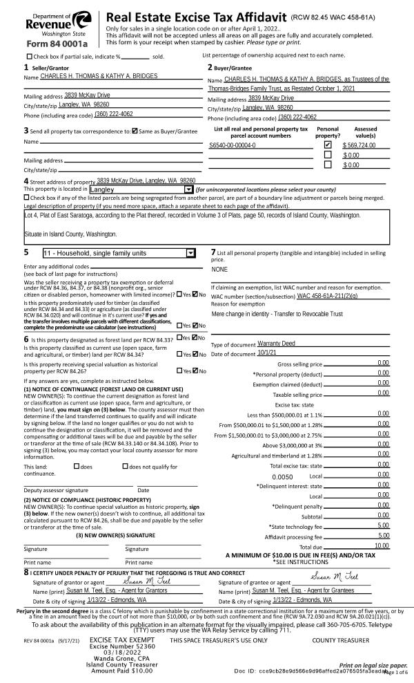
Property
Account |
| Property ID: | 409917 | Abbreviated Legal Description: | TER WEST 6 LOT 4 BLK 2 EX PT TO ST HWY AF#20000405 |
| Geographic ID: | S8305-06-02004-0 | Agent Code: | |
| Type: | Real | | |
| Tax Area: | 310 - APPRAISER-Cpvl Schl Dist, outside Cpvl, improved & 1 acre or less | Land Use Code | 11 |
| Open Space: | N | DFL | N |
| Historic Property: | N | Remodel Property: | N |
| Multi-Family Redevelopment: | N | | |
| Township: | | Section: | |
| Range: | |
Location |
| Address: | 464 SYCAMORE RD COUPEVILLE, WA 98239 | Mapsco: | |
| Neighborhood: | Cycle 2 | Map ID: | 526 |
| Neighborhood CD: | 2 |
Owner |
| Name: | HYTTE HOMES LLC | Owner ID: | 302771 |
| Mailing Address: | 14851 JEFFERSON ST ANACORTES, WA 98221 | % Ownership: | 100.0000000000% |
| | | Exemptions: | |
Taxes and Assessment Details
Values
| (+) Improvement Homesite Value: | + | $0 | |
| (+) Improvement Non-Homesite Value: | + | $141,154 | |
| (+) Land Homesite Value: | + | $0 | |
| (+) Land Non-Homesite Value: | + | $210,000 | |
| (+) Curr Use (HS): | + | $0 | $0 |
| (+) Curr Use (NHS): | + | $0 | $0 |
| | | -------------------------- | |
| (=) Market Value: | = | $351,154 | |
| (–) Productivity Loss: | – | $0 | |
| | | -------------------------- | |
| (=) Subtotal: | = | $351,154 | |
| (+) Senior Appraised Value: | + | $0 | |
| (+) Non-Senior Appraised Value: | + | $351,154 | |
| | | -------------------------- | |
| (=) Total Appraised Value: | = | $351,154 | |
| (–) Senior Exemption Loss: | – | $0 | |
| (–) Exemption Loss: | – | $0 | |
| | | -------------------------- | |
| (=) Taxable Value: | = | $351,154 | |
Taxing Jurisdiction
| Owner: | HYTTE HOMES LLC | | |
| % Ownership: | 100.0000000000% | | |
| Total Value: | $351,154 | | |
| Tax Area: | 310 - APPRAISER-Cpvl Schl Dist, outside Cpvl, improved & 1 acre or less |
| CF | Conservation Futures | 0.0316035091 | $351,154 | $351,154 | $11.10 | | |
| CEM2 | Cemetery #2 | 0.0095056933 | $351,154 | $351,154 | $3.34 | | |
| FIRE5 | Fire & Rescue Dist #5 C Whidbey GEN | 1.2008080668 | $351,154 | $351,154 | $421.67 | | |
| FIRE5BOND | Fire & Rescue Dist #5 C Whidbey BOND | 0.1400090713 | $351,154 | $351,154 | $49.16 | | |
| HOBOND | Hospital BOND | 0.1910887512 | $351,154 | $351,154 | $67.10 | | |
| HOGEN | Hospital GEN | 0.3902502903 | $351,154 | $351,154 | $137.04 | | |
| CE | County Current Expense | 0.3708482477 | $351,154 | $351,154 | $130.22 | | |
| CR | County Roads | 0.4584763726 | $351,154 | $351,154 | $161.00 | | |
| ISLANDEMS | Hospital GEN (EMS) | 0.5000000000 | $351,154 | $351,154 | $175.58 | | |
| LIB | Library Sno-Isle GEN | 0.3153421757 | $351,154 | $351,154 | $110.73 | | |
| LIBCAP | Library Sno-Isle BOND (Cap Fac Imp Area) | 0.0543427938 | $351,154 | $351,154 | $19.08 | | |
| POCOUP | Port of Coupeville GEN | 0.1093371703 | $351,154 | $351,154 | $38.39 | | |
| POCOUPIDD | Port of Coupeville IDD | 0.3409740022 | $351,154 | $351,154 | $119.73 | | |
| COUPSDTECH | School 204 CP (TECH) | 0.7545480007 | $351,154 | $351,154 | $264.96 | | |
| SCH204MO | School 204 Enrichment | 0.6716186034 | $351,154 | $351,154 | $235.84 | | |
| ST | State School | 1.3035497053 | $351,154 | $351,154 | $457.75 | | |
| ST2 | State School Part 2 | 0.8169543533 | $351,154 | $351,154 | $286.88 | | |
| | Total Tax Rate: | 7.6592568070 | | | | | |
| | | | | Taxes w/Current Exemptions: | $2,689.57 | | |
| | | | | Taxes w/o Exemptions: | $2,689.57 | | |
Improvement / Building
| Improvement #1: | MANUFACTURED HOME | State Code: | Y | 1173.5 sqft | Value: | $141,154 |
| Bathrooms: | 1 | Bedrooms: | 2 | | Ceiling: | PLASTER PAINTED | Cooling: | EVAP NO DUCT | | Exterior Wall/Cover: | VINYL | Floor Covering: | CARPET 100% | | Floor Structure: | SLAB ON GRADE | Foundation: | SLAB | | Heating: | FHA ELECTRIC | Interior Finish: | PLASTER | | Plumbing Fixture Cnt: | 1 | Roof Slope: | FLAT | | Roof Structure/Cover: | CJ ALUMINIUM HEAVY |   |   |
|
| | Type | Description | Class CD | Sub Class CD | Year Built | Area |
| | BAS | BASE/MAIN FLOOR | 4 | 0 | 2024 | 1173.5 |
| | OWP | OPEN WOOD PORCH W/STEPS | 4 | 0 | 2024 | 0.0 |
Sketch
| No sketches available for this property. |
Property Image
Land
| 1 | 14 | SQ (08001-12000) | 0.2886 | 12571.42 | 0.00 | 0.00 | 1.00 | $210,000 | $0 |
Roll Value History
| 2026 | N/A | N/A | N/A | N/A | N/A |
| 2025 | $141,154 | $210,000 | $0 | $351,154 | $351,154 |
| 2024 | $0 | $80,000 | $0 | $80,000 | $80,000 |
| 2023 | $0 | $60,000 | $0 | $60,000 | $60,000 |
| 2022 | $0 | $40,000 | $0 | $40,000 | $40,000 |
| 2021 | $0 | $30,000 | $0 | $30,000 | $30,000 |
| 2020 | $0 | $30,000 | $0 | $30,000 | $30,000 |
| 2019 | $0 | $30,000 | $0 | $30,000 | $30,000 |
| 2018 | $0 | $30,000 | $0 | $30,000 | $30,000 |
| 2017 | $0 | $30,000 | $0 | $30,000 | $30,000 |
| 2016 | $0 | $30,000 | $0 | $30,000 | $30,000 |
| 2015 | $0 | $30,000 | $0 | $30,000 | $30,000 |
| 2014 | $0 | $30,000 | $0 | $30,000 | $30,000 |
| 2013 | $0 | $30,000 | $0 | $30,000 | $30,000 |
| 2012 | $0 | $45,000 | $0 | $45,000 | $45,000 |
| 2011 | $0 | $45,000 | $0 | $45,000 | $45,000 |
| 2010 | $0 | $45,000 | $0 | $45,000 | $45,000 |
| 2009 | $0 | $65,000 | $0 | $65,000 | $65,000 |
| 2008 | $0 | $54,940 | $0 | $54,940 | $54,940 |
| 2007 | $0 | $45,000 | $0 | $45,000 | $45,000 |
Deed and Sales History
| 1 | 12/30/2021 | WD | Warranty Deed | LUNDQUIST, IRENE P | HYTTE HOMES LLC | | | $55,580.00 | 51782 | 4538657 |
| 2 | 04/11/2002 | 5 | DNU - Marriage License/Name Change | LUNDQUIST, LAFEY | LUNDQUIST, IRENE P | | | $0.00 | 69377 | 4016452 |
| 3 | 12/03/1999 | WD | Warranty Deed | LUNDQUIST, LAFEY | LUNDQUIST, LAFEY | | | $1,700.00 | 55 | 20000405 |
| 4 | 06/12/1999 | QCD | Quit Claim Deed | LUNDQUIST, LAFEY | LUNDQUIST, LAFEY | | | $0.00 | 92791 | 99016596 |
| 5 | 07/01/1985 | WD | Warranty Deed | HINGSTON, THOMAS B | LUNDQUIST, LAFEY | | | $2,500.00 | 51933 | 85007579 |
| 6 | 12/01/1984 | QCD | Quit Claim Deed | Unknown | HINGSTON, THOMAS B | | | $0.00 | 43731 | 84007276 |
| 7 | 12/01/1981 | CD | DNU - Correction Deed | LUNDQUIST, LAFEY | MELTON, BEN L | | | $1.00 | 13676 | 390763 |
| 8 | 11/01/1979 | EXECUTORD | Executor Deed | HINGSTON, THOMAS B | WATERS, DONALD A | | | $5,000.00 | 95457 | 361714 |
| 9 | 01/01/1900 | OTHER | Other - Misc. Documents | Unknown | MELTON, BEN L | | | $0.00 | 0 | 0 |
Payout Agreement
| No payout information available.. |