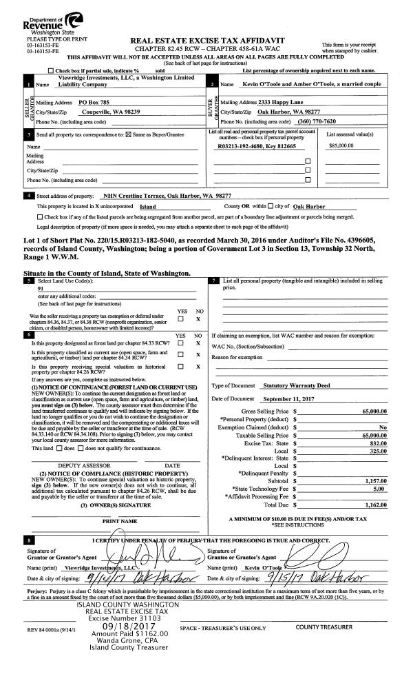
Property
Account |
| Property ID: | 410059 | Abbreviated Legal Description: | TER WEST 6 LOT 18 BLK 2 |
| Geographic ID: | S8305-06-02018-0 | Agent Code: | |
| Type: | Real | | |
| Tax Area: | 310 - APPRAISER-Cpvl Schl Dist, outside Cpvl, improved & 1 acre or less | Land Use Code | 11 |
| Open Space: | N | DFL | N |
| Historic Property: | N | Remodel Property: | N |
| Multi-Family Redevelopment: | N | | |
| Township: | | Section: | |
| Range: | |
Location |
| Address: | 438 MITCHELL DR COUPEVILLE, WA 98239 | Mapsco: | |
| Neighborhood: | Cycle 2 | Map ID: | 526 |
| Neighborhood CD: | 2 |
Owner |
| Name: | DURRANT, BRUCE J | Owner ID: | 281240 |
| Mailing Address: | PO BOX 495 CROFTON V0R 1R0, BC | % Ownership: | 100.0000000000% |
| | | Exemptions: | |
Taxes and Assessment Details
Values
| (+) Improvement Homesite Value: | + | $0 | |
| (+) Improvement Non-Homesite Value: | + | $236,744 | |
| (+) Land Homesite Value: | + | $0 | |
| (+) Land Non-Homesite Value: | + | $210,000 | |
| (+) Curr Use (HS): | + | $0 | $0 |
| (+) Curr Use (NHS): | + | $0 | $0 |
| | | -------------------------- | |
| (=) Market Value: | = | $446,744 | |
| (–) Productivity Loss: | – | $0 | |
| | | -------------------------- | |
| (=) Subtotal: | = | $446,744 | |
| (+) Senior Appraised Value: | + | $0 | |
| (+) Non-Senior Appraised Value: | + | $446,744 | |
| | | -------------------------- | |
| (=) Total Appraised Value: | = | $446,744 | |
| (–) Senior Exemption Loss: | – | $0 | |
| (–) Exemption Loss: | – | $0 | |
| | | -------------------------- | |
| (=) Taxable Value: | = | $446,744 | |
Taxing Jurisdiction
| Owner: | DURRANT, BRUCE J | | |
| % Ownership: | 100.0000000000% | | |
| Total Value: | $446,744 | | |
| Tax Area: | 310 - APPRAISER-Cpvl Schl Dist, outside Cpvl, improved & 1 acre or less |
| CF | Conservation Futures | 0.0316035091 | $446,744 | $446,744 | $14.12 | | |
| CEM2 | Cemetery #2 | 0.0095056933 | $446,744 | $446,744 | $4.25 | | |
| FIRE5 | Fire & Rescue Dist #5 C Whidbey GEN | 1.2008080668 | $446,744 | $446,744 | $536.45 | | |
| FIRE5BOND | Fire & Rescue Dist #5 C Whidbey BOND | 0.1400090713 | $446,744 | $446,744 | $62.55 | | |
| HOBOND | Hospital BOND | 0.1910887512 | $446,744 | $446,744 | $85.37 | | |
| HOGEN | Hospital GEN | 0.3902502903 | $446,744 | $446,744 | $174.34 | | |
| CE | County Current Expense | 0.3708482477 | $446,744 | $446,744 | $165.67 | | |
| CR | County Roads | 0.4584763726 | $446,744 | $446,744 | $204.82 | | |
| ISLANDEMS | Hospital GEN (EMS) | 0.5000000000 | $446,744 | $446,744 | $223.37 | | |
| LIB | Library Sno-Isle GEN | 0.3153421757 | $446,744 | $446,744 | $140.88 | | |
| LIBCAP | Library Sno-Isle BOND (Cap Fac Imp Area) | 0.0543427938 | $446,744 | $446,744 | $24.28 | | |
| POCOUP | Port of Coupeville GEN | 0.1093371703 | $446,744 | $446,744 | $48.85 | | |
| POCOUPIDD | Port of Coupeville IDD | 0.3409740022 | $446,744 | $446,744 | $152.33 | | |
| COUPSDTECH | School 204 CP (TECH) | 0.7545480007 | $446,744 | $446,744 | $337.09 | | |
| SCH204MO | School 204 Enrichment | 0.6716186034 | $446,744 | $446,744 | $300.04 | | |
| ST | State School | 1.3035497053 | $446,744 | $446,744 | $582.35 | | |
| ST2 | State School Part 2 | 0.8169543533 | $446,744 | $446,744 | $364.97 | | |
| | Total Tax Rate: | 7.6592568070 | | | | | |
| | | | | Taxes w/Current Exemptions: | $3,421.73 | | |
| | | | | Taxes w/o Exemptions: | $3,421.73 | | |
Improvement / Building
| Improvement #1: | RESIDENTIAL | State Code: | Y | 1300.0 sqft | Value: | $236,744 |
| Bathrooms: | 2 | Bedrooms: | 2 | | Ceiling: | DRYWALL PAINTED | Exterior Wall/Cover: | PLY/HARDBOARD T-111 | | Floor Covering: | CARPET/VINYL 80-20 | Floor Structure: | WOOD W/SUBFLOOR | | Foundation: | CONCRETE | Heating: | WALL HEAT ELECTRIC | | Interior Finish: | DRYWALL PAINT | Plumbing Fixture Cnt: | 9 | | Roof Slope: | 6" IN 12" | Roof Structure/Cover: | CJ ASPHALT |
|
| | Type | Description | Class CD | Sub Class CD | Year Built | Area |
| | BAS | BASE/MAIN FLOOR | 3 | 0 | 1994 | 1300.0 |
| | OWP | OPEN WOOD PORCH W/STEPS | 3 | 0 | 1994 | 12.0 |
| | OWP | OPEN WOOD PORCH W/STEPS | 3 | 0 | 1994 | 72.0 |
| | OWR | OPEN WOOD PORCH W/STEPS/ROOF | 3 | 0 | 1994 | 99.0 |
| | UTY | STORAGE/UTILITY | 3 | 0 | 1994 | 232.0 |
Sketch
| No sketches available for this property. |
Property Image
Land
| 1 | 13 | SQ (06001-08000) | 0.1653 | 7200.47 | 0.00 | 0.00 | 1.00 | $210,000 | $0 |
Roll Value History
| 2026 | N/A | N/A | N/A | N/A | N/A |
| 2025 | $236,744 | $210,000 | $0 | $446,744 | $446,744 |
| 2024 | $236,024 | $190,000 | $0 | $426,024 | $426,024 |
| 2023 | $238,824 | $180,000 | $0 | $418,824 | $418,824 |
| 2022 | $218,793 | $170,000 | $0 | $388,793 | $388,793 |
| 2021 | $192,463 | $140,000 | $0 | $332,463 | $332,463 |
| 2020 | $187,152 | $110,000 | $0 | $297,152 | $297,152 |
| 2019 | $133,602 | $140,000 | $0 | $273,602 | $273,602 |
| 2018 | $136,118 | $135,000 | $0 | $271,118 | $271,118 |
| 2017 | $127,520 | $100,000 | $0 | $227,520 | $227,520 |
| 2016 | $129,076 | $65,000 | $0 | $194,076 | $194,076 |
| 2015 | $130,631 | $50,000 | $0 | $180,631 | $180,631 |
| 2014 | $132,186 | $50,000 | $0 | $182,186 | $182,186 |
| 2013 | $133,741 | $50,000 | $0 | $183,741 | $183,741 |
| 2012 | $128,784 | $57,000 | $0 | $185,784 | $185,784 |
| 2011 | $130,289 | $60,000 | $0 | $190,289 | $190,289 |
| 2010 | $134,933 | $35,000 | $0 | $169,933 | $169,933 |
| 2009 | $140,755 | $65,000 | $0 | $205,755 | $205,755 |
| 2008 | $142,679 | $75,000 | $0 | $217,679 | $217,679 |
| 2007 | $144,524 | $75,000 | $0 | $219,524 | $219,524 |
Deed and Sales History
| 1 | 07/17/2017 | WD | Warranty Deed | SIROTKIN, LAURIE A | DURRANT, BRUCE J | | | $260,000.00 | 30451 | 4427375 |
| 2 | 05/10/2010 | WD | Warranty Deed | Unknown | SIROTKIN, LAURIE A | | | $206,500.00 | 1166 | 4273874 |
| 3 | 10/22/2001 | 5 | DNU - Marriage License/Name Change | COOPER, HOWARD G | COOPER, HOWARD G | | | $0.00 | 69151 | 0 |
| 4 | 06/22/1998 | QCD | Quit Claim Deed | COOPER, HOWARD G | COOPER, HOWARD G | | | $0.00 | 82501 | 98013073 |
| 5 | 10/01/1993 | WD | Warranty Deed | MILLER, STANFORD | COOPER, HOWARD G | | | $13,000.00 | 34171 | 93021724 |
| 6 | 11/01/1992 | QCD | Quit Claim Deed | BARRETT, CHRISTOPHER M | MILLER, STANFORD | | | $0.00 | 25058 | 92024971 |
| 7 | 11/01/1992 | WD | Warranty Deed | MILLER, GERARD J | BARRETT, CHRISTOPHER M | | | $6,000.00 | 25059 | 92024972 |
| 8 | 01/01/1900 | OTHER | Other - Misc. Documents | SIROTKIN, LAURIE A | COOPER, HOWARD G | | | $0.00 | 82501 | 98013073 |
| 9 | 01/01/1900 | OTHER | Other - Misc. Documents | COOPER, HOWARD G | MILLER, GERARD J | | | $0.00 | 0 | 0 |
Payout Agreement
| No payout information available.. |