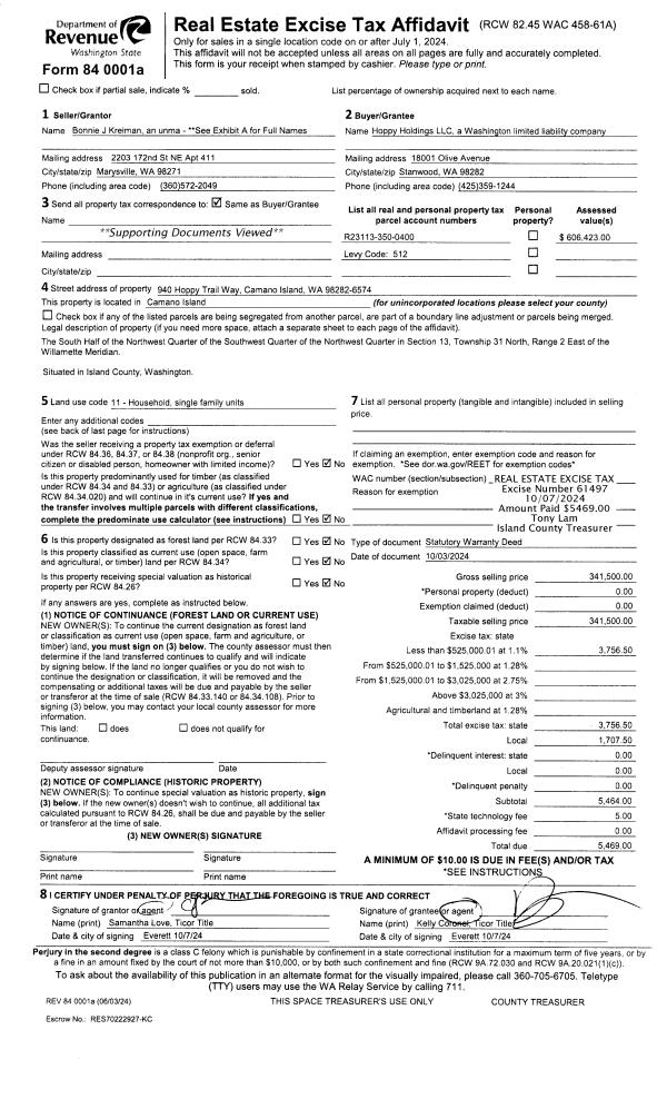
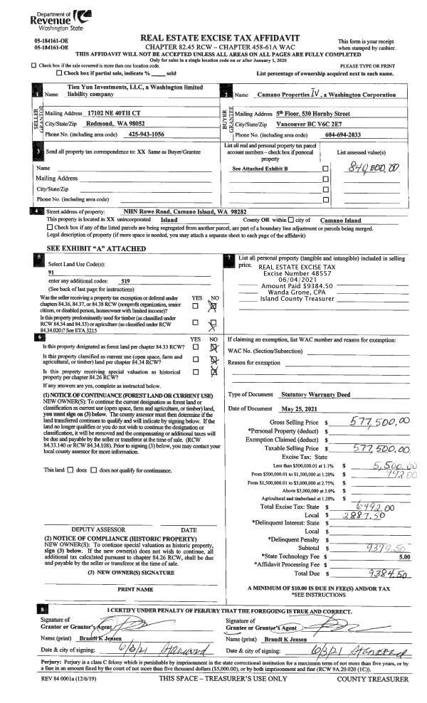
Property
Account |
| Property ID: | 410086 | Abbreviated Legal Description: | TER WEST 6 LOT 21 BLK 2 |
| Geographic ID: | S8305-06-02021-0 | Agent Code: | |
| Type: | Real | | |
| Tax Area: | 310 - APPRAISER-Cpvl Schl Dist, outside Cpvl, improved & 1 acre or less | Land Use Code | 11 |
| Open Space: | N | DFL | N |
| Historic Property: | N | Remodel Property: | N |
| Multi-Family Redevelopment: | N | | |
| Township: | | Section: | |
| Range: | |
Location |
| Address: | 422 MITCHELL DR COUPEVILLE, WA 98239 | Mapsco: | |
| Neighborhood: | Cycle 2 | Map ID: | 526 |
| Neighborhood CD: | 2 |
Owner |
| Name: | SMITH TTEE, WILBURN R | Owner ID: | 313050 |
| Mailing Address: | SANDRA S SMITH TTEE 17410 102ND AVE NE BOTHELL, WA 98011 | % Ownership: | 100.0000000000% |
| | | Exemptions: | |
Taxes and Assessment Details
Values
| (+) Improvement Homesite Value: | + | $0 | |
| (+) Improvement Non-Homesite Value: | + | $646,935 | |
| (+) Land Homesite Value: | + | $0 | |
| (+) Land Non-Homesite Value: | + | $210,000 | |
| (+) Curr Use (HS): | + | $0 | $0 |
| (+) Curr Use (NHS): | + | $0 | $0 |
| | | -------------------------- | |
| (=) Market Value: | = | $856,935 | |
| (–) Productivity Loss: | – | $0 | |
| | | -------------------------- | |
| (=) Subtotal: | = | $856,935 | |
| (+) Senior Appraised Value: | + | $0 | |
| (+) Non-Senior Appraised Value: | + | $856,935 | |
| | | -------------------------- | |
| (=) Total Appraised Value: | = | $856,935 | |
| (–) Senior Exemption Loss: | – | $0 | |
| (–) Exemption Loss: | – | $0 | |
| | | -------------------------- | |
| (=) Taxable Value: | = | $856,935 | |
Taxing Jurisdiction
| Owner: | SMITH TTEE, WILBURN R | | |
| % Ownership: | 100.0000000000% | | |
| Total Value: | $856,935 | | |
| Tax Area: | 310 - APPRAISER-Cpvl Schl Dist, outside Cpvl, improved & 1 acre or less |
| CF | Conservation Futures | 0.0316035091 | $856,935 | $856,935 | $27.08 | | |
| CEM2 | Cemetery #2 | 0.0095056933 | $856,935 | $856,935 | $8.15 | | |
| FIRE5 | Fire & Rescue Dist #5 C Whidbey GEN | 1.2008080668 | $856,935 | $856,935 | $1,029.01 | | |
| FIRE5BOND | Fire & Rescue Dist #5 C Whidbey BOND | 0.1400090713 | $856,935 | $856,935 | $119.98 | | |
| HOBOND | Hospital BOND | 0.1910887512 | $856,935 | $856,935 | $163.75 | | |
| HOGEN | Hospital GEN | 0.3902502903 | $856,935 | $856,935 | $334.42 | | |
| CE | County Current Expense | 0.3708482477 | $856,935 | $856,935 | $317.79 | | |
| CR | County Roads | 0.4584763726 | $856,935 | $856,935 | $392.88 | | |
| ISLANDEMS | Hospital GEN (EMS) | 0.5000000000 | $856,935 | $856,935 | $428.47 | | |
| LIB | Library Sno-Isle GEN | 0.3153421757 | $856,935 | $856,935 | $270.23 | | |
| LIBCAP | Library Sno-Isle BOND (Cap Fac Imp Area) | 0.0543427938 | $856,935 | $856,935 | $46.57 | | |
| POCOUP | Port of Coupeville GEN | 0.1093371703 | $856,935 | $856,935 | $93.69 | | |
| POCOUPIDD | Port of Coupeville IDD | 0.3409740022 | $856,935 | $856,935 | $292.19 | | |
| COUPSDTECH | School 204 CP (TECH) | 0.7545480007 | $856,935 | $856,935 | $646.60 | | |
| SCH204MO | School 204 Enrichment | 0.6716186034 | $856,935 | $856,935 | $575.53 | | |
| ST | State School | 1.3035497053 | $856,935 | $856,935 | $1,117.06 | | |
| ST2 | State School Part 2 | 0.8169543533 | $856,935 | $856,935 | $700.08 | | |
| | Total Tax Rate: | 7.6592568070 | | | | | |
| | | | | Taxes w/Current Exemptions: | $6,563.48 | | |
| | | | | Taxes w/o Exemptions: | $6,563.48 | | |
Improvement / Building
| Improvement #1: | RESIDENTIAL | State Code: | Y | 2500.0 sqft | Value: | $646,935 |
| Bathrooms: | 2.5 | Bedrooms: | 2 | | Ceiling: | DRYWALL PAINTED | Cooling: | HEAT PUMP/CONV/V | | Exterior Wall/Cover: | CEMENT FIBER | Floor Covering: | HARDWOOD 100% | | Floor Structure: | WOOD W/SUBFLOOR | Foundation: | CONCRETE | | Interior Finish: | DRYWALL PAINT | Plumbing Fixture Cnt: | 14 | | Roof Slope: | 3" IN 12" | Roof Structure/Cover: | CJ ALUMINIUM HEAVY |
|
| | Type | Description | Class CD | Sub Class CD | Year Built | Area |
| | BAS | BASE/MAIN FLOOR | 4 | 0 | 2014 | 1668.0 |
| | AGR | ATTACHED GARAGE | 4 | 0 | 2014 | 503.0 |
| | UPS | UPPER STORY | 4 | 0 | 2014 | 832.0 |
| | UB8 | BASEMENT UNFINISHED 8" | 4 | 0 | 2014 | 832.0 |
| | OP1 | OPEN PORCH SLAB | 4 | 0 | 2014 | 320.0 |
| | OP1 | OPEN PORCH SLAB | 4 | 0 | 2014 | 153.0 |
| | OP4 | OPEN PORCH W/CEILING-ROOF | 4 | 0 | 2014 | 91.0 |
Sketch
Property Image
Land
| 1 | 13 | SQ (06001-08000) | 0.1653 | 7200.47 | 0.00 | 0.00 | 1.00 | $210,000 | $0 |
Roll Value History
| 2026 | N/A | N/A | N/A | N/A | N/A |
| 2025 | $646,935 | $210,000 | $0 | $856,935 | $856,935 |
| 2024 | $636,767 | $190,000 | $0 | $826,767 | $826,767 |
| 2023 | $641,677 | $180,000 | $0 | $821,677 | $821,677 |
| 2022 | $585,794 | $170,000 | $0 | $755,794 | $755,794 |
| 2021 | $513,534 | $140,000 | $0 | $653,534 | $653,534 |
| 2020 | $462,029 | $110,000 | $0 | $572,029 | $572,029 |
| 2019 | $351,823 | $140,000 | $0 | $491,823 | $491,823 |
| 2018 | $352,747 | $135,000 | $0 | $487,747 | $487,747 |
| 2017 | $342,817 | $100,000 | $0 | $442,817 | $442,817 |
| 2016 | $346,390 | $65,000 | $0 | $411,390 | $411,390 |
| 2015 | $349,962 | $50,000 | $0 | $399,962 | $399,962 |
| 2014 | $124,665 | $30,000 | $0 | $154,665 | $154,665 |
| 2013 | $0 | $30,000 | $0 | $30,000 | $30,000 |
| 2012 | $0 | $30,000 | $0 | $30,000 | $30,000 |
| 2011 | $0 | $30,000 | $0 | $30,000 | $30,000 |
| 2010 | $0 | $30,000 | $0 | $30,000 | $30,000 |
| 2009 | $0 | $45,000 | $0 | $45,000 | $45,000 |
| 2008 | $0 | $45,100 | $0 | $45,100 | $45,100 |
| 2007 | $0 | $41,250 | $0 | $41,250 | $41,250 |
Deed and Sales History
| 1 | 06/26/2024 | WD | Warranty Deed | SMITH II TTEE, WILBURN R | SMITH TTEE, WILBURN R | | | $0.00 | 60565 | 4574311 |
| 2 | 06/26/2024 | WD | Warranty Deed | SMITH II, WILBUR R | SMITH II TTEE, WILBURN R | | | $0.00 | 60564 | 4574310 |
| 3 | 11/24/2020 | QCD | Quit Claim Deed | SMITH II, WILBUR R | SMITH II, WILBUR R | | | $0.00 | 45888 | 4503469 |
| 4 | 11/24/2020 | WD | Warranty Deed | MELE, ROBERT J | SMITH II, WILBUR R | | | $387,000.00 | 45881 | 4503468 |
| 5 | 11/24/2020 | QCD | Quit Claim Deed | MELE, ROBERT J | MELE, ROBERT J | | | $0.00 | 45880 | 4503467 |
| 6 | 08/21/2012 | BARGSLD | Bargain And Sale Deed | BENNETT, RANDAL | MELE, ROBERT J | | | $30,000.00 | 8633 | 4321731 |
| 7 | 09/01/1992 | WD | Warranty Deed | MILLER, GERARD J | BENNETT, RANDAL | | | $5,500.00 | 23595 | 92017374 |
| 8 | 09/01/1992 | QCD | Quit Claim Deed | BENNETT, RANDAL | MILLER, STANFORD | | | $0.00 | 23594 | 92017373 |
| 9 | 01/01/1900 | OTHER | Other - Misc. Documents | Unknown | MILLER, GERARD J | | | $0.00 | 0 | 0 |
Payout Agreement
| No payout information available.. |