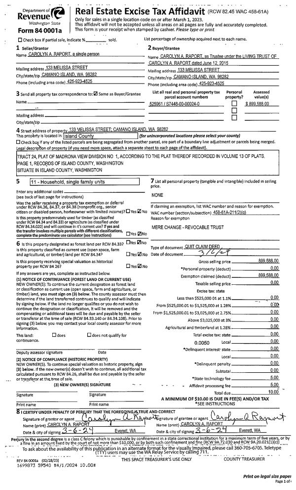
Property
Account |
| Property ID: | 410424 | Abbreviated Legal Description: | TERP ADD LOT 4 BLK 1 |
| Geographic ID: | S8310-00-01004-0 | Agent Code: | |
| Type: | Real | | |
| Tax Area: | 100 - APPRAISER-OH Schl Dist, in OH | Land Use Code | 11 |
| Open Space: | N | DFL | N |
| Historic Property: | N | Remodel Property: | N |
| Multi-Family Redevelopment: | N | | |
| Township: | | Section: | |
| Range: | |
Location |
| Address: | 1550 E WHIDBEY AVE OAK HARBOR, WA 98277 | Mapsco: | |
| Neighborhood: | Cycle 1 | Map ID: | 257 |
| Neighborhood CD: | 1 |
Owner |
| Name: | RIVENESS, CHERYL A | Owner ID: | 309699 |
| Mailing Address: | 1550 E WHIDBEY AVE OAK HARBOR, WA 98277 | % Ownership: | 100.0000000000% |
| | | Exemptions: | |
Taxes and Assessment Details
Values
| (+) Improvement Homesite Value: | + | $0 | |
| (+) Improvement Non-Homesite Value: | + | $230,617 | |
| (+) Land Homesite Value: | + | $0 | |
| (+) Land Non-Homesite Value: | + | $180,000 | |
| (+) Curr Use (HS): | + | $0 | $0 |
| (+) Curr Use (NHS): | + | $0 | $0 |
| | | -------------------------- | |
| (=) Market Value: | = | $410,617 | |
| (–) Productivity Loss: | – | $0 | |
| | | -------------------------- | |
| (=) Subtotal: | = | $410,617 | |
| (+) Senior Appraised Value: | + | $0 | |
| (+) Non-Senior Appraised Value: | + | $410,617 | |
| | | -------------------------- | |
| (=) Total Appraised Value: | = | $410,617 | |
| (–) Senior Exemption Loss: | – | $0 | |
| (–) Exemption Loss: | – | $0 | |
| | | -------------------------- | |
| (=) Taxable Value: | = | $410,617 | |
Taxing Jurisdiction
| Owner: | RIVENESS, CHERYL A | | |
| % Ownership: | 100.0000000000% | | |
| Total Value: | $410,617 | | |
| Tax Area: | 100 - APPRAISER-OH Schl Dist, in OH |
| CF | Conservation Futures | 0.0316035091 | $410,617 | $410,617 | $12.98 | | |
| CEM1 | Cemetery #1 | 0.0040320932 | $410,617 | $410,617 | $1.66 | | |
| COH | City of Oak Harbor | 2.3001546061 | $410,617 | $410,617 | $944.48 | | |
| OAKBOND | City of Oak Harbor BOND | 0.1926904192 | $410,617 | $410,617 | $79.12 | | |
| HOBOND | Hospital BOND | 0.1910887512 | $410,617 | $410,617 | $78.46 | | |
| HOGEN | Hospital GEN | 0.3902502903 | $410,617 | $410,617 | $160.24 | | |
| CE | County Current Expense | 0.3708482477 | $410,617 | $410,617 | $152.28 | | |
| ISLANDEMS | Hospital GEN (EMS) | 0.5000000000 | $410,617 | $410,617 | $205.31 | | |
| LIB | Library Sno-Isle GEN | 0.3153421757 | $410,617 | $410,617 | $129.48 | | |
| NWHIDPRMT | P & R N Whidbey GEN | 0.2004466701 | $410,617 | $410,617 | $82.31 | | |
| SCH201MO | School 201 Enrichment | 1.8559231640 | $410,617 | $410,617 | $762.07 | | |
| ST | State School | 1.3035497053 | $410,617 | $410,617 | $535.26 | | |
| ST2 | State School Part 2 | 0.8169543533 | $410,617 | $410,617 | $335.46 | | |
| | Total Tax Rate: | 8.4728839852 | | | | | |
| | | | | Taxes w/Current Exemptions: | $3,479.11 | | |
| | | | | Taxes w/o Exemptions: | $3,479.11 | | |
Improvement / Building
| Improvement #1: | RESIDENTIAL | State Code: | Y | 1480.0 sqft | Value: | $230,617 |
| Bathrooms: | 1 | Bedrooms: | 3 | | Ceiling: | DRYWALL PAINTED | Exterior Wall/Cover: | WOOD SIDING | | Floor Covering: | HARDWOOD 100% | Floor Structure: | WOOD W/SUBFLOOR | | Foundation: | CONCRETE BLOCKS | Heating: | FHA ELECTRIC | | Interior Finish: | DRYWALL PAINT | Plumbing Fixture Cnt: | 6 | | Roof Slope: | 4" IN 12" | Roof Structure/Cover: | CJ ASPHALT |
|
| | Type | Description | Class CD | Sub Class CD | Year Built | Area |
| | BAS | BASE/MAIN FLOOR | 3 | 0 | 1957 | 1480.0 |
| | OP4 | OPEN PORCH W/CEILING-ROOF | 3 | 0 | 1957 | 36.0 |
| | AGR | ATTACHED GARAGE | 3 | 0 | 1957 | 312.0 |
| | UTY | STORAGE/UTILITY | 3 | 0 | 1957 | 26.0 |
Sketch
Property Image
Land
| 1 | 13 | SQ (06001-08000) | 0.0000 | 0.00 | 0.00 | 0.00 | 1.00 | $180,000 | $0 |
Roll Value History
| 2026 | N/A | N/A | N/A | N/A | N/A |
| 2025 | $230,617 | $180,000 | $0 | $410,617 | $410,617 |
| 2024 | $233,766 | $170,000 | $0 | $403,766 | $403,766 |
| 2023 | $217,640 | $170,000 | $0 | $387,640 | $387,640 |
| 2022 | $199,919 | $160,000 | $0 | $359,919 | $359,919 |
| 2021 | $176,312 | $120,000 | $0 | $296,312 | $296,312 |
| 2020 | $172,616 | $100,000 | $0 | $272,616 | $272,616 |
| 2019 | $127,989 | $140,000 | $0 | $267,989 | $267,989 |
| 2018 | $128,425 | $125,000 | $0 | $253,425 | $253,425 |
| 2017 | $88,961 | $110,000 | $0 | $198,961 | $198,961 |
| 2016 | $90,521 | $90,000 | $0 | $180,521 | $180,521 |
| 2015 | $92,083 | $70,000 | $0 | $162,083 | $162,083 |
| 2014 | $93,643 | $55,000 | $0 | $148,643 | $148,643 |
| 2013 | $95,204 | $55,000 | $0 | $150,204 | $150,204 |
| 2012 | $96,765 | $60,000 | $0 | $156,765 | $156,765 |
| 2011 | $78,075 | $100,000 | $0 | $178,075 | $178,075 |
| 2010 | $89,284 | $100,000 | $0 | $189,284 | $189,284 |
| 2009 | $93,534 | $115,000 | $0 | $208,534 | $208,534 |
| 2008 | $95,106 | $115,000 | $0 | $210,106 | $210,106 |
| 2007 | $96,677 | $94,250 | $0 | $190,927 | $190,927 |
Deed and Sales History
| 1 | 08/10/2023 | QCD | Quit Claim Deed | RIVENESS, PAUL D | RIVENESS, CHERYL A | | | $0.00 | 57654 | 4563618 |
| 2 | 12/19/2000 | ESTSEPPROP | Establish Separate Property | JAEGER, CHERYL A | JAEGER, CHERYL ANN | | | $0.00 | 4841 | 20022427 |
| 3 | 10/01/1994 | WD | Warranty Deed | BUSHONG, JAMES P | JAEGER, CHERYL A | | | $92,400.00 | 44413 | 94022736 |
| 4 | 05/01/1988 | WD | Warranty Deed | MONTGOMERY, TERESA A | BUSHONG, JAMES P | | | $65,500.00 | 81651 | 88006215 |
| 5 | 03/01/1986 | DECREE | Divorce Decree/Legal Separation | MONTGOMERY, DAVID A | MONTGOMERY, TERESA A | | | $0.00 | 61511 | 0 |
| 6 | 01/01/1900 | OTHER | Other - Misc. Documents | Unknown | MONTGOMERY, DAVID A | | | $0.00 | 0 | 0 |
Payout Agreement
| No payout information available.. |