Property
Account |
| Property ID: | 410781 | Abbreviated Legal Description: | THUNDER RIDGE 1 LOT 19 TOM HENDRICKSON, KAREN CLARKE, DONALD K/VIOLA HALL JIMMY W/LORETTA K ELINE & RAGNHILD HARRINGTON |
| Geographic ID: | S8315-00-00019-0 | Agent Code: | |
| Type: | Real | | |
| Tax Area: | 510 - APPRAISER-Stan/Cam Schl Dist, improved & 1 acre or less | Land Use Code | 11 |
| Open Space: | N | DFL | N |
| Historic Property: | N | Remodel Property: | N |
| Multi-Family Redevelopment: | N | | |
| Township: | | Section: | |
| Range: | |
Location |
| Address: | 1034 SHAMROCK LN CAMANO ISLAND, WA 98282 | Mapsco: | |
| Neighborhood: | Cycle 5 | Map ID: | 927 |
| Neighborhood CD: | 5 |
Owner |
| Name: | NOBLES TTEE, MARK THOMAS | Owner ID: | 291413 |
| Mailing Address: | LILLIAN MARIE KING NOBLES, TTEE 103 SHAMROCK LN CAMANO ISLAND, WA 98282 | % Ownership: | 100.0000000000% |
| | | Exemptions: | |
Taxes and Assessment Details
Values
| (+) Improvement Homesite Value: | + | $0 | |
| (+) Improvement Non-Homesite Value: | + | $264,378 | |
| (+) Land Homesite Value: | + | $0 | |
| (+) Land Non-Homesite Value: | + | $250,000 | |
| (+) Curr Use (HS): | + | $0 | $0 |
| (+) Curr Use (NHS): | + | $0 | $0 |
| | | -------------------------- | |
| (=) Market Value: | = | $514,378 | |
| (–) Productivity Loss: | – | $0 | |
| | | -------------------------- | |
| (=) Subtotal: | = | $514,378 | |
| (+) Senior Appraised Value: | + | $0 | |
| (+) Non-Senior Appraised Value: | + | $514,378 | |
| | | -------------------------- | |
| (=) Total Appraised Value: | = | $514,378 | |
| (–) Senior Exemption Loss: | – | $0 | |
| (–) Exemption Loss: | – | $0 | |
| | | -------------------------- | |
| (=) Taxable Value: | = | $514,378 | |
Taxing Jurisdiction
| Owner: | NOBLES TTEE, MARK THOMAS | | |
| % Ownership: | 100.0000000000% | | |
| Total Value: | $514,378 | | |
| Tax Area: | 510 - APPRAISER-Stan/Cam Schl Dist, improved & 1 acre or less |
| CF | Conservation Futures | 0.0316035091 | $514,378 | $514,378 | $16.26 | | |
| EMS1 | Fire & Rescue Dist #1 Camano GEN (EMS) | 0.3677864386 | $514,378 | $514,378 | $189.18 | | |
| FIRE1 | Fire & Rescue Dist #1 Camano GEN | 1.2502910536 | $514,378 | $514,378 | $643.12 | | |
| FIRE1BOND | Fire & Rescue Dist #1 Camano BOND | 0.1570001679 | $514,378 | $514,378 | $80.76 | | |
| CE | County Current Expense | 0.3708482477 | $514,378 | $514,378 | $190.76 | | |
| CR | County Roads | 0.4584763726 | $514,378 | $514,378 | $235.83 | | |
| LCIB | Library Sno-Isle BOND (Camano Island) | 0.0396325772 | $514,378 | $514,378 | $20.39 | | |
| LIB | Library Sno-Isle GEN | 0.3153421757 | $514,378 | $514,378 | $162.21 | | |
| SCH205_401 | School 205-401 Enrichment | 1.2698420524 | $514,378 | $514,378 | $653.18 | | |
| SCH205BOND | School 205-401 BOND | 0.9396497583 | $514,378 | $514,378 | $483.34 | | |
| ST | State School | 1.3035497053 | $514,378 | $514,378 | $670.52 | | |
| ST2 | State School Part 2 | 0.8169543533 | $514,378 | $514,378 | $420.22 | | |
| | Total Tax Rate: | 7.3209764117 | | | | | |
| | | | | Taxes w/Current Exemptions: | $3,765.77 | | |
| | | | | Taxes w/o Exemptions: | $3,765.77 | | |
Improvement / Building
| Improvement #1: | RESIDENTIAL | State Code: | Y | 1411.0 sqft | Value: | $264,378 |
| Bathrooms: | 2 | Bedrooms: | 3 | | Ceiling: | DRYWALL PAINTED | Exterior Wall/Cover: | CEMENT FIBER | | Floor Covering: | CARPET/VINYL 80-20 | Floor Structure: | WOOD W/SUBFLOOR | | Foundation: | CONCRETE | Heating: | FHA ELECTRIC | | Interior Finish: | DRYWALL PAINT | Plumbing Fixture Cnt: | 10 | | Roof Slope: | 4" IN 12" | Roof Structure/Cover: | CJ ASPHALT |
|
| | Type | Description | Class CD | Sub Class CD | Year Built | Area |
| | BAS | BASE/MAIN FLOOR | 3 | 0 | 2002 | 1411.0 |
| | AGR | ATTACHED GARAGE | 3 | 0 | 2002 | 394.0 |
| | OWC | OPEN WOOD PORCH W/STEPS/ROOF/C | 3 | 0 | 2002 | 86.0 |
Sketch
Property Image
Land
| 1 | 14 | SQ (08001-12000) | 0.0000 | 0.00 | 0.00 | 0.00 | 1.00 | $250,000 | $0 |
Roll Value History
| 2026 | N/A | N/A | N/A | N/A | N/A |
| 2025 | $264,378 | $250,000 | $0 | $514,378 | $514,378 |
| 2024 | $267,479 | $250,000 | $0 | $517,479 | $517,479 |
| 2023 | $270,580 | $250,000 | $0 | $520,580 | $520,580 |
| 2022 | $247,821 | $220,000 | $0 | $467,821 | $467,821 |
| 2021 | $207,091 | $140,000 | $0 | $347,091 | $347,091 |
| 2020 | $201,447 | $125,000 | $0 | $326,447 | $326,447 |
| 2019 | $144,671 | $190,000 | $0 | $334,671 | $334,671 |
| 2018 | $145,091 | $145,000 | $0 | $290,091 | $290,091 |
| 2017 | $145,928 | $120,000 | $0 | $265,928 | $265,928 |
| 2016 | $147,607 | $80,000 | $0 | $227,607 | $227,607 |
| 2015 | $141,565 | $45,000 | $0 | $186,565 | $186,565 |
| 2014 | $143,211 | $45,000 | $0 | $188,211 | $188,211 |
| 2013 | $144,856 | $45,000 | $0 | $189,856 | $189,856 |
| 2012 | $146,502 | $56,000 | $0 | $202,502 | $202,502 |
| 2011 | $148,149 | $56,000 | $0 | $204,149 | $204,149 |
| 2010 | $156,852 | $56,000 | $0 | $212,852 | $212,852 |
| 2009 | $156,327 | $95,000 | $0 | $251,327 | $251,327 |
| 2008 | $158,097 | $105,000 | $0 | $263,097 | $263,097 |
| 2007 | $161,499 | $105,000 | $0 | $266,499 | $266,499 |
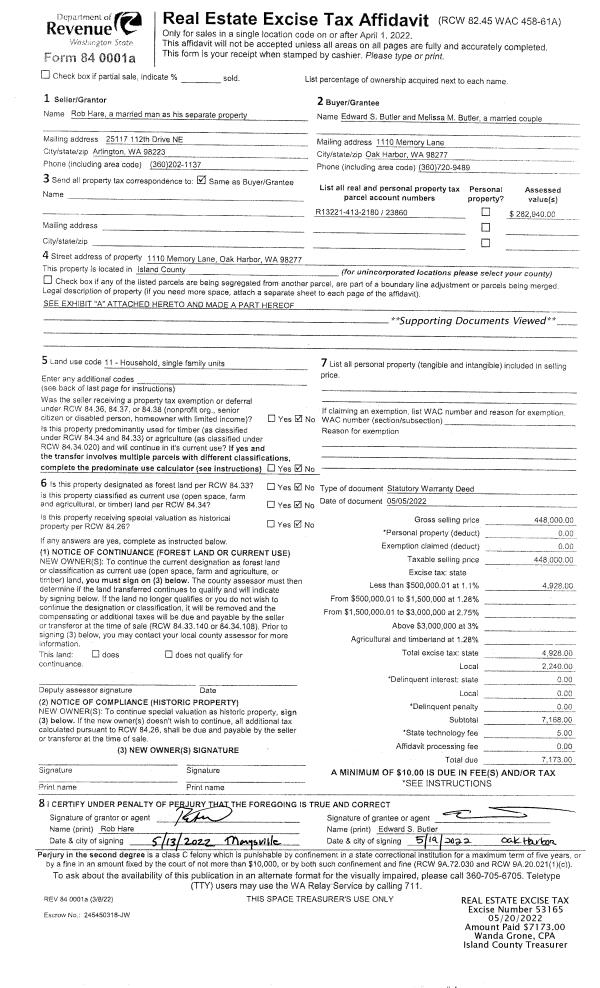
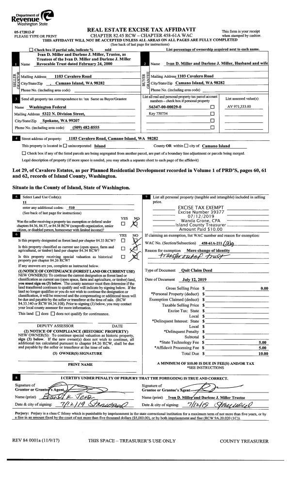
Deed and Sales History
| 1 | 08/14/2019 | QCD | Quit Claim Deed | NOBLES, MARK T | NOBLES TTEE, MARK THOMAS | | | $0.00 | 39929 | 4469730 |
| 2 | 09/24/2002 | WD | Warranty Deed | JERRY & JOHN CONSTRUCTION, | NOBLES, MARK T | | | $163,000.00 | 23860 | 4032563 |
| 3 | 02/22/2002 | WD | Warranty Deed | GROUP, 7+ | JERRY & JOHN CONSTRUCTION, | | | $12,500.00 | 20756 | 4012643 |
| 4 | 12/01/1997 | ESTSEPPROP | Establish Separate Property | ALVANICK, ROSE E | GROUP, 7+ | | | $0.00 | 743539 | 97021614 |
| 5 | 05/01/1990 | WD | Warranty Deed | GROUP, 7+ | GROUP, 7+ | | | $2,300.00 | 3019 | 90009901 |
| 6 | 01/01/1900 | OTHER | Other - Misc. Documents | Unknown | ALVANICK, ROSE E | | | $0.00 | 0 | 0 |
Payout Agreement
| No payout information available.. |