Property
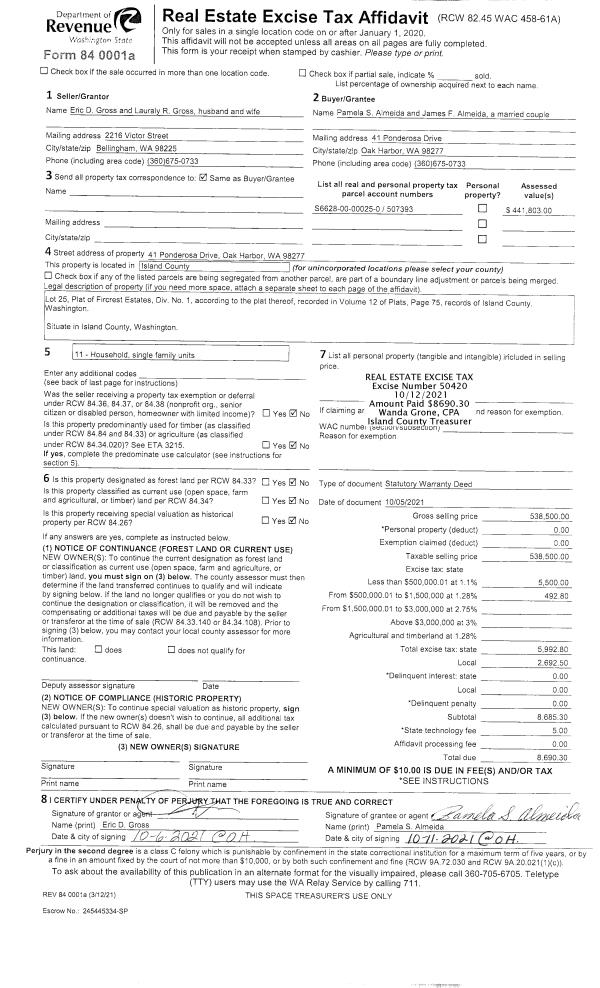
Account |
| Property ID: | 410807 | Abbreviated Legal Description: | THUNDER RIDGE 1 LOT 21 |
| Geographic ID: | S8315-00-00021-0 | Agent Code: | |
| Type: | Real | | |
| Tax Area: | 510 - APPRAISER-Stan/Cam Schl Dist, improved & 1 acre or less | Land Use Code | 11 |
| Open Space: | N | DFL | N |
| Historic Property: | N | Remodel Property: | N |
| Multi-Family Redevelopment: | N | | |
| Township: | | Section: | |
| Range: | |
Location |
| Address: | 1033 FISHER KING WAY CAMANO ISLAND, WA 98282 | Mapsco: | |
| Neighborhood: | Cycle 5 | Map ID: | 927 |
| Neighborhood CD: | 5 |
Owner |
| Name: | SMITH, ZACHARY O | Owner ID: | 299072 |
| Mailing Address: | NATHAN L KLOKE PO BOX 128 STANWOOD, WA 98292 | % Ownership: | 100.0000000000% |
| | | Exemptions: | |
Taxes and Assessment Details
Values
| (+) Improvement Homesite Value: | + | $0 | |
| (+) Improvement Non-Homesite Value: | + | $259,621 | |
| (+) Land Homesite Value: | + | $0 | |
| (+) Land Non-Homesite Value: | + | $250,000 | |
| (+) Curr Use (HS): | + | $0 | $0 |
| (+) Curr Use (NHS): | + | $0 | $0 |
| | | -------------------------- | |
| (=) Market Value: | = | $509,621 | |
| (–) Productivity Loss: | – | $0 | |
| | | -------------------------- | |
| (=) Subtotal: | = | $509,621 | |
| (+) Senior Appraised Value: | + | $0 | |
| (+) Non-Senior Appraised Value: | + | $509,621 | |
| | | -------------------------- | |
| (=) Total Appraised Value: | = | $509,621 | |
| (–) Senior Exemption Loss: | – | $0 | |
| (–) Exemption Loss: | – | $0 | |
| | | -------------------------- | |
| (=) Taxable Value: | = | $509,621 | |
Taxing Jurisdiction
| Owner: | SMITH, ZACHARY O | | |
| % Ownership: | 100.0000000000% | | |
| Total Value: | $509,621 | | |
| Tax Area: | 510 - APPRAISER-Stan/Cam Schl Dist, improved & 1 acre or less |
| CF | Conservation Futures | 0.0316035091 | $509,621 | $509,621 | $16.11 | | |
| EMS1 | Fire & Rescue Dist #1 Camano GEN (EMS) | 0.3677864386 | $509,621 | $509,621 | $187.43 | | |
| FIRE1 | Fire & Rescue Dist #1 Camano GEN | 1.2502910536 | $509,621 | $509,621 | $637.17 | | |
| FIRE1BOND | Fire & Rescue Dist #1 Camano BOND | 0.1570001679 | $509,621 | $509,621 | $80.01 | | |
| CE | County Current Expense | 0.3708482477 | $509,621 | $509,621 | $188.99 | | |
| CR | County Roads | 0.4584763726 | $509,621 | $509,621 | $233.65 | | |
| LCIB | Library Sno-Isle BOND (Camano Island) | 0.0396325772 | $509,621 | $509,621 | $20.20 | | |
| LIB | Library Sno-Isle GEN | 0.3153421757 | $509,621 | $509,621 | $160.70 | | |
| SCH205_401 | School 205-401 Enrichment | 1.2698420524 | $509,621 | $509,621 | $647.14 | | |
| SCH205BOND | School 205-401 BOND | 0.9396497583 | $509,621 | $509,621 | $478.87 | | |
| ST | State School | 1.3035497053 | $509,621 | $509,621 | $664.32 | | |
| ST2 | State School Part 2 | 0.8169543533 | $509,621 | $509,621 | $416.34 | | |
| | Total Tax Rate: | 7.3209764117 | | | | | |
| | | | | Taxes w/Current Exemptions: | $3,730.93 | | |
| | | | | Taxes w/o Exemptions: | $3,730.93 | | |
Improvement / Building
| Improvement #1: | RESIDENTIAL | State Code: | Y | 1344.0 sqft | Value: | $259,621 |
| Bathrooms: | 2 | Bedrooms: | 3 | | Ceiling: | DRYWALL PAINTED | Exterior Wall/Cover: | CEMENT FIBER | | Floor Covering: | CARPET/VINYL 80-20 | Floor Structure: | WOOD W/SUBFLOOR | | Foundation: | CONCRETE | Heating: | FHA ELECTRIC | | Interior Finish: | DRYWALL PAINT | Plumbing Fixture Cnt: | 9 | | Roof Slope: | 4" IN 12" | Roof Structure/Cover: | CJ ASPHALT |
|
| | Type | Description | Class CD | Sub Class CD | Year Built | Area |
| | BAS | BASE/MAIN FLOOR | 3 | 0 | 2002 | 1344.0 |
| | AGR | ATTACHED GARAGE | 3 | 0 | 2002 | 470.0 |
| | OWP | OPEN WOOD PORCH W/STEPS | 3 | 0 | 2002 | 133.0 |
| | OWR | OPEN WOOD PORCH W/STEPS/ROOF | 3 | 0 | 2002 | 112.0 |
| | OWC | OPEN WOOD PORCH W/STEPS/ROOF/C | 3 | 0 | 2002 | 89.0 |
Sketch
Property Image
Land
| 1 | 14 | SQ (08001-12000) | 0.0000 | 0.00 | 0.00 | 0.00 | 1.00 | $250,000 | $0 |
Roll Value History
| 2026 | N/A | N/A | N/A | N/A | N/A |
| 2025 | $259,621 | $250,000 | $0 | $509,621 | $509,621 |
| 2024 | $262,667 | $250,000 | $0 | $512,667 | $512,667 |
| 2023 | $265,712 | $250,000 | $0 | $515,712 | $515,712 |
| 2022 | $243,371 | $220,000 | $0 | $463,371 | $463,371 |
| 2021 | $202,027 | $140,000 | $0 | $342,027 | $342,027 |
| 2020 | $196,620 | $125,000 | $0 | $321,620 | $321,620 |
| 2019 | $141,200 | $190,000 | $0 | $331,200 | $331,200 |
| 2018 | $141,610 | $145,000 | $0 | $286,610 | $286,610 |
| 2017 | $142,428 | $120,000 | $0 | $262,428 | $262,428 |
| 2016 | $144,066 | $80,000 | $0 | $224,066 | $224,066 |
| 2015 | $136,805 | $45,000 | $0 | $181,805 | $181,805 |
| 2014 | $138,395 | $45,000 | $0 | $183,395 | $183,395 |
| 2013 | $139,987 | $45,000 | $0 | $184,987 | $184,987 |
| 2012 | $141,578 | $56,000 | $0 | $197,578 | $197,578 |
| 2011 | $143,168 | $56,000 | $0 | $199,168 | $199,168 |
| 2010 | $149,922 | $56,000 | $0 | $205,922 | $205,922 |
| 2009 | $157,558 | $95,000 | $0 | $252,558 | $252,558 |
| 2008 | $159,337 | $105,000 | $0 | $264,337 | $264,337 |
| 2007 | $162,762 | $105,000 | $0 | $267,762 | $267,762 |
Deed and Sales History
| 1 | 04/23/2021 | QCD | Quit Claim Deed | SMITH, ZOE | SMITH, ZACHARY O | | | $0.00 | 47965 | 4517590 |
| 2 | 04/23/2021 | WD | Warranty Deed | VAGNER TRUSTEE, EVA | SMITH, ZACHARY O | | | $435,000.00 | 47964 | 4517590 |
| 3 | 01/16/2010 | WD | Warranty Deed | LANGE, BRETT S | VAGNER TRUSTEE OF THE, EVA | | | $215,000.00 | 149 | 4267349 |
| 4 | 06/18/2002 | WD | Warranty Deed | CONSTRUCTION INC, JERRY & JOHN | LANGE, BRETT S | | | $167,500.00 | 22358 | 4023420 |
| 5 | 02/23/2001 | WD | Warranty Deed | IRVIN, MICHAEL Z | CONSTRUCTION INC, JERRY & JOHN | | | $39,984.00 | 10596 | 20026122 |
| 6 | 04/24/1998 | ESTSEPPROP | Establish Separate Property | TR CAMANO INC, | TR CAMANO INC, | | | $0.00 | 91397 | 99009254 |
| 7 | 04/24/1998 | QCD | Quit Claim Deed | TR, CAMANO I | TR CAMANO INC, | | | $3,162.00 | 81503 | 98008222 |
| 8 | 03/01/1998 | ESTSEPPROP | Establish Separate Property | IRVIN, PHILIP C | TR, CAMANO I | | | $0.00 | 80787 | 98004453 |
| 9 | 04/01/1988 | QCD | Quit Claim Deed | Unknown | IRVIN, PHILIP C | | | $0.00 | 81226 | 88004607 |
| 10 | 12/01/1980 | SHERIFFD | Sheriff Deed | IRVIN, MICHAEL Z | IRVIN, MICHAEL Z | | | $27,398.00 | 59016 | 377907 |
| 11 | 12/01/1980 | SHERIFFD | Sheriff Deed | D, & B | IRVIN, MICHAEL Z | | | $27,398.00 | 59016 | 377907 |
| 12 | 01/01/1900 | OTHER | Other - Misc. Documents | TR CAMANO INC, | D, & B | | | $0.00 | 0 | 0 |
Payout Agreement
| No payout information available.. |