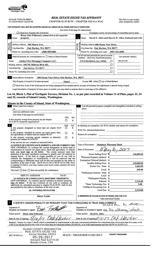
Property
Account |
| Property ID: | 410861 | Abbreviated Legal Description: | THUNDER RIDGE 1 LOT 27 |
| Geographic ID: | S8315-00-00027-0 | Agent Code: | |
| Type: | Real | | |
| Tax Area: | 510 - APPRAISER-Stan/Cam Schl Dist, improved & 1 acre or less | Land Use Code | 11 |
| Open Space: | N | DFL | N |
| Historic Property: | N | Remodel Property: | N |
| Multi-Family Redevelopment: | N | | |
| Township: | | Section: | |
| Range: | |
Location |
| Address: | 1002 FISHER KING WAY CAMANO ISLAND, WA 98282 | Mapsco: | |
| Neighborhood: | Cycle 5 | Map ID: | 478 |
| Neighborhood CD: | 5 |
Owner |
| Name: | PLOEGER, JOHN | Owner ID: | 283494 |
| Mailing Address: | SUSIE PLOEGER 1002 FISHER KING WAY CAMANO ISLAND, WA 98282 | % Ownership: | 100.0000000000% |
| | | Exemptions: | SNR/DSBL |
Taxes and Assessment Details
Values
| (+) Improvement Homesite Value: | + | $476,064 | |
| (+) Improvement Non-Homesite Value: | + | $0 | |
| (+) Land Homesite Value: | + | $250,000 | |
| (+) Land Non-Homesite Value: | + | $0 | |
| (+) Curr Use (HS): | + | $0 | $0 |
| (+) Curr Use (NHS): | + | $0 | $0 |
| | | -------------------------- | |
| (=) Market Value: | = | $726,064 | |
| (–) Productivity Loss: | – | $0 | |
| | | -------------------------- | |
| (=) Subtotal: | = | $726,064 | |
| (+) Senior Appraised Value: | + | $434,064 | |
| (+) Non-Senior Appraised Value: | + | $0 | |
| | | -------------------------- | |
| (=) Total Appraised Value: | = | $434,064 | |
| (–) Senior Exemption Loss: | – | $70,000 | |
| (–) Exemption Loss: | – | $0 | |
| | | -------------------------- | |
| (=) Taxable Value: | = | $364,064 | |
Taxing Jurisdiction
| Owner: | PLOEGER, JOHN | | |
| % Ownership: | 100.0000000000% | | |
| Total Value: | $726,064 | | |
| Tax Area: | 510 - APPRAISER-Stan/Cam Schl Dist, improved & 1 acre or less |
| CF | Conservation Futures | 0.0316035091 | $726,064 | $364,064 | $11.51 | | |
| EMS1 | Fire & Rescue Dist #1 Camano GEN (EMS) | 0.3677864386 | $726,064 | $364,064 | $133.90 | | |
| FIRE1 | Fire & Rescue Dist #1 Camano GEN | 1.2502910536 | $726,064 | $364,064 | $455.19 | | |
| FIRE1BOND | Fire & Rescue Dist #1 Camano BOND | 0.0000000000 | $726,064 | $0 | $0.00 | | |
| CE | County Current Expense | 0.3708482477 | $726,064 | $364,064 | $135.01 | | |
| CR | County Roads | 0.4584763726 | $726,064 | $364,064 | $166.91 | | |
| LCIB | Library Sno-Isle BOND (Camano Island) | 0.0000000000 | $726,064 | $0 | $0.00 | | |
| LIB | Library Sno-Isle GEN | 0.3153421757 | $726,064 | $364,064 | $114.80 | | |
| SCH205_401 | School 205-401 Enrichment | 0.0000000000 | $726,064 | $0 | $0.00 | | |
| SCH205BOND | School 205-401 BOND | 0.0000000000 | $726,064 | $0 | $0.00 | | |
| ST | State School | 1.3035497053 | $726,064 | $364,064 | $474.58 | | |
| ST2 | State School Part 2 | 0.0000000000 | $726,064 | $0 | $0.00 | | |
| | Total Tax Rate: | 4.0978975026 | | | | | |
| | | | | Taxes w/Current Exemptions: | $1,491.90 | | |
| | | | | Taxes w/o Exemptions: | $5,315.51 | | |
Improvement / Building
| Improvement #1: | RESIDENTIAL | State Code: | Y | 2156.0 sqft | Value: | $476,064 |
| Bathrooms: | 2 | Bedrooms: | 3 | | Ceiling: | DRYWALL PAINTED | Exterior Wall/Cover: | CEMENT FIBER | | Floor Covering: | HARDWOOD/CARP 60-40 | Floor Structure: | WOOD W/SUBFLOOR | | Foundation: | CONCRETE | Heating: | FHA GAS | | Interior Finish: | DRYWALL PAINT | Plumbing Fixture Cnt: | 10 | | Roof Slope: | 5" IN 12" | Roof Structure/Cover: | CJ ASPHALT |
|
| | Type | Description | Class CD | Sub Class CD | Year Built | Area |
| | BAS | BASE/MAIN FLOOR | 4 | 0 | 2017 | 2156.0 |
| | AGR | ATTACHED GARAGE | 4 | 0 | 2017 | 400.0 |
| | OWC | OPEN WOOD PORCH W/STEPS/ROOF/C | 4 | 0 | 2017 | 45.0 |
| | OWC | OPEN WOOD PORCH W/STEPS/ROOF/C | 4 | 0 | 2017 | 174.0 |
Sketch
Property Image
Land
| 1 | 15 | SQ (12001-21780) | 0.0000 | 0.00 | 0.00 | 0.00 | 1.00 | $250,000 | $0 |
Roll Value History
| 2026 | N/A | N/A | N/A | N/A | N/A |
| 2025 | $476,064 | $250,000 | $0 | $726,064 | $364,064 |
| 2024 | $479,935 | $250,000 | $0 | $729,935 | $364,064 |
| 2023 | $483,804 | $250,000 | $0 | $733,804 | $173,626 |
| 2022 | $441,596 | $220,000 | $0 | $661,596 | $364,064 |
| 2021 | $384,891 | $140,000 | $0 | $524,891 | $364,064 |
| 2020 | $374,036 | $125,000 | $0 | $499,036 | $364,064 |
| 2019 | $288,331 | $190,000 | $0 | $478,331 | $364,064 |
| 2018 | $289,064 | $145,000 | $0 | $434,064 | $364,064 |
| 2017 | $0 | $90,000 | $0 | $90,000 | $90,000 |
| 2016 | $0 | $60,000 | $0 | $60,000 | $60,000 |
| 2015 | $0 | $70,000 | $0 | $70,000 | $70,000 |
| 2014 | $0 | $70,000 | $0 | $70,000 | $70,000 |
| 2013 | $0 | $75,000 | $0 | $75,000 | $75,000 |
| 2012 | $0 | $75,000 | $0 | $75,000 | $75,000 |
| 2011 | $0 | $75,000 | $0 | $75,000 | $75,000 |
| 2010 | $0 | $75,000 | $0 | $75,000 | $75,000 |
| 2009 | $0 | $90,000 | $0 | $90,000 | $90,000 |
| 2008 | $0 | $95,000 | $0 | $95,000 | $95,000 |
| 2007 | $0 | $95,000 | $0 | $95,000 | $95,000 |
Deed and Sales History
| 1 | 01/04/2018 | WD | Warranty Deed | NW QUALITY BUILDERS LLC | PLOEGER, JOHN | | | $475,000.00 | 32515 | 4436904 |
| 2 | 03/27/2017 | SPLTDWARDE | Special Limited Warranty Deed | ASSEMBLIES OF GOD FOUNDATION | NW QUALITY BUILDERS LLC | | | $180,000.00 | 28642 | 4419814 |
|   | |
| 3 | 09/07/2016 | WD | Warranty Deed | IRVIN, PHILIP C | ASSEMBLIES OF GOD FOUNDATION | | | $0.00 | 26199 | 4407668 |
| 4 | 07/22/1999 | ESTSEPPROP | Establish Separate Property | IRVIN, PHILIP C | IRVIN, PHILIP C | | | $0.00 | 93123 | 99018108 |
| 5 | 04/01/1988 | QCD | Quit Claim Deed | IRVIN, MICHAEL Z | IRVIN, PHILIP C | | | $0.00 | 81226 | 88004607 |
| 6 | 12/01/1980 | SHERIFFD | Sheriff Deed | D, & B | IRVIN, MICHAEL Z | | | $27,398.00 | 59016 | 377907 |
| 7 | 10/01/1978 | OTHER | Other - Misc. Documents | Unknown | D, & B | | | $0.00 | 85302 | 342080 |
Payout Agreement
| No payout information available.. |