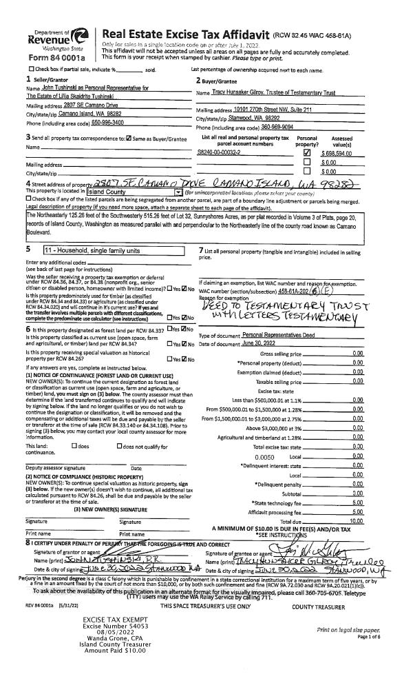
Property
Account |
| Property ID: | 410889 | Abbreviated Legal Description: | THUNDER RIDGE 1 LOT 29 |
| Geographic ID: | S8315-00-00029-0 | Agent Code: | |
| Type: | Real | | |
| Tax Area: | 510 - APPRAISER-Stan/Cam Schl Dist, improved & 1 acre or less | Land Use Code | 11 |
| Open Space: | N | DFL | N |
| Historic Property: | N | Remodel Property: | N |
| Multi-Family Redevelopment: | N | | |
| Township: | | Section: | |
| Range: | |
Location |
| Address: | 1014 FISHER KING WAY CAMANO ISLAND, WA 98282 | Mapsco: | |
| Neighborhood: | Cycle 5 | Map ID: | 478 |
| Neighborhood CD: | 5 |
Owner |
| Name: | GARRITY, SEAN D | Owner ID: | 186472 |
| Mailing Address: | 1014 FISHER KING WAY CAMANO ISLAND, WA 98282-8250 | % Ownership: | 100.0000000000% |
| | | Exemptions: | |
Taxes and Assessment Details
Values
| (+) Improvement Homesite Value: | + | $0 | |
| (+) Improvement Non-Homesite Value: | + | $318,461 | |
| (+) Land Homesite Value: | + | $0 | |
| (+) Land Non-Homesite Value: | + | $330,000 | |
| (+) Curr Use (HS): | + | $0 | $0 |
| (+) Curr Use (NHS): | + | $0 | $0 |
| | | -------------------------- | |
| (=) Market Value: | = | $648,461 | |
| (–) Productivity Loss: | – | $0 | |
| | | -------------------------- | |
| (=) Subtotal: | = | $648,461 | |
| (+) Senior Appraised Value: | + | $0 | |
| (+) Non-Senior Appraised Value: | + | $648,461 | |
| | | -------------------------- | |
| (=) Total Appraised Value: | = | $648,461 | |
| (–) Senior Exemption Loss: | – | $0 | |
| (–) Exemption Loss: | – | $0 | |
| | | -------------------------- | |
| (=) Taxable Value: | = | $648,461 | |
Taxing Jurisdiction
| Owner: | GARRITY, SEAN D | | |
| % Ownership: | 100.0000000000% | | |
| Total Value: | $648,461 | | |
| Tax Area: | 510 - APPRAISER-Stan/Cam Schl Dist, improved & 1 acre or less |
| CF | Conservation Futures | 0.0316035091 | $648,461 | $648,461 | $20.49 | | |
| EMS1 | Fire & Rescue Dist #1 Camano GEN (EMS) | 0.3677864386 | $648,461 | $648,461 | $238.50 | | |
| FIRE1 | Fire & Rescue Dist #1 Camano GEN | 1.2502910536 | $648,461 | $648,461 | $810.76 | | |
| FIRE1BOND | Fire & Rescue Dist #1 Camano BOND | 0.1570001679 | $648,461 | $648,461 | $101.81 | | |
| CE | County Current Expense | 0.3708482477 | $648,461 | $648,461 | $240.48 | | |
| CR | County Roads | 0.4584763726 | $648,461 | $648,461 | $297.30 | | |
| LCIB | Library Sno-Isle BOND (Camano Island) | 0.0396325772 | $648,461 | $648,461 | $25.70 | | |
| LIB | Library Sno-Isle GEN | 0.3153421757 | $648,461 | $648,461 | $204.49 | | |
| SCH205_401 | School 205-401 Enrichment | 1.2698420524 | $648,461 | $648,461 | $823.44 | | |
| SCH205BOND | School 205-401 BOND | 0.9396497583 | $648,461 | $648,461 | $609.33 | | |
| ST | State School | 1.3035497053 | $648,461 | $648,461 | $845.30 | | |
| ST2 | State School Part 2 | 0.8169543533 | $648,461 | $648,461 | $529.76 | | |
| | Total Tax Rate: | 7.3209764117 | | | | | |
| | | | | Taxes w/Current Exemptions: | $4,747.36 | | |
| | | | | Taxes w/o Exemptions: | $4,747.36 | | |
Improvement / Building
| Improvement #1: | RESIDENTIAL | State Code: | Y | 1796.0 sqft | Value: | $318,461 |
| Bathrooms: | 3 | Bedrooms: | 3 | | Ceiling: | DRYWALL PAINTED | Exterior Wall/Cover: | CEMENT FIBER | | Floor Covering: | VINYL/HARDWOOD 60-40 | Floor Structure: | WOOD W/SUBFLOOR | | Foundation: | CONCRETE | Heating: | FHA GAS | | Interior Finish: | DRYWALL PAINT | Plumbing Fixture Cnt: | 12 | | Roof Slope: | 8" IN 12" | Roof Structure/Cover: | CJ ASPHALT |
|
| | Type | Description | Class CD | Sub Class CD | Year Built | Area |
| | BAS | BASE/MAIN FLOOR | 3 | 0 | 2003 | 1196.0 |
| | BIG | BUILT IN GARAGE | 3 | 0 | 2003 | 555.0 |
| | OWP | OPEN WOOD PORCH W/STEPS | 3 | 0 | 2003 | 60.0 |
| | OWP | OPEN WOOD PORCH W/STEPS | 3 | 0 | 2003 | 500.1 |
| | OWC | OPEN WOOD PORCH W/STEPS/ROOF/C | 3 | 0 | 2003 | 90.0 |
| | DWN | DOWNSTAIRS LIVING AREA | 3 | 0 | 2003 | 600.0 |
Sketch
Property Image
Land
| 1 | 14 | SQ (08001-12000) | 0.0000 | 0.00 | 0.00 | 0.00 | 1.00 | $330,000 | $0 |
Roll Value History
| 2026 | N/A | N/A | N/A | N/A | N/A |
| 2025 | $318,461 | $330,000 | $0 | $648,461 | $648,461 |
| 2024 | $322,196 | $330,000 | $0 | $652,196 | $652,196 |
| 2023 | $325,930 | $330,000 | $0 | $655,930 | $655,930 |
| 2022 | $298,524 | $300,000 | $0 | $598,524 | $598,524 |
| 2021 | $247,817 | $145,000 | $0 | $392,817 | $392,817 |
| 2020 | $241,298 | $125,000 | $0 | $366,298 | $366,298 |
| 2019 | $177,906 | $210,000 | $0 | $387,906 | $387,906 |
| 2018 | $178,422 | $165,000 | $0 | $343,422 | $343,422 |
| 2017 | $179,453 | $140,000 | $0 | $319,453 | $319,453 |
| 2016 | $181,516 | $100,000 | $0 | $281,516 | $281,516 |
| 2015 | $167,308 | $70,000 | $0 | $237,308 | $237,308 |
| 2014 | $169,231 | $70,000 | $0 | $239,231 | $239,231 |
| 2013 | $171,154 | $70,000 | $0 | $241,154 | $241,154 |
| 2012 | $174,902 | $75,000 | $0 | $249,902 | $249,902 |
| 2011 | $176,847 | $75,000 | $0 | $251,847 | $251,847 |
| 2010 | $183,760 | $75,000 | $0 | $258,760 | $258,760 |
| 2009 | $218,253 | $120,000 | $0 | $338,253 | $338,253 |
| 2008 | $222,864 | $190,000 | $0 | $412,864 | $412,864 |
| 2007 | $222,904 | $190,000 | $0 | $412,904 | $412,904 |
Deed and Sales History
| 1 | 03/13/2003 | WD | Warranty Deed | CLEMENTSON, CONRAD | GARRITY, SEAN D | | | $181,000.00 | 31063 | 4051093 |
| 2 | 10/23/2001 | WD | Warranty Deed | IRVIN, PHILIP C | CLEMENTSON, CONRAD | | | $44,000.00 | 14172 | 4001210 |
| 3 | 07/22/1999 | ESTSEPPROP | Establish Separate Property | TR CAMANO INC, | IRVIN, PHILIP C | | | $0.00 | 93123 | 99018108 |
| 4 | 04/24/1998 | ESTSEPPROP | Establish Separate Property | TR, CAMANO I | TR CAMANO INC, | | | $0.00 | 91397 | 99009254 |
| 5 | 03/01/1998 | WD | Warranty Deed | Unknown | TR, CAMANO I | | | $3,500.00 | 80788 | 98004454 |
| 6 | 03/01/1998 | WD | Warranty Deed | IRVIN, PHILIP C | TR, CAMANO I | | | $3,500.00 | 80788 | 98004454 |
| 7 | 05/01/1988 | QCD | Quit Claim Deed | IRVIN, MICHAEL Z | IRVIN, PHILIP C | | | $0.00 | 11174 | 91005001 |
| 8 | 12/01/1980 | SHERIFFD | Sheriff Deed | D, & B | IRVIN, MICHAEL Z | | | $27,398.00 | 59016 | 377907 |
| 9 | 10/01/1978 | OTHER | Other - Misc. Documents | TR, CAMANO I | D, & B | | | $0.00 | 85302 | 342080 |
Payout Agreement
| No payout information available.. |