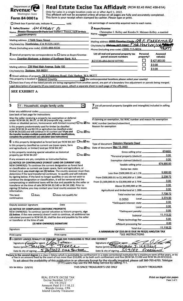
Property
Account |
| Property ID: | 411101 | Abbreviated Legal Description: | THUNDER RIDGE 1 LOT 51 |
| Geographic ID: | S8315-00-00051-0 | Agent Code: | |
| Type: | Real | | |
| Tax Area: | 510 - APPRAISER-Stan/Cam Schl Dist, improved & 1 acre or less | Land Use Code | 11 |
| Open Space: | N | DFL | N |
| Historic Property: | N | Remodel Property: | N |
| Multi-Family Redevelopment: | N | | |
| Township: | | Section: | |
| Range: | |
Location |
| Address: | | Mapsco: | |
| Neighborhood: | Cycle 5 | Map ID: | 478 |
| Neighborhood CD: | 5 |
Owner |
| Name: | MCCAFFERTY, JAMES | Owner ID: | 189984 |
| Mailing Address: | CARA MCCAFFERTY 1026 LIGHTNING WAY CAMANO ISLAND, WA 98282 | % Ownership: | 100.0000000000% |
| | | Exemptions: | |
Taxes and Assessment Details
Values
| (+) Improvement Homesite Value: | + | $0 | |
| (+) Improvement Non-Homesite Value: | + | $497,540 | |
| (+) Land Homesite Value: | + | $0 | |
| (+) Land Non-Homesite Value: | + | $330,000 | |
| (+) Curr Use (HS): | + | $0 | $0 |
| (+) Curr Use (NHS): | + | $0 | $0 |
| | | -------------------------- | |
| (=) Market Value: | = | $827,540 | |
| (–) Productivity Loss: | – | $0 | |
| | | -------------------------- | |
| (=) Subtotal: | = | $827,540 | |
| (+) Senior Appraised Value: | + | $0 | |
| (+) Non-Senior Appraised Value: | + | $827,540 | |
| | | -------------------------- | |
| (=) Total Appraised Value: | = | $827,540 | |
| (–) Senior Exemption Loss: | – | $0 | |
| (–) Exemption Loss: | – | $0 | |
| | | -------------------------- | |
| (=) Taxable Value: | = | $827,540 | |
Taxing Jurisdiction
| Owner: | MCCAFFERTY, JAMES | | |
| % Ownership: | 100.0000000000% | | |
| Total Value: | $827,540 | | |
| Tax Area: | 510 - APPRAISER-Stan/Cam Schl Dist, improved & 1 acre or less |
| CF | Conservation Futures | 0.0316035091 | $827,540 | $827,540 | $26.15 | | |
| EMS1 | Fire & Rescue Dist #1 Camano GEN (EMS) | 0.3677864386 | $827,540 | $827,540 | $304.36 | | |
| FIRE1 | Fire & Rescue Dist #1 Camano GEN | 1.2502910536 | $827,540 | $827,540 | $1,034.67 | | |
| FIRE1BOND | Fire & Rescue Dist #1 Camano BOND | 0.1570001679 | $827,540 | $827,540 | $129.92 | | |
| CE | County Current Expense | 0.3708482477 | $827,540 | $827,540 | $306.89 | | |
| CR | County Roads | 0.4584763726 | $827,540 | $827,540 | $379.41 | | |
| LCIB | Library Sno-Isle BOND (Camano Island) | 0.0396325772 | $827,540 | $827,540 | $32.80 | | |
| LIB | Library Sno-Isle GEN | 0.3153421757 | $827,540 | $827,540 | $260.96 | | |
| SCH205_401 | School 205-401 Enrichment | 1.2698420524 | $827,540 | $827,540 | $1,050.85 | | |
| SCH205BOND | School 205-401 BOND | 0.9396497583 | $827,540 | $827,540 | $777.60 | | |
| ST | State School | 1.3035497053 | $827,540 | $827,540 | $1,078.74 | | |
| ST2 | State School Part 2 | 0.8169543533 | $827,540 | $827,540 | $676.06 | | |
| | Total Tax Rate: | 7.3209764117 | | | | | |
| | | | | Taxes w/Current Exemptions: | $6,058.41 | | |
| | | | | Taxes w/o Exemptions: | $6,058.41 | | |
Improvement / Building
| Improvement #1: | RESIDENTIAL | State Code: | Y | 2548.0 sqft | Value: | $497,540 |
| Bathrooms: | 3 | Bedrooms: | 3 | | Ceiling: | DRYWALL PAINTED | Cooling: | HEAT PUMP/CONV/V | | Exterior Wall/Cover: | CEMENT FIBER | Floor Covering: | VINYL 100% | | Floor Structure: | WOOD W/SUBFLOOR | Foundation: | CONCRETE | | Interior Finish: | DRYWALL PAINT | Plumbing Fixture Cnt: | 15 | | Roof Slope: | 4" IN 12" | Roof Structure/Cover: | CJ ASPHALT |
|
| | Type | Description | Class CD | Sub Class CD | Year Built | Area |
| | BAS | BASE/MAIN FLOOR | 4 | 0 | 2003 | 1550.0 |
| | OP3 | OPEN PORCH W/ROOF | 4 | 0 | 2003 | 126.0 |
| | BIG | BUILT IN GARAGE | 4 | 0 | 2003 | 720.0 |
| | OWP | OPEN WOOD PORCH W/STEPS | 4 | 0 | 2003 | 240.0 |
| | OWP | OPEN WOOD PORCH W/STEPS | 4 | 0 | 2003 | 176.0 |
| | OWR | OPEN WOOD PORCH W/STEPS/ROOF | 4 | 0 | 2003 | 84.0 |
| | DWN | DOWNSTAIRS LIVING AREA | 4 | 0 | 2003 | 998.0 |
Sketch
Property Image
Land
| 1 | 14 | SQ (08001-12000) | 0.0000 | 0.00 | 0.00 | 0.00 | 1.00 | $330,000 | $0 |
Roll Value History
| 2026 | N/A | N/A | N/A | N/A | N/A |
| 2025 | $497,540 | $330,000 | $0 | $827,540 | $827,540 |
| 2024 | $503,243 | $330,000 | $0 | $833,243 | $833,243 |
| 2023 | $508,946 | $330,000 | $0 | $838,946 | $838,946 |
| 2022 | $464,717 | $300,000 | $0 | $764,717 | $764,717 |
| 2021 | $316,000 | $145,000 | $0 | $461,000 | $461,000 |
| 2020 | $307,942 | $125,000 | $0 | $432,942 | $432,942 |
| 2019 | $237,627 | $210,000 | $0 | $447,627 | $447,627 |
| 2018 | $238,317 | $165,000 | $0 | $403,317 | $403,317 |
| 2017 | $223,479 | $140,000 | $0 | $363,479 | $363,479 |
| 2016 | $226,046 | $100,000 | $0 | $326,046 | $326,046 |
| 2015 | $197,275 | $80,000 | $0 | $277,275 | $277,275 |
| 2014 | $199,488 | $80,000 | $0 | $279,488 | $279,488 |
| 2013 | $201,701 | $70,000 | $0 | $271,701 | $271,701 |
| 2012 | $203,915 | $80,000 | $0 | $283,915 | $283,915 |
| 2011 | $206,128 | $80,000 | $0 | $286,128 | $286,128 |
| 2010 | $217,131 | $80,000 | $0 | $297,131 | $297,131 |
| 2009 | $271,368 | $120,000 | $0 | $391,368 | $391,368 |
| 2008 | $293,595 | $190,000 | $0 | $483,595 | $483,595 |
| 2007 | $293,902 | $190,000 | $0 | $483,902 | $483,902 |
Deed and Sales History
| 1 | 02/08/2010 | QCD | Quit Claim Deed | MCCAFFERTY, JAMES | MCCAFFERTY, JAMES | | | $0.00 | 327 | 4268725 |
| 2 | 12/19/2008 | WD | Warranty Deed | DOLAN, RYAN C | MCCAFFERTY, JAMES | | | $350,000.00 | 83201 | 4241767 |
| 3 | 10/06/2006 | 5 | DNU - Marriage License/Name Change | DOLAN, JILL | DOLAN, RYAN C | | | $0.00 | 64413 | 4184107 |
| 4 | 03/28/2003 | ESTSEPPROP | Establish Separate Property | DOLAN, JILL | DOLAN, JILL | | | $0.00 | 31416 | 4053829 |
| 5 | 03/28/2003 | WD | Warranty Deed | KOCH, CRAIG J | DOLAN, JILL | | | $340,845.00 | 31415 | 4053828 |
| 6 | 10/25/2002 | WD | Warranty Deed | KOCH, RICHARD M | KOCH, CRAIG J | | | $60,500.00 | 24255 | 4035329 |
| 7 | 04/05/2002 | WD | Warranty Deed | TR CAMANO INC, | KOCH, RICHARD M | | | $55,000.00 | 21294 | 4016305 |
| 8 | 12/03/1999 | QCD | Quit Claim Deed | HACKER, ZOLA M | TR CAMANO INC, | | | $0.00 | 94986 | 99027856 |
| 9 | 01/01/1900 | OTHER | Other - Misc. Documents | Unknown | HACKER, ZOLA M | | | $0.00 | 0 | 0 |
Payout Agreement
| No payout information available.. |