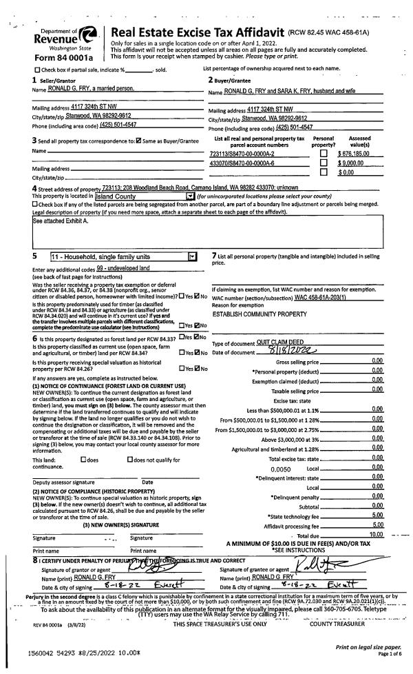
Property
Account |
| Property ID: | 411245 | Abbreviated Legal Description: | THUNDER RIDGE 1 LOT 65 |
| Geographic ID: | S8315-00-00065-0 | Agent Code: | |
| Type: | Real | | |
| Tax Area: | 510 - APPRAISER-Stan/Cam Schl Dist, improved & 1 acre or less | Land Use Code | 11 |
| Open Space: | N | DFL | N |
| Historic Property: | N | Remodel Property: | N |
| Multi-Family Redevelopment: | N | | |
| Township: | | Section: | |
| Range: | |
Location |
| Address: | 1074 CASCADE LN CAMANO ISLAND, WA 98282 | Mapsco: | |
| Neighborhood: | Cycle 5 | Map ID: | 927 |
| Neighborhood CD: | 5 |
Owner |
| Name: | GALE, MATTHEW J | Owner ID: | 288920 |
| Mailing Address: | GRACE M GALE 1074 CASCADE LN CAMANO ISLAND, WA 98282 | % Ownership: | 100.0000000000% |
| | | Exemptions: | |
Taxes and Assessment Details
Values
| (+) Improvement Homesite Value: | + | $0 | |
| (+) Improvement Non-Homesite Value: | + | $332,386 | |
| (+) Land Homesite Value: | + | $0 | |
| (+) Land Non-Homesite Value: | + | $230,000 | |
| (+) Curr Use (HS): | + | $0 | $0 |
| (+) Curr Use (NHS): | + | $0 | $0 |
| | | -------------------------- | |
| (=) Market Value: | = | $562,386 | |
| (–) Productivity Loss: | – | $0 | |
| | | -------------------------- | |
| (=) Subtotal: | = | $562,386 | |
| (+) Senior Appraised Value: | + | $0 | |
| (+) Non-Senior Appraised Value: | + | $562,386 | |
| | | -------------------------- | |
| (=) Total Appraised Value: | = | $562,386 | |
| (–) Senior Exemption Loss: | – | $0 | |
| (–) Exemption Loss: | – | $0 | |
| | | -------------------------- | |
| (=) Taxable Value: | = | $562,386 | |
Taxing Jurisdiction
| Owner: | GALE, MATTHEW J | | |
| % Ownership: | 100.0000000000% | | |
| Total Value: | $562,386 | | |
| Tax Area: | 510 - APPRAISER-Stan/Cam Schl Dist, improved & 1 acre or less |
| CF | Conservation Futures | 0.0316035091 | $562,386 | $562,386 | $17.77 | | |
| EMS1 | Fire & Rescue Dist #1 Camano GEN (EMS) | 0.3677864386 | $562,386 | $562,386 | $206.84 | | |
| FIRE1 | Fire & Rescue Dist #1 Camano GEN | 1.2502910536 | $562,386 | $562,386 | $703.15 | | |
| FIRE1BOND | Fire & Rescue Dist #1 Camano BOND | 0.1570001679 | $562,386 | $562,386 | $88.29 | | |
| CE | County Current Expense | 0.3708482477 | $562,386 | $562,386 | $208.56 | | |
| CR | County Roads | 0.4584763726 | $562,386 | $562,386 | $257.84 | | |
| LCIB | Library Sno-Isle BOND (Camano Island) | 0.0396325772 | $562,386 | $562,386 | $22.29 | | |
| LIB | Library Sno-Isle GEN | 0.3153421757 | $562,386 | $562,386 | $177.34 | | |
| SCH205_401 | School 205-401 Enrichment | 1.2698420524 | $562,386 | $562,386 | $714.14 | | |
| SCH205BOND | School 205-401 BOND | 0.9396497583 | $562,386 | $562,386 | $528.45 | | |
| ST | State School | 1.3035497053 | $562,386 | $562,386 | $733.10 | | |
| ST2 | State School Part 2 | 0.8169543533 | $562,386 | $562,386 | $459.44 | | |
| | Total Tax Rate: | 7.3209764117 | | | | | |
| | | | | Taxes w/Current Exemptions: | $4,117.21 | | |
| | | | | Taxes w/o Exemptions: | $4,117.21 | | |
Improvement / Building
| Improvement #1: | RESIDENTIAL | State Code: | Y | 1456.0 sqft | Value: | $332,386 |
| Bathrooms: | 2.5 | Bedrooms: | 3 | | Ceiling: | DRYWALL PAINTED | Cooling: | HEAT PUMP/CONV/V | | Exterior Wall/Cover: | CEMENT FIBER | Floor Covering: | CARPET/VINYL 20-80 | | Floor Structure: | WOOD W/SUBFLOOR | Foundation: | CONCRETE | | Interior Finish: | DRYWALL PAINT | Plumbing Fixture Cnt: | 13 | | Roof Slope: | 5" IN 12" | Roof Structure/Cover: | CJ ASPHALT |
|
| | Type | Description | Class CD | Sub Class CD | Year Built | Area |
| | BAS | BASE/MAIN FLOOR | 3 | 0 | 2019 | 720.0 |
| | UPS | UPPER STORY | 3 | 0 | 2019 | 736.0 |
| | BIG | BUILT IN GARAGE | 3 | 0 | 2019 | 560.0 |
| | OWP | OPEN WOOD PORCH W/STEPS | 3 | 0 | 2019 | 200.0 |
Sketch
Property Image
Land
| 1 | 14 | SQ (08001-12000) | 0.0000 | 0.00 | 0.00 | 0.00 | 1.00 | $230,000 | $0 |
Roll Value History
| 2026 | N/A | N/A | N/A | N/A | N/A |
| 2025 | $332,386 | $230,000 | $0 | $562,386 | $562,386 |
| 2024 | $335,045 | $210,000 | $0 | $545,045 | $545,045 |
| 2023 | $337,703 | $230,000 | $0 | $567,703 | $567,703 |
| 2022 | $308,995 | $200,000 | $0 | $508,995 | $508,995 |
| 2021 | $269,027 | $140,000 | $0 | $409,027 | $409,027 |
| 2020 | $262,874 | $125,000 | $0 | $387,874 | $387,874 |
| 2019 | $188,530 | $190,000 | $0 | $378,530 | $378,530 |
| 2018 | $0 | $50,000 | $0 | $50,000 | $50,000 |
| 2017 | $0 | $50,000 | $0 | $50,000 | $50,000 |
| 2016 | $0 | $45,000 | $0 | $45,000 | $45,000 |
| 2015 | $0 | $45,000 | $0 | $45,000 | $45,000 |
| 2014 | $0 | $45,000 | $0 | $45,000 | $45,000 |
| 2013 | $0 | $73,000 | $0 | $73,000 | $73,000 |
| 2012 | $0 | $73,000 | $0 | $73,000 | $73,000 |
| 2011 | $0 | $73,000 | $0 | $73,000 | $73,000 |
| 2010 | $0 | $73,000 | $0 | $73,000 | $73,000 |
| 2009 | $0 | $85,000 | $0 | $85,000 | $85,000 |
| 2008 | $0 | $60,500 | $0 | $60,500 | $60,500 |
| 2007 | $0 | $77,500 | $0 | $77,500 | $77,500 |
Deed and Sales History
| 1 | 02/22/2019 | WD | Warranty Deed | SEQUIM LAND, LLC | GALE, MATTHEW J | | | $379,950.00 | 37707 | 4459785 |
| 2 | 04/25/2018 | WD | Warranty Deed | PUGH, DALE SPENCER | SEQUIM LAND, LLC | | | $75,000.00 | 33865 | 4443418 |
| 3 | 08/26/2016 | QCD | Quit Claim Deed | THE REVOCABLE LIVING TRUST MARJORIE FRANCES PUGH | PUGH, DALE SPENCER | | | $22,500.00 | 25977 | 4406998 |
| 4 | 09/12/2011 | QCD | Quit Claim Deed | PUGH, MAJORIE FRANCES | THE REVOCABLE LIVING TRUST MARJORIE FRANCES PUGH | | | $0.00 | 5750 | 4302461 |
| 5 | 05/08/2008 | OTHER | Other - Misc. Documents | PUGH, A BRUCE | PUGH, MAJORIE | | | $0.00 | 80735 | 0 |
| 6 | 02/02/2008 | QCD | Quit Claim Deed | PUGH, MAJORIE | PUGH, MAJORIE FRANCES | | | $0.00 | 81858 | 4232948 |
Payout Agreement
| No payout information available.. |