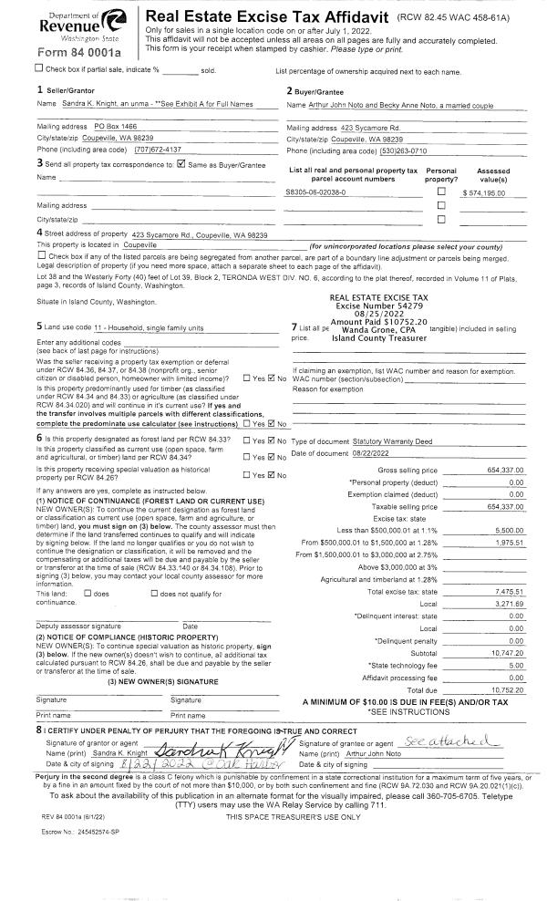
Property
Account |
| Property ID: | 411398 | Abbreviated Legal Description: | THUNDER RIDGE 1 LOT 80 |
| Geographic ID: | S8315-00-00080-0 | Agent Code: | |
| Type: | Real | | |
| Tax Area: | 510 - APPRAISER-Stan/Cam Schl Dist, improved & 1 acre or less | Land Use Code | 11 |
| Open Space: | N | DFL | N |
| Historic Property: | N | Remodel Property: | N |
| Multi-Family Redevelopment: | N | | |
| Township: | | Section: | |
| Range: | |
Location |
| Address: | 1052 COHO LN CAMANO ISLAND, WA 98282 | Mapsco: | |
| Neighborhood: | Cycle 5 | Map ID: | 927 |
| Neighborhood CD: | 5 |
Owner |
| Name: | MAESNER, KIMBERLY | Owner ID: | 292094 |
| Mailing Address: | 1052 COHO LN CAMANO ISLAND, WA 98282 | % Ownership: | 100.0000000000% |
| | | Exemptions: | |
Taxes and Assessment Details
Values
| (+) Improvement Homesite Value: | + | $0 | |
| (+) Improvement Non-Homesite Value: | + | $464,354 | |
| (+) Land Homesite Value: | + | $0 | |
| (+) Land Non-Homesite Value: | + | $250,000 | |
| (+) Curr Use (HS): | + | $0 | $0 |
| (+) Curr Use (NHS): | + | $0 | $0 |
| | | -------------------------- | |
| (=) Market Value: | = | $714,354 | |
| (–) Productivity Loss: | – | $0 | |
| | | -------------------------- | |
| (=) Subtotal: | = | $714,354 | |
| (+) Senior Appraised Value: | + | $0 | |
| (+) Non-Senior Appraised Value: | + | $714,354 | |
| | | -------------------------- | |
| (=) Total Appraised Value: | = | $714,354 | |
| (–) Senior Exemption Loss: | – | $0 | |
| (–) Exemption Loss: | – | $0 | |
| | | -------------------------- | |
| (=) Taxable Value: | = | $714,354 | |
Taxing Jurisdiction
| Owner: | MAESNER, KIMBERLY | | |
| % Ownership: | 100.0000000000% | | |
| Total Value: | $714,354 | | |
| Tax Area: | 510 - APPRAISER-Stan/Cam Schl Dist, improved & 1 acre or less |
| CF | Conservation Futures | 0.0316035091 | $714,354 | $714,354 | $22.58 | | |
| EMS1 | Fire & Rescue Dist #1 Camano GEN (EMS) | 0.3677864386 | $714,354 | $714,354 | $262.73 | | |
| FIRE1 | Fire & Rescue Dist #1 Camano GEN | 1.2502910536 | $714,354 | $714,354 | $893.15 | | |
| FIRE1BOND | Fire & Rescue Dist #1 Camano BOND | 0.1570001679 | $714,354 | $714,354 | $112.15 | | |
| CE | County Current Expense | 0.3708482477 | $714,354 | $714,354 | $264.92 | | |
| CR | County Roads | 0.4584763726 | $714,354 | $714,354 | $327.51 | | |
| LCIB | Library Sno-Isle BOND (Camano Island) | 0.0396325772 | $714,354 | $714,354 | $28.31 | | |
| LIB | Library Sno-Isle GEN | 0.3153421757 | $714,354 | $714,354 | $225.27 | | |
| SCH205_401 | School 205-401 Enrichment | 1.2698420524 | $714,354 | $714,354 | $907.12 | | |
| SCH205BOND | School 205-401 BOND | 0.9396497583 | $714,354 | $714,354 | $671.24 | | |
| ST | State School | 1.3035497053 | $714,354 | $714,354 | $931.20 | | |
| ST2 | State School Part 2 | 0.8169543533 | $714,354 | $714,354 | $583.59 | | |
| | Total Tax Rate: | 7.3209764117 | | | | | |
| | | | | Taxes w/Current Exemptions: | $5,229.77 | | |
| | | | | Taxes w/o Exemptions: | $5,229.77 | | |
Improvement / Building
| Improvement #1: | RESIDENTIAL | State Code: | Y | 1860.0 sqft | Value: | $464,354 |
| Bathrooms: | 2 | Bedrooms: | 3 | | Ceiling: | DRYWALL PAINTED | Cooling: | HEAT PUMP/CONV/V | | Exterior Wall/Cover: | CEMENT FIBER | Floor Covering: | HARDWOOD/CARP 80-20 | | Floor Structure: | WOOD W/SUBFLOOR | Foundation: | CONCRETE | | Interior Finish: | DRYWALL PAINT | Plumbing Fixture Cnt: | 11 | | Roof Slope: | 5" IN 12" | Roof Structure/Cover: | CJ ASPHALT |
|
| | Type | Description | Class CD | Sub Class CD | Year Built | Area |
| | BAS | BASE/MAIN FLOOR | 4 | 0 | 2019 | 1860.0 |
| | AGR | ATTACHED GARAGE | 4 | 0 | 2019 | 572.0 |
| | OWC | OPEN WOOD PORCH W/STEPS/ROOF/C | 4 | 0 | 2019 | 55.0 |
| | OWC | OPEN WOOD PORCH W/STEPS/ROOF/C | 4 | 0 | 2019 | 256.0 |
Sketch
Property Image
Land
| 1 | 14 | SQ (08001-12000) | 0.0000 | 0.00 | 0.00 | 0.00 | 1.00 | $250,000 | $0 |
Roll Value History
| 2026 | N/A | N/A | N/A | N/A | N/A |
| 2025 | $464,354 | $250,000 | $0 | $714,354 | $714,354 |
| 2024 | $468,068 | $250,000 | $0 | $718,068 | $718,068 |
| 2023 | $471,783 | $250,000 | $0 | $721,783 | $721,783 |
| 2022 | $431,677 | $220,000 | $0 | $651,677 | $651,677 |
| 2021 | $362,344 | $140,000 | $0 | $502,344 | $502,344 |
| 2020 | $355,156 | $125,000 | $0 | $480,156 | $480,156 |
| 2019 | $263,567 | $200,000 | $0 | $463,567 | $463,567 |
| 2018 | $0 | $50,000 | $0 | $50,000 | $50,000 |
| 2017 | $0 | $50,000 | $0 | $50,000 | $50,000 |
| 2016 | $0 | $45,000 | $0 | $45,000 | $45,000 |
| 2015 | $0 | $45,000 | $0 | $45,000 | $45,000 |
| 2014 | $0 | $45,000 | $0 | $45,000 | $45,000 |
| 2013 | $0 | $61,000 | $0 | $61,000 | $61,000 |
| 2012 | $0 | $61,000 | $0 | $61,000 | $61,000 |
| 2011 | $0 | $61,000 | $0 | $61,000 | $61,000 |
| 2010 | $0 | $61,000 | $0 | $61,000 | $61,000 |
| 2009 | $0 | $78,000 | $0 | $78,000 | $78,000 |
| 2008 | $0 | $67,500 | $0 | $67,500 | $67,500 |
| 2007 | $0 | $84,500 | $0 | $84,500 | $84,500 |
Deed and Sales History
| 1 | 10/01/2019 | WD | Warranty Deed | NORTHWEST QUALITY BUILDERS, LLC | MAESNER, KIMBERLY | | | $447,450.00 | 40553 | 4472692 |
| 2 | 02/15/2018 | WD | Warranty Deed | NOBLES, DWIGHT SHERMAN | NORTHWEST QUALITY BUILDERS, LLC | | | $89,000.00 | 33036 | 4439647 |
| 3 | 12/10/2002 | WD | Warranty Deed | TR CAMANO INC, | NOBLES, DWIGHT SHERMAN | | | $46,000.00 | 24964 | 4040374 |
| 4 | 01/12/1999 | WD | Warranty Deed | TR CAMANO INC, | TR CAMANO INC, | | | $2,500.00 | 90151 | 99000906 |
| 5 | 04/24/1998 | ESTSEPPROP | Establish Separate Property | TR CAMANO INC, | TR CAMANO INC, | | | $0.00 | 91397 | 99009254 |
| 6 | 04/24/1998 | QCD | Quit Claim Deed | TR, CAMANO I | TR CAMANO INC, | | | $3,162.00 | 81503 | 98008222 |
| 7 | 01/01/1998 | OTHER | Other - Misc. Documents | ANHORN, ROBERT P | TR, CAMANO I | | | $0.00 | 80787 | 98004453 |
| 8 | 01/01/1900 | OTHER | Other - Misc. Documents | Unknown | ANHORN, ROBERT P | | | $0.00 | 0 | 0 |
Payout Agreement
| No payout information available.. |