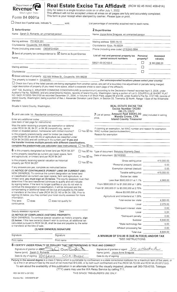
Property
Account |
| Property ID: | 411405 | Abbreviated Legal Description: | THUNDER RIDGE 1 LOT 81 |
| Geographic ID: | S8315-00-00081-0 | Agent Code: | |
| Type: | Real | | |
| Tax Area: | 510 - APPRAISER-Stan/Cam Schl Dist, improved & 1 acre or less | Land Use Code | 11 |
| Open Space: | N | DFL | N |
| Historic Property: | N | Remodel Property: | N |
| Multi-Family Redevelopment: | N | | |
| Township: | | Section: | |
| Range: | |
Location |
| Address: | 1060 COHO LN CAMANO ISLAND, WA 98282 | Mapsco: | |
| Neighborhood: | Cycle 5 | Map ID: | 927 |
| Neighborhood CD: | 5 |
Owner |
| Name: | NOBLES, DWIGHT S | Owner ID: | 188910 |
| Mailing Address: | MARILYN U NOBLES 1060 COHO LN CAMANO ISLAND, WA 98282-6578 | % Ownership: | 100.0000000000% |
| | | Exemptions: | |
Taxes and Assessment Details
Values
| (+) Improvement Homesite Value: | + | $0 | |
| (+) Improvement Non-Homesite Value: | + | $464,062 | |
| (+) Land Homesite Value: | + | $0 | |
| (+) Land Non-Homesite Value: | + | $230,000 | |
| (+) Curr Use (HS): | + | $0 | $0 |
| (+) Curr Use (NHS): | + | $0 | $0 |
| | | -------------------------- | |
| (=) Market Value: | = | $694,062 | |
| (–) Productivity Loss: | – | $0 | |
| | | -------------------------- | |
| (=) Subtotal: | = | $694,062 | |
| (+) Senior Appraised Value: | + | $0 | |
| (+) Non-Senior Appraised Value: | + | $694,062 | |
| | | -------------------------- | |
| (=) Total Appraised Value: | = | $694,062 | |
| (–) Senior Exemption Loss: | – | $0 | |
| (–) Exemption Loss: | – | $0 | |
| | | -------------------------- | |
| (=) Taxable Value: | = | $694,062 | |
Taxing Jurisdiction
| Owner: | NOBLES, DWIGHT S | | |
| % Ownership: | 100.0000000000% | | |
| Total Value: | $694,062 | | |
| Tax Area: | 510 - APPRAISER-Stan/Cam Schl Dist, improved & 1 acre or less |
| CF | Conservation Futures | 0.0316035091 | $694,062 | $694,062 | $21.93 | | |
| EMS1 | Fire & Rescue Dist #1 Camano GEN (EMS) | 0.3677864386 | $694,062 | $694,062 | $255.27 | | |
| FIRE1 | Fire & Rescue Dist #1 Camano GEN | 1.2502910536 | $694,062 | $694,062 | $867.78 | | |
| FIRE1BOND | Fire & Rescue Dist #1 Camano BOND | 0.1570001679 | $694,062 | $694,062 | $108.97 | | |
| CE | County Current Expense | 0.3708482477 | $694,062 | $694,062 | $257.39 | | |
| CR | County Roads | 0.4584763726 | $694,062 | $694,062 | $318.21 | | |
| LCIB | Library Sno-Isle BOND (Camano Island) | 0.0396325772 | $694,062 | $694,062 | $27.51 | | |
| LIB | Library Sno-Isle GEN | 0.3153421757 | $694,062 | $694,062 | $218.87 | | |
| SCH205_401 | School 205-401 Enrichment | 1.2698420524 | $694,062 | $694,062 | $881.35 | | |
| SCH205BOND | School 205-401 BOND | 0.9396497583 | $694,062 | $694,062 | $652.18 | | |
| ST | State School | 1.3035497053 | $694,062 | $694,062 | $904.74 | | |
| ST2 | State School Part 2 | 0.8169543533 | $694,062 | $694,062 | $567.02 | | |
| | Total Tax Rate: | 7.3209764117 | | | | | |
| | | | | Taxes w/Current Exemptions: | $5,081.22 | | |
| | | | | Taxes w/o Exemptions: | $5,081.22 | | |
Improvement / Building
| Improvement #1: | RESIDENTIAL | State Code: | Y | 2240.1 sqft | Value: | $464,062 |
| Bathrooms: | 2.5 | Bedrooms: | 3 | | Ceiling: | DRYWALL PAINTED | Exterior Wall/Cover: | CEMENT FIBER | | Floor Covering: | VINYL TILE/CARP 20-80 | Floor Structure: | WOOD W/SUBFLOOR | | Foundation: | CONCRETE | Heating: | FHA GAS | | Interior Finish: | DRYWALL PAINT | Plumbing Fixture Cnt: | 11 | | Roof Slope: | 12" IN 12" | Roof Structure/Cover: | CJ ASPHALT |
|
| | Type | Description | Class CD | Sub Class CD | Year Built | Area |
| | BAS | BASE/MAIN FLOOR | 4 | 0 | 2002 | 1378.5 |
| | UB8 | BASEMENT UNFINISHED 8" | 4 | 0 | 2002 | 938.0 |
| | OP1 | OPEN PORCH SLAB | 4 | 0 | 2002 | 253.5 |
| | BIG | BUILT IN GARAGE | 4 | 0 | 2002 | 528.0 |
| | UPS | UPPER STORY | 4 | 0 | 2002 | 861.6 |
| | BAW | BALCONY WOOD RAIL | 4 | 0 | 2002 | 66.0 |
| | OWP | OPEN WOOD PORCH W/STEPS | 4 | 0 | 2002 | 224.0 |
| | OWP | OPEN WOOD PORCH W/STEPS | 4 | 0 | 2002 | 308.0 |
| | OWC | OPEN WOOD PORCH W/STEPS/ROOF/C | 4 | 0 | 2002 | 80.0 |
Sketch
Property Image
Land
| 1 | 15 | SQ (12001-21780) | 0.0000 | 0.00 | 0.00 | 0.00 | 1.00 | $230,000 | $0 |
Roll Value History
| 2026 | N/A | N/A | N/A | N/A | N/A |
| 2025 | $464,062 | $230,000 | $0 | $694,062 | $694,062 |
| 2024 | $469,637 | $210,000 | $0 | $679,637 | $679,637 |
| 2023 | $475,210 | $230,000 | $0 | $705,210 | $705,210 |
| 2022 | $435,363 | $200,000 | $0 | $635,363 | $635,363 |
| 2021 | $319,934 | $140,000 | $0 | $459,934 | $459,934 |
| 2020 | $312,176 | $125,000 | $0 | $437,176 | $437,176 |
| 2019 | $240,606 | $190,000 | $0 | $430,606 | $430,606 |
| 2018 | $241,312 | $145,000 | $0 | $386,312 | $386,312 |
| 2017 | $242,723 | $90,000 | $0 | $332,723 | $332,723 |
| 2016 | $245,546 | $65,000 | $0 | $310,546 | $310,546 |
| 2015 | $230,971 | $45,000 | $0 | $275,971 | $275,971 |
| 2014 | $233,656 | $45,000 | $0 | $278,656 | $278,656 |
| 2013 | $236,341 | $45,000 | $0 | $281,341 | $281,341 |
| 2012 | $239,028 | $56,000 | $0 | $295,028 | $295,028 |
| 2011 | $241,713 | $56,000 | $0 | $297,713 | $297,713 |
| 2010 | $251,081 | $56,000 | $0 | $307,081 | $307,081 |
| 2009 | $261,951 | $85,000 | $0 | $346,951 | $346,951 |
| 2008 | $265,031 | $105,000 | $0 | $370,031 | $370,031 |
| 2007 | $270,853 | $105,000 | $0 | $375,853 | $375,853 |
Deed and Sales History
| 1 | 10/04/2002 | WD | Warranty Deed | TR CAMANO INC, | NOBLES, DWIGHT S | | | $239,000.00 | 24125 | 4034253 |
| 2 | 04/24/1998 | ESTSEPPROP | Establish Separate Property | TR CAMANO INC, | TR CAMANO INC, | | | $0.00 | 91397 | 99009254 |
| 3 | 04/24/1998 | QCD | Quit Claim Deed | AYERS, DOROTHY & | TR CAMANO INC, | | | $3,878.00 | 81503 | 98008222 |
| 4 | 07/01/1992 | OTHER | Other - Misc. Documents | SCHIERMAN, HAROLD C | AYERS, DOROTHY & | | | $0.00 | 64925 | 0 |
| 5 | 06/01/1992 | OTHER | Other - Misc. Documents | SCHIERMAN, HAROLD C | SCHIERMAN, HAROLD C | | | $0.00 | 64864 | 85001105 |
| 6 | 04/01/1992 | QCD | Quit Claim Deed | DB, PROP. C | SCHIERMAN, HAROLD C | | | $0.00 | 21935 | 92009224 |
| 7 | 01/01/1900 | OTHER | Other - Misc. Documents | Unknown | DB, PROP. C | | | $0.00 | 0 | 0 |
Payout Agreement
| No payout information available.. |