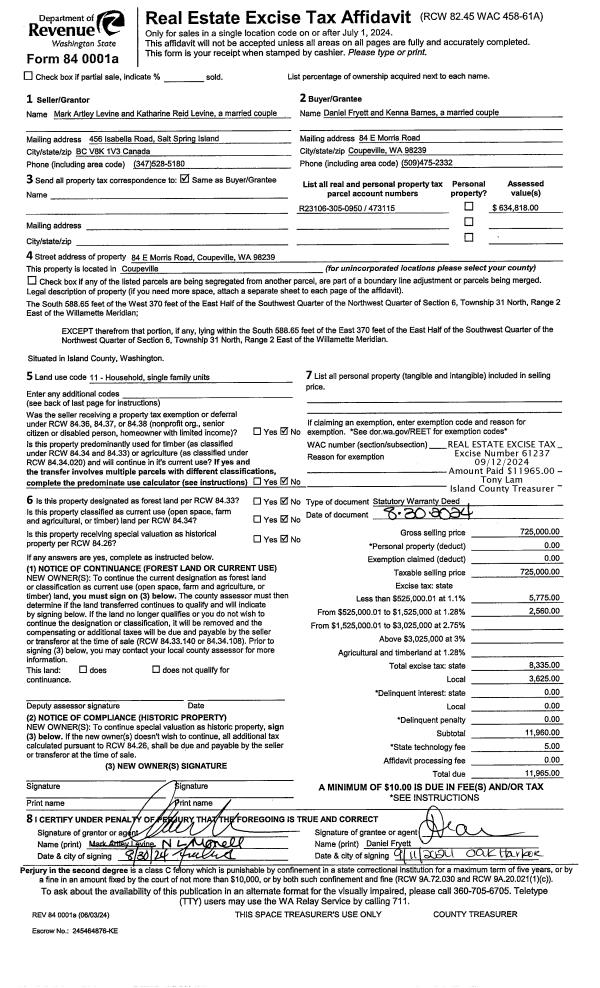
Property
Account |
| Property ID: | 41145 | Abbreviated Legal Description: | 0.4300 Acres ins Section 34s Township 33s Range R1s LOT A OH-BLC AF#4421909 TL 39 - IN SE NW;s |
| Geographic ID: | R13334-328-1450 | Agent Code: | |
| Type: | Real | | |
| Tax Area: | 100 - APPRAISER-OH Schl Dist, in OH | Land Use Code | 11 |
| Open Space: | N | DFL | N |
| Historic Property: | N | Remodel Property: | N |
| Multi-Family Redevelopment: | N | | |
| Township: | 33 | Section: | 34 |
| Range: | R1 |
Location |
| Address: | 870 NW HELLER ST OAK HARBOR, WA 98277 | Mapsco: | |
| Neighborhood: | Cycle 1 | Map ID: | 254 |
| Neighborhood CD: | 1 |
Owner |
| Name: | LIGHT, JOHN D | Owner ID: | 279821 |
| Mailing Address: | DEBORAH M LIGHT 870 NW HELLER ST OAK HARBOR, WA 98277 | % Ownership: | 100.0000000000% |
| | | Exemptions: | |
Taxes and Assessment Details
Values
| (+) Improvement Homesite Value: | + | $0 | |
| (+) Improvement Non-Homesite Value: | + | $213,282 | |
| (+) Land Homesite Value: | + | $0 | |
| (+) Land Non-Homesite Value: | + | $200,000 | |
| (+) Curr Use (HS): | + | $0 | $0 |
| (+) Curr Use (NHS): | + | $0 | $0 |
| | | -------------------------- | |
| (=) Market Value: | = | $413,282 | |
| (–) Productivity Loss: | – | $0 | |
| | | -------------------------- | |
| (=) Subtotal: | = | $413,282 | |
| (+) Senior Appraised Value: | + | $0 | |
| (+) Non-Senior Appraised Value: | + | $413,282 | |
| | | -------------------------- | |
| (=) Total Appraised Value: | = | $413,282 | |
| (–) Senior Exemption Loss: | – | $0 | |
| (–) Exemption Loss: | – | $0 | |
| | | -------------------------- | |
| (=) Taxable Value: | = | $413,282 | |
Taxing Jurisdiction
| Owner: | LIGHT, JOHN D | | |
| % Ownership: | 100.0000000000% | | |
| Total Value: | $413,282 | | |
| Tax Area: | 100 - APPRAISER-OH Schl Dist, in OH |
| CF | Conservation Futures | 0.0316035091 | $413,282 | $413,282 | $13.06 | | |
| CEM1 | Cemetery #1 | 0.0040320932 | $413,282 | $413,282 | $1.67 | | |
| COH | City of Oak Harbor | 2.3001546061 | $413,282 | $413,282 | $950.61 | | |
| OAKBOND | City of Oak Harbor BOND | 0.1926904192 | $413,282 | $413,282 | $79.64 | | |
| HOBOND | Hospital BOND | 0.1910887512 | $413,282 | $413,282 | $78.97 | | |
| HOGEN | Hospital GEN | 0.3902502903 | $413,282 | $413,282 | $161.28 | | |
| CE | County Current Expense | 0.3708482477 | $413,282 | $413,282 | $153.26 | | |
| ISLANDEMS | Hospital GEN (EMS) | 0.5000000000 | $413,282 | $413,282 | $206.64 | | |
| LIB | Library Sno-Isle GEN | 0.3153421757 | $413,282 | $413,282 | $130.33 | | |
| NWHIDPRMT | P & R N Whidbey GEN | 0.2004466701 | $413,282 | $413,282 | $82.84 | | |
| SCH201MO | School 201 Enrichment | 1.8559231640 | $413,282 | $413,282 | $767.02 | | |
| ST | State School | 1.3035497053 | $413,282 | $413,282 | $538.73 | | |
| ST2 | State School Part 2 | 0.8169543533 | $413,282 | $413,282 | $337.63 | | |
| | Total Tax Rate: | 8.4728839852 | | | | | |
| | | | | Taxes w/Current Exemptions: | $3,501.68 | | |
| | | | | Taxes w/o Exemptions: | $3,501.68 | | |
Improvement / Building
| Improvement #1: | RESIDENTIAL | State Code: | Y | 1344.0 sqft | Value: | $213,282 |
| Bathrooms: | 1.75 | Bedrooms: | 3 | | Ceiling: | DRY WALL SPRAYED | Exterior Wall/Cover: | PLY/HARDBOARD T-111 | | Floor Covering: | VINYL 100% | Floor Structure: | WOOD W/SUBFLOOR | | Foundation: | CONCRETE | Heating: | FHA GAS | | Interior Finish: | DRYWALL PAINT | Plumbing Fixture Cnt: | 9 | | Roof Slope: | 3" IN 12" | Roof Structure/Cover: | CJ COMP ROLL |
|
| | Type | Description | Class CD | Sub Class CD | Year Built | Area |
| | BAS | BASE/MAIN FLOOR | 3 | 0 | 1964 | 1344.0 |
| | OP4 | OPEN PORCH W/CEILING-ROOF | 3 | 0 | 1964 | 110.0 |
| | AGR | ATTACHED GARAGE | 3 | 0 | 1964 | 528.0 |
Sketch
Property Image
Land
| 1 | 15 | SQ (12001-21780) | 0.4300 | 18730.80 | 0.00 | 0.00 | 1.00 | $200,000 | $0 |
Roll Value History
| 2026 | N/A | N/A | N/A | N/A | N/A |
| 2025 | $213,282 | $200,000 | $0 | $413,282 | $413,282 |
| 2024 | $216,193 | $190,000 | $0 | $406,193 | $406,193 |
| 2023 | $214,545 | $190,000 | $0 | $404,545 | $404,545 |
| 2022 | $196,924 | $180,000 | $0 | $376,924 | $376,924 |
| 2021 | $173,552 | $135,000 | $0 | $308,552 | $308,552 |
| 2020 | $169,131 | $100,000 | $0 | $269,131 | $269,131 |
| 2019 | $120,371 | $150,000 | $0 | $270,371 | $270,371 |
| 2018 | $120,760 | $130,000 | $0 | $250,760 | $250,760 |
| 2017 | $103,475 | $110,000 | $0 | $213,475 | $213,475 |
| 2016 | $105,042 | $90,000 | $0 | $195,042 | $195,042 |
| 2015 | $106,611 | $70,000 | $0 | $176,611 | $176,611 |
| 2014 | $108,178 | $55,000 | $0 | $163,178 | $163,178 |
| 2013 | $109,746 | $55,000 | $0 | $164,746 | $164,746 |
| 2012 | $111,314 | $65,000 | $0 | $176,314 | $176,314 |
| 2011 | $100,171 | $50,000 | $0 | $150,171 | $150,171 |
| 2010 | $111,387 | $50,000 | $0 | $161,387 | $161,387 |
| 2009 | $116,373 | $66,400 | $0 | $182,773 | $182,773 |
| 2008 | $116,373 | $80,000 | $0 | $196,373 | $196,373 |
| 2007 | $118,013 | $80,000 | $0 | $198,013 | $198,013 |
Deed and Sales History
| 1 | 05/05/2017 | WD | Warranty Deed | BOND, JAMES P | LIGHT, JOHN D | | | $256,000.00 | 29221 | 4422205 |
| 2 | 04/20/2011 | WD | Warranty Deed | TAUFER, NATHAN K | BOND, JAMES P | | | $165,000.00 | 4239 | 4294267 |
| 3 | 04/16/2016 | QCD | Quit Claim Deed | SEATTLE PACIFIC DEVELOPMENT LLC | BOND, JAMES P | | | | 24320 | 4399838 |
| 4 | 05/04/2005 | WD | Warranty Deed | BAKER, BRIAN D | TAUFER, NATHAN K | | | $179,000.00 | 52001 | 4133507 |
| 5 | 11/01/1992 | WD | Warranty Deed | SCHOOLER, JAMES S | BAKER, BRIAN D | | | $99,500.00 | 24558 | 92022281 |
| 6 | 08/01/1989 | WD | Warranty Deed | ELZE, ALAN G | SCHOOLER, JAMES S | | | $70,200.00 | 93386 | 89011351 |
| 7 | 12/01/1986 | WD | Warranty Deed | ROOKS, AUBREY D | ELZE, ALAN G | | | $60,950.00 | 70105 | 87000727 |
| 8 | 04/01/1982 | WD | Warranty Deed | GAETH, DALE L | ROOKS, AUBREY D | | | $61,500.00 | 20936 | 395509 |
| 9 | 01/01/1900 | OTHER | Other - Misc. Documents | Unknown | GAETH, DALE L | | | $0.00 | 0 | 0 |
Payout Agreement
| No payout information available.. |