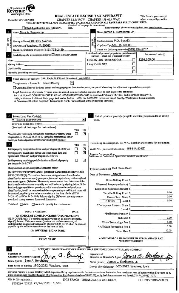
Property
Account |
| Property ID: | 411771 | Abbreviated Legal Description: | THUNDER RIDGE 2 LOT 25 |
| Geographic ID: | S8315-02-00025-0 | Agent Code: | |
| Type: | Real | | |
| Tax Area: | 510 - APPRAISER-Stan/Cam Schl Dist, improved & 1 acre or less | Land Use Code | 11 |
| Open Space: | N | DFL | N |
| Historic Property: | N | Remodel Property: | N |
| Multi-Family Redevelopment: | N | | |
| Township: | | Section: | |
| Range: | |
Location |
| Address: | 1179 ROLLING DR CAMANO ISLAND, WA 98282 | Mapsco: | |
| Neighborhood: | Cycle 5 | Map ID: | 478 |
| Neighborhood CD: | 5 |
Owner |
| Name: | ANTHENIEN, LARRY C | Owner ID: | 282034 |
| Mailing Address: | 1179 ROLLING DR CAMANO ISLAND, WA 98282 | % Ownership: | 100.0000000000% |
| | | Exemptions: | |
Taxes and Assessment Details
Values
| (+) Improvement Homesite Value: | + | $0 | |
| (+) Improvement Non-Homesite Value: | + | $579,689 | |
| (+) Land Homesite Value: | + | $0 | |
| (+) Land Non-Homesite Value: | + | $250,000 | |
| (+) Curr Use (HS): | + | $0 | $0 |
| (+) Curr Use (NHS): | + | $0 | $0 |
| | | -------------------------- | |
| (=) Market Value: | = | $829,689 | |
| (–) Productivity Loss: | – | $0 | |
| | | -------------------------- | |
| (=) Subtotal: | = | $829,689 | |
| (+) Senior Appraised Value: | + | $0 | |
| (+) Non-Senior Appraised Value: | + | $829,689 | |
| | | -------------------------- | |
| (=) Total Appraised Value: | = | $829,689 | |
| (–) Senior Exemption Loss: | – | $0 | |
| (–) Exemption Loss: | – | $0 | |
| | | -------------------------- | |
| (=) Taxable Value: | = | $829,689 | |
Taxing Jurisdiction
| Owner: | ANTHENIEN, LARRY C | | |
| % Ownership: | 100.0000000000% | | |
| Total Value: | $829,689 | | |
| Tax Area: | 510 - APPRAISER-Stan/Cam Schl Dist, improved & 1 acre or less |
| CF | Conservation Futures | 0.0316035091 | $829,689 | $829,689 | $26.22 | | |
| EMS1 | Fire & Rescue Dist #1 Camano GEN (EMS) | 0.3677864386 | $829,689 | $829,689 | $305.15 | | |
| FIRE1 | Fire & Rescue Dist #1 Camano GEN | 1.2502910536 | $829,689 | $829,689 | $1,037.35 | | |
| FIRE1BOND | Fire & Rescue Dist #1 Camano BOND | 0.1570001679 | $829,689 | $829,689 | $130.26 | | |
| CE | County Current Expense | 0.3708482477 | $829,689 | $829,689 | $307.69 | | |
| CR | County Roads | 0.4584763726 | $829,689 | $829,689 | $380.39 | | |
| LCIB | Library Sno-Isle BOND (Camano Island) | 0.0396325772 | $829,689 | $829,689 | $32.88 | | |
| LIB | Library Sno-Isle GEN | 0.3153421757 | $829,689 | $829,689 | $261.64 | | |
| SCH205_401 | School 205-401 Enrichment | 1.2698420524 | $829,689 | $829,689 | $1,053.57 | | |
| SCH205BOND | School 205-401 BOND | 0.9396497583 | $829,689 | $829,689 | $779.62 | | |
| ST | State School | 1.3035497053 | $829,689 | $829,689 | $1,081.54 | | |
| ST2 | State School Part 2 | 0.8169543533 | $829,689 | $829,689 | $677.82 | | |
| | Total Tax Rate: | 7.3209764117 | | | | | |
| | | | | Taxes w/Current Exemptions: | $6,074.13 | | |
| | | | | Taxes w/o Exemptions: | $6,074.13 | | |
Improvement / Building
| Improvement #1: | RESIDENTIAL | State Code: | Y | 3494.0 sqft | Value: | $579,689 |
| Bathrooms: | 3.75 | Bedrooms: | 3 | | Ceiling: | DRYWALL PAINTED | Exterior Wall/Cover: | CEMENT FIBER | | Floor Covering: | HARDWOOD/CARP 80-20 | Floor Structure: | WOOD W/SUBFLOOR | | Foundation: | CONCRETE | Heating: | FHA GAS | | Interior Finish: | DRYWALL PAINT | Plumbing Fixture Cnt: | 15 | | Roof Slope: | 5" IN 12" | Roof Structure/Cover: | CJ ASPHALT |
|
| | Type | Description | Class CD | Sub Class CD | Year Built | Area |
| | BAS | BASE/MAIN FLOOR | 4 | 0 | 2017 | 1182.0 |
| | UPS | UPPER STORY | 4 | 0 | 2017 | 1156.0 |
| | AGR | ATTACHED GARAGE | 4 | 0 | 2017 | 528.0 |
| | DWN | DOWNSTAIRS LIVING AREA | 4 | 0 | 2017 | 1156.0 |
| | OWP | OPEN WOOD PORCH W/STEPS | 4 | 0 | 2017 | 234.5 |
| | OWP | OPEN WOOD PORCH W/STEPS | 4 | 0 | 2017 | 140.0 |
Sketch
Property Image
Land
| 1 | 14 | SQ (08001-12000) | 0.0000 | 0.00 | 0.00 | 0.00 | 1.00 | $250,000 | $0 |
Roll Value History
| 2026 | N/A | N/A | N/A | N/A | N/A |
| 2025 | $579,689 | $250,000 | $0 | $829,689 | $829,689 |
| 2024 | $584,401 | $250,000 | $0 | $834,401 | $834,401 |
| 2023 | $589,115 | $250,000 | $0 | $839,115 | $839,115 |
| 2022 | $537,731 | $220,000 | $0 | $757,731 | $757,731 |
| 2021 | $467,584 | $140,000 | $0 | $607,584 | $607,584 |
| 2020 | $454,717 | $125,000 | $0 | $579,717 | $579,717 |
| 2019 | $370,244 | $190,000 | $0 | $560,244 | $560,244 |
| 2018 | $371,186 | $145,000 | $0 | $516,186 | $516,186 |
| 2017 | $376,839 | $120,000 | $0 | $496,839 | $496,839 |
| 2016 | $0 | $60,000 | $0 | $60,000 | $60,000 |
| 2015 | $0 | $60,000 | $0 | $60,000 | $60,000 |
| 2014 | $0 | $60,000 | $0 | $60,000 | $60,000 |
| 2013 | $0 | $65,000 | $0 | $65,000 | $65,000 |
| 2012 | $0 | $65,000 | $0 | $65,000 | $65,000 |
| 2011 | $0 | $65,000 | $0 | $65,000 | $65,000 |
| 2010 | $0 | $65,000 | $0 | $65,000 | $65,000 |
| 2009 | $0 | $95,000 | $0 | $95,000 | $95,000 |
| 2008 | $0 | $120,000 | $0 | $120,000 | $120,000 |
| 2007 | $0 | $120,000 | $0 | $120,000 | $120,000 |
Deed and Sales History
| 1 | 09/21/2017 | WD | Warranty Deed | ISLAND VIEW INVESTMENTS LLC | ANTHENIEN, LARRY C | | | $476,000.00 | 31164 | 4430585 |
| 2 | 02/22/2016 | WD | Warranty Deed | DEBOLI, JOSEPH | ISLAND VIEW INVESTMENTS LLC | | | $59,500.00 | 23292 | 4394737 |
| 3 | 09/15/2006 | WD | Warranty Deed | COYLE, THOMAS B | DEBOLI, JOSEPH | | | $129,950.00 | 64074 | 4182461 |
| 4 | 05/31/2005 | WD | Warranty Deed | TR CAMANO INC, | COYLE, THOMAS B | | | $60,000.00 | 52530 | 4136130 |
| 5 | 04/24/1998 | ESTSEPPROP | Establish Separate Property | TR CAMANO INC, | TR CAMANO INC, | | | $0.00 | 91397 | 99009254 |
| 6 | 04/24/1998 | ESTSEPPROP | Establish Separate Property | TR CAMANO INC, | TR CAMANO INC, | | | $0.00 | 91397 | 99009254 |
| 7 | 04/24/1998 | QCD | Quit Claim Deed | DB, PROP. C | TR CAMANO INC, | | | $3,162.00 | 81503 | 98008222 |
| 8 | 01/01/1900 | OTHER | Other - Misc. Documents | Unknown | DB, PROP. C | | | $0.00 | 0 | 0 |
Payout Agreement
| No payout information available.. |