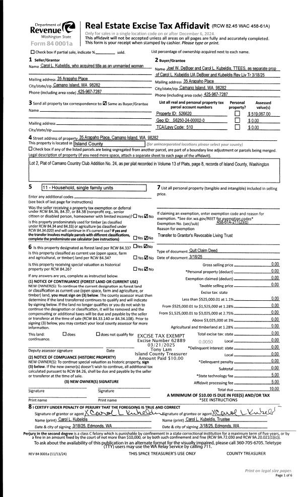
Property
Account |
| Property ID: | 411931 | Abbreviated Legal Description: | THUNDER RIDGE 2 LOT 41 |
| Geographic ID: | S8315-02-00041-0 | Agent Code: | |
| Type: | Real | | |
| Tax Area: | 510 - APPRAISER-Stan/Cam Schl Dist, improved & 1 acre or less | Land Use Code | 11 |
| Open Space: | N | DFL | N |
| Historic Property: | N | Remodel Property: | N |
| Multi-Family Redevelopment: | N | | |
| Township: | | Section: | |
| Range: | |
Location |
| Address: | 1099 PORTAGE RD CAMANO ISLAND, WA 98282 | Mapsco: | |
| Neighborhood: | Cycle 5 | Map ID: | 478 |
| Neighborhood CD: | 5 |
Owner |
| Name: | JARRETT, CAROL | Owner ID: | 314257 |
| Mailing Address: | DON JARRETT 1099 PORTAGE RD CAMANO ISLAND, WA 98282 | % Ownership: | 100.0000000000% |
| | | Exemptions: | |
Taxes and Assessment Details
Values
| (+) Improvement Homesite Value: | + | $0 | |
| (+) Improvement Non-Homesite Value: | + | $448,663 | |
| (+) Land Homesite Value: | + | $0 | |
| (+) Land Non-Homesite Value: | + | $250,000 | |
| (+) Curr Use (HS): | + | $0 | $0 |
| (+) Curr Use (NHS): | + | $0 | $0 |
| | | -------------------------- | |
| (=) Market Value: | = | $698,663 | |
| (–) Productivity Loss: | – | $0 | |
| | | -------------------------- | |
| (=) Subtotal: | = | $698,663 | |
| (+) Senior Appraised Value: | + | $0 | |
| (+) Non-Senior Appraised Value: | + | $698,663 | |
| | | -------------------------- | |
| (=) Total Appraised Value: | = | $698,663 | |
| (–) Senior Exemption Loss: | – | $0 | |
| (–) Exemption Loss: | – | $0 | |
| | | -------------------------- | |
| (=) Taxable Value: | = | $698,663 | |
Taxing Jurisdiction
| Owner: | JARRETT, CAROL | | |
| % Ownership: | 100.0000000000% | | |
| Total Value: | $698,663 | | |
| Tax Area: | 510 - APPRAISER-Stan/Cam Schl Dist, improved & 1 acre or less |
| CF | Conservation Futures | 0.0316035091 | $698,663 | $698,663 | $22.08 | | |
| EMS1 | Fire & Rescue Dist #1 Camano GEN (EMS) | 0.3677864386 | $698,663 | $698,663 | $256.96 | | |
| FIRE1 | Fire & Rescue Dist #1 Camano GEN | 1.2502910536 | $698,663 | $698,663 | $873.53 | | |
| FIRE1BOND | Fire & Rescue Dist #1 Camano BOND | 0.1570001679 | $698,663 | $698,663 | $109.69 | | |
| CE | County Current Expense | 0.3708482477 | $698,663 | $698,663 | $259.10 | | |
| CR | County Roads | 0.4584763726 | $698,663 | $698,663 | $320.32 | | |
| LCIB | Library Sno-Isle BOND (Camano Island) | 0.0396325772 | $698,663 | $698,663 | $27.69 | | |
| LIB | Library Sno-Isle GEN | 0.3153421757 | $698,663 | $698,663 | $220.32 | | |
| SCH205_401 | School 205-401 Enrichment | 1.2698420524 | $698,663 | $698,663 | $887.19 | | |
| SCH205BOND | School 205-401 BOND | 0.9396497583 | $698,663 | $698,663 | $656.50 | | |
| ST | State School | 1.3035497053 | $698,663 | $698,663 | $910.74 | | |
| ST2 | State School Part 2 | 0.8169543533 | $698,663 | $698,663 | $570.78 | | |
| | Total Tax Rate: | 7.3209764117 | | | | | |
| | | | | Taxes w/Current Exemptions: | $5,114.90 | | |
| | | | | Taxes w/o Exemptions: | $5,114.90 | | |
Improvement / Building
| Improvement #1: | RESIDENTIAL | State Code: | Y | 2420.9 sqft | Value: | $448,663 |
| Bathrooms: | 2.5 | Bedrooms: | 3 | | Ceiling: | DRYWALL PAINTED | Cooling: | HEAT PUMP/CONV/V | | Exterior Wall/Cover: | CEMENT FIBER | Floor Covering: | VINYL TILE/CARP 20-80 | | Floor Structure: | WOOD W/SUBFLOOR | Foundation: | CONCRETE | | Interior Finish: | DRYWALL PAINT | Plumbing Fixture Cnt: | 14 | | Roof Slope: | 5" IN 12" | Roof Structure/Cover: | CJ ASPHALT |
|
| | Type | Description | Class CD | Sub Class CD | Year Built | Area |
| | BAS | BASE/MAIN FLOOR | 3 | 0 | 2005 | 1580.9 |
| | AGR | ATTACHED GARAGE | 3 | 0 | 2005 | 535.2 |
| | UPS | UPPER STORY | 3 | 0 | 2005 | 840.0 |
| | OWR | OPEN WOOD PORCH W/STEPS/ROOF | 3 | 0 | 2005 | 730.3 |
Sketch
Property Image
Land
| 1 | 14 | SQ (08001-12000) | 0.0000 | 0.00 | 0.00 | 0.00 | 1.00 | $250,000 | $0 |
Roll Value History
| 2026 | N/A | N/A | N/A | N/A | N/A |
| 2025 | $448,663 | $250,000 | $0 | $698,663 | $698,663 |
| 2024 | $444,710 | $250,000 | $0 | $694,710 | $694,710 |
| 2023 | $448,663 | $250,000 | $0 | $698,663 | $698,663 |
| 2022 | $409,404 | $220,000 | $0 | $629,404 | $629,404 |
| 2021 | $339,468 | $140,000 | $0 | $479,468 | $479,468 |
| 2020 | $330,652 | $125,000 | $0 | $455,652 | $455,652 |
| 2019 | $253,994 | $190,000 | $0 | $443,994 | $443,994 |
| 2018 | $254,704 | $145,000 | $0 | $399,704 | $399,704 |
| 2017 | $256,029 | $120,000 | $0 | $376,029 | $376,029 |
| 2016 | $258,873 | $80,000 | $0 | $338,873 | $338,873 |
| 2015 | $261,718 | $70,000 | $0 | $331,718 | $331,718 |
| 2014 | $235,460 | $45,000 | $0 | $280,460 | $280,460 |
| 2013 | $238,077 | $45,000 | $0 | $283,077 | $283,077 |
| 2012 | $240,691 | $56,000 | $0 | $296,691 | $296,691 |
| 2011 | $243,308 | $56,000 | $0 | $299,308 | $299,308 |
| 2010 | $246,515 | $56,000 | $0 | $302,515 | $302,515 |
| 2009 | $254,139 | $120,000 | $0 | $374,139 | $374,139 |
| 2008 | $267,307 | $190,000 | $0 | $457,307 | $457,307 |
| 2007 | $270,056 | $190,000 | $0 | $460,056 | $460,056 |
Deed and Sales History
| 1 | 10/17/2024 | WD | Warranty Deed | BURCH, JOHN S | JARRETT, CAROL | | | $749,000.00 | 61597 | 4578347 |
| 2 | 11/12/2014 | WD | Warranty Deed | CHANEY, GARY D | BURCH, JOHN S | | | $329,990.00 | 17531 | 4368507 |
| 3 | 07/15/2003 | WD | Warranty Deed | TRC PROPERTIES INC, | CHANEY, GARY D | | | $64,250.00 | 33104 | 4067322 |
| 4 | 02/27/2003 | QCD | Quit Claim Deed | TR CAMANO INC, | TRC PROPERTIES INC, | | | $0.00 | 30856 | 4049777 |
| 5 | 04/24/1998 | ESTSEPPROP | Establish Separate Property | TR CAMANO INC, | TR CAMANO INC, | | | $0.00 | 91397 | 99009254 |
| 6 | 04/24/1998 | QCD | Quit Claim Deed | Unknown | TR CAMANO INC, | | | $3,162.00 | 81503 | 98008222 |
Payout Agreement
| No payout information available.. |