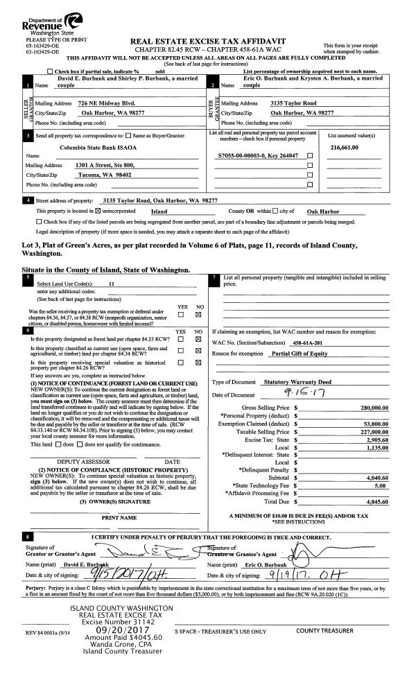
Property
Account |
| Property ID: | 411968 | Abbreviated Legal Description: | THUNDER RIDGE 2 LOT 44 |
| Geographic ID: | S8315-02-00044-0 | Agent Code: | |
| Type: | Real | | |
| Tax Area: | 510 - APPRAISER-Stan/Cam Schl Dist, improved & 1 acre or less | Land Use Code | 11 |
| Open Space: | N | DFL | N |
| Historic Property: | N | Remodel Property: | N |
| Multi-Family Redevelopment: | N | | |
| Township: | | Section: | |
| Range: | |
Location |
| Address: | 1137 PORTAGE RD CAMANO ISLAND, WA 98282 | Mapsco: | |
| Neighborhood: | Cycle 5 | Map ID: | 478 |
| Neighborhood CD: | 5 |
Owner |
| Name: | RAUSCH, IRENE | Owner ID: | 316834 |
| Mailing Address: | 1137 PORTAGE RD CAMANO ISLAND, WA 98282 | % Ownership: | 100.0000000000% |
| | | Exemptions: | |
Taxes and Assessment Details
Values
| (+) Improvement Homesite Value: | + | $0 | |
| (+) Improvement Non-Homesite Value: | + | $335,344 | |
| (+) Land Homesite Value: | + | $0 | |
| (+) Land Non-Homesite Value: | + | $230,000 | |
| (+) Curr Use (HS): | + | $0 | $0 |
| (+) Curr Use (NHS): | + | $0 | $0 |
| | | -------------------------- | |
| (=) Market Value: | = | $565,344 | |
| (–) Productivity Loss: | – | $0 | |
| | | -------------------------- | |
| (=) Subtotal: | = | $565,344 | |
| (+) Senior Appraised Value: | + | $0 | |
| (+) Non-Senior Appraised Value: | + | $565,344 | |
| | | -------------------------- | |
| (=) Total Appraised Value: | = | $565,344 | |
| (–) Senior Exemption Loss: | – | $0 | |
| (–) Exemption Loss: | – | $0 | |
| | | -------------------------- | |
| (=) Taxable Value: | = | $565,344 | |
Taxing Jurisdiction
| Owner: | RAUSCH, IRENE | | |
| % Ownership: | 100.0000000000% | | |
| Total Value: | $565,344 | | |
| Tax Area: | 510 - APPRAISER-Stan/Cam Schl Dist, improved & 1 acre or less |
| CF | Conservation Futures | 0.0316035091 | $565,344 | $565,344 | $17.87 | | |
| EMS1 | Fire & Rescue Dist #1 Camano GEN (EMS) | 0.3677864386 | $565,344 | $565,344 | $207.93 | | |
| FIRE1 | Fire & Rescue Dist #1 Camano GEN | 1.2502910536 | $565,344 | $565,344 | $706.84 | | |
| FIRE1BOND | Fire & Rescue Dist #1 Camano BOND | 0.1570001679 | $565,344 | $565,344 | $88.76 | | |
| CE | County Current Expense | 0.3708482477 | $565,344 | $565,344 | $209.66 | | |
| CR | County Roads | 0.4584763726 | $565,344 | $565,344 | $259.20 | | |
| LCIB | Library Sno-Isle BOND (Camano Island) | 0.0396325772 | $565,344 | $565,344 | $22.41 | | |
| LIB | Library Sno-Isle GEN | 0.3153421757 | $565,344 | $565,344 | $178.28 | | |
| SCH205_401 | School 205-401 Enrichment | 1.2698420524 | $565,344 | $565,344 | $717.90 | | |
| SCH205BOND | School 205-401 BOND | 0.9396497583 | $565,344 | $565,344 | $531.23 | | |
| ST | State School | 1.3035497053 | $565,344 | $565,344 | $736.95 | | |
| ST2 | State School Part 2 | 0.8169543533 | $565,344 | $565,344 | $461.86 | | |
| | Total Tax Rate: | 7.3209764117 | | | | | |
| | | | | Taxes w/Current Exemptions: | $4,138.89 | | |
| | | | | Taxes w/o Exemptions: | $4,138.89 | | |
Improvement / Building
| Improvement #1: | RESIDENTIAL | State Code: | Y | 1709.5 sqft | Value: | $335,344 |
| Bathrooms: | 2 | Bedrooms: | 2 | | Ceiling: | DRYWALL PAINTED | Exterior Wall/Cover: | CEMENT FIBER | | Floor Covering: | HARDWOOD/CARP 20-80 | Floor Structure: | WOOD W/SUBFLOOR | | Foundation: | CONCRETE | Heating: | FHA GAS | | Interior Finish: | DRYWALL PAINT | Plumbing Fixture Cnt: | 10 | | Roof Slope: | 4" IN 12" | Roof Structure/Cover: | CJ ASPHALT |
|
| | Type | Description | Class CD | Sub Class CD | Year Built | Area |
| | BAS | BASE/MAIN FLOOR | 3 | 0 | 2005 | 1709.5 |
| | OP4 | OPEN PORCH W/CEILING-ROOF | 3 | 0 | 2005 | 12.5 |
| | AGR | ATTACHED GARAGE | 3 | 0 | 2005 | 484.0 |
| | OWP | OPEN WOOD PORCH W/STEPS | 3 | 0 | 2005 | 401.0 |
Sketch
Property Image
Land
| 1 | 14 | SQ (08001-12000) | 0.0000 | 0.00 | 0.00 | 0.00 | 1.00 | $230,000 | $0 |
Roll Value History
| 2026 | N/A | N/A | N/A | N/A | N/A |
| 2025 | $335,344 | $230,000 | $0 | $565,344 | $565,344 |
| 2024 | $339,144 | $210,000 | $0 | $549,144 | $549,144 |
| 2023 | $341,993 | $230,000 | $0 | $571,993 | $571,993 |
| 2022 | $312,423 | $200,000 | $0 | $512,423 | $512,423 |
| 2021 | $273,774 | $140,000 | $0 | $413,774 | $413,774 |
| 2020 | $258,796 | $125,000 | $0 | $383,796 | $383,796 |
| 2019 | $190,402 | $190,000 | $0 | $380,402 | $380,402 |
| 2018 | $190,924 | $145,000 | $0 | $335,924 | $335,924 |
| 2017 | $187,748 | $90,000 | $0 | $277,748 | $277,748 |
| 2016 | $189,835 | $65,000 | $0 | $254,835 | $254,835 |
| 2015 | $182,606 | $45,000 | $0 | $227,606 | $227,606 |
| 2014 | $184,652 | $45,000 | $0 | $229,652 | $229,652 |
| 2013 | $186,700 | $45,000 | $0 | $231,700 | $231,700 |
| 2012 | $188,746 | $56,000 | $0 | $244,746 | $244,746 |
| 2011 | $190,793 | $56,000 | $0 | $246,793 | $246,793 |
| 2010 | $200,189 | $56,000 | $0 | $256,189 | $256,189 |
| 2009 | $194,405 | $95,000 | $0 | $289,405 | $289,405 |
| 2008 | $196,556 | $105,000 | $0 | $301,556 | $301,556 |
| 2007 | $198,693 | $105,000 | $0 | $303,693 | $303,693 |
Deed and Sales History
| 1 | 06/05/2025 | QCD | Quit Claim Deed | RAUSCH JTWROS, IRENE | RAUSCH, IRENE | | | $0.00 | 63707 | 4586686 |
| 2 | 06/22/2020 | WD | Warranty Deed | WILLIAMS, CAROL J | RAUSCH JTWROS, IRENE | | | $430,000.00 | 43652 | 4490534 |
| 3 | 09/11/2017 | WD | Warranty Deed | ORAVETZ, STEVEN D | WILLIAMS, CAROL J | | | $344,000.00 | 31044 | 4429961 |
| 4 | 10/26/2015 | WD | Warranty Deed | ENGSTROM, JACKIE M | ORAVETZ, STEVEN D | | | $265,900.00 | 22010 | 4388759 |
| 5 | 05/09/2005 | WD | Warranty Deed | CEDARHOME CONST LLC, | ENGSTROM, JACKIE M | | | $253,450.00 | 52091 | 4134016 |
| 6 | 04/28/2004 | WD | Warranty Deed | TR CAMANO INC, | CEDARHOME CONST LLC, | | | $52,950.00 | 41773 | 4098994 |
| 7 | 03/10/1999 | WD | Warranty Deed | TR CAMANO INC, | TR CAMANO INC, | | | $3,000.00 | 90950 | 99006638 |
| 8 | 04/24/1998 | ESTSEPPROP | Establish Separate Property | HARGRAVES, DAVID A | TR CAMANO INC, | | | $0.00 | 91397 | 99009254 |
| 9 | 05/01/1989 | WD | Warranty Deed | HARGREAVES, DAVID A | HARGRAVES, DAVID A | | | $1,000.00 | 91611 | 89005630 |
| 10 | 04/01/1989 | WD | Warranty Deed | FREEBORN, LUTHERAN C | HARGREAVES, DAVID A | | | $0.00 | 91730 | 89005973 |
| 11 | 11/01/1985 | WD | Warranty Deed | GILBERTSON, INOR & | FREEBORN, LUTHERAN C | | | $0.00 | 53233 | 85012820 |
| 12 | 05/01/1983 | TTAXD | Treasurer's Tax Deed | SMITH, THOMAS M | GILBERTSON, INOR & | | | $0.00 | 60028 | 409543 |
| 13 | 01/01/1900 | OTHER | Other - Misc. Documents | Unknown | SMITH, THOMAS M | | | $0.00 | 0 | 0 |
Payout Agreement
| No payout information available.. |