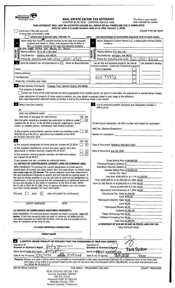
Property
Account |
| Property ID: | 412100 | Abbreviated Legal Description: | THUNDER RIDGE 2 LOT 58 |
| Geographic ID: | S8315-02-00058-0 | Agent Code: | |
| Type: | Real | | |
| Tax Area: | 510 - APPRAISER-Stan/Cam Schl Dist, improved & 1 acre or less | Land Use Code | 11 |
| Open Space: | N | DFL | N |
| Historic Property: | N | Remodel Property: | N |
| Multi-Family Redevelopment: | N | | |
| Township: | | Section: | |
| Range: | |
Location |
| Address: | 1135 CENTRAL DR CAMANO ISLAND, WA 98282 | Mapsco: | |
| Neighborhood: | Cycle 5 | Map ID: | 478 |
| Neighborhood CD: | 5 |
Owner |
| Name: | NURMI, TREVER W | Owner ID: | 293328 |
| Mailing Address: | AMBER R NURMI 1135 CENTRAL DR CAMANO ISLAND, WA 98282 | % Ownership: | 100.0000000000% |
| | | Exemptions: | |
Taxes and Assessment Details
Values
| (+) Improvement Homesite Value: | + | $0 | |
| (+) Improvement Non-Homesite Value: | + | $484,662 | |
| (+) Land Homesite Value: | + | $0 | |
| (+) Land Non-Homesite Value: | + | $230,000 | |
| (+) Curr Use (HS): | + | $0 | $0 |
| (+) Curr Use (NHS): | + | $0 | $0 |
| | | -------------------------- | |
| (=) Market Value: | = | $714,662 | |
| (–) Productivity Loss: | – | $0 | |
| | | -------------------------- | |
| (=) Subtotal: | = | $714,662 | |
| (+) Senior Appraised Value: | + | $0 | |
| (+) Non-Senior Appraised Value: | + | $714,662 | |
| | | -------------------------- | |
| (=) Total Appraised Value: | = | $714,662 | |
| (–) Senior Exemption Loss: | – | $0 | |
| (–) Exemption Loss: | – | $0 | |
| | | -------------------------- | |
| (=) Taxable Value: | = | $714,662 | |
Taxing Jurisdiction
| Owner: | NURMI, TREVER W | | |
| % Ownership: | 100.0000000000% | | |
| Total Value: | $714,662 | | |
| Tax Area: | 510 - APPRAISER-Stan/Cam Schl Dist, improved & 1 acre or less |
| CF | Conservation Futures | 0.0316035091 | $714,662 | $714,662 | $22.59 | | |
| EMS1 | Fire & Rescue Dist #1 Camano GEN (EMS) | 0.3677864386 | $714,662 | $714,662 | $262.84 | | |
| FIRE1 | Fire & Rescue Dist #1 Camano GEN | 1.2502910536 | $714,662 | $714,662 | $893.54 | | |
| FIRE1BOND | Fire & Rescue Dist #1 Camano BOND | 0.1570001679 | $714,662 | $714,662 | $112.20 | | |
| CE | County Current Expense | 0.3708482477 | $714,662 | $714,662 | $265.03 | | |
| CR | County Roads | 0.4584763726 | $714,662 | $714,662 | $327.66 | | |
| LCIB | Library Sno-Isle BOND (Camano Island) | 0.0396325772 | $714,662 | $714,662 | $28.32 | | |
| LIB | Library Sno-Isle GEN | 0.3153421757 | $714,662 | $714,662 | $225.36 | | |
| SCH205_401 | School 205-401 Enrichment | 1.2698420524 | $714,662 | $714,662 | $907.51 | | |
| SCH205BOND | School 205-401 BOND | 0.9396497583 | $714,662 | $714,662 | $671.53 | | |
| ST | State School | 1.3035497053 | $714,662 | $714,662 | $931.60 | | |
| ST2 | State School Part 2 | 0.8169543533 | $714,662 | $714,662 | $583.85 | | |
| | Total Tax Rate: | 7.3209764117 | | | | | |
| | | | | Taxes w/Current Exemptions: | $5,232.03 | | |
| | | | | Taxes w/o Exemptions: | $5,232.03 | | |
Improvement / Building
| Improvement #1: | RESIDENTIAL | State Code: | Y | 2695.0 sqft | Value: | $484,662 |
| Bathrooms: | 2.75 | Bedrooms: | 3 | | Ceiling: | DRYWALL PAINTED | Cooling: | HEAT PUMP/CONV/V | | Exterior Wall/Cover: | CEMENT FIBER | Floor Covering: | CARPET/VINYL 60-40 | | Floor Structure: | WOOD W/SUBFLOOR | Foundation: | CONCRETE | | Interior Finish: | DRYWALL PAINT | Plumbing Fixture Cnt: | 17 | | Roof Slope: | 4" IN 12" | Roof Structure/Cover: | CJ ASPHALT |
|
| | Type | Description | Class CD | Sub Class CD | Year Built | Area |
| | BAS | BASE/MAIN FLOOR | 4 | 0 | 2005 | 1463.6 |
| | OP4 | OPEN PORCH W/CEILING-ROOF | 4 | 0 | 2005 | 86.0 |
| | AGR | ATTACHED GARAGE | 4 | 0 | 2005 | 541.9 |
| | UPS | UPPER STORY | 4 | 0 | 2005 | 1231.4 |
| | OWP | OPEN WOOD PORCH W/STEPS | 4 | 0 | 2005 | 160.0 |
Sketch
Property Image
Land
| 1 | 14 | SQ (08001-12000) | 0.0000 | 0.00 | 0.00 | 0.00 | 1.00 | $230,000 | $0 |
Roll Value History
| 2026 | N/A | N/A | N/A | N/A | N/A |
| 2025 | $484,662 | $230,000 | $0 | $714,662 | $714,662 |
| 2024 | $490,483 | $210,000 | $0 | $700,483 | $700,483 |
| 2023 | $496,304 | $230,000 | $0 | $726,304 | $726,304 |
| 2022 | $454,667 | $200,000 | $0 | $654,667 | $654,667 |
| 2021 | $399,964 | $140,000 | $0 | $539,964 | $539,964 |
| 2020 | $337,019 | $125,000 | $0 | $462,019 | $462,019 |
| 2019 | $260,706 | $190,000 | $0 | $450,706 | $450,706 |
| 2018 | $261,436 | $145,000 | $0 | $406,436 | $406,436 |
| 2017 | $262,808 | $90,000 | $0 | $352,808 | $352,808 |
| 2016 | $265,729 | $65,000 | $0 | $330,729 | $330,729 |
| 2015 | $253,649 | $45,000 | $0 | $298,649 | $298,649 |
| 2014 | $256,498 | $45,000 | $0 | $301,498 | $301,498 |
| 2013 | $259,348 | $45,000 | $0 | $304,348 | $304,348 |
| 2012 | $262,198 | $56,000 | $0 | $318,198 | $318,198 |
| 2011 | $265,048 | $56,000 | $0 | $321,048 | $321,048 |
| 2010 | $276,788 | $56,000 | $0 | $332,788 | $332,788 |
| 2009 | $285,528 | $95,000 | $0 | $380,528 | $380,528 |
| 2008 | $288,783 | $105,000 | $0 | $393,783 | $393,783 |
| 2007 | $244,321 | $156,205 | $0 | $400,526 | $400,526 |
Deed and Sales History
| 1 | 01/24/2020 | WD | Warranty Deed | FRISON TRUSTEE, LARRY BERT | NURMI, TREVER W | | | $499,000.00 | 41941 | 4480326 |
| 2 | 10/03/2016 | QCD | Quit Claim Deed | FRISON TRUSTEE, LARRY BERT | FRISON TRUSTEE, LARRY BERT | | | $0.00 | 26938 | 4411559 |
| 3 | 01/20/2016 | TRUSTEED | Trustee's Deed | FRISON, LARRY B | FRISON TRUSTEE, LARRY BERT | | | $0.00 | 22967 | 4393242 |
| 4 | 06/18/2014 | TRUSTEED | Trustee's Deed | FRISON TRUSTEE, LARRY B | FRISON, LARRY B | | | $0.00 | 15679 | 4361049 |
| 5 | 07/16/2013 | TRUSTEED | Trustee's Deed | FRISON, LARRY B | FRISON TRUSTEE, LARRY B | | | $0.00 | 12061 | 4344395 |
| 6 | 07/08/2005 | WD | Warranty Deed | RIDGEWOOD CUSTOM HOMES, | FRISON, LARRY | | | $360,000.00 | 53310 | 4140267 |
| 7 | 03/15/2004 | WD | Warranty Deed | TRC PROPERTIES INC, | RIDGEWOOD CUSTOM HOMES, | | | $59,950.00 | 41018 | 4094404 |
| 8 | 02/27/2003 | QCD | Quit Claim Deed | TR CAMANO INC, | TRC PROPERTIES INC, | | | $0.00 | 30856 | 4049777 |
| 9 | 04/24/1998 | ESTSEPPROP | Establish Separate Property | TR CAMANO INC, | TR CAMANO INC, | | | $0.00 | 91397 | 99009254 |
| 10 | 04/24/1998 | QCD | Quit Claim Deed | Unknown | TR CAMANO INC, | | | $3,162.00 | 81503 | 98008222 |
Payout Agreement
| No payout information available.. |