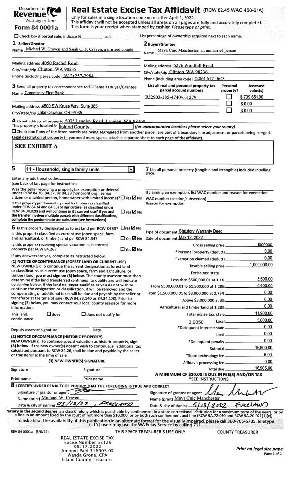
Property
Account |
| Property ID: | 412119 | Abbreviated Legal Description: | THUNDER RIDGE 2 LOT 59 |
| Geographic ID: | S8315-02-00059-0 | Agent Code: | |
| Type: | Real | | |
| Tax Area: | 510 - APPRAISER-Stan/Cam Schl Dist, improved & 1 acre or less | Land Use Code | 11 |
| Open Space: | N | DFL | N |
| Historic Property: | N | Remodel Property: | N |
| Multi-Family Redevelopment: | N | | |
| Township: | | Section: | |
| Range: | |
Location |
| Address: | 1137 CENTRAL DR CAMANO ISLAND, WA 98282 | Mapsco: | |
| Neighborhood: | Cycle 5 | Map ID: | 478 |
| Neighborhood CD: | 5 |
Owner |
| Name: | DAVIS, ALICIA | Owner ID: | 298232 |
| Mailing Address: | CHANCE DAVIS 1137 S CENTRAL DR CAMANO ISLAND, WA 98282 | % Ownership: | 100.0000000000% |
| | | Exemptions: | |
Taxes and Assessment Details
Values
| (+) Improvement Homesite Value: | + | $0 | |
| (+) Improvement Non-Homesite Value: | + | $345,013 | |
| (+) Land Homesite Value: | + | $0 | |
| (+) Land Non-Homesite Value: | + | $230,000 | |
| (+) Curr Use (HS): | + | $0 | $0 |
| (+) Curr Use (NHS): | + | $0 | $0 |
| | | -------------------------- | |
| (=) Market Value: | = | $575,013 | |
| (–) Productivity Loss: | – | $0 | |
| | | -------------------------- | |
| (=) Subtotal: | = | $575,013 | |
| (+) Senior Appraised Value: | + | $0 | |
| (+) Non-Senior Appraised Value: | + | $575,013 | |
| | | -------------------------- | |
| (=) Total Appraised Value: | = | $575,013 | |
| (–) Senior Exemption Loss: | – | $0 | |
| (–) Exemption Loss: | – | $0 | |
| | | -------------------------- | |
| (=) Taxable Value: | = | $575,013 | |
Taxing Jurisdiction
| Owner: | DAVIS, ALICIA | | |
| % Ownership: | 100.0000000000% | | |
| Total Value: | $575,013 | | |
| Tax Area: | 510 - APPRAISER-Stan/Cam Schl Dist, improved & 1 acre or less |
| CF | Conservation Futures | 0.0316035091 | $575,013 | $575,013 | $18.17 | | |
| EMS1 | Fire & Rescue Dist #1 Camano GEN (EMS) | 0.3677864386 | $575,013 | $575,013 | $211.48 | | |
| FIRE1 | Fire & Rescue Dist #1 Camano GEN | 1.2502910536 | $575,013 | $575,013 | $718.93 | | |
| FIRE1BOND | Fire & Rescue Dist #1 Camano BOND | 0.1570001679 | $575,013 | $575,013 | $90.28 | | |
| CE | County Current Expense | 0.3708482477 | $575,013 | $575,013 | $213.24 | | |
| CR | County Roads | 0.4584763726 | $575,013 | $575,013 | $263.63 | | |
| LCIB | Library Sno-Isle BOND (Camano Island) | 0.0396325772 | $575,013 | $575,013 | $22.79 | | |
| LIB | Library Sno-Isle GEN | 0.3153421757 | $575,013 | $575,013 | $181.33 | | |
| SCH205_401 | School 205-401 Enrichment | 1.2698420524 | $575,013 | $575,013 | $730.18 | | |
| SCH205BOND | School 205-401 BOND | 0.9396497583 | $575,013 | $575,013 | $540.31 | | |
| ST | State School | 1.3035497053 | $575,013 | $575,013 | $749.56 | | |
| ST2 | State School Part 2 | 0.8169543533 | $575,013 | $575,013 | $469.76 | | |
| | Total Tax Rate: | 7.3209764117 | | | | | |
| | | | | Taxes w/Current Exemptions: | $4,209.66 | | |
| | | | | Taxes w/o Exemptions: | $4,209.66 | | |
Improvement / Building
| Improvement #1: | RESIDENTIAL | State Code: | Y | 1828.2 sqft | Value: | $345,013 |
| Bathrooms: | 2 | Bedrooms: | 2 | | Ceiling: | DRYWALL PAINTED | Exterior Wall/Cover: | CEMENT FIBER | | Floor Covering: | HARDWOOD/CARP 20-80 | Floor Structure: | WOOD W/SUBFLOOR | | Foundation: | CONCRETE | Heating: | FHA GAS | | Interior Finish: | DRYWALL PAINT | Plumbing Fixture Cnt: | 13 | | Roof Slope: | 4" IN 12" | Roof Structure/Cover: | CJ ASPHALT |
|
| | Type | Description | Class CD | Sub Class CD | Year Built | Area |
| | BAS | BASE/MAIN FLOOR | 3 | 0 | 2005 | 972.2 |
| | AGR | ATTACHED GARAGE | 3 | 0 | 2005 | 240.0 |
| | BIG | BUILT IN GARAGE | 3 | 0 | 2005 | 200.0 |
| | UPS | UPPER STORY | 3 | 0 | 2005 | 856.0 |
| | BAW | BALCONY WOOD RAIL | 3 | 0 | 2005 | 96.0 |
| | OWP | OPEN WOOD PORCH W/STEPS | 3 | 0 | 2005 | 96.0 |
| | OP4 | OPEN PORCH W/CEILING-ROOF | 3 | 0 | 2005 | 105.0 |
Sketch
Property Image
Land
| 1 | 14 | SQ (08001-12000) | 0.0000 | 0.00 | 0.00 | 0.00 | 1.00 | $230,000 | $0 |
Roll Value History
| 2026 | N/A | N/A | N/A | N/A | N/A |
| 2025 | $345,013 | $230,000 | $0 | $575,013 | $575,013 |
| 2024 | $348,968 | $210,000 | $0 | $558,968 | $558,968 |
| 2023 | $352,925 | $230,000 | $0 | $582,925 | $582,925 |
| 2022 | $322,256 | $200,000 | $0 | $522,256 | $522,256 |
| 2021 | $277,894 | $140,000 | $0 | $417,894 | $417,894 |
| 2020 | $269,430 | $125,000 | $0 | $394,430 | $394,430 |
| 2019 | $198,938 | $190,000 | $0 | $388,938 | $388,938 |
| 2018 | $180,085 | $145,000 | $0 | $325,085 | $325,085 |
| 2017 | $180,975 | $90,000 | $0 | $270,975 | $270,975 |
| 2016 | $183,030 | $65,000 | $0 | $248,030 | $248,030 |
| 2015 | $181,186 | $45,000 | $0 | $226,186 | $226,186 |
| 2014 | $183,222 | $45,000 | $0 | $228,222 | $228,222 |
| 2013 | $185,258 | $70,000 | $0 | $255,258 | $255,258 |
| 2012 | $187,293 | $75,000 | $0 | $262,293 | $262,293 |
| 2011 | $189,330 | $75,000 | $0 | $264,330 | $264,330 |
| 2010 | $200,375 | $75,000 | $0 | $275,375 | $275,375 |
| 2009 | $206,601 | $95,000 | $0 | $301,601 | $301,601 |
| 2008 | $208,850 | $105,000 | $0 | $313,850 | $313,850 |
| 2007 | $211,078 | $105,000 | $0 | $316,078 | $316,078 |
Deed and Sales History
| 1 | 02/22/2021 | WD | Warranty Deed | CERTAIN, BRITTANY | DAVIS, ALICIA | | | $510,000.00 | 47059 | 4511782 |
| 2 | 11/25/2019 | QCD | Quit Claim Deed | CERTAIN, BRITTANY | CERTAIN, BRITTANY | | | $0.00 | 46805 | 4509856 |
| 3 | 07/06/2018 | WD | Warranty Deed | SUTHERLAND, MICHAEL E | CERTAIN, BRITTANY | | | $435,000.00 | 34978 | 4447910 |
| 4 | 08/31/2004 | WD | Warranty Deed | RAY, JAMES L | SUTHERLAND, MICHAEL E | | | $271,000.00 | 44144 | 411844 |
| 5 | 04/20/2004 | WD | Warranty Deed | TR CAMANO INC, | RAY, JAMES L | | | $59,000.00 | 41631 | 4098029 |
| 6 | 04/24/1998 | ESTSEPPROP | Establish Separate Property | TR CAMANO INC, | TR CAMANO INC, | | | $0.00 | 91397 | 99009254 |
| 7 | 04/24/1998 | QCD | Quit Claim Deed | Unknown | TR CAMANO INC, | | | $3,162.00 | 81503 | 98008222 |
Payout Agreement
| No payout information available.. |