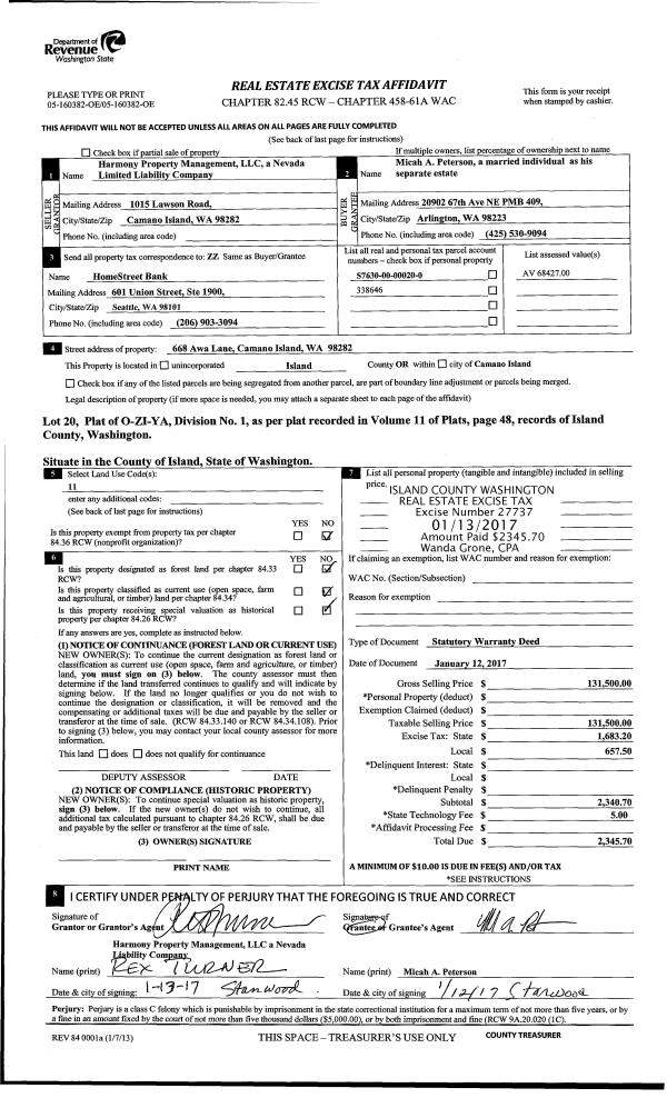
Property
Account |
| Property ID: | 412146 | Abbreviated Legal Description: | THUNDER RIDGE 2 LOT 62 |
| Geographic ID: | S8315-02-00062-0 | Agent Code: | |
| Type: | Real | | |
| Tax Area: | 510 - APPRAISER-Stan/Cam Schl Dist, improved & 1 acre or less | Land Use Code | 11 |
| Open Space: | N | DFL | N |
| Historic Property: | N | Remodel Property: | N |
| Multi-Family Redevelopment: | N | | |
| Township: | | Section: | |
| Range: | |
Location |
| Address: | 1157 CENTRAL DR CAMANO ISLAND, WA 98282 | Mapsco: | |
| Neighborhood: | Cycle 5 | Map ID: | 478 |
| Neighborhood CD: | 5 |
Owner |
| Name: | MACKEY, JOHN | Owner ID: | 300518 |
| Mailing Address: | PATRICIA MACKEY 1157 CENTRAL DRIVE CAMANO ISLAND, WA 98282 | % Ownership: | 100.0000000000% |
| | | Exemptions: | |
Taxes and Assessment Details
Values
| (+) Improvement Homesite Value: | + | $0 | |
| (+) Improvement Non-Homesite Value: | + | $348,731 | |
| (+) Land Homesite Value: | + | $0 | |
| (+) Land Non-Homesite Value: | + | $230,000 | |
| (+) Curr Use (HS): | + | $0 | $0 |
| (+) Curr Use (NHS): | + | $0 | $0 |
| | | -------------------------- | |
| (=) Market Value: | = | $578,731 | |
| (–) Productivity Loss: | – | $0 | |
| | | -------------------------- | |
| (=) Subtotal: | = | $578,731 | |
| (+) Senior Appraised Value: | + | $0 | |
| (+) Non-Senior Appraised Value: | + | $578,731 | |
| | | -------------------------- | |
| (=) Total Appraised Value: | = | $578,731 | |
| (–) Senior Exemption Loss: | – | $0 | |
| (–) Exemption Loss: | – | $0 | |
| | | -------------------------- | |
| (=) Taxable Value: | = | $578,731 | |
Taxing Jurisdiction
| Owner: | MACKEY, JOHN | | |
| % Ownership: | 100.0000000000% | | |
| Total Value: | $578,731 | | |
| Tax Area: | 510 - APPRAISER-Stan/Cam Schl Dist, improved & 1 acre or less |
| CF | Conservation Futures | 0.0316035091 | $578,731 | $578,731 | $18.29 | | |
| EMS1 | Fire & Rescue Dist #1 Camano GEN (EMS) | 0.3677864386 | $578,731 | $578,731 | $212.85 | | |
| FIRE1 | Fire & Rescue Dist #1 Camano GEN | 1.2502910536 | $578,731 | $578,731 | $723.58 | | |
| FIRE1BOND | Fire & Rescue Dist #1 Camano BOND | 0.1570001679 | $578,731 | $578,731 | $90.86 | | |
| CE | County Current Expense | 0.3708482477 | $578,731 | $578,731 | $214.62 | | |
| CR | County Roads | 0.4584763726 | $578,731 | $578,731 | $265.33 | | |
| LCIB | Library Sno-Isle BOND (Camano Island) | 0.0396325772 | $578,731 | $578,731 | $22.94 | | |
| LIB | Library Sno-Isle GEN | 0.3153421757 | $578,731 | $578,731 | $182.50 | | |
| SCH205_401 | School 205-401 Enrichment | 1.2698420524 | $578,731 | $578,731 | $734.90 | | |
| SCH205BOND | School 205-401 BOND | 0.9396497583 | $578,731 | $578,731 | $543.80 | | |
| ST | State School | 1.3035497053 | $578,731 | $578,731 | $754.40 | | |
| ST2 | State School Part 2 | 0.8169543533 | $578,731 | $578,731 | $472.80 | | |
| | Total Tax Rate: | 7.3209764117 | | | | | |
| | | | | Taxes w/Current Exemptions: | $4,236.87 | | |
| | | | | Taxes w/o Exemptions: | $4,236.87 | | |
Improvement / Building
| Improvement #1: | RESIDENTIAL | State Code: | Y | 1592.5 sqft | Value: | $348,731 |
| Bathrooms: | 2 | Bedrooms: | 3 | | Ceiling: | DRYWALL PAINTED | Cooling: | HEAT PUMP/CONV/V | | Exterior Wall/Cover: | CEMENT FIBER | Floor Covering: | CARPET/VINYL 80-20 | | Floor Structure: | WOOD W/SUBFLOOR | Foundation: | CONCRETE | | Interior Finish: | DRYWALL PAINT | Plumbing Fixture Cnt: | 10 | | Roof Slope: | 6" IN 12" | Roof Structure/Cover: | CJ ASPHALT |
|
| | Type | Description | Class CD | Sub Class CD | Year Built | Area |
| | BAS | BASE/MAIN FLOOR | 3 | 0 | 2017 | 1592.5 |
| | AGR | ATTACHED GARAGE | 3 | 0 | 2017 | 630.0 |
| | OWP | OPEN WOOD PORCH W/STEPS | 3 | 0 | 2017 | 210.0 |
| | OWC | OPEN WOOD PORCH W/STEPS/ROOF/C | 3 | 0 | 2017 | 99.6 |
Sketch
Property Image
Land
| 1 | 14 | SQ (08001-12000) | 0.0000 | 0.00 | 0.00 | 0.00 | 1.00 | $230,000 | $0 |
Roll Value History
| 2026 | N/A | N/A | N/A | N/A | N/A |
| 2025 | $348,731 | $230,000 | $0 | $578,731 | $578,731 |
| 2024 | $351,543 | $210,000 | $0 | $561,543 | $561,543 |
| 2023 | $354,356 | $230,000 | $0 | $584,356 | $584,356 |
| 2022 | $323,418 | $200,000 | $0 | $523,418 | $523,418 |
| 2021 | $278,994 | $140,000 | $0 | $418,994 | $418,994 |
| 2020 | $270,653 | $125,000 | $0 | $395,653 | $395,653 |
| 2019 | $200,940 | $190,000 | $0 | $390,940 | $390,940 |
| 2018 | $201,451 | $145,000 | $0 | $346,451 | $346,451 |
| 2017 | $204,520 | $50,000 | $0 | $254,520 | $254,520 |
| 2016 | $0 | $45,000 | $0 | $45,000 | $45,000 |
| 2015 | $0 | $45,000 | $0 | $45,000 | $45,000 |
| 2014 | $0 | $45,000 | $0 | $45,000 | $45,000 |
| 2013 | $0 | $65,000 | $0 | $65,000 | $65,000 |
| 2012 | $0 | $65,000 | $0 | $65,000 | $65,000 |
| 2011 | $0 | $65,000 | $0 | $65,000 | $65,000 |
| 2010 | $0 | $65,000 | $0 | $65,000 | $65,000 |
| 2009 | $0 | $95,000 | $0 | $95,000 | $95,000 |
| 2008 | $0 | $73,000 | $0 | $73,000 | $73,000 |
| 2007 | $0 | $90,000 | $0 | $90,000 | $90,000 |
Deed and Sales History
| 1 | 07/07/2021 | WD | Warranty Deed | MORRISON, SUE B | MACKEY, JOHN | | | $579,000.00 | 49223 | 4524751 |
| 2 | 08/18/2017 | WD | Warranty Deed | TITAN FRAMING, LLC | MORRISON, SUE B | | | $377,000.00 | 30748 | 4428656 |
| 3 | 01/18/2017 | WD | Warranty Deed | MONTERRA PARTNERS LLC | TITAN FRAMING, LLC | | | $37,500.00 | 27814 | 4415584 |
| 4 | 10/24/2012 | WD | Warranty Deed | WHIDBEY ISLAND BANK | MONTERRA PARTNERS LLC | | | $10,000.00 | 9334 | 4326340 |
| 5 | 07/12/2011 | OTHER | Other - Misc. Documents | NORTH COUNTRY BANK | WHIDBEY ISLAND BANK | | | $0.00 | 4992 | 4298319 |
| 6 | 02/23/2010 | TRUSTEED | Trustee's Deed | PLATT, TYLER J & MORGAN R | NORTH COUNTRY BANK, | | | $0.00 | 446 | 4269439 |
| 7 | 07/27/2007 | WD | Warranty Deed | THOMPSON, MARY L | PLATT, TYLER J & MORGAN R | | | $73,000.00 | 72684 | 4209005 |
| 8 | 04/14/2006 | 5 | DNU - Marriage License/Name Change | TAYLOR, MARY LAUREEN | THOMPSON, MARY L | | | $0.00 | 70904 | 0 |
| 9 | 05/10/2002 | PRD | Personal Representatives Deed | THOMPSON, LYLE C | TAYLOR, MARY LAUREEN | | | $0.00 | 22128 | 4022313 |
| 10 | 02/01/1992 | QCD | Quit Claim Deed | NELSKOG, WALTER & | THOMPSON, LYLE C | | | $0.00 | 40840 | 94005361 |
| 11 | 02/01/1981 | TRUSTEED | Trustee's Deed | DB, PROPERTIES C | NELSKOG, WALTER & | | | $250.00 | 59037 | 379895 |
Payout Agreement
| No payout information available.. |