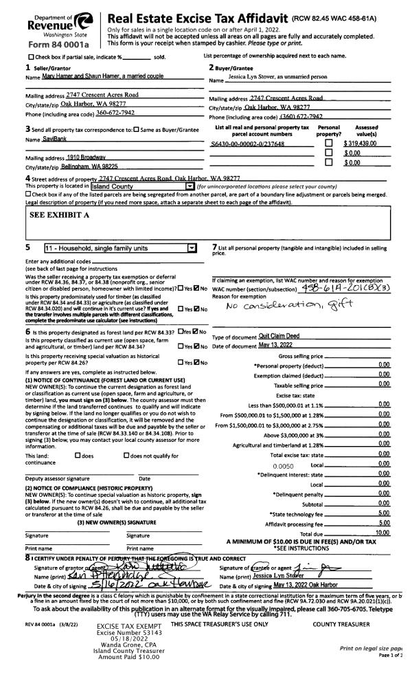
Property
Account |
| Property ID: | 412299 | Abbreviated Legal Description: | THUNDER RIDGE 2 LOT 77 |
| Geographic ID: | S8315-02-00077-0 | Agent Code: | |
| Type: | Real | | |
| Tax Area: | 510 - APPRAISER-Stan/Cam Schl Dist, improved & 1 acre or less | Land Use Code | 11 |
| Open Space: | N | DFL | N |
| Historic Property: | N | Remodel Property: | N |
| Multi-Family Redevelopment: | N | | |
| Township: | | Section: | |
| Range: | |
Location |
| Address: | 1132 ROLLING DR CAMANO ISLAND, WA 98282 | Mapsco: | |
| Neighborhood: | Cycle 5 | Map ID: | 478 |
| Neighborhood CD: | 5 |
Owner |
| Name: | DUNBAR, CHRISTOPHER D | Owner ID: | 267681 |
| Mailing Address: | 23927 AVENIDA CRESCENTA SANTA CLARITA, CA 91355-3101 | % Ownership: | 100.0000000000% |
| | | Exemptions: | |
Taxes and Assessment Details
Values
| (+) Improvement Homesite Value: | + | $0 | |
| (+) Improvement Non-Homesite Value: | + | $372,029 | |
| (+) Land Homesite Value: | + | $0 | |
| (+) Land Non-Homesite Value: | + | $250,000 | |
| (+) Curr Use (HS): | + | $0 | $0 |
| (+) Curr Use (NHS): | + | $0 | $0 |
| | | -------------------------- | |
| (=) Market Value: | = | $622,029 | |
| (–) Productivity Loss: | – | $0 | |
| | | -------------------------- | |
| (=) Subtotal: | = | $622,029 | |
| (+) Senior Appraised Value: | + | $0 | |
| (+) Non-Senior Appraised Value: | + | $622,029 | |
| | | -------------------------- | |
| (=) Total Appraised Value: | = | $622,029 | |
| (–) Senior Exemption Loss: | – | $0 | |
| (–) Exemption Loss: | – | $0 | |
| | | -------------------------- | |
| (=) Taxable Value: | = | $622,029 | |
Taxing Jurisdiction
| Owner: | DUNBAR, CHRISTOPHER D | | |
| % Ownership: | 100.0000000000% | | |
| Total Value: | $622,029 | | |
| Tax Area: | 510 - APPRAISER-Stan/Cam Schl Dist, improved & 1 acre or less |
| CF | Conservation Futures | 0.0316035091 | $622,029 | $622,029 | $19.66 | | |
| EMS1 | Fire & Rescue Dist #1 Camano GEN (EMS) | 0.3677864386 | $622,029 | $622,029 | $228.77 | | |
| FIRE1 | Fire & Rescue Dist #1 Camano GEN | 1.2502910536 | $622,029 | $622,029 | $777.72 | | |
| FIRE1BOND | Fire & Rescue Dist #1 Camano BOND | 0.1570001679 | $622,029 | $622,029 | $97.66 | | |
| CE | County Current Expense | 0.3708482477 | $622,029 | $622,029 | $230.68 | | |
| CR | County Roads | 0.4584763726 | $622,029 | $622,029 | $285.19 | | |
| LCIB | Library Sno-Isle BOND (Camano Island) | 0.0396325772 | $622,029 | $622,029 | $24.65 | | |
| LIB | Library Sno-Isle GEN | 0.3153421757 | $622,029 | $622,029 | $196.15 | | |
| SCH205_401 | School 205-401 Enrichment | 1.2698420524 | $622,029 | $622,029 | $789.88 | | |
| SCH205BOND | School 205-401 BOND | 0.9396497583 | $622,029 | $622,029 | $584.49 | | |
| ST | State School | 1.3035497053 | $622,029 | $622,029 | $810.85 | | |
| ST2 | State School Part 2 | 0.8169543533 | $622,029 | $622,029 | $508.17 | | |
| | Total Tax Rate: | 7.3209764117 | | | | | |
| | | | | Taxes w/Current Exemptions: | $4,553.87 | | |
| | | | | Taxes w/o Exemptions: | $4,553.87 | | |
Improvement / Building
| Improvement #1: | RESIDENTIAL | State Code: | Y | 2086.8 sqft | Value: | $372,029 |
| Bathrooms: | 3 | Bedrooms: | 3 | | Ceiling: | DRYWALL PAINTED | Exterior Wall/Cover: | CEMENT FIBER | | Floor Covering: | HARDWOOD/CARP 80-20 | Floor Structure: | WOOD W/SUBFLOOR | | Foundation: | CONCRETE | Heating: | FHA GAS | | Interior Finish: | DRYWALL PAINT | Plumbing Fixture Cnt: | 15 | | Roof Slope: | 4" IN 12" | Roof Structure/Cover: | CJ ASPHALT |
|
| | Type | Description | Class CD | Sub Class CD | Year Built | Area |
| | BAS | BASE/MAIN FLOOR | 3 | 0 | 2005 | 1049.8 |
| | OP1 | OPEN PORCH SLAB | 3 | 0 | 2005 | 132.0 |
| | AGR | ATTACHED GARAGE | 3 | 0 | 2005 | 572.0 |
| | UPS | UPPER STORY | 3 | 0 | 2005 | 1037.0 |
| | OWP | OPEN WOOD PORCH W/STEPS | 3 | 0 | 2005 | 360.0 |
| | OWP | OPEN WOOD PORCH W/STEPS | 3 | 0 | 2005 | 115.0 |
| | OWC | OPEN WOOD PORCH W/STEPS/ROOF/C | 3 | 0 | 2005 | 115.0 |
Sketch
Property Image
Land
| 1 | 14 | SQ (08001-12000) | 0.0000 | 0.00 | 0.00 | 0.00 | 1.00 | $250,000 | $0 |
Roll Value History
| 2026 | N/A | N/A | N/A | N/A | N/A |
| 2025 | $372,029 | $250,000 | $0 | $622,029 | $622,029 |
| 2024 | $376,294 | $250,000 | $0 | $626,294 | $626,294 |
| 2023 | $380,557 | $250,000 | $0 | $630,557 | $630,557 |
| 2022 | $347,477 | $220,000 | $0 | $567,477 | $567,477 |
| 2021 | $286,219 | $140,000 | $0 | $426,219 | $426,219 |
| 2020 | $278,509 | $125,000 | $0 | $403,509 | $403,509 |
| 2019 | $210,094 | $190,000 | $0 | $400,094 | $400,094 |
| 2018 | $210,699 | $145,000 | $0 | $355,699 | $355,699 |
| 2017 | $211,849 | $120,000 | $0 | $331,849 | $331,849 |
| 2016 | $214,257 | $80,000 | $0 | $294,257 | $294,257 |
| 2015 | $210,729 | $45,000 | $0 | $255,729 | $255,729 |
| 2014 | $213,096 | $45,000 | $0 | $258,096 | $258,096 |
| 2013 | $215,463 | $45,000 | $0 | $260,463 | $260,463 |
| 2012 | $217,833 | $56,000 | $0 | $273,833 | $273,833 |
| 2011 | $220,201 | $56,000 | $0 | $276,201 | $276,201 |
| 2010 | $232,449 | $56,000 | $0 | $288,449 | $288,449 |
| 2009 | $250,879 | $95,000 | $0 | $345,879 | $345,879 |
| 2008 | $253,593 | $105,000 | $0 | $358,593 | $358,593 |
| 2007 | $256,283 | $105,000 | $0 | $361,283 | $361,283 |
Deed and Sales History
| 1 | 08/15/2014 | SPWARDEED | Special Warranty Deed | HSBC BANK NATIONAL ASSOCIATION | DUNBAR, CHRISTOPHER D | | | $236,500.00 | 16729 | 4365217 |
| 2 | 01/03/2014 | DEEDINLIEU | Deed In Lieu Of Foreclosure | HAMAD, DAVID A | HSBC BANK NATIONAL ASSOCIATION | | | $369,872.00 | 14358 | 4355596 |
| 3 | 11/18/2003 | WD | Warranty Deed | TR CAMANO INC, | HAMAD, DAVID A | | | $63,950.00 | 35234 | 4083538 |
| 4 | 04/24/1998 | ESTSEPPROP | Establish Separate Property | TR CAMANO INC, | TR CAMANO INC, | | | $0.00 | 91397 | 99009254 |
| 5 | 04/24/1998 | QCD | Quit Claim Deed | Unknown | TR CAMANO INC, | | | $3,162.00 | 81503 | 98008222 |
Payout Agreement
| No payout information available.. |