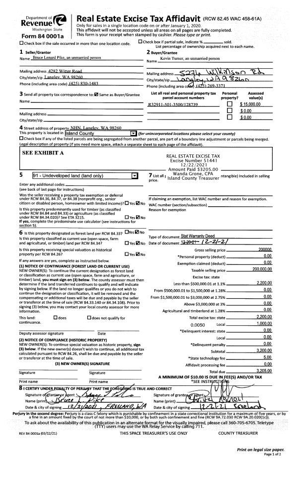
Property
Account |
| Property ID: | 412342 | Abbreviated Legal Description: | TILLICUM BCH LOT 4 INCL ADJ TIDES |
| Geographic ID: | S8320-00-00004-0 | Agent Code: | |
| Type: | Real | | |
| Tax Area: | 540 - APPRAISER-Stan/Cam Schl Dist, Special Dist, improved & less than 1 acre | Land Use Code | 11 |
| Open Space: | N | DFL | N |
| Historic Property: | N | Remodel Property: | N |
| Multi-Family Redevelopment: | N | | |
| Township: | | Section: | |
| Range: | |
Location |
| Address: | 2983 TILLICUM BEACH DR CAMANO ISLAND, WA 98282 | Mapsco: | |
| Neighborhood: | 58RecamWF-East Cam | Map ID: | 866 |
| Neighborhood CD: | 58RecamWF |
Owner |
| Name: | FORSYTHE, GREGORY H | Owner ID: | 68065 |
| Mailing Address: | MARGARET E FORSYTHE 2983 TILLICUM BEACH DR CAMANO ISLAND, WA 98282-8235 | % Ownership: | 100.0000000000% |
| | | Exemptions: | |
Taxes and Assessment Details
Values
| (+) Improvement Homesite Value: | + | $0 | |
| (+) Improvement Non-Homesite Value: | + | $442,579 | |
| (+) Land Homesite Value: | + | $0 | |
| (+) Land Non-Homesite Value: | + | $725,600 | |
| (+) Curr Use (HS): | + | $0 | $0 |
| (+) Curr Use (NHS): | + | $0 | $0 |
| | | -------------------------- | |
| (=) Market Value: | = | $1,168,179 | |
| (–) Productivity Loss: | – | $0 | |
| | | -------------------------- | |
| (=) Subtotal: | = | $1,168,179 | |
| (+) Senior Appraised Value: | + | $0 | |
| (+) Non-Senior Appraised Value: | + | $1,168,179 | |
| | | -------------------------- | |
| (=) Total Appraised Value: | = | $1,168,179 | |
| (–) Senior Exemption Loss: | – | $0 | |
| (–) Exemption Loss: | – | $0 | |
| | | -------------------------- | |
| (=) Taxable Value: | = | $1,168,179 | |
Taxing Jurisdiction
| Owner: | FORSYTHE, GREGORY H | | |
| % Ownership: | 100.0000000000% | | |
| Total Value: | $1,168,179 | | |
| Tax Area: | 540 - APPRAISER-Stan/Cam Schl Dist, Special Dist, improved & less than 1 acre |
| CF | Conservation Futures | 0.0316035091 | $1,168,179 | $1,168,179 | $36.92 | | |
| EMS1 | Fire & Rescue Dist #1 Camano GEN (EMS) | 0.3677864386 | $1,168,179 | $1,168,179 | $429.64 | | |
| FIRE1 | Fire & Rescue Dist #1 Camano GEN | 1.2502910536 | $1,168,179 | $1,168,179 | $1,460.56 | | |
| FIRE1BOND | Fire & Rescue Dist #1 Camano BOND | 0.1570001679 | $1,168,179 | $1,168,179 | $183.40 | | |
| CE | County Current Expense | 0.3708482477 | $1,168,179 | $1,168,179 | $433.22 | | |
| CR | County Roads | 0.4584763726 | $1,168,179 | $1,168,179 | $535.58 | | |
| LCIB | Library Sno-Isle BOND (Camano Island) | 0.0396325772 | $1,168,179 | $1,168,179 | $46.30 | | |
| LIB | Library Sno-Isle GEN | 0.3153421757 | $1,168,179 | $1,168,179 | $368.38 | | |
| SCH205_401 | School 205-401 Enrichment | 1.2698420524 | $1,168,179 | $1,168,179 | $1,483.40 | | |
| SCH205BOND | School 205-401 BOND | 0.9396497583 | $1,168,179 | $1,168,179 | $1,097.68 | | |
| ST | State School | 1.3035497053 | $1,168,179 | $1,168,179 | $1,522.78 | | |
| ST2 | State School Part 2 | 0.8169543533 | $1,168,179 | $1,168,179 | $954.35 | | |
| | Total Tax Rate: | 7.3209764117 | | | | | |
| | | | | Taxes w/Current Exemptions: | $8,552.21 | | |
| | | | | Taxes w/o Exemptions: | $8,552.21 | | |
Improvement / Building
| Improvement #1: | RESIDENTIAL | State Code: | Y | 2025.0 sqft | Value: | $442,579 |
| Bathrooms: | 2 | Bedrooms: | 2 | | Ceiling: | TONGUE & GROOVE | Exterior Wall/Cover: | CEMENT FIBER | | Floor Covering: | CERAMIC TILE/HWD 40/60 | Floor Structure: | SLAB ON GRADE | | Foundation: | SLAB | Heating: | FHA GAS | | Interior Finish: | DRYWALL PAINT | Plumbing Fixture Cnt: | 9 | | Roof Slope: | 5" IN 12" | Roof Structure/Cover: | CJ ASPHALT |
|
| | Type | Description | Class CD | Sub Class CD | Year Built | Area |
| | BAS | BASE/MAIN FLOOR | 4 | 0 | 1959 | 1825.0 |
| | UTY | STORAGE/UTILITY | 4 | 0 | 1959 | 24.0 |
| | OWP | OPEN WOOD PORCH W/STEPS | 4 | 0 | 1959 | 832.0 |
| | UPS | UPPER STORY | 4 | 0 | 1959 | 200.0 |
Sketch
Property Image
Land
| 1 | LB | LOW BANK | 0.0000 | 0.00 | 60.00 | 0.00 | 1.00 | $725,000 | $0 |
| 2 | 55 | TIDES | 0.0000 | 0.00 | 60.00 | 0.00 | 1.00 | $600 | $0 |
Roll Value History
| 2026 | N/A | N/A | N/A | N/A | N/A |
| 2025 | $442,579 | $725,600 | $0 | $1,168,179 | $1,168,179 |
| 2024 | $446,513 | $725,600 | $0 | $1,172,113 | $1,172,113 |
| 2023 | $449,955 | $725,600 | $0 | $1,175,555 | $1,175,555 |
| 2022 | $410,783 | $700,600 | $0 | $1,111,383 | $1,111,383 |
| 2021 | $345,879 | $550,600 | $0 | $896,479 | $896,479 |
| 2020 | $335,106 | $450,600 | $0 | $785,706 | $785,706 |
| 2019 | $264,395 | $500,600 | $0 | $764,995 | $764,995 |
| 2018 | $265,095 | $500,600 | $0 | $765,695 | $765,695 |
| 2017 | $266,498 | $380,600 | $0 | $647,098 | $647,098 |
| 2016 | $269,304 | $320,600 | $0 | $589,904 | $589,904 |
| 2015 | $196,683 | $300,600 | $0 | $497,283 | $497,283 |
| 2014 | $198,710 | $300,600 | $0 | $499,310 | $499,310 |
| 2013 | $51,784 | $300,600 | $0 | $352,384 | $352,384 |
| 2012 | $62,068 | $365,467 | $0 | $427,535 | $427,535 |
| 2011 | $63,308 | $456,684 | $0 | $519,992 | $519,992 |
| 2010 | $74,745 | $456,684 | $0 | $531,429 | $531,429 |
| 2009 | $78,239 | $491,910 | $0 | $570,149 | $570,149 |
| 2008 | $79,515 | $491,910 | $0 | $571,425 | $571,425 |
| 2007 | $79,515 | $593,460 | $0 | $672,975 | $672,975 |
Deed and Sales History
| 1 | 05/01/1995 | QCD | Quit Claim Deed | FORSYTHE, GREGORY H | FORSYTHE, GREGORY H | | | $0.00 | 51847 | 95008601 |
| 2 | 11/01/1994 | QCD | Quit Claim Deed | FORSYTHE, GREG | FORSYTHE, GREGORY H | | | $0.00 | 44743 | 94024221 |
| 3 | 09/01/1984 | OTHER | Other - Misc. Documents | FORSYTHE, GORDON H | FORSYTHE, GREG | | | $0.00 | 60805 | 0 |
| 4 | 01/01/1900 | OTHER | Other - Misc. Documents | Unknown | FORSYTHE, GORDON H | | | $0.00 | 0 | 0 |
Payout Agreement
| No payout information available.. |