Property
Account |
| Property ID: | 412663 | Abbreviated Legal Description: | TILLICUM BCH 1ST LOTS 12 & 13 COMB 7/95 |
| Geographic ID: | S8320-01-00012-0 | Agent Code: | |
| Type: | Real | | |
| Tax Area: | 540 - APPRAISER-Stan/Cam Schl Dist, Special Dist, improved & less than 1 acre | Land Use Code | 11 |
| Open Space: | N | DFL | N |
| Historic Property: | N | Remodel Property: | N |
| Multi-Family Redevelopment: | N | | |
| Township: | | Section: | |
| Range: | |
Location |
| Address: | 2985 JANET AVE CAMANO ISLAND, WA 98282 | Mapsco: | |
| Neighborhood: | 58RecamWV-East Cam | Map ID: | 866 |
| Neighborhood CD: | 58RecamWV |
Owner |
| Name: | LUCIANNA TTEE, MARK A | Owner ID: | 284318 |
| Mailing Address: | JENNIFER G LUCIANNA TTEE 2985 JANET AVE CAMANO ISLAND, WA 98282 | % Ownership: | 100.0000000000% |
| | | Exemptions: | |
Taxes and Assessment Details
Values
| (+) Improvement Homesite Value: | + | $0 | |
| (+) Improvement Non-Homesite Value: | + | $385,177 | |
| (+) Land Homesite Value: | + | $0 | |
| (+) Land Non-Homesite Value: | + | $450,000 | |
| (+) Curr Use (HS): | + | $0 | $0 |
| (+) Curr Use (NHS): | + | $0 | $0 |
| | | -------------------------- | |
| (=) Market Value: | = | $835,177 | |
| (–) Productivity Loss: | – | $0 | |
| | | -------------------------- | |
| (=) Subtotal: | = | $835,177 | |
| (+) Senior Appraised Value: | + | $0 | |
| (+) Non-Senior Appraised Value: | + | $835,177 | |
| | | -------------------------- | |
| (=) Total Appraised Value: | = | $835,177 | |
| (–) Senior Exemption Loss: | – | $0 | |
| (–) Exemption Loss: | – | $0 | |
| | | -------------------------- | |
| (=) Taxable Value: | = | $835,177 | |
Taxing Jurisdiction
| Owner: | LUCIANNA TTEE, MARK A | | |
| % Ownership: | 100.0000000000% | | |
| Total Value: | $835,177 | | |
| Tax Area: | 540 - APPRAISER-Stan/Cam Schl Dist, Special Dist, improved & less than 1 acre |
| CF | Conservation Futures | 0.0316035091 | $835,177 | $835,177 | $26.39 | | |
| EMS1 | Fire & Rescue Dist #1 Camano GEN (EMS) | 0.3677864386 | $835,177 | $835,177 | $307.17 | | |
| FIRE1 | Fire & Rescue Dist #1 Camano GEN | 1.2502910536 | $835,177 | $835,177 | $1,044.21 | | |
| FIRE1BOND | Fire & Rescue Dist #1 Camano BOND | 0.1570001679 | $835,177 | $835,177 | $131.12 | | |
| CE | County Current Expense | 0.3708482477 | $835,177 | $835,177 | $309.72 | | |
| CR | County Roads | 0.4584763726 | $835,177 | $835,177 | $382.91 | | |
| LCIB | Library Sno-Isle BOND (Camano Island) | 0.0396325772 | $835,177 | $835,177 | $33.10 | | |
| LIB | Library Sno-Isle GEN | 0.3153421757 | $835,177 | $835,177 | $263.37 | | |
| SCH205_401 | School 205-401 Enrichment | 1.2698420524 | $835,177 | $835,177 | $1,060.54 | | |
| SCH205BOND | School 205-401 BOND | 0.9396497583 | $835,177 | $835,177 | $784.77 | | |
| ST | State School | 1.3035497053 | $835,177 | $835,177 | $1,088.69 | | |
| ST2 | State School Part 2 | 0.8169543533 | $835,177 | $835,177 | $682.30 | | |
| | Total Tax Rate: | 7.3209764117 | | | | | |
| | | | | Taxes w/Current Exemptions: | $6,114.29 | | |
| | | | | Taxes w/o Exemptions: | $6,114.29 | | |
Improvement / Building
| Improvement #1: | RESIDENTIAL | State Code: | Y | 1378.5 sqft | Value: | $385,177 |
| Bathrooms: | 2 | Bedrooms: | 2 | | Ceiling: | DRYWALL PAINTED | Exterior Wall/Cover: | PLY/HARDBOARD T-111 | | Floor Covering: | HARDWOOD/CARP 60-40 | Floor Structure: | WOOD W/SUBFLOOR | | Foundation: | CONCRETE | Interior Finish: | DRYWALL PAINT | | Plumbing Fixture Cnt: | 11 | Roof Slope: | 5" IN 12" | | Roof Structure/Cover: | CJ ASPHALT |   |   |
|
| | Type | Description | Class CD | Sub Class CD | Year Built | Area |
| | BAS | BASE/MAIN FLOOR | 3 | 0 | 1990 | 1378.5 |
| | AGR | ATTACHED GARAGE | 3 | 0 | 1990 | 527.9 |
| | OWP | OPEN WOOD PORCH W/STEPS | 3 | 0 | 1990 | 773.0 |
| | OWR | OPEN WOOD PORCH W/STEPS/ROOF | 3 | 0 | 1990 | 324.0 |
| | ENP | ENCLOSED PORCH | 3 | 0 | 1990 | 144.0 |
| | DGR | DETACHED GARAGE | 3 | 0 | 1990 | 1152.0 |
| | CPD | OPEN CARPORT DIRT FLOOR | 3 | 0 | 1990 | 288.0 |
Sketch
Property Image
Land
| 1 | HB | HIGH BLUFF | 0.5674 | 24715.94 | 150.00 | 0.00 | 1.00 | $450,000 | $0 |
Roll Value History
| 2026 | N/A | N/A | N/A | N/A | N/A |
| 2025 | $385,177 | $450,000 | $0 | $835,177 | $835,177 |
| 2024 | $389,917 | $450,000 | $0 | $839,917 | $839,917 |
| 2023 | $394,657 | $450,000 | $0 | $844,657 | $844,657 |
| 2022 | $361,666 | $375,000 | $0 | $736,666 | $736,666 |
| 2021 | $281,735 | $275,000 | $0 | $556,735 | $556,735 |
| 2020 | $273,913 | $250,000 | $0 | $523,913 | $523,913 |
| 2019 | $195,226 | $300,000 | $0 | $495,226 | $495,226 |
| 2018 | $192,233 | $250,000 | $0 | $442,233 | $442,233 |
| 2017 | $178,030 | $250,000 | $0 | $428,030 | $171,212 |
| 2016 | $180,342 | $250,000 | $0 | $430,342 | $172,137 |
| 2015 | $177,252 | $250,000 | $0 | $427,252 | $170,901 |
| 2014 | $179,065 | $170,000 | $0 | $349,065 | $279,065 |
| 2013 | $180,878 | $170,000 | $0 | $350,878 | $280,878 |
| 2012 | $182,691 | $308,724 | $0 | $491,415 | $421,415 |
| 2011 | $184,503 | $385,905 | $0 | $570,408 | $500,408 |
| 2010 | $192,634 | $385,905 | $0 | $578,539 | $508,539 |
| 2009 | $183,507 | $473,611 | $0 | $657,118 | $530,000 |
| 2008 | $186,239 | $385,905 | $0 | $572,144 | $572,144 |
| 2007 | $189,087 | $347,238 | $0 | $536,325 | $536,325 |
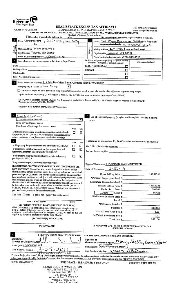
Deed and Sales History
| 1 | 04/11/2019 | QCD | Quit Claim Deed | LUCIANNA TTEE, MARK A | LUCIANNA TTEE, MARK A | | | $0.00 | 37950 | 4460898 |
| 2 | 03/07/2018 | WD | Warranty Deed | MILLS, JIMMIE L | LUCIANNA TTEE, MARK A | | | $489,000.00 | 33296 | 4440819 |
| 3 | 11/22/2006 | 5 | DNU - Marriage License/Name Change | MILLS, JIMMIE L | MILLS, JIMMIE L | | | $0.00 | 64980 | 4187733 |
| 4 | 03/28/2000 | QCD | Quit Claim Deed | MILLS, JIM L | MILLS, JIMMIE L | | | $0.00 | 1165 | 20005705 |
| 5 | 07/01/1995 | OTHER | Other - Misc. Documents | MILLS, JIM L | MILLS, JIM L | | | $0.00 | 66509 | 95010290 |
| 6 | 03/01/1990 | WD | Warranty Deed | PETRUZZI, THOMAS J | MILLS, JIM L | | | $45,000.00 | 1915 | 90006178 |
| 7 | 08/01/1989 | WD | Warranty Deed | BOYDEN, RICHARD J | PETRUZZI, THOMAS J | | | $24,000.00 | 93660 | 89012214 |
| 8 | 01/01/1988 | WD | Warranty Deed | ROQUET, JERRY | BOYDEN, RICHARD J | | | $16,500.00 | 80056 | 88000214 |
| 9 | 01/01/1900 | OTHER | Other - Misc. Documents | Unknown | ROQUET, JERRY | | | $0.00 | 0 | 0 |
Payout Agreement
| No payout information available.. |