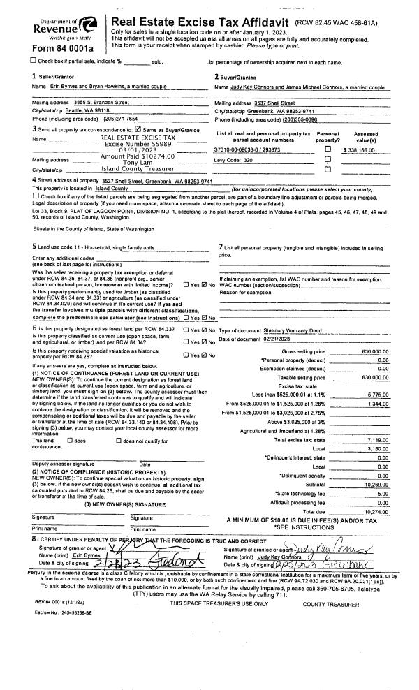
Property
Account |
| Property ID: | 412761 | Abbreviated Legal Description: | TILLICUM BCH 2ND LOT 6 INCL ADJ TIDES |
| Geographic ID: | S8320-02-00006-0 | Agent Code: | |
| Type: | Real | | |
| Tax Area: | 540 - APPRAISER-Stan/Cam Schl Dist, Special Dist, improved & less than 1 acre | Land Use Code | 11 |
| Open Space: | N | DFL | N |
| Historic Property: | N | Remodel Property: | N |
| Multi-Family Redevelopment: | N | | |
| Township: | | Section: | |
| Range: | |
Location |
| Address: | 2927 TILLICUM BEACH DR CAMANO ISLAND, WA 98282 | Mapsco: | |
| Neighborhood: | 58RecamWF-East Cam | Map ID: | 866 |
| Neighborhood CD: | 58RecamWF |
Owner |
| Name: | GOETZ, FREDERICK W | Owner ID: | 310766 |
| Mailing Address: | JOANNE M GOETZ 19920 26TH AVE NW SHORELINE, WA 98177 | % Ownership: | 100.0000000000% |
| | | Exemptions: | |
Taxes and Assessment Details
Values
| (+) Improvement Homesite Value: | + | $0 | |
| (+) Improvement Non-Homesite Value: | + | $386,514 | |
| (+) Land Homesite Value: | + | $0 | |
| (+) Land Non-Homesite Value: | + | $725,600 | |
| (+) Curr Use (HS): | + | $0 | $0 |
| (+) Curr Use (NHS): | + | $0 | $0 |
| | | -------------------------- | |
| (=) Market Value: | = | $1,112,114 | |
| (–) Productivity Loss: | – | $0 | |
| | | -------------------------- | |
| (=) Subtotal: | = | $1,112,114 | |
| (+) Senior Appraised Value: | + | $0 | |
| (+) Non-Senior Appraised Value: | + | $1,112,114 | |
| | | -------------------------- | |
| (=) Total Appraised Value: | = | $1,112,114 | |
| (–) Senior Exemption Loss: | – | $0 | |
| (–) Exemption Loss: | – | $0 | |
| | | -------------------------- | |
| (=) Taxable Value: | = | $1,112,114 | |
Taxing Jurisdiction
| Owner: | GOETZ, FREDERICK W | | |
| % Ownership: | 100.0000000000% | | |
| Total Value: | $1,112,114 | | |
| Tax Area: | 540 - APPRAISER-Stan/Cam Schl Dist, Special Dist, improved & less than 1 acre |
| CF | Conservation Futures | 0.0316035091 | $1,112,114 | $1,112,114 | $35.15 | | |
| EMS1 | Fire & Rescue Dist #1 Camano GEN (EMS) | 0.3677864386 | $1,112,114 | $1,112,114 | $409.02 | | |
| FIRE1 | Fire & Rescue Dist #1 Camano GEN | 1.2502910536 | $1,112,114 | $1,112,114 | $1,390.47 | | |
| FIRE1BOND | Fire & Rescue Dist #1 Camano BOND | 0.1570001679 | $1,112,114 | $1,112,114 | $174.60 | | |
| CE | County Current Expense | 0.3708482477 | $1,112,114 | $1,112,114 | $412.43 | | |
| CR | County Roads | 0.4584763726 | $1,112,114 | $1,112,114 | $509.88 | | |
| LCIB | Library Sno-Isle BOND (Camano Island) | 0.0396325772 | $1,112,114 | $1,112,114 | $44.08 | | |
| LIB | Library Sno-Isle GEN | 0.3153421757 | $1,112,114 | $1,112,114 | $350.70 | | |
| SCH205_401 | School 205-401 Enrichment | 1.2698420524 | $1,112,114 | $1,112,114 | $1,412.21 | | |
| SCH205BOND | School 205-401 BOND | 0.9396497583 | $1,112,114 | $1,112,114 | $1,045.00 | | |
| ST | State School | 1.3035497053 | $1,112,114 | $1,112,114 | $1,449.70 | | |
| ST2 | State School Part 2 | 0.8169543533 | $1,112,114 | $1,112,114 | $908.55 | | |
| | Total Tax Rate: | 7.3209764117 | | | | | |
| | | | | Taxes w/Current Exemptions: | $8,141.79 | | |
| | | | | Taxes w/o Exemptions: | $8,141.79 | | |
Improvement / Building
| Improvement #1: | RESIDENTIAL | State Code: | Y | 2225.1 sqft | Value: | $386,514 |
| Bathrooms: | 3 | Bedrooms: | 2 | | Ceiling: | DRYWALL PAINTED | Cooling: | HEAT PUMP/CONV/V | | Exterior Wall/Cover: | WOOD SIDING | Floor Covering: | CARPET/VINYL 80-20 | | Floor Structure: | WOOD W/SUBFLOOR | Foundation: | CONCRETE | | Interior Finish: | DRYWALL PAINT | Plumbing Fixture Cnt: | 11 | | Roof Slope: | 8" IN 12" | Roof Structure/Cover: | CJ ASPHALT |
|
| | Type | Description | Class CD | Sub Class CD | Year Built | Area |
| | BAS | BASE/MAIN FLOOR | 4 | 0 | 1994 | 1165.1 |
| | OP1 | OPEN PORCH SLAB | 4 | 0 | 1994 | 1445.1 |
| | OP4 | OPEN PORCH W/CEILING-ROOF | 4 | 0 | 1994 | 136.0 |
| | OP4 | OPEN PORCH W/CEILING-ROOF | 4 | 0 | 1994 | 72.0 |
| | AGR | ATTACHED GARAGE | 4 | 0 | 1994 | 272.0 |
| | BIG | BUILT IN GARAGE | 4 | 0 | 1994 | 305.0 |
| | UPS | UPPER STORY | 4 | 0 | 1994 | 900.0 |
| | UPH | HALF STORY | 4 | 0 | 1994 | 160.0 |
Sketch
Property Image
Land
| 1 | 55 | TIDES | 0.0000 | 0.00 | 60.00 | 0.00 | 1.00 | $600 | $0 |
| 2 | LB | LOW BANK | 0.0000 | 0.00 | 60.00 | 0.00 | 1.00 | $725,000 | $0 |
Roll Value History
| 2026 | N/A | N/A | N/A | N/A | N/A |
| 2025 | $386,514 | $725,600 | $0 | $1,112,114 | $1,112,114 |
| 2024 | $391,515 | $725,600 | $0 | $1,117,115 | $1,117,115 |
| 2023 | $396,521 | $725,600 | $0 | $1,122,121 | $1,122,121 |
| 2022 | $363,587 | $700,600 | $0 | $1,064,187 | $1,064,187 |
| 2021 | $299,940 | $550,600 | $0 | $850,540 | $850,540 |
| 2020 | $292,768 | $450,600 | $0 | $743,368 | $743,368 |
| 2019 | $218,484 | $500,600 | $0 | $719,084 | $719,084 |
| 2018 | $219,175 | $500,600 | $0 | $719,775 | $719,775 |
| 2017 | $220,489 | $380,600 | $0 | $601,089 | $601,089 |
| 2016 | $223,243 | $320,600 | $0 | $543,843 | $543,843 |
| 2015 | $223,862 | $350,600 | $0 | $574,462 | $574,462 |
| 2014 | $226,732 | $350,600 | $0 | $577,332 | $577,332 |
| 2013 | $229,600 | $365,467 | $0 | $595,067 | $595,067 |
| 2012 | $232,468 | $365,467 | $0 | $597,935 | $597,935 |
| 2011 | $235,336 | $456,684 | $0 | $692,020 | $692,020 |
| 2010 | $243,711 | $456,684 | $0 | $700,395 | $700,395 |
| 2009 | $255,541 | $491,910 | $0 | $747,451 | $747,451 |
| 2008 | $267,257 | $491,910 | $0 | $759,167 | $759,167 |
| 2007 | $270,566 | $593,460 | $0 | $864,026 | $864,026 |
Deed and Sales History
| 1 | 09/22/2023 | QCD | Quit Claim Deed | GOETZ TTEE, FREDERICK W | GOETZ, FREDERICK W | | | $0.00 | 58606 | 4567059 |
| 2 | 12/20/2006 | 5 | DNU - Marriage License/Name Change | GOETZ TTEE, FREDERICK W | GOETZ TTEE, FREDERICK W | | | $0.00 | 65314 | 4189862 |
| 3 | 12/20/2006 | 5 | DNU - Marriage License/Name Change | GOETZ, FREDERICK W | GOETZ TTEE, FREDERICK W | | | $0.00 | 65313 | 4189861 |
| 4 | 12/20/2006 | QCD | Quit Claim Deed | GOETZ, FREDERICK W | GOETZ, FREDERICK W | | | $0.00 | 65312 | 4189860 |
| 5 | 12/20/2006 | WD | Warranty Deed | GOETZ, FREDERICK W | GOETZ, FREDERICK W | | | $0.00 | 65311 | 4189859 |
| 6 | 11/01/1997 | WD | Warranty Deed | GOETZ, FREDERICK W | GOETZ, FREDERICK W | | | $213,807.00 | 74029 | 97019323 |
| 7 | 06/01/1981 | TRUSTEED | Trustee's Deed | WOOLMAN, JAMES R | GOETZ, FREDERICK W | | | $90,000.00 | 11881 | 384490 |
| 8 | 01/01/1900 | OTHER | Other - Misc. Documents | Unknown | WOOLMAN, JAMES R | | | $0.00 | 0 | 0 |
Payout Agreement
| No payout information available.. |